Terrain à vendre

291740 €
135 m²
Dommartin-lès-Remiremont
Vosges (88)
TERRAIN ET MAISON
Réf externe: 4889393
Annonce publiée le 5 novembre 2025

Images

Description

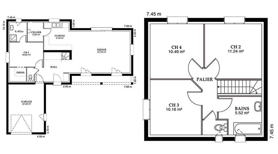
Nous vous proposons cette maison neuve, baptisée Lubéronne, qui incarne l'élégance et le confort moderne tout en s'inspirant du charme intemporel provençal. Avec une surface généreuse de 135 m², cette demeure est conçue pour répondre aux attentes des plus exigeants, alliant fonctionnalité et esthétique.

La Lubéronne se distingue par sa tour caractéristique, offrant une avancée architecturale remarquable, et sa galerie, qui invite à la détente et à la contemplation des paysages environnants. Le double garage spacieux assure un confort pratique au quotidien, répondant ainsi aux besoins de stationnement et de rangement.

Cette maison est composée de 4 chambres confortables, regroupées dans la tour pour préserver l'intimité de chacun, et de 4 pièces lumineuses, dont une partie jour significative qui baigne l'espace de vie en lumière naturelle, créant une atmosphère chaleureuse et accueillante.

Les options les plus plébiscitées, telles que les menuiseries en aluminium, la domotique pour une maison connectée et un crépis coloré, sont disponibles pour personnaliser votre maison selon vos goûts et vos besoins. Ces éléments ajoutent une touche de modernité et de confort, faisant de la Lubéronne un lieu de vie unique et personnalisé.

Construite dans le respect des normes de la RE2020, cette maison neuve est synonyme de basse consommation, garantissant ainsi une efficacité énergétique optimale et un respect de l'environnement. Ce choix responsable contribue à réduire les dépenses énergétiques tout en offrant un cadre de vie sain et agréable.

La Lubéronne, avec son style provençal revisité et ses prestations de qualité, est proposée en 3 plans différents, permettant de s'adapter à vos projets de vie et à vos envies. Faites le choix d'une maison qui allie tradition et innovation, pour un quotidien empreint de bien-être.

CONTACTER

Logement susceptibles de vous intéresser

291 740 €
135 m²

Dommartin-lès-Remiremont

TERRAIN ET MAISON

Nous vous proposons cette maison neuve, baptisée Lubéronne, qui incarne l’élégance et le confort moderne tout en s’inspirant du charme intemporel provençal. Avec une surface généreuse de 135 m², cette demeure est conçue pour répondre aux attentes des plus exigeants, alliant fonctionnalité et esthétique.La Lubéronne se distingue par sa tour caractéristique, offrant une avancée architecturale remarquable, et sa galerie, qui invite à la détente et à la contemplation des paysages environnants. Le double garage spacieux assure un confort pratique au quotidien, répondant ainsi aux besoins de stationnement et de rangement.Cette maison est composée de 4 chambres confortables, regroupées dans la tour pour préserver l’intimité de chacun, et de 4 pièces lumineuses, dont une partie jour significative qui baigne l’espace de vie en lumière naturelle, créant une atmosphère chaleureuse et accueillante.Les options les plus plébiscitées, telles que les menuiseries en aluminium, la domotique pour une maison connectée et un crépis coloré, sont disponibles pour personnaliser votre maison selon vos goûts et vos besoins. Ces éléments ajoutent une touche de modernité et de confort, faisant de la Lubéronne un lieu de vie unique et personnalisé.Construite dans le respect des normes de la RE2020, cette maison neuve est synonyme de basse consommation, garantissant ainsi une efficacité énergétique optimale et un respect de l’environnement. Ce choix responsable contribue à réduire les dépenses énergétiques tout en offrant un cadre de vie sain et agréable.La Lubéronne, avec son style provençal revisité et ses prestations de qualité, est proposée en 3 plans différents, permettant de s’adapter à vos projets de vie et à vos envies. Faites le choix d’une maison qui allie tradition et innovation, pour un quotidien empreint de bien-être.

214 910 €
99 m²

Saint-Amé

TERRAIN ET MAISON

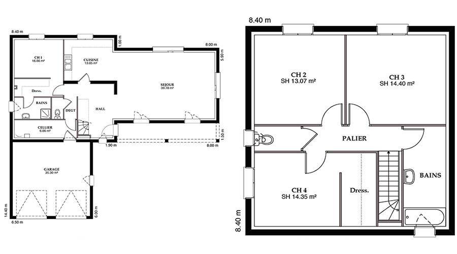
Nous vous proposons cette maison neuve, baptisée Plénitude, un modèle qui incarne l’harmonie parfaite entre confort moderne et respect de l’environnement. Avec une surface généreuse de 99 m², cette maison en L est conçue pour offrir une expérience de vie unique, alliant esthétique et fonctionnalité.La Plénitude se distingue par son architecture en L, permettant une distinction naturelle entre l’espace jour et l’espace nuit, tout en restant sur un plan de plain-pied pour un confort optimal. Ce modèle comprend 4 chambres spacieuses, promettant intimité et tranquillité pour chaque membre de la famille, ainsi que 4 pièces bien agencées pour maximiser l’espace de vie commun.L’intégration d’un garage, directement accessible depuis la maison, ajoute une commodité indéniable, tandis que la construction en briques garantit non seulement une esthétique intemporelle mais aussi une solidité à toute épreuve.Mais ce qui rend la Plénitude véritablement exceptionnelle, c’est son engagement envers la durabilité. Conforme à la norme RE2020, cette maison neuve est une véritable prouesse en matière de basse consommation énergétique. Elle est conçue pour minimiser son impact sur l’environnement tout en assurant un confort maximal à ses habitants, été comme hiver.Les options les plus plébiscitées par nos clients, telles que des solutions d’isolation avancées et des systèmes de chauffage performants, sont disponibles pour personnaliser votre maison selon vos besoins et vos envies.Choisir la Plénitude, c’est opter pour une maison qui allie élégance, confort et responsabilité environnementale. C’est la promesse d’un foyer où il fait bon vivre, conçu pour s’adapter à votre mode de vie et respecter la planète. Découvrez comment cette maison peut devenir le cadre idyllique de votre quotidien.

307 740 €
135 m²

Saint-Nabord

TERRAIN ET MAISON

Nous vous proposons cette maison neuve, baptisée Lubéronne, qui incarne l’élégance et le confort moderne tout en s’inspirant du charme intemporel provençal. Avec une surface généreuse de 135 m², cette demeure est conçue pour répondre aux attentes des plus exigeants, alliant fonctionnalité et esthétique.La Lubéronne se distingue par sa tour caractéristique, offrant une avancée architecturale remarquable, et sa galerie, qui invite à la détente et à la contemplation des paysages environnants. Le double garage spacieux assure un confort pratique au quotidien, répondant ainsi aux besoins de stationnement et de rangement.Cette maison est composée de 4 chambres confortables, regroupées dans la tour pour préserver l’intimité de chacun, et de 4 pièces lumineuses, dont une partie jour significative qui baigne l’espace de vie en lumière naturelle, créant une atmosphère chaleureuse et accueillante.Les options les plus plébiscitées, telles que les menuiseries en aluminium, la domotique pour une maison connectée et un crépis coloré, sont disponibles pour personnaliser votre maison selon vos goûts et vos besoins. Ces éléments ajoutent une touche de modernité et de confort, faisant de la Lubéronne un lieu de vie unique et personnalisé.Construite dans le respect des normes de la RE2020, cette maison neuve est synonyme de basse consommation, garantissant ainsi une efficacité énergétique optimale et un respect de l’environnement. Ce choix responsable contribue à réduire les dépenses énergétiques tout en offrant un cadre de vie sain et agréable.La Lubéronne, avec son style provençal revisité et ses prestations de qualité, est proposée en 3 plans différents, permettant de s’adapter à vos projets de vie et à vos envies. Faites le choix d’une maison qui allie tradition et innovation, pour un quotidien empreint de bien-être.

194 930 €
109 m²

Saint-Amé

TERRAIN ET MAISON

Nous vous proposons cette maison neuve, baptisée Vésontia, un modèle qui allie élégance, fonctionnalité et respect de l’environnement. Avec une surface généreuse de 109 m², cette maison de plain-pied en forme de L est conçue pour s’adapter harmonieusement à la vie de famille, tout en offrant des espaces de vie conviviaux et bien organisés.La Vésontia se distingue par ses 4 chambres spacieuses et ses 4 pièces lumineuses, promettant confort et intimité à chaque membre de la famille. Le garage intégré assure une transition fluide entre l’extérieur et l’intérieur, tandis que le porche d’entrée accueille vos invités avec élégance et simplicité.Conscients des besoins variés de nos clients, nous offrons la possibilité de personnaliser votre maison avec des options très demandées telles qu’un Car Port supplémentaire, un garage plus spacieux ou même un sous-sol, permettant ainsi de créer un espace qui reflète véritablement votre style de vie et vos préférences.Avec 7 déclinaisons de base, la Vésontia est une invitation à concevoir une maison sur mesure à petit prix. Que vous rêviez d’un grand séjour pour vos réunions de famille, d’une suite parentale pour plus d’intimité, ou d’un bureau pour travailler en toute tranquillité, ce modèle s’adapte à toutes vos envies.Au-delà de son design attrayant et de sa flexibilité, la Vésontia est une maison écolo de basse consommation, conforme à la réglementation thermique 2020 (RE2020). Cela signifie que vous bénéficierez non seulement d’un confort optimal en toutes saisons, mais aussi d’économies significatives sur vos factures d’énergie.Choisir la Vésontia, c’est opter pour une maison qui respecte l’environnement tout en répondant à vos attentes de confort, de style et de fonctionnalité. Faites le premier pas vers la maison de vos rêves et laissez-nous vous accompagner dans cette belle aventure.

L’actualité immobilière à Dommartin-lès-Remiremont

Image du post Pourquoi acheter un terrain en lotissement ? 27/11/2023
Lire l’article
Pourquoi acheter un terrain en lotissement ?
Image du post Vendre son terrain à un promoteur : comment procéder ? 02/11/2023
Lire l’article
Vendre son terrain à un promoteur : comment procéder ?
Image du post Diviser le terrain de sa maison pour le vendre : pourquoi et comment ? 30/10/2023
Lire l’article
Diviser le terrain de sa maison pour le vendre : pourquoi et comment ?
Image du post Acheter un terrain viabilisé : quels avantages ? 20/10/2023
Lire l’article
Acheter un terrain viabilisé : quels avantages ?
Image du post Les 7 étapes incontournables pour bien vendre votre terrain constructible 16/10/2023
Lire l’article
Les 7 étapes incontournables pour bien vendre votre terrain constructible
Image du post 5 points clés à vérifier pour l’achat d’un terrain constructible  16/10/2023
Lire l’article
5 points clés à vérifier pour l’achat d’un terrain constructible