Images
Description
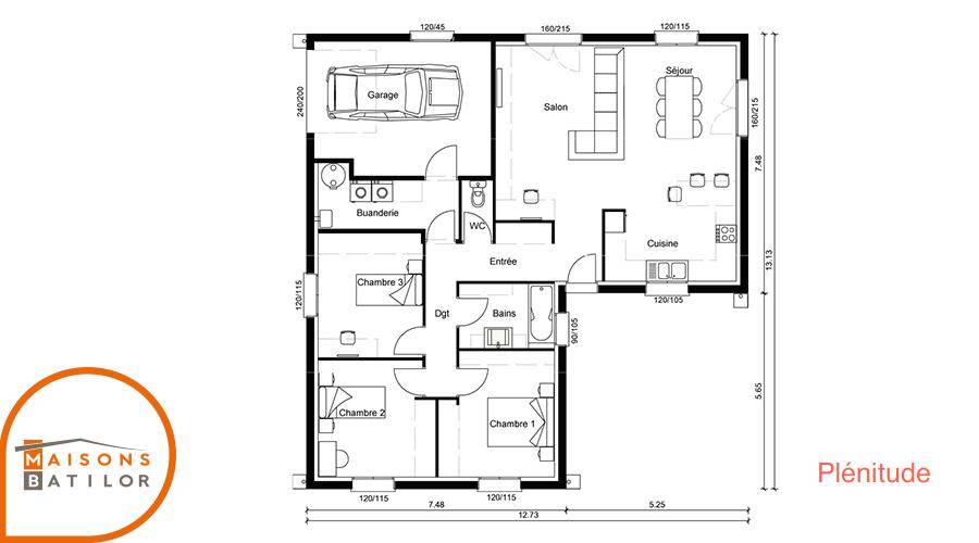
Nous vous proposons cette maison neuve, baptisée Plénitude, un modèle qui incarne l'harmonie parfaite entre confort moderne et respect de l'environnement. Avec une surface généreuse de 99 m², cette maison en L est conçue pour offrir une expérience de vie unique, alliant esthétique et fonctionnalité.
La Plénitude se distingue par son architecture en L, permettant une distinction naturelle entre l'espace jour et l'espace nuit, tout en restant sur un plan de plain-pied pour un confort optimal. Ce modèle comprend 4 chambres spacieuses, promettant intimité et tranquillité pour chaque membre de la famille, ainsi que 4 pièces bien agencées pour maximiser l'espace de vie commun.
L'intégration d'un garage, directement accessible depuis la maison, ajoute une commodité indéniable, tandis que la construction en briques garantit non seulement une esthétique intemporelle mais aussi une solidité à toute épreuve.
Mais ce qui rend la Plénitude véritablement exceptionnelle, c'est son engagement envers la durabilité. Conforme à la norme RE2020, cette maison neuve est une véritable prouesse en matière de basse consommation énergétique. Elle est conçue pour minimiser son impact sur l'environnement tout en assurant un confort maximal à ses habitants, été comme hiver.
Les options les plus plébiscitées par nos clients, telles que des solutions d'isolation avancées et des systèmes de chauffage performants, sont disponibles pour personnaliser votre maison selon vos besoins et vos envies.
Choisir la Plénitude, c'est opter pour une maison qui allie élégance, confort et responsabilité environnementale. C'est la promesse d'un foyer où il fait bon vivre, conçu pour s'adapter à votre mode de vie et respecter la planète. Découvrez comment cette maison peut devenir le cadre idyllique de votre quotidien.
Logement susceptibles de vous intéresser
Nous vous proposons de découvrir aussi cette sélection de logements situés à moins de 10km de Granges-Aumontzey et qui seraient susceptibles de vous intéresser.
Gérardmer
TERRAIN88400 – PROCHE GÉRARDMER – TERRAIN A CONSTRUIRE – 1036m² – BELLE VUE DÉGAGÉE – RESEAUX EN BORDUREBelle parcelle de terrain à construire de 1036m² à proximité de Gérardmer, sur la commune de Xonrupt-Longemer.Belle vue dégagée sur la vallée – prés voisins classés en zone naturelle.Proximité avec les commodités du village et du lac de Longemer.Quartier résidentiel, calme, forêt et sentiers de randonnées à proximité immédiate. Les honoraires sont à la charge du vendeur.Les informations sur les risques auxquels ce bien est exposé sont disponibles sur le site Géorisques : www. georisques. gouv. fr.Contactez Mélanie HODEAU Entrepreneur Individuel, Agent commercial OptimHome (RSAC N(Numéro supprimé) Greffe de EPINAL) (Numéro supprimé) (réf. 594561 )
La Chapelle-devant-Bruyères
TERRAINParcelle de terrain à batir pouvant recevoir different projetsPlain-pied, sous-solPermis de construire à déposer rapidementA visiter Les honoraires sont à la charge du vendeur.Les informations sur les risques auxquels ce bien est exposé sont disponibles sur le site Géorisques : www. georisques. gouv. fr.Contactez Antoine MENEGHESSO Entrepreneur Individuel, Agent commercial OptimHome (RSAC N(Numéro supprimé) Greffe de EPINAL) (Numéro supprimé) (réf. 592891 )
Gérardmer
TERRAIN88400 – GÉRARDMER – TERRAIN DE 1500M² – EXPOSITION SUD – VUE LACTERRAIN A CONSTRUIRE DE 1 500M²- Réseaux en bordure- Démarches à l’urbanisme faites et accord pour déposer un PC selon les anciennes règles du PLU (Zone UH)Extrait des règles de constructibilité:- emprise au sol : 80m² minimum – 150m² max (10% du terrain)- surface de plancher : 140m² minimum – 300m² max- implantation voie publique : entre 3 et 15mLes photos de chalet sont non contractuelles. Elles illustrent l’architecture et les volumes possibles sur la parcelle.Un terrain rare à fort potentielIdéal résidence secondaire, maison de famille et/ou investissement locatif. Les honoraires d’agence sont à la charge de l’acquéreur, soit 3,70% TTC du prix hors honoraires.Les informations sur les risques auxquels ce bien est exposé sont disponibles sur le site Géorisques : www. georisques. gouv. fr.Contactez Mélanie HODEAU Entrepreneur Individuel, Agent commercial OptimHome (RSAC N(Numéro supprimé) Greffe de EPINAL) (Numéro supprimé) (réf. 592616 )
Granges-Aumontzey
TERRAINNous vous proposons un terrain exceptionnel d’une surface de 1100 m², idéalement situé à Granges-sur-Vologne, dans le département des Vosges. Ce terrain, déjà viabilisé, offre de nombreuses possibilités pour réaliser votre projet de construction de maison. Profitez d’un environnement paisible et serein tout en ayant accès à des caractéristiques uniques qui font de cette ville un endroit privilégié pour établir votre futur foyer. Granges-sur-Vologne, situé dans la région Grand Est, vous séduira par son cadre naturel enchanteur et ses nombreuses attractions locales. À proximité, vous trouverez des commodités variées, allant des commerces essentiels aux loisirs en plein air, tout en bénéficiant d’une atmosphère conviviale qui caractérise ce charmant village. N’attendez plus pour explorer le potentiel de ce terrain et imaginez la maison de vos rêves dans ce cadre idéal. Ce terrain vous offre une opportunité unique de construire un avenir serein, alors n’hésitez pas à nous contacter pour plus d’informations. À noter qu’en tant que constructeur, nous ne sommes pas mandatés pour réaliser la vente de ce terrain.
Granges-Aumontzey
TERRAIN ET MAISONNous vous proposons cette maison neuve, baptisée Plénitude, un modèle qui incarne l’harmonie parfaite entre confort moderne et respect de l’environnement. Avec une surface généreuse de 99 m², cette maison en L est conçue pour offrir une expérience de vie unique, alliant esthétique et fonctionnalité.La Plénitude se distingue par son architecture en L, permettant une distinction naturelle entre l’espace jour et l’espace nuit, tout en restant sur un plan de plain-pied pour un confort optimal. Ce modèle comprend 4 chambres spacieuses, promettant intimité et tranquillité pour chaque membre de la famille, ainsi que 4 pièces bien agencées pour maximiser l’espace de vie commun.L’intégration d’un garage, directement accessible depuis la maison, ajoute une commodité indéniable, tandis que la construction en briques garantit non seulement une esthétique intemporelle mais aussi une solidité à toute épreuve.Mais ce qui rend la Plénitude véritablement exceptionnelle, c’est son engagement envers la durabilité. Conforme à la norme RE2020, cette maison neuve est une véritable prouesse en matière de basse consommation énergétique. Elle est conçue pour minimiser son impact sur l’environnement tout en assurant un confort maximal à ses habitants, été comme hiver.Les options les plus plébiscitées par nos clients, telles que des solutions d’isolation avancées et des systèmes de chauffage performants, sont disponibles pour personnaliser votre maison selon vos besoins et vos envies.Choisir la Plénitude, c’est opter pour une maison qui allie élégance, confort et responsabilité environnementale. C’est la promesse d’un foyer où il fait bon vivre, conçu pour s’adapter à votre mode de vie et respecter la planète. Découvrez comment cette maison peut devenir le cadre idyllique de votre quotidien.
Gérardmer
TERRAINSitué sur le Lieu-Dit le Beillard à l’entrée de Gérardmer (88400), ce terrain à bâtir de 1949 m² bénéficie d’un emplacement privilégié à proximité des commodités locales et des infrastructures essentielles, en bordure d’une départementale.Cette parcelle offre un cadre paisible et propice à la construction d’activités économiques, conformément à la zone UE du PLU de la ville.Parfaitement adapté pour un projet commercial ou entrepreneurial.Les réseaux d’eau, d’électricité et de télécommunication sont facilement accessibles facilitant ainsi toute future implantation.À noter que l’assainissement autonome est à prévoir.De plus, une servitude de passage déjà existante assure un accès pratique et direct à la propriété.Il représente une opportunité exceptionnelle pour des investisseurs ou porteurs de projet en quête d’un emplacement stratégique.Les informations sur les risques auxquels ce bien est exposé sont disponibles sur le site Géorisques : www.georisques.gouv.frPrix de vente : 198 000 €Honoraires charge vendeurContactez votre consultant megAgence : Charlotte PICART, Tél. : (Numéro supprimé), E-mail : (Email supprimé) – EI – Agent commercial immatriculé au RSAC de EPINAL sous le numéro 943 437 871
Granges-Aumontzey
TERRAINNous sommes ravis de vous présenter ce terrain à vendre d’une surface généreuse de 755 m², situé à Granges-sur-Vologne, dans le département des Vosges. Ce terrain viabilisé est une opportunité exceptionnelle pour concrétiser votre projet de construction de maison dans un environnement paisible et accueillant. Granges-sur-Vologne se distingue par son cadre naturel idyllique, son atmosphère tranquille et la qualité de vie qu’elle offre à ses habitants. Son agencement et ses caractéristiques séduisantes en font un lieu idéal pour bâtir le foyer de vos rêves. Idéalement situé dans le Grand Est, Granges-sur-Vologne bénéficie de plusieurs atouts majeurs. La ville est entourée de paysages vallonnés et de forêts, offrant de nombreuses possibilités de randonnées et d’activités de plein air. Vous trouverez également à proximité des commerces, des écoles et des services de santé, garantissant un quotidien pratique et agréable. De plus, la ville est facilement accessible grâce à des voies de communication bien développées, tout en préservant un cadre de vie paisible. Ce terrain, avec son emplacement privilégié, vous offre une diversité d’options et de conveniences qui sauront certainement satisfaire vos besoins. Ne laissez pas passer cette occasion unique d’acquérir un terrain offrant un fort potentiel. Contactez-nous dès aujourd’hui pour explorer cette opportunité et commencer à imaginer la maison de vos rêves. À noter qu’en tant que constructeur, nous ne sommes pas mandatés pour réaliser la vente de ce terrain.
Granges-Aumontzey
TERRAIN ET MAISONNous vous proposons cette maison neuve, baptisée Focus 80, conçue pour répondre à vos attentes d’un foyer moderne et économique. Avec ses 80 m² judicieusement répartis, elle incarne la maison familiale idéale à un prix défiant toute concurrence.La Focus 80 se distingue par son agencement optimal comprenant 3 chambres confortables, permettant à chaque membre de la famille de bénéficier de son espace personnel. Le vaste séjour, cœur de la maison, promet de beaux moments de convivialité et de partage. Cette maison de 4 pièces est également dotée d’un garage intégré, pratique pour sécuriser votre véhicule ou pour un espace de rangement supplémentaire.Construite avec des matériaux de qualité, dont des briques sélectionnées pour leur durabilité et leur esthétique, la Focus 80 allie robustesse et design. Elle est équipée selon vos préférences avec des options très demandées telles que le chauffage au gaz ou par pompe à chaleur, et des sanitaires de grandes marques, assurant ainsi un confort quotidien inégalé.Mais ce qui rend cette maison particulièrement attractive, c’est son engagement envers l’environnement et votre portefeuille. La Focus 80 est une maison basse consommation, rigoureusement conçue pour respecter les normes de la RE2020. Cela signifie des factures d’énergie réduites et un impact environnemental minimal, pour une qualité de vie améliorée.Chez Maisons Batilor, nous nous engageons à lutter pour votre pouvoir d’achat en vous offrant cette maison neuve à un prix indécent et imbattable. La Focus 80 est la preuve vivante que confort, modernité et responsabilité écologique peuvent aller de pair sans sacrifier la qualité.Ne laissez pas passer cette opportunité de construire la maison de vos rêves, adaptée à vos besoins et respectueuse de l’environnement. La Focus 80 vous attend pour commencer un nouveau chapitre de votre vie.
Granges-Aumontzey
TERRAINNous avons le plaisir de vous proposer un terrain à vendre d’une belle superficie situé à Granges-sur-Vologne, une charmante commune des Vosges. Ce terrain viabilisé offre une toile de fond idéale pour la réalisation de votre projet de construction de maison. Ce cadre verdoyant et paisible est parfait pour ceux qui souhaitent s’établir dans un environnement naturel tout en bénéficiant des commodités urbaines. Granges-sur-Vologne, au cœur du département des Vosges et de la région Grand Est, se distingue par sa proximité avec des sites touristiques d’exception et de nombreuses activités de plein air. La ville offre un cadre de vie agréable, avec des commerces de proximité, des écoles et des infrastructures sportives. Profitez des magnifiques paysages de la région, parfaits pour les amoureux de la nature et des randonnées. N’attendez plus pour découvrir le potentiel de ce terrain et envisager le projet de vos rêves dans cet écrin de verdure. Ne ratez pas cette opportunité unique d’investir dans un terrain avec un potentiel exceptionnel. Contactez-nous pour plus d’informations?! À noter qu’en tant que constructeur, nous ne sommes pas mandatés pour réaliser la vente de ce terrain.
L’actualité immobilière à Granges-Aumontzey
27/11/2023
02/11/2023
30/10/2023
20/10/2023
16/10/2023
16/10/2023