Images
Description
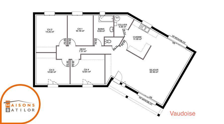
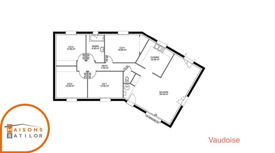
Nous vous proposons cette maison neuve, baptisée Vaudoise, qui allie avec brio l'esthétique d'une maison en V au côté pratique d'une maison traditionnelle à étage. Conçue pour répondre aux attentes des familles modernes, la Vaudoise offre une surface habitable de 113 m², parfaitement répartie pour maximiser le confort et l'espace de vie.
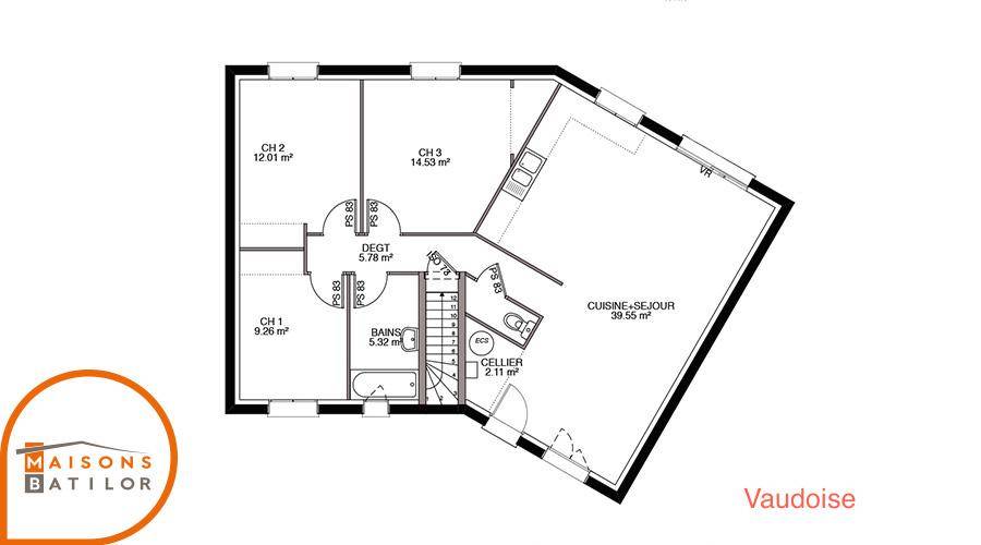
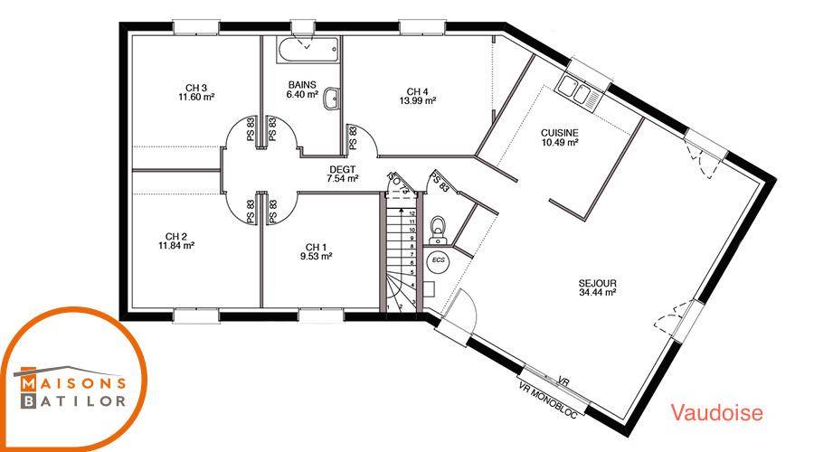
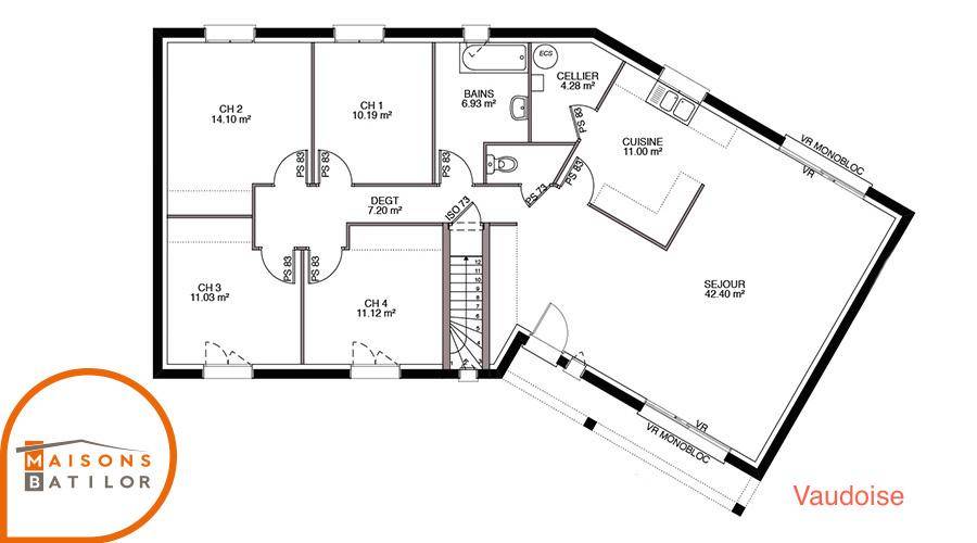
Cette demeure se distingue par ses 4 chambres spacieuses, permettant à chaque membre de la famille de bénéficier de son propre espace, et ses 4 pièces lumineuses qui invitent à la convivialité et au partage. Les combles aménageables offrent un potentiel supplémentaire pour créer un espace personnalisé selon vos besoins, qu'il s'agisse d'une salle de jeux, d'un bureau ou d'une chambre supplémentaire.
La Vaudoise est également équipée de deux salles de bains, garantissant ainsi une fonctionnalité optimale lors des routines matinales ou des moments de détente. Les grandes pièces, pensées pour le bien-être de ses habitants, favorisent une circulation fluide et une ambiance agréable tout au long de l'année.
Parmi les options les plus plébiscitées par nos clients, la Vaudoise répond aux exigences de la basse consommation et est conforme à la norme RE2020, assurant ainsi une efficacité énergétique de premier ordre. Cette maison neuve est donc non seulement un choix respectueux de l'environnement, mais elle permet également de réaliser des économies significatives sur les factures d'énergie.
La Vaudoise est une invitation à vivre dans une maison qui respecte à la fois l'environnement et les besoins de ses occupants. Avec ses caractéristiques soigneusement pensées et ses options répondant aux demandes les plus exigeantes, cette maison est le choix idéal pour ceux qui cherchent à allier confort, esthétique et performance énergétique. Faites le premier pas vers la maison de vos rêves en choisissant la Vaudoise.
Logement susceptibles de vous intéresser
Nous vous proposons de découvrir aussi cette sélection de logements situés à moins de 10km de Igney et qui seraient susceptibles de vous intéresser.
Igney
TERRAINDécouvrez ce magnifique terrain à vendre, d’une superficie généreuse de 1870 m², idéalement situé dans la charmante commune d’Igney, au cœur des Vosges. Ce terrain, entièrement viabilisé, offre un cadre parfait pour la construction de votre future maison. Profitez d’un environnement calme et ensoleillé, propice à l’épanouissement de votre projet d’habitat. Exprimez votre créativité et donnez vie à la maison de vos rêves dans ce lieu où tranquillité et espace se rencontrent. Igney, située dans la région Grand Est, est une ville qui combine le charme de la nature et les commodités urbaines. À proximité, vous trouverez différents services et activités locales qui enrichissent votre quotidien. Que ce soit des transports accessibles, des espaces verts pour vos moments de détente, ou encore des attractions locales à découvrir, tout est à portée de main. L’environnement serein et les paysages pittoresques font d’Igney un lieu de vie de choix, propice à une qualité de vie supérieure. Ne manquez pas cette opportunité unique d’acquérir un terrain qui saura combler vos attentes tant par son potentiel que par son environnement. Contactez-nous dès aujourd’hui pour discuter de ce projet qui pourrait devenir le vôtre. À noter qu’en tant que constructeur, nous ne sommes pas mandatés pour réaliser la vente de ce terrain.
Igney
TERRAIN ET MAISONNous vous proposons cette maison neuve, baptisée Vaudoise, qui allie avec brio l’esthétique d’une maison en V au côté pratique d’une maison traditionnelle à étage. Conçue pour répondre aux attentes des familles modernes, la Vaudoise offre une surface habitable de 113 m², parfaitement répartie pour maximiser le confort et l’espace de vie.Cette demeure se distingue par ses 4 chambres spacieuses, permettant à chaque membre de la famille de bénéficier de son propre espace, et ses 4 pièces lumineuses qui invitent à la convivialité et au partage. Les combles aménageables offrent un potentiel supplémentaire pour créer un espace personnalisé selon vos besoins, qu’il s’agisse d’une salle de jeux, d’un bureau ou d’une chambre supplémentaire.La Vaudoise est également équipée de deux salles de bains, garantissant ainsi une fonctionnalité optimale lors des routines matinales ou des moments de détente. Les grandes pièces, pensées pour le bien-être de ses habitants, favorisent une circulation fluide et une ambiance agréable tout au long de l’année.Parmi les options les plus plébiscitées par nos clients, la Vaudoise répond aux exigences de la basse consommation et est conforme à la norme RE2020, assurant ainsi une efficacité énergétique de premier ordre. Cette maison neuve est donc non seulement un choix respectueux de l’environnement, mais elle permet également de réaliser des économies significatives sur les factures d’énergie.La Vaudoise est une invitation à vivre dans une maison qui respecte à la fois l’environnement et les besoins de ses occupants. Avec ses caractéristiques soigneusement pensées et ses options répondant aux demandes les plus exigeantes, cette maison est le choix idéal pour ceux qui cherchent à allier confort, esthétique et performance énergétique. Faites le premier pas vers la maison de vos rêves en choisissant la Vaudoise.
Bouxières-aux-Bois
TERRAIN ET MAISONNous vous proposons cette maison neuve, baptisée la Belmontoise, un modèle de maison qui allie élégance et fonctionnalité dans un design en L moderne. Avec une surface habitable de 108 m², cette maison est conçue pour offrir un confort optimal et un cadre de vie agréable à toute famille. Elle dispose de 4 chambres spacieuses et de 4 pièces bien agencées, permettant à chacun de trouver son espace personnel tout en favorisant les moments de convivialité.La Belmontoise se distingue par son garage intégré et en avancée, une caractéristique pratique qui optimise l’espace de vie intérieur tout en offrant un accès facile et sécurisé à votre véhicule. La conception en L de la maison n’est pas seulement esthétique; elle permet également de délimiter naturellement les espaces extérieurs, créant ainsi un environnement intime pour vos moments de détente en plein air.Construite dans le respect des normes RE2020, cette maison basse consommation est un choix judicieux pour les acquéreurs soucieux de l’environnement et désireux de réaliser des économies d’énergie. La Belmontoise est équipée de menuiseries en aluminium et propose, selon vos préférences, un toit à 2 ou 4 pans, ainsi qu’un crépis coloré parmi les options les plus plébiscitées par nos clients. Ces options, alliées à une isolation performante, garantissent un confort thermique et acoustique de premier ordre tout au long de l’année.Ce modèle de maison, avec son rapport qualité-prix séduisant, offre un espace de plain-pied avantageux et modulable, idéal pour s’adapter à vos besoins et à ceux de votre famille. La Belmontoise est la promesse d’un foyer chaleureux, où chaque détail a été pensé pour répondre à vos attentes de confort, de style et de durabilité.Choisir la Belmontoise, c’est opter pour une maison neuve, moderne et conforme aux dernières normes énergétiques, prête à accueillir votre famille dans les meilleures conditions. N’attendez plus pour faire de ce lieu votre nouveau chez-vous, un espace où chaque
Bouxières-aux-Bois
TERRAINDécouvrez ce terrain unique à Bouxières-aux-Bois, d’une superficie généreuse au cœur des Vosges. Entièrement viabilisé, ce site est idéal pour la construction de votre future maison, vous offrant ainsi la possibilité de créer un cadre de vie qui vous ressemble. Situé dans un environnement tranquille, ce terrain bénéficie d’un cadre champêtre sans vis-à-vis, propice à la détente et à l’épanouissement en famille. La ville de Bouxières-aux-Bois, nichée dans le département des Vosges en région Grand Est, se distingue par sa proximité avec de nombreuses attractions locales et ses commodités accessibles. Profitez de la quiétude de ses rues tout en restant à quelques pas des services essentiels tels que les commerces, établissements scolaires et transports en commun, avec un arrêt de bus à proximité. L’environnement calme et verdoyant de cette charmante ville vous promet des moments de sérénité tout en offrant un cadre de vie dynamique et convivial. N’attendez plus pour saisir cette opportunité unique d’acquérir un terrain au potentiel exceptionnel. Ce projet est une invitation à réaliser vos rêves et à construire un foyer sur mesure. À noter qu’en tant que constructeur, nous ne sommes pas mandatés pour réaliser la vente de ce terrain.
Bouxières-aux-Bois
TERRAINEn exclusivité, à vendre terrain à bâtir de 1235m², non viabilisé, entouré de nature au calme absolu, convient à tout tout de plan. A 10 minutes de la voie rapide et 15 minutes de Thaon les Vosges. Les honoraires sont à la charge du vendeur.Les informations sur les risques auxquels ce bien est exposé sont disponibles sur le site Géorisques : www. georisques. gouv. fr.Réseau Immobilier CAPIFRANCE – Votre agent commercial (RSAC N(Numéro supprimé) – Greffe de EPINAL) Said ATAMNA Entrepreneur Individuel (Numéro supprimé) – Réf.908471
Dogneville
TERRAINBAISSE DE PRIX !!! David Douillet, agent indépendant 3G IMMO vous propose un terrain plat de plus de 1500 m² en 2 parcelles, à 3 minutes d’Epinal. Situé au calme, exposition SUD OUEST, il est viabilisé et n’attend plus que son futur propriétaire avec un projet de construction, possibilité d’implanter 2 maisons. A noter la présence d’un bâtiment à usage de garage et stockage sur la parcelle. Accès voie rapide aisé, nombreuses associations et clubs sportifs dans le dynamique village de Dogneville, écoles, garderie et cantine scolaire sur place, ramassage bus pour les plus grands, boulangerie, pizzéria, divers commerces et entreprises, pharmacie, kiné et infirmières notamment, sur place. Pour découvrir rapidement ce terrain (rare dans le secteur) et appréhender l’implantation de votre futur projet, n’hésitez pas à me contacter. Honoraires de 6.94 % TTC inclus à la charge de l’acquéreur (72 000 hors honoraires)Votre agent commercial 3G IMMO sur place EI – David DOUILLET inscrit au RSAC d’EPINAL n° 504 063 900 Selon l’article L.561.5 du Code Monétaire et Financier, pour l’organisation de la visite, la présentation d’une pièce d’identité vous sera demandée.Les informations sur les risques auxquels ce bien est exposé sont disponibles sur le site Géorisques : www.georisques.gouv.frLes informations sur les risques auxquels ce bien est exposé sont disponibles sur le site Géorisques : www.georisques.gouv.fr
Capavenir Vosges
TERRAINEn exclusivité, proche de Thaon les Vosges à Domèvre sur Durbion, terrain à bâtir de 850 m², non viabilisé, plat, au calme et sans vis à vis.Adapté aux différents types de constructions.Ecole maternelle et primaire à proximité, avec cantine et garderie. Les honoraires sont à la charge du vendeur.Les informations sur les risques auxquels ce bien est exposé sont disponibles sur le site Géorisques : www. georisques. gouv. fr.Réseau Immobilier CAPIFRANCE – Votre agent commercial (RSAC N(Numéro supprimé) – Greffe de EPINAL) Said ATAMNA Entrepreneur Individuel (Numéro supprimé) – Réf.897260
Villoncourt
TERRAINVILLONCOURT, à Proximité des communes de Thaon-les-Vosges, dans l’arc de l’agglomération d’Epinal, des axes autoroutiers de Jeuxey, offre une alternative à votre investissement immobilier.A 10 min, la ville d’Épinal est la préfecture des Vosges, située dans la région Grand Est de la France. La ville est traversée par la Moselle et entourée de forêts, ce qui en fait un cadre verdoyant. Elle est surtout connue pour son imagerie, un savoir-faire artisanal qui a donné naissance aux célèbres « Images d’Épinal ». La ville possède un patrimoine historique intéressant, avec des monuments comme la basilique Saint-Maurice et les vestiges du château.Épinal bénéficie également d’une économie diversifiée, avec une présence notable dans les secteurs du bois et du papier, et d’un dynamisme culturel, grâce à ses musées et événements annuels.L’agglomération de Thaon les Vosges avec la communauté de commune Cap Avenir développe une importante zone économique, ainsi que la zone industrielle de Golbey avec la papeterie de NORSKE SKOG, TRANE Réfrigération et de nombreux prestataires comme la logistique associée au transport etc…Et d’une importante zone commerciale avec le secteur du Saut le Cerf et de la VoivreA 40 min, se situent les zones industrielles Sud-Ouest de l’agglomération de Nancy, avec ses nombreuses facultés et écoles d’IngénieursA Villoncourt vous profiterez des avantages de la campagne tout en étant proche de toutes les commoditésDEMANDEZ VOTRE SIMULATION DE PRET IMMOBILIER Jean Vogel N° ORIAS 15004700 Les honoraires sont à la charge du vendeur.Les informations sur les risques auxquels ce bien est exposé sont disponibles sur le site Géorisques : www. georisques. gouv. fr.Réseau Immobilier CAPIFRANCE – Votre agent commercial (RSAC N(Numéro supprimé) – Greffe de NANCY) Jean VOGEL Entrepreneur Individuel à Responsabilité Limitée (Numéro supprimé) – Réf.880303
Villoncourt
TERRAINVILLONCOURT, à Proximité des communes de Thaon-les-Vosges, dans l’arc de l’agglomération d’Epinal, des axes autoroutiers de Jeuxey, offre une alternative à votre investissement immobilier.A 10 min, la ville d’Épinal est la préfecture des Vosges, située dans la région Grand Est de la France. La ville est traversée par la Moselle et entourée de forêts, ce qui en fait un cadre verdoyant. Elle est surtout connue pour son imagerie, un savoir-faire artisanal qui a donné naissance aux célèbres « Images d’Épinal ». La ville possède un patrimoine historique intéressant, avec des monuments comme la basilique Saint-Maurice et les vestiges du château.Épinal bénéficie également d’une économie diversifiée, avec une présence notable dans les secteurs du bois et du papier, et d’un dynamisme culturel, grâce à ses musées et événements annuels.L’agglomération de Thaon les Vosges avec la communauté de commune Cap Avenir développe une importante zone économique, ainsi que la zone industrielle de Golbey avec la papeterie de NORSKE SKOG, TRANE Réfrigération et de nombreux prestataires comme la logistique associée au transport etc…Et d’une importante zone commerciale avec le secteur du Saut le Cerf et de la VoivreA 40 min, se situent les zones industrielles Sud-Ouest de l’agglomération de Nancy, avec ses nombreuses facultés et écoles d’IngénieursA Villoncourt vous profiterez des avantages de la campagne tout en étant proche de toutes les commoditésDEMANDEZ VOTRE SIMULATION DE PRET IMMOBILIER Jean Vogel N° ORIAS 15004700 Les honoraires sont à la charge du vendeur.Les informations sur les risques auxquels ce bien est exposé sont disponibles sur le site Géorisques : www. georisques. gouv. fr.Réseau Immobilier CAPIFRANCE – Votre agent commercial (RSAC N(Numéro supprimé) – Greffe de NANCY) Jean VOGEL Entrepreneur Individuel à Responsabilité Limitée (Numéro supprimé) – Réf.879537
L’actualité immobilière à Igney
27/11/2023
02/11/2023
30/10/2023
20/10/2023
16/10/2023
16/10/2023