Images
Description
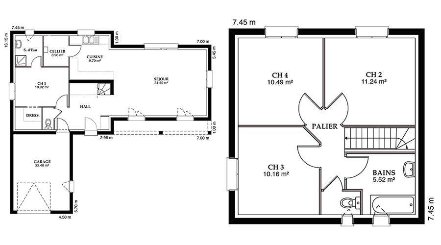
Nous vous proposons cette maison neuve, baptisée Lubéronne, qui incarne l'élégance et le confort moderne tout en s'inspirant du charme intemporel provençal. Avec une surface généreuse de 135 m², cette demeure est conçue pour répondre aux attentes des plus exigeants, alliant fonctionnalité et esthétique.
La Lubéronne se distingue par sa tour caractéristique, offrant une avancée architecturale remarquable, et sa galerie, qui invite à la détente et à la contemplation des paysages environnants. Le double garage spacieux assure un confort pratique au quotidien, répondant ainsi aux besoins de stationnement et de rangement.
Cette maison est composée de 4 chambres confortables, regroupées dans la tour pour préserver l'intimité de chacun, et de 4 pièces lumineuses, dont une partie jour significative qui baigne l'espace de vie en lumière naturelle, créant une atmosphère chaleureuse et accueillante.
Les options les plus plébiscitées, telles que les menuiseries en aluminium, la domotique pour une maison connectée et un crépis coloré, sont disponibles pour personnaliser votre maison selon vos goûts et vos besoins. Ces éléments ajoutent une touche de modernité et de confort, faisant de la Lubéronne un lieu de vie unique et personnalisé.
Construite dans le respect des normes de la RE2020, cette maison neuve est synonyme de basse consommation, garantissant ainsi une efficacité énergétique optimale et un respect de l'environnement. Ce choix responsable contribue à réduire les dépenses énergétiques tout en offrant un cadre de vie sain et agréable.
La Lubéronne, avec son style provençal revisité et ses prestations de qualité, est proposée en 3 plans différents, permettant de s'adapter à vos projets de vie et à vos envies. Faites le choix d'une maison qui allie tradition et innovation, pour un quotidien empreint de bien-être.
Logement susceptibles de vous intéresser
Nous vous proposons de découvrir aussi cette sélection de logements situés à moins de 10km de Saulxures-sur-Moselotte et qui seraient susceptibles de vous intéresser.
Saulxures-sur-Moselotte
TERRAINVous rêvez d’une maison contemporaine avec terrasses ou d’un chalet chaleureux au cœur des Vosges ?Ce terrain de 961 m², situé parcelle AX 581, est fait pour vous. Terrain viabilisé – prêt à accueillir votre projet. Relié au chauffage communal (très économique) Accès par le haut (rue du Bois des Dames). Quartier résidentiel prisé, composé uniquement de constructions récentes et spacieuses. À 2 minutes à pied du centre-ville, grâce aux sentiers piétons qui rejoignent les commodités. Vue panoramique exceptionnelle sur le village, la forêt et les montagnes environnantes. À savoir : le terrain est en pente (accès par le haut). La construction nécessitera un sous-sol et un terrassement adapté. Cette configuration permet cependant de créer des maisons d’architecte spectaculaires ou de magnifiques chalets avec terrasses plein sud et vues imprenables. Un cadre de vie unique : Saulxures-sur-Moselotte offre non seulement des sentiers de randonnée et une nature préservée, mais aussi un très beau lac aménagé avec activités nautiques et détente au bord de l’eau. Un atout apprécié aussi bien par les habitants que par les vacanciers, renforçant l’attractivité de la commune. Localisation : Rue du Bois des Dames – Saulxures-sur-Moselotte (Vosges). Le plan cadastral avec la parcelle (AX 581) fourni dans les photos de l’annonce. Une opportunité rare : de grands terrains dans ce secteur deviennent de plus en plus rares. Ne manquez pas ce cadre privilégié et recherché pour construire votre futur cocon dans les Hautes Vosges.Ce terrain ne correspond pas parfaitement à vos critères, voici les autres terrains voisins disponibles à la vente :AX 643 : 1 785m2AX 644 : 1 505m2AX 645 : 1 402m2AX 646 : 1 347m2AX 648 : 1 560m2AX 582 : 1 100m2Contactez Anne REMY OPTIMHOME pour plus d’informations. Les honoraires d’agence sont à la charge de l’acquéreur, soit 13,50% TTC du prix hors honoraires.Les informations sur les risques auxquels ce bien est exposé sont disponibles sur le site Géorisques : www. georisques. gouv. fr.Contactez Anne REMY Entrepreneur Individuel, Agent commercial OptimHome (RSAC N(Numéro supprimé) Greffe de EPINAL) (Numéro supprimé) (réf. 591123 )
Le Thillot
TERRAINExclusivement chez OPTIMHOME Anne REMY, votre agent mandataire vous propose à la vente, au coeur des Montagnes, sur la commune de LE THILLOT 88160, un terrain à bâtir d’une surface de 1090m².Très bonne exposition. Environnement verdoyant et très calme.Libre de constructeur.Soumis au règlement national d’urbanisme (RNU).Distance LA BRESSE 18km / GERARDMER 30km / REMIREMONT 24km. Les honoraires sont à la charge du vendeur.Les informations sur les risques auxquels ce bien est exposé sont disponibles sur le site Géorisques : www. georisques. gouv. fr.Contactez Anne REMY Entrepreneur Individuel, Agent commercial OptimHome (RSAC N(Numéro supprimé) Greffe de EPINAL) (Numéro supprimé) (réf. 595332 )
Saulxures-sur-Moselotte
TERRAINDécouvrez ce charmant terrain de 1100 m² situé à Saulxures-sur-Moselotte, dans le département des Vosges, en région Grand Est. Ce terrain non viabilisé représente une opportunité idéale pour un projet de construction de maison. Immergez-vous dans un cadre naturel propice à l’épanouissement familial, où le calme et la sérénité prévalente. Avec sa taille généreuse et son potentiel, ce terrain saura accueillir votre projet de vie. Saulxures-sur-Moselotte est une petite commune authentique, offrant un cadre de vie agréable et de nombreuses commodités. Vous apprécierez la proximité de la nature, avec des sentiers de randonnée et des paysages pittoresques à explorer. La ville propose également des services de base, des commerces et des activités de plein air qui raviront les amoureux des grands espaces. Saulxures-sur-Moselotte est donc non seulement un lieu de résidence, mais aussi un véritable havre de paix à découvrir. Ce terrain présente un potentiel indéniable pour ceux qui cherchent à construire leur rêve. N’attendez plus pour envisager cette opportunité unique d’acquérir ce bien ! À noter qu’en tant que constructeur, nous ne sommes pas mandatés pour réaliser la vente de ce terrain.
Saulxures-sur-Moselotte
TERRAIN ET MAISONNous vous proposons cette maison neuve, baptisée Lubéronne, qui incarne l’élégance et le confort moderne tout en s’inspirant du charme intemporel provençal. Avec une surface généreuse de 135 m², cette demeure est conçue pour répondre aux attentes des plus exigeants, alliant fonctionnalité et esthétique.La Lubéronne se distingue par sa tour caractéristique, offrant une avancée architecturale remarquable, et sa galerie, qui invite à la détente et à la contemplation des paysages environnants. Le double garage spacieux assure un confort pratique au quotidien, répondant ainsi aux besoins de stationnement et de rangement.Cette maison est composée de 4 chambres confortables, regroupées dans la tour pour préserver l’intimité de chacun, et de 4 pièces lumineuses, dont une partie jour significative qui baigne l’espace de vie en lumière naturelle, créant une atmosphère chaleureuse et accueillante.Les options les plus plébiscitées, telles que les menuiseries en aluminium, la domotique pour une maison connectée et un crépis coloré, sont disponibles pour personnaliser votre maison selon vos goûts et vos besoins. Ces éléments ajoutent une touche de modernité et de confort, faisant de la Lubéronne un lieu de vie unique et personnalisé.Construite dans le respect des normes de la RE2020, cette maison neuve est synonyme de basse consommation, garantissant ainsi une efficacité énergétique optimale et un respect de l’environnement. Ce choix responsable contribue à réduire les dépenses énergétiques tout en offrant un cadre de vie sain et agréable.La Lubéronne, avec son style provençal revisité et ses prestations de qualité, est proposée en 3 plans différents, permettant de s’adapter à vos projets de vie et à vos envies. Faites le choix d’une maison qui allie tradition et innovation, pour un quotidien empreint de bien-être.
Saulxures-sur-Moselotte
TERRAINAvis aux acheteurs en quête d’un projet de construction dans un cadre naturel exceptionnel?! Ce terrain viabilisé d’une superficie généreuse de 800 m² est situé dans la charmante commune de Saulxures-sur-Moselotte, au cœur des Vosges. Idéal pour l’érection d’une maison familiale, ce terrain vous permettra de réaliser le foyer dont vous avez toujours rêvé, tout en profitant d’un environnement paisible et verdoyant. Ne manquez pas cette occasion de bâtir votre havre de paix au sein d’une communauté accueillante. Saulxures-sur-Moselotte, située dans le département des Vosges, est une ville qui allie le charme des paysages montagnards à la proximité des commodités. Vous serez séduit par ses nombreuses attractions, notamment les sentiers de randonnée, les activités de plein air et le panorama époustouflant qu’offre la région. De plus, cette commune dispose d’infrastructures locales adéquates, telles que des commerces, des écoles et des services de santé, garantissant ainsi un cadre de vie agréable et pratique. En choisissant ce terrain, vous optez pour un lieu de vie qui allie tranquillité et accessibilité. Ne laissez pas passer cette opportunité exceptionnelle d’acquérir un terrain propice à la construction de votre future maison. Contactez-nous pour en savoir plus et explorer le potentiel que ce bien immobilier a à offrir?! À noter qu’en tant que constructeur, nous ne sommes pas mandatés pour réaliser la vente de ce terrain.
Saulxures-sur-Moselotte
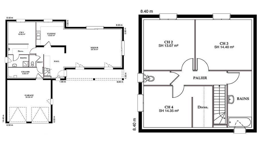
TERRAIN ET MAISONNous vous proposons cette maison neuve, baptisée Vésontia, un modèle qui allie élégance, fonctionnalité et respect de l’environnement. Avec une surface généreuse de 109 m², cette maison de plain-pied en forme de L est conçue pour s’adapter harmonieusement à la vie de famille, tout en offrant des espaces de vie conviviaux et bien organisés.La Vésontia se distingue par ses 4 chambres spacieuses et ses 4 pièces lumineuses, promettant confort et intimité à chaque membre de la famille. Le garage intégré assure une transition fluide entre l’extérieur et l’intérieur, tandis que le porche d’entrée accueille vos invités avec élégance et simplicité.Conscients des besoins variés de nos clients, nous offrons la possibilité de personnaliser votre maison avec des options très demandées telles qu’un Car Port supplémentaire, un garage plus spacieux ou même un sous-sol, permettant ainsi de créer un espace qui reflète véritablement votre style de vie et vos préférences.Avec 7 déclinaisons de base, la Vésontia est une invitation à concevoir une maison sur mesure à petit prix. Que vous rêviez d’un grand séjour pour vos réunions de famille, d’une suite parentale pour plus d’intimité, ou d’un bureau pour travailler en toute tranquillité, ce modèle s’adapte à toutes vos envies.Au-delà de son design attrayant et de sa flexibilité, la Vésontia est une maison écolo de basse consommation, conforme à la réglementation thermique 2020 (RE2020). Cela signifie que vous bénéficierez non seulement d’un confort optimal en toutes saisons, mais aussi d’économies significatives sur vos factures d’énergie.Choisir la Vésontia, c’est opter pour une maison qui respecte l’environnement tout en répondant à vos attentes de confort, de style et de fonctionnalité. Faites le premier pas vers la maison de vos rêves et laissez-nous vous accompagner dans cette belle aventure.
Vagney
TERRAINDécouvrez ce terrain d’exception d’une superficie de 1050 m², idéalement situé à Vagney, dans le département des Vosges. Entièrement viabilisé, ce terrain est parfaitement adapté pour un projet de construction de maison, vous offrant ainsi l’opportunité de réaliser votre rêve immobilier dans un cadre chaleureux et accueillant. Vocant un environnement paisible, ce terrain convoque une fusion harmonieuse entre la tranquillité de la nature et les commodités de la ville. Vagney, charmant village du Grand Est, est notoirement connu pour ses attraits touristiques et ses activités de plein air. Vous y trouverez un environnement propice pour les amateurs de randonnée, avec les magnifiques paysages vosgiens à portée de main. La ville est également dotée d’infrastructures locales de qualité, telles que des commerces, des écoles et des services de santé à proximité. L’accessibilité du terrain, ainsi que la convivialité des habitants, font de Vagney une destination prisée pour ceux en quête d’un cadre de vie agréable. Ne laissez pas passer cette opportunité rare d’acquérir un terrain au potentiel considérable. Contactez-nous dès aujourd’hui pour envisager votre futur projet sur ce terrain idéal. À noter qu’en tant que constructeur, nous ne sommes pas mandatés pour réaliser la vente de ce terrain.
Vagney
TERRAIN ET MAISONNous vous proposons cette maison neuve, baptisée Lubéronne, qui incarne l’élégance et le confort moderne tout en s’inspirant du charme intemporel provençal. Avec une surface généreuse de 135 m², cette demeure est conçue pour répondre aux attentes des plus exigeants, alliant fonctionnalité et esthétique.La Lubéronne se distingue par sa tour caractéristique, offrant une avancée architecturale remarquable, et sa galerie, qui invite à la détente et à la contemplation des paysages environnants. Le double garage spacieux assure un confort pratique au quotidien, répondant ainsi aux besoins de stationnement et de rangement.Cette maison est composée de 4 chambres confortables, regroupées dans la tour pour préserver l’intimité de chacun, et de 4 pièces lumineuses, dont une partie jour significative qui baigne l’espace de vie en lumière naturelle, créant une atmosphère chaleureuse et accueillante.Les options les plus plébiscitées, telles que les menuiseries en aluminium, la domotique pour une maison connectée et un crépis coloré, sont disponibles pour personnaliser votre maison selon vos goûts et vos besoins. Ces éléments ajoutent une touche de modernité et de confort, faisant de la Lubéronne un lieu de vie unique et personnalisé.Construite dans le respect des normes de la RE2020, cette maison neuve est synonyme de basse consommation, garantissant ainsi une efficacité énergétique optimale et un respect de l’environnement. Ce choix responsable contribue à réduire les dépenses énergétiques tout en offrant un cadre de vie sain et agréable.La Lubéronne, avec son style provençal revisité et ses prestations de qualité, est proposée en 3 plans différents, permettant de s’adapter à vos projets de vie et à vos envies. Faites le choix d’une maison qui allie tradition et innovation, pour un quotidien empreint de bien-être.
Vagney
TERRAINDécouvrez ce terrain à vendre de 1060 m², situé au cœur de Vagney, dans les magnifiques Vosges. Ce bien rare et viabilisé est idéal pour concevoir une maison qui vous ressemble, offrant un cadre de vie paisible tout en étant proche des commodités. Profitez de l’emplacement stratégique de ce terrain qui promet d’accueillir votre projet de construction dans un environnement propice à la vie familiale et au bien-être. Vagney, charmante commune du département des Vosges, est réputée pour son ambiance conviviale et ses atouts. Entourée de paysages naturels à couper le souffle, cette ville vous propose une multitude d’activités de plein air, des sentiers de randonnée aux pistes de ski à proximité. Profitez d’une bonne qualité de vie grâce à des commerces locaux, des écoles et des services à proximité, sans oublier l’accès rapide aux grandes voies de communication. Vagney est vraiment un lieu idéal pour ceux qui recherchent tranquillité et commodité. Ce terrain représente une occasion unique de réaliser votre rêve immobilier. N’attendez plus pour envisager cette opportunité d’achat qui saura séduire les plus exigeants. À noter qu’en tant que constructeur, nous ne sommes pas mandatés pour réaliser la vente de ce terrain.
L’actualité immobilière à Saulxures-sur-Moselotte
27/11/2023
02/11/2023
30/10/2023
20/10/2023
16/10/2023
16/10/2023