Images
Description
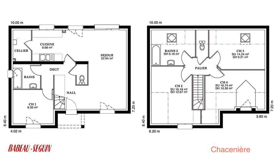
Sur ce terrain, nous vous proposons cette maison neuve : la Chacenière, un modèle de 100 m² conçu par Babeau-Seguin, constructeur reconnu pour offrir le meilleur rapport qualité/prix du marché.
Cette maison en L, à la fois originale et accueillante, dispose de 4 chambres et de 4 pièces, offrant ainsi tout l'espace nécessaire pour une vie familiale confortable. L'étage est composé d'un plancher avec une dalle étage en béton, garantissant robustesse et durabilité. Une charpente traditionnelle et une lucarne maçonnée viennent compléter l'ensemble, ajoutant du charme et du caractère à cette construction.
La Chacenière se distingue par sa cuisine totalement ouverte sur le séjour, créant un espace de vie convivial et lumineux. Le garage intégré est une option très demandée par nos clients, offrant un espace de rangement supplémentaire et une protection pour votre véhicule.
En choisissant cette maison, vous optez pour une construction basse consommation, conforme à la réglementation environnementale RE2020, vous assurant ainsi des économies d'énergie et un confort optimal tout au long de l'année.
Ne manquez pas cette opportunité de faire construire votre maison familiale avec Babeau-Seguin et de profiter d'un habitat moderne, économique et parfaitement adapté à vos besoins.
Logement susceptibles de vous intéresser
Nous vous proposons de découvrir aussi cette sélection de logements situés à moins de 10km de La Chapelle-sur-Oreuse et qui seraient susceptibles de vous intéresser.
Pont-sur-Yonne
TERRAINFiche N°Id-TCT177527 : PONT SUR YONNE Fiche BC177527 : Pont sur yonne, Terrain d’environ 1963 m2 de 1963 m2 – – Plus d’informations disponibles sur demande… – Mentions légales : Proposé à la vente à 26000 Euros (honoraires à la charge du vendeur) – Affaire suivie par Mr EDOUARD ROSSIGNOL (Agent immobilier – Responsable) – Reseau Immo-Diffusion Pont Sur Yonne – Pour plus d’informations, contactez notre secrétariat au (Numéro supprimé) (Appel gratuit ou prix d’une communication locale)
Soucy
TERRAIN ET MAISONSur ce terrain, nous vous proposons cette maison neuve : la Focus Cosy. Conçue par Babeau-Seguin, constructeur offrant le meilleur rapport qualité/prix du marché, cette maison de 79 m² est idéale pour les familles à la recherche d’un logement confortable et économique.La Focus Cosy se distingue par son design contemporain et ses finitions soignées. Avec ses 4 pièces, dont 3 chambres, cette maison de plain-pied offre un espace de vie bien pensé et harmonieux. Le vaste séjour-cuisine est un lieu convivial où il fait bon vivre, tandis que l’espace nuit garantit tranquillité et intimité.L’un des atouts majeurs de cette maison est son garage intégré, qui ajoute une touche de praticité supplémentaire. L’enduit bi-ton de la façade apporte une touche esthétique moderne et élégante.Cette maison neuve est également basse consommation et conforme à la RE2020, ce qui en fait un choix écologique et économique. Les options les plus demandées par nos clients, telles que les menuiseries en aluminium, peuvent être intégrées pour encore plus de confort et de modernité.En choisissant la Focus Cosy, vous optez pour une maison accessible à tous les budgets, sans compromis sur les équipements. Avec ses performances énergétiques et écologiques de pointe, cette maison bénéficie des dernières innovations technologiques et de toute l’expertise des Maisons Babeau-Seguin.Ne manquez pas cette opportunité de réaliser votre rêve de maison à un prix incroyablement attractif. La Focus Cosy est une maison pratique et élégante où votre famille se sentira immédiatement chez elle.
Soucy
TERRAINGrand terrain à bâtir à Soucy (89) Grand terrain plat à Soucy (89) d’une superficie de 3 441 m² dont 1271 m² constructibles. Une partie de terrain est un verger. Vue dégagée sur le village (1500 habitants) avec ses principaux commerces dont pharmacie. A 5 minutes de Sens et ses grandes surfaces. Écoles maternelle et primaire sur place. Ramassage scolaire pour lycée et collège.
Soucy
TERRAINTerrain à bâtir d’environ 1930 m2, en lot arrière, belle exposition dans un secteur calme. Largeur de 23 m, les fourreaux pour l’électricité, l’eau, l’assainissement et les pluviales sont passés jusqu’à la rue. Les raccordements aux réseaux sont à réaliser notamment le tout à l’égout. Situé dans un village avec commerces et école primaire, à 10 mn de la sortie A 19Les informations sur les risques auxquels ce bien est exposé sont disponibles sur le site Géorisques : www.georisques.gouv.frPrix de vente : 67 000 €Honoraires charge vendeurContactez votre consultant megAgence : Alain DE RYCKE, Tél. : (Numéro supprimé), E-mail : (Email supprimé) – EI – Agent commercial immatriculé au RSAC de SENS sous le numéro 488 781 832
Pont-sur-Yonne
TERRAINTerrain à vendre – Pont-sur-YonneVous rêvez de construire la maison qui vous ressemble ? Ce terrain situé sur la charmante commune de Pont-sur-Yonne est fait pour vous ! Localisation idéale, cadre agréable et proche des commodités. Parfait pour un projet de construction : laissez libre cours à votre imagination et donnez vie à vos envies !Ce bien offre un potentiel exceptionnel pour bâtir votre futur chez-vous. À découvrir sans tarder ! Contactez-moi au (Numéro supprimé) pour plus d’informations ou organiser une visite. Honoraires à la charge du vendeur.Les informations sur les risques auxquels ce bien est exposé sont disponibles sur le site Géorisques : www.georisques.gouv.fr .
Thorigny-sur-Oreuse
TERRAINMagnifique terrain plat et clos de 1750 m².Celui-ci est borné, l’eau est le réseau électrique se situe sur rue.Il faut prévoir un assainissement individuel.La façade du terrain mesure 24,50 mètres.Ce terrain est actuellement un verger.Cette annonce référence 253575 vous est présentée par votre agent commercial BSK Immobilier CATHERINE DORE (EIRL) immatriculé au RSAC de SENS (89100) sous le numéro 79187100700021.Prix du bien : 39 000,00 €Les honoraires d’agence sont à la charge du vendeur.Les informations sur les risques auxquels ce bien est exposé sont disponibles sur le site Géorisques : www.georisques.gouv.fr
Saint-Denis-lès-Sens
TERRAINDécouvrez ce terrain à vendre de 840 m² situé à Saint-Denis-lès-Sens, dans le département de l’Yonne. Ce terrain plat offre un cadre idéal pour la construction de votre future maison. Vous bénéficierez d’un emplacement au calme, tout en étant proche des commodités nécessaires à votre quotidien. La qualité de vie à Saint-Denis-lès-Sens attire de nombreux acquéreurs grâce à ses caractéristiques uniques et son ambiance conviviale, faisant de ce terrain une opportunité rare sur le marché. Saint-Denis-lès-Sens se distingue par sa proximité avec les commerces, les écoles, ainsi que les établissements de collège et lycée. La ville est parfaitement desservie, avec une gare à proximité et un accès rapide aux grands axes routiers et autoroutiers, facilitant ainsi vos déplacements. Vous profiterez également d’un quartier privilégié, offrant un cadre de vie paisible tout en restant proche des activités et des services. Ce terrain bénéficie ainsi d’un emplacement stratégique, à la fois calme et accessible. Ne laissez pas passer cette occasion d’investir dans un terrain avec un potentiel prometteur à Saint-Denis-lès-Sens. Contactez-nous dès maintenant pour discuter des détails et envisager ensemble la réalisation de votre projet immobilier.
Saint-Denis-lès-Sens
TERRAIN ET MAISONSur ce terrain, nous vous proposons cette maison neuve : l’Intimity L de la gamme Evasihome, un confort absolu.Parce qu’être parent n’est pas toujours facile quand la petite tribu remue dans la maison, et qu’on a tous besoin d’intimité et d’un lieu bien à soi, Babeau-Seguin propose une nouvelle gamme de maisons avec suite parentale, Evasihome. L’Intimity L va vous séduire, vous qui, après une longue journée, avez besoin de vous ressourcer dans votre espace privatif.Intimity L, parce que les parents aussi ont droit au meilleur?!Lorsqu’on construit une maison neuve, on pense avant tout au confort des enfants. Et si pour une fois cela changeait un peu?? Offrez-vous la chambre parentale que vous méritez?! Dotée d’un beau dressing et d’une salle d’eau, celle-ci est autonome, grâce à une porte-fenêtre donnant directement sur la terrasse bétonnée. Dans le reste de cette très belle maison en L, vous disposerez de deux chambres supplémentaires avec placards, un confortable espace de jour avec cuisine ouverte, un cellier et un garage intégré.Une maison qui vous offre le luxe à prix abordableLaissez-vous séduire par cette si belle maison de 94 m² où chaque membre de la famille trouvera sa place. Cette demeure est équipée d’une verrière, de prises USB murales, et d’une suite parentale. Les options les plus demandées par nos clients, comme l’enduit bi-ton et la domotique, sont également disponibles pour personnaliser votre maison selon vos envies.Cette maison neuve est basse consommation et conforme à la RE2020, garantissant une efficacité énergétique optimale et un respect des normes environnementales les plus récentes.Vous êtes convaincus?? Alors n’attendez pas, venez à notre rencontre, nous évoquerons ensemble votre projet de construction?!Babeau-Seguin, constructeur offrant le meilleur rapport qualité/prix du marché, est à votre service pour réaliser la maison de vos rêves.
Sergines
TERRAINDécouvrez ce magnifique terrain à vendre de 839 m², idéalement situé à Sergines proche de Pont sur Yonne. Ce terrain plat, bien exposé et au cadre champêtre, offre une opportunité exceptionnelle pour la construction de votre future maison. Avec un PLU non contraignant, vous aurez la liberté de réaliser le projet de vos rêves. Imaginez-vous profitant d’un environnement paisible tout en étant proche des commodités essentielles. Sergines, charmante commune de l’Yonne, bénéficie d’une localisation stratégique avec un cadre de vie agréable et verdoyant. Les écoles se trouvent à proximité et le collège à 10 km et lycée à Sens, garantissant un accès facile à l’éducation pour vos enfants. Cette ville est aussi réputée pour son calme et sa tranquillité, tout en offrant un accès rapide aux attractions locales. Profitez d’une atmosphère sereine tout en étant proche des services indispensables. Ce terrain présente un potentiel indéniable pour ceux qui recherchent un projet de construction harmonieux dans un cadre enchanteur. Ne laissez pas passer cette opportunité unique et contactez-nous dès aujourd’hui pour envisager votre avenir dans cet écrin de verdure.
L’actualité immobilière à La Chapelle-sur-Oreuse
27/11/2023
02/11/2023
30/10/2023
20/10/2023
16/10/2023
16/10/2023