Images
Description
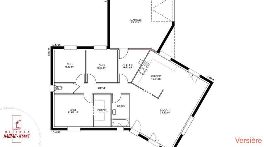
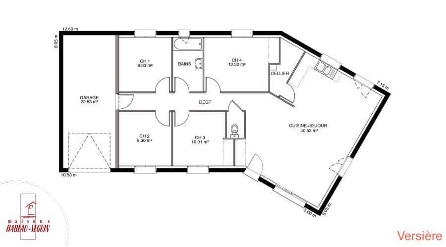
Sur ce terrain, nous vous proposons cette maison neuve : la Versière. Avec ses 112 m² de surface habitable, cette maison se distingue par son plan en V, offrant un brin d’originalité et une grande habitabilité. Elle dispose de 4 chambres et de 4 pièces, parfaitement adaptées pour accueillir une famille.
La Versière vous permet de choisir entre une toiture à 2 pans ou à 4 pans, selon vos préférences esthétiques. De plus, vous avez la possibilité d'ajouter un garage ou un sous-sol, pour encore plus de praticité et de rangement.
Les grandes baies coulissantes apportent une luminosité naturelle exceptionnelle à l'intérieur de la maison, créant une atmosphère chaleureuse et accueillante. Les options les plus demandées par nos clients, telles que les menuiseries en aluminium et la domotique, sont également disponibles pour personnaliser votre maison selon vos besoins et vos envies.
Cette maison de plain-pied est 100% économique grâce au respect de la nouvelle réglementation énergétique RE2020, ce qui en fait une maison basse consommation. Vous bénéficierez ainsi d'un confort optimal tout en réalisant des économies d'énergie.
Le constructeur Babeau-Seguin, reconnu pour offrir le meilleur rapport qualité/prix du marché, vous garantit une construction de haute qualité, conforme aux normes les plus récentes.
Ne manquez pas cette opportunité unique de devenir propriétaire d'une maison neuve, moderne et économe en énergie. Contactez-nous dès maintenant pour plus d'informations et pour planifier une visite de ce projet exceptionnel.
Logement susceptibles de vous intéresser
Nous vous proposons de découvrir aussi cette sélection de logements situés à moins de 10km de Les Bordes et qui seraient susceptibles de vous intéresser.

Malay-le-Grand
TERRAINGrâce à nos partenaires fonciers : Découvrez ce terrain à vendre d’une surface de 640 m², situé dans la charmante commune de Malay-le-Grand, dans le département de l’Yonne. Ce bien rare représente une opportunité idéale pour concrétiser votre projet de construction de maison individuelle. Le terrain, bien orienté, offre un cadre de vie paisible tout en étant proche des commodités essentielles. Profitez d’un environnement calme, tout en bénéficiant d’un accès facile aux transports, garantissant ainsi une qualité de vie agréable. Malay-le-Grand est une ville dynamique, proche de toutes les commodités nécessaires à votre quotidien. Les commerces de proximité et les écoles se trouvent à quelques pas, facilitant la vie des familles. Vous apprécierez également la sécurité du quartier recherché et la présence d’arrêts de bus à proximité. Avec ses nombreuses attractions locales et ses infrastructures développées, cette commune saura séduire les futurs propriétaires en quête d’un cadre de vie alliant tranquillité et accessibilité. N’attendez plus pour saisir cette opportunité unique d’acquérir un terrain prêt à accueillir votre futur projet immobilier et profiter de tous les avantages qu’offre Malay-le-Grand. Contactez-nous dès maintenant pour plus d’informations !

Malay-le-Grand
TERRAIN ET MAISONSur ce terrain, nous vous proposons cette maison neuve, la Longière, conçue par Babeau-Seguin, constructeur offrant le meilleur rapport qualité/prix du marché. Parfaitement conçue pour ce terrain, la Longière de 95 m² est une maison résolument moderne à mi-chemin entre style traditionnel et contemporain.Cette maison design a été pensée pour s’adapter aux terrains les plus étroits, avec une façade de seulement 8 mètres. Vous avez le choix entre une toiture à 2 pans ou à 4 pans, selon vos préférences esthétiques. La Longière se distingue par son garage intégré, son patio central et ses baies coulissantes qui apportent une luminosité exceptionnelle à l’intérieur.Elle se compose de 3 chambres spacieuses et de 4 pièces au total, offrant un espace de vie confortable et fonctionnel. Les options les plus demandées par nos clients, telles que les menuiseries en aluminium, sont également disponibles pour personnaliser votre maison selon vos goûts.En plus de son design attrayant, cette maison neuve est basse consommation et conforme à la réglementation RE2020, garantissant une performance énergétique optimale et un respect de l’environnement.Ne manquez pas cette opportunité unique de devenir propriétaire d’une maison moderne et éco-responsable, parfaitement adaptée à vos besoins et à votre style de vie. Contactez-nous dès maintenant pour plus d’informations et pour planifier une visite.

Dixmont
TERRAINGrâce à nos partenaires fonciers : À saisir, magnifique terrain non-viabilisé d’une superficie généreuse, bénéficiant d’une vue dégagée et sans vis-à-vis, idéalement situé à Dixmont, dans le département de l’Yonne. Ce terrain offre un cadre champêtre et calme, propice à la construction de votre maison familiale ou de votre projet de rêve. Sa situation en fait un lieu de vie privilégié, alliant tranquillité et espace. Ne manquez pas cette opportunité rare de réaliser vos ambitions immobilières dans un environnement serein. Dixmont, charmante commune de l’Yonne, se distingue par ses paysages bucoliques et son ambiance conviviale, à proximité de toutes les commodités nécessaires au quotidien. Choisir de s’installer ici, c’est profiter d’un cadre de vie agréable, tout en bénéficiant de la proximité des transports. Grâce aux écoles, commerces et services locaux, vous bénéficierez d’une qualité de vie indéniable. De plus, la région offre une variété d’activités de plein air et de sites historiques, parfaits pour les amateurs de nature et de culture. Ce terrain constitue une opportunité d’achat unique pour tous ceux qui souhaitent bâtir leur havre de paix au cœur d’une nature préservée. Ne tardez pas à envisager cette chance exceptionnelle de réaliser votre projet immobilier à Dixmont !

Dixmont
TERRAIN ET MAISONSur ce terrain, nous vous proposons cette maison neuve, la Sommière, conçue par Babeau-Seguin, constructeur offrant le meilleur rapport qualité/prix du marché. Avec une surface de 107 m², cette maison moderne en L se distingue par son design élégant et ses nombreuses options de personnalisation.La Sommière dispose de 4 chambres spacieuses et de 4 pièces, offrant un espace de vie confortable et fonctionnel pour toute la famille. Vous avez la possibilité de choisir entre un toit à 2 pans ou à 4 pans, selon vos préférences esthétiques et architecturales. De plus, cette maison peut être équipée d’un garage ou d’un sous-sol, selon vos besoins spécifiques.Cette maison neuve est basse consommation et conforme à la RE2020, garantissant une performance énergétique optimale et des économies sur vos factures d’énergie. La Sommière est disponible en plus de 10 versions, allant d’une surface de 78 m² à 148 m², ce qui en fait la maison plain-pied la plus déclinée de toute notre gamme.Avec ou sans garage intégré, avec ou sans galerie, la Sommière s’adapte parfaitement aux besoins et aux attentes de chacun. Nous lui décernons sans hésitation le prix de la maison sur mesure !Ne manquez pas cette opportunité unique de faire construire une maison qui répondra à toutes vos attentes et vous offrira un cadre de vie exceptionnel. Contactez-nous dès maintenant pour plus d’informations et pour découvrir toutes les options disponibles pour personnaliser votre future maison Sommière.

Les Bordes
TERRAINGrâce à nos partenaires fonciers : Nous sommes ravis de pouvoir vous présenter ce terrain à vendre de 1 500 m², situé à Les Bordes, un emplacement idéal pour concrétiser votre projet de construction de maison. Ce terrain viabilisé offre un cadre champêtre, sans vis-à-vis et bénéficie d’une exposition ensoleillée, garantissant un environnement serein et agréable. Avec sa tranquillité et ses caractéristiques uniques, il se prête parfaitement à la création d’un foyer familial ou d’une résidence secondaire. Les Bordes, une charmante commune du département de l’Yonne (89500), est réputée pour sa qualité de vie exceptionnelle. Située à proximité de transports, vous pourrez facilement accéder aux commodités locales, telles que les commerces, les écoles et les services de santé. De plus, la région regorge d’attractions naturelles et culturelles, offrant ainsi de nombreuses activités en plein air et des moments de loisirs en famille. Ce cadre de vie agréable attire de plus en plus de personnes souhaitant s’installer dans un environnement paisible tout en étant proche des principales villes. Ce terrain constitue une opportunité unique pour les acheteurs à la recherche d’une parcelle de rêve pour bâtir leur maison. Ne manquez pas cette chance et contactez-nous dès maintenant pour découvrir le potentiel de ce bien immobilier exceptionnel.

Les Bordes
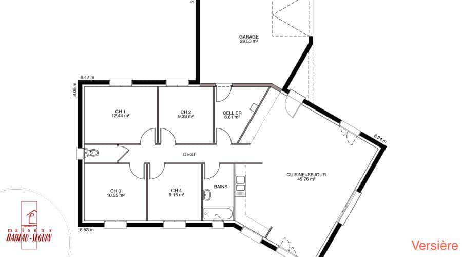
TERRAIN ET MAISONSur ce terrain, nous vous proposons cette maison neuve : la Versière. Avec ses 112 m² de surface habitable, cette maison se distingue par son plan en V, offrant un brin d’originalité et une grande habitabilité. Elle dispose de 4 chambres et de 4 pièces, parfaitement adaptées pour accueillir une famille.La Versière vous permet de choisir entre une toiture à 2 pans ou à 4 pans, selon vos préférences esthétiques. De plus, vous avez la possibilité d’ajouter un garage ou un sous-sol, pour encore plus de praticité et de rangement.Les grandes baies coulissantes apportent une luminosité naturelle exceptionnelle à l’intérieur de la maison, créant une atmosphère chaleureuse et accueillante. Les options les plus demandées par nos clients, telles que les menuiseries en aluminium et la domotique, sont également disponibles pour personnaliser votre maison selon vos besoins et vos envies.Cette maison de plain-pied est 100% économique grâce au respect de la nouvelle réglementation énergétique RE2020, ce qui en fait une maison basse consommation. Vous bénéficierez ainsi d’un confort optimal tout en réalisant des économies d’énergie.Le constructeur Babeau-Seguin, reconnu pour offrir le meilleur rapport qualité/prix du marché, vous garantit une construction de haute qualité, conforme aux normes les plus récentes.Ne manquez pas cette opportunité unique de devenir propriétaire d’une maison neuve, moderne et économe en énergie. Contactez-nous dès maintenant pour plus d’informations et pour planifier une visite de ce projet exceptionnel.

Maillot
TERRAINGrâce à nos partenaires fonciers : Découvrez ce terrain exceptionnel de 772 m², idéalement situé au cœur de la charmante commune de Maillot dans l’Yonne. Ce bien rare à vendre, non viabilisé, présente un potentiel incroyable pour la construction de votre future maison. Son emplacement privilégié dans un quartier recherché, ainsi que sa surface plane, en font une opportunité unique pour tous les projets personnels ou familiaux. Laissez libre cours à votre imagination et réalisez le domicile de vos rêves dans cette belle ville. Maillot, un véritable bijou de l’Yonne, vous séduira par ses commodités à proximité, ses transports accessibles avec un arrêt de bus à quelques pas, et son ambiance conviviale. La ville allie tranquillité et proximité des services de première nécessité, tout en offrant un cadre de vie paisible. Les charmantes attractions locales, telles que les parcs et les marchés, ajoutent au charme de cette commune vivante. Une belle qualité de vie vous attend dans cette région empreinte de culture et d’histoire. Ne manquez pas cette occasion unique de devenir propriétaire d’un terrain dans une localisation de choix. Contactez-nous dès aujourd’hui pour explorer le potentiel de ce bien d’exception et donner vie à votre projet immobilier !

Maillot
TERRAIN ET MAISONSur ce terrain, nous vous proposons cette maison neuve : la Provencière Urban Serie, un modèle moderne qui s’adapte parfaitement aux terrains urbains. Avec une surface de 82 m², cette maison dispose de 3 chambres et d’une pièce de vie spacieuse. Inspirée de l’architecture typique des maisons du sud de la France, la Provencière Urban Serie conserve tout le charme et le confort de la Provencière traditionnelle, tout en étant optimisée pour les terrains urbains. Avec une longueur de façade variant de 12 à 16 mètres, elle s’adapte à tous les terrains et permet de profiter des charmes de la Provencière où que vous souhaitiez faire construire.Les caractéristiques principales de cette maison incluent un garage intégré, une dalle étage en béton et des combles aménagés, offrant ainsi un espace de vie supplémentaire. Les options les plus demandées par nos clients, telles que la charpente traditionnelle, les menuiseries en aluminium et l’enduit bi-ton, sont également disponibles pour personnaliser votre maison selon vos goûts.Cette maison neuve est basse consommation et conforme à la réglementation environnementale RE2020, garantissant ainsi une performance énergétique optimale et un confort de vie inégalé.Le constructeur Babeau-Seguin, reconnu pour offrir le meilleur rapport qualité/prix du marché, vous accompagne dans la réalisation de votre projet immobilier. Ne manquez pas cette opportunité unique de devenir propriétaire d’une maison alliant tradition et modernité, parfaitement adaptée aux terrains urbains.

Les Vallées de la Vanne
TERRAINGrâce à nos partenaires fonciers : Découvrez ce terrain exceptionnel de 863 m² situé dans la charmante commune des Vallées de la Vanne, dans le département de l’Yonne. Arboré, sans vis-à-vis, ce terrain non viabilisé vous offre un cadre champêtre idéal pour le projet de construction de votre maison. Grâce à son PLU non contraignant, vous disposez d’une grande flexibilité pour réaliser la maison de vos rêves dans un environnement paisible, propice à une qualité de vie exceptionnelle. Ce bien se trouve à proximité du village de 89320, une localité prisée pour sa tranquillité et son ambiance conviviale. Vous profiterez des commodités locales telles que petits commerces, écoles, et infrastructures sportives. Les Vallées de la Vanne vous séduiront également par leurs paysages verdoyants et leurs nombreuses activités de plein air, offrant un cadre de vie agréable à seulement quelques minutes des grandes villes environnantes. Les connexions routières à proximité facilitent également vos déplacements vers les axes principaux de la région. Ne laissez pas passer cette opportunité unique d’acquérir un terrain au potentiel immense. Contactez-moi pour explorer ce projet qui pourrait devenir votre future réalité !
L’actualité immobilière à Les Bordes





