Images
Description
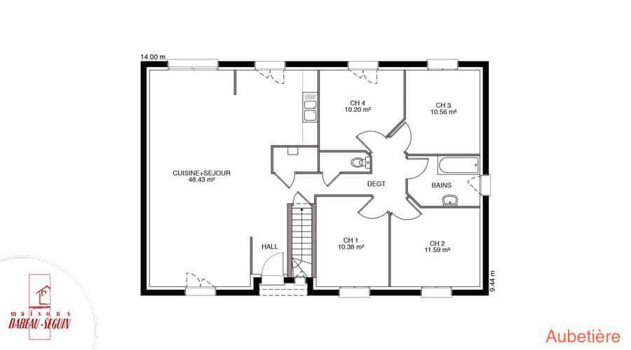
Sur ce terrain, nous vous proposons cette maison neuve Aubetière. Avec une surface de 96 m² et équipée de 4 chambres, cette maison traditionnelle est appréciée pour son excellent rapport qualité/prix.
L'Aubetière, fleuron de la gamme traditionnelle Babeau-Seguin, est une maison moderne qui se décline en plusieurs versions pour répondre à vos besoins spécifiques. Vous pouvez choisir entre une toiture à 2 pans ou à 4 pans, et personnaliser votre maison avec des options comme un garage ou un sous-sol.
Cette maison de plain-pied est conçue pour être basse consommation et conforme à la RE2020, garantissant ainsi des économies d'énergie et un confort optimal tout au long de l'année.
Babeau-Seguin, constructeur reconnu pour offrir le meilleur rapport qualité/prix du marché, vous accompagne dans la réalisation de votre projet de construction sur mesure. Donnez vie à votre projet en optant pour l'Aubetière et profitez d'une maison neuve, performante et personnalisable selon vos envies.
Logement susceptibles de vous intéresser
Nous vous proposons de découvrir aussi cette sélection de logements situés à moins de 10km de Les Vallées de la Vanne et qui seraient susceptibles de vous intéresser.

Les Clérimois
TERRAIN*** EXCLUSIVITÉ : TERRAIN CONSTRUCTIBLE de 451m2 pour faire construire la maison de vos rêves… ***Situé sur la commune des Clérimois à 10 minutes de la ville de Sens. Viabilité en bordure de terrain (eau, électricité ).Façade d’environ 18 mètres.Me contacter pour plus de renseignements.Cette annonce référence 225522 vous est présentée par votre agent commercial BSK Immobilier CECILIA DAVEY (EI) immatriculé au RSAC de SENS (89100) sous le numéro 84518808500011.Prix du bien : 16 000,00 €Les honoraires d’agence sont à la charge du vendeur.Les informations sur les risques auxquels ce bien est exposé sont disponibles sur le site Géorisques : www.georisques.gouv.fr

Foissy-sur-Vanne
TERRAINGrâce à nos partenaires fonciers : Nous vous présentons un magnifique terrain à vendre de 1201 m², idéalement situé dans la charmante commune de Foissy-sur-Vanne, dans le département de l’Yonne. Ce terrain non-viabilisé offre un environnement ensoleillé et un cadre champêtre, parfait pour concrétiser votre projet de construction de maison. La tranquillité des lieux et le caractère paisible de cette zone en font un endroit de choix pour bâtir une résidence familiale ou un refuge pour les weekends. Foissy-sur-Vanne est un véritable havre de paix, où la qualité de vie est au rendez-vous. La commune bénéficie d’une proximité avec les transports, facilitant l’accès aux villes environnantes pour vos déplacements quotidiens. Vous pourrez également profiter des activités de plein air et d’une nature préservée, tout en étant proche des commodités locales essentielles, telles que les écoles, les commerces et les infrastructures sportives. L’environnement paisible et le cadre verdoyant de la région contribuent à une atmosphère sereine et apaisante, idéale pour une vie en harmonie avec la nature. Ce terrain représente une opportunité unique d’investir dans une parcelle au potentiel remarquable. N’attendez plus pour découvrir ce bien rare et envisager votre futur chez-vous à Foissy-sur-Vanne. Contactez-nous dès maintenant pour plus d’informations et pour organiser une visite.

Foissy-sur-Vanne
TERRAIN ET MAISONSur ce terrain, nous vous proposons cette maison neuve, la Sauvetière, conçue par Babeau-Seguin, constructeur reconnu pour offrir le meilleur rapport qualité/prix du marché. La Sauvetière est sans aucun doute à classer dans la catégorie maison moderne de notre catalogue. Cette maison plain-pied traditionnelle de 80 m² vous séduira par son audacieux plan en forme de L et ses touches résolument modernes. Elle dispose de 3 pièces, dont 2 chambres confortables, et d’un vaste séjour lumineux.L’architecture en L de la Sauvetière abrite un garage accolé, offrant un accès direct à la maison. Vous avez le choix entre une toiture à 2 pans ou à 4 pans, selon vos préférences esthétiques.Cette maison neuve est basse consommation et conforme à la RE2020, garantissant des performances énergétiques optimales et un confort de vie inégalé. Ne manquez pas cette opportunité unique de devenir propriétaire d’une maison moderne, économe en énergie et parfaitement adaptée à vos besoins. Contactez-nous dès maintenant pour plus d’informations et pour planifier une visite du terrain.

Malay-le-Grand
TERRAINGrâce à nos partenaires fonciers : Découvrez ce terrain à vendre d’une surface de 640 m², situé dans la charmante commune de Malay-le-Grand, dans le département de l’Yonne. Ce bien rare représente une opportunité idéale pour concrétiser votre projet de construction de maison individuelle. Le terrain, bien orienté, offre un cadre de vie paisible tout en étant proche des commodités essentielles. Profitez d’un environnement calme, tout en bénéficiant d’un accès facile aux transports, garantissant ainsi une qualité de vie agréable. Malay-le-Grand est une ville dynamique, proche de toutes les commodités nécessaires à votre quotidien. Les commerces de proximité et les écoles se trouvent à quelques pas, facilitant la vie des familles. Vous apprécierez également la sécurité du quartier recherché et la présence d’arrêts de bus à proximité. Avec ses nombreuses attractions locales et ses infrastructures développées, cette commune saura séduire les futurs propriétaires en quête d’un cadre de vie alliant tranquillité et accessibilité. N’attendez plus pour saisir cette opportunité unique d’acquérir un terrain prêt à accueillir votre futur projet immobilier et profiter de tous les avantages qu’offre Malay-le-Grand. Contactez-nous dès maintenant pour plus d’informations !

Malay-le-Grand
TERRAIN ET MAISONSur ce terrain, nous vous proposons cette maison neuve, la Longière, conçue par Babeau-Seguin, constructeur offrant le meilleur rapport qualité/prix du marché. Parfaitement conçue pour ce terrain, la Longière de 95 m² est une maison résolument moderne à mi-chemin entre style traditionnel et contemporain.Cette maison design a été pensée pour s’adapter aux terrains les plus étroits, avec une façade de seulement 8 mètres. Vous avez le choix entre une toiture à 2 pans ou à 4 pans, selon vos préférences esthétiques. La Longière se distingue par son garage intégré, son patio central et ses baies coulissantes qui apportent une luminosité exceptionnelle à l’intérieur.Elle se compose de 3 chambres spacieuses et de 4 pièces au total, offrant un espace de vie confortable et fonctionnel. Les options les plus demandées par nos clients, telles que les menuiseries en aluminium, sont également disponibles pour personnaliser votre maison selon vos goûts.En plus de son design attrayant, cette maison neuve est basse consommation et conforme à la réglementation RE2020, garantissant une performance énergétique optimale et un respect de l’environnement.Ne manquez pas cette opportunité unique de devenir propriétaire d’une maison moderne et éco-responsable, parfaitement adaptée à vos besoins et à votre style de vie. Contactez-nous dès maintenant pour plus d’informations et pour planifier une visite.

Villeneuve-l'Archevêque
TERRAIN ET MAISONSur ce terrain, nous vous proposons cette maison neuve, la Sauvetière, conçue par Babeau-Seguin, constructeur offrant le meilleur rapport qualité/prix du marché. Cette maison de 107 m², à classer sans nul doute dans la catégorie des maisons modernes, sera idéale pour votre famille.La Sauvetière, une maison plain-pied traditionnelle, vous offre de base une vaste galerie et un garage accolé en rupture avec le volume principal de la construction. Son audacieux plan en forme de L, disponible en version 2 pans ou 4 pans, ne vous laissera pas indifférent.Cette maison dispose de 4 chambres spacieuses et de 4 pièces, offrant un espace de vie confortable et fonctionnel. Le garage accolé permet un accès direct à la maison, facilitant ainsi votre quotidien.L’un des atouts majeurs de la Sauvetière est sa basse consommation énergétique, conforme à la réglementation RE2020, garantissant des économies d’énergie et un confort optimal tout au long de l’année.Ne manquez pas cette opportunité unique d’acquérir une maison moderne, économe en énergie et parfaitement adaptée à vos besoins. Contactez-nous dès maintenant pour plus d’informations et pour planifier une visite.

Les Bordes
TERRAINGrâce à nos partenaires fonciers : Nous sommes ravis de pouvoir vous présenter ce terrain à vendre de 1 500 m², situé à Les Bordes, un emplacement idéal pour concrétiser votre projet de construction de maison. Ce terrain viabilisé offre un cadre champêtre, sans vis-à-vis et bénéficie d’une exposition ensoleillée, garantissant un environnement serein et agréable. Avec sa tranquillité et ses caractéristiques uniques, il se prête parfaitement à la création d’un foyer familial ou d’une résidence secondaire. Les Bordes, une charmante commune du département de l’Yonne (89500), est réputée pour sa qualité de vie exceptionnelle. Située à proximité de transports, vous pourrez facilement accéder aux commodités locales, telles que les commerces, les écoles et les services de santé. De plus, la région regorge d’attractions naturelles et culturelles, offrant ainsi de nombreuses activités en plein air et des moments de loisirs en famille. Ce cadre de vie agréable attire de plus en plus de personnes souhaitant s’installer dans un environnement paisible tout en étant proche des principales villes. Ce terrain constitue une opportunité unique pour les acheteurs à la recherche d’une parcelle de rêve pour bâtir leur maison. Ne manquez pas cette chance et contactez-nous dès maintenant pour découvrir le potentiel de ce bien immobilier exceptionnel.

Les Bordes
TERRAIN ET MAISONSur ce terrain, nous vous proposons cette maison neuve : la Versière. Avec ses 112 m² de surface habitable, cette maison se distingue par son plan en V, offrant un brin d’originalité et une grande habitabilité. Elle dispose de 4 chambres et de 4 pièces, parfaitement adaptées pour accueillir une famille.La Versière vous permet de choisir entre une toiture à 2 pans ou à 4 pans, selon vos préférences esthétiques. De plus, vous avez la possibilité d’ajouter un garage ou un sous-sol, pour encore plus de praticité et de rangement.Les grandes baies coulissantes apportent une luminosité naturelle exceptionnelle à l’intérieur de la maison, créant une atmosphère chaleureuse et accueillante. Les options les plus demandées par nos clients, telles que les menuiseries en aluminium et la domotique, sont également disponibles pour personnaliser votre maison selon vos besoins et vos envies.Cette maison de plain-pied est 100% économique grâce au respect de la nouvelle réglementation énergétique RE2020, ce qui en fait une maison basse consommation. Vous bénéficierez ainsi d’un confort optimal tout en réalisant des économies d’énergie.Le constructeur Babeau-Seguin, reconnu pour offrir le meilleur rapport qualité/prix du marché, vous garantit une construction de haute qualité, conforme aux normes les plus récentes.Ne manquez pas cette opportunité unique de devenir propriétaire d’une maison neuve, moderne et économe en énergie. Contactez-nous dès maintenant pour plus d’informations et pour planifier une visite de ce projet exceptionnel.

Les Vallées de la Vanne
TERRAINGrâce à nos partenaires fonciers : Découvrez ce terrain exceptionnel de 863 m² situé dans la charmante commune des Vallées de la Vanne, dans le département de l’Yonne. Arboré, sans vis-à-vis, ce terrain non viabilisé vous offre un cadre champêtre idéal pour le projet de construction de votre maison. Grâce à son PLU non contraignant, vous disposez d’une grande flexibilité pour réaliser la maison de vos rêves dans un environnement paisible, propice à une qualité de vie exceptionnelle. Ce bien se trouve à proximité du village de 89320, une localité prisée pour sa tranquillité et son ambiance conviviale. Vous profiterez des commodités locales telles que petits commerces, écoles, et infrastructures sportives. Les Vallées de la Vanne vous séduiront également par leurs paysages verdoyants et leurs nombreuses activités de plein air, offrant un cadre de vie agréable à seulement quelques minutes des grandes villes environnantes. Les connexions routières à proximité facilitent également vos déplacements vers les axes principaux de la région. Ne laissez pas passer cette opportunité unique d’acquérir un terrain au potentiel immense. Contactez-moi pour explorer ce projet qui pourrait devenir votre future réalité !
L’actualité immobilière à Les Vallées de la Vanne





