Images
Description
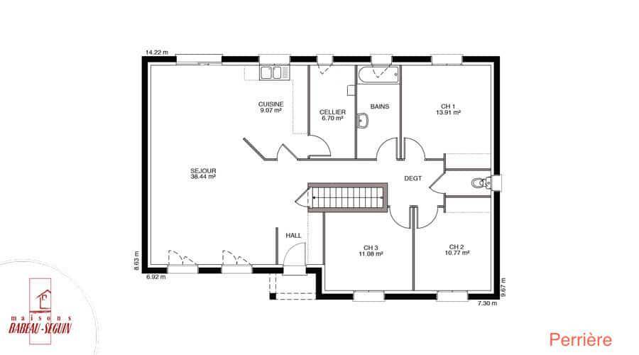
Sur ce terrain, nous vous proposons cette maison neuve Perrière de 97 m². Ce modèle design de plain-pied possède deux hauteurs de toits qui cassent la monotonie de la façade, offrant ainsi une esthétique moderne et attrayante. Avec ses 3 chambres et ses 4 pièces, cette maison familiale par excellence saura vous séduire.
La Perrière est une maison traditionnelle possédant une avancée de toit qui vient protéger les portes-fenêtres de la façade avant et la porte d’entrée. Ce modèle peut être agrémenté d’un garage ou d’un sous-sol disponible en option, selon vos besoins et préférences.
Construite par Babeau-Seguin, constructeur offrant le meilleur rapport qualité/prix du marché, cette maison neuve est basse consommation et conforme à la RE2020, garantissant ainsi des performances énergétiques optimales et un confort de vie inégalé.
Disposant d'un très bon rapport qualité/prix et de tout le savoir-faire Babeau-Seguin, la Perrière est un modèle de maison à prix réduit sans pour autant être une maison low-cost. Cerise sur le gâteau ? Le plan est personnalisable en fonction de votre mode de vie !
Ne manquez pas cette opportunité unique de construire la maison de vos rêves sur ce terrain. Contactez-nous dès maintenant pour plus d'informations et pour découvrir toutes les options disponibles pour personnaliser votre future maison Perrière.
Logement susceptibles de vous intéresser
Nous vous proposons de découvrir aussi cette sélection de logements situés à moins de 10km de Nailly et qui seraient susceptibles de vous intéresser.

Sens
TERRAINSitué dans la charmante ville de Sens, ce terrain de 2062 m² offre un cadre idéal pour votre futur projet de construction.Ce terrain constructible offre un large potentiel pour concrétiser vos rêves. Sa surface plane et régulière facilitera la mise en œuvre de votre projet immobilier, que ce soit pour une maison familiale spacieuse, des espaces extérieurs aménagés ou tout autre aménagement que vous envisagez.Les informations sur les risques auxquels ce bien est exposé sont disponibles sur le site Géorisques : www.georisques.gouv.frPrix de vente honoraires d’agence inclus : 260 000 €Prix de vente hors honoraires d’agence : 248 000 €Honoraires : 4,84 % TTC de la valeur du bien hors honorairesContactez votre consultant megAgence : Vilma BEQJA, Tél. : (Numéro supprimé), E-mail : (Email supprimé) – EI – Agent commercial immatriculé au RSAC de SENS sous le numéro 850 674 979

Saint-Valérien
TERRAIN ET MAISONSur ce terrain, nous vous proposons cette maison neuve, la Sommière, conçue par Babeau-Seguin, constructeur offrant le meilleur rapport qualité/prix du marché. Avec une surface de 107 m², cette maison moderne en L se distingue par son design élégant et ses nombreuses options de personnalisation.La Sommière dispose de 4 chambres spacieuses et de 4 pièces, offrant un espace de vie confortable et fonctionnel pour toute la famille. Vous avez la possibilité de choisir entre un toit à 2 pans ou à 4 pans, selon vos préférences esthétiques et architecturales. De plus, cette maison peut être équipée d’un garage ou d’un sous-sol, selon vos besoins spécifiques.Cette maison neuve est basse consommation et conforme à la RE2020, garantissant une performance énergétique optimale et des économies sur vos factures d’énergie. La Sommière est disponible en plus de 10 versions, allant d’une surface de 78 m² à 148 m², ce qui en fait la maison plain-pied la plus déclinée de toute notre gamme.Avec ou sans garage intégré, avec ou sans galerie, la Sommière s’adapte parfaitement aux besoins et aux attentes de chacun. Nous lui décernons sans hésitation le prix de la maison sur mesure !Ne manquez pas cette opportunité unique de faire construire une maison qui répondra à toutes vos attentes et vous offrira un cadre de vie exceptionnel. Contactez-nous dès maintenant pour plus d’informations et pour découvrir toutes les options disponibles pour personnaliser votre future maison Sommière.

Nailly
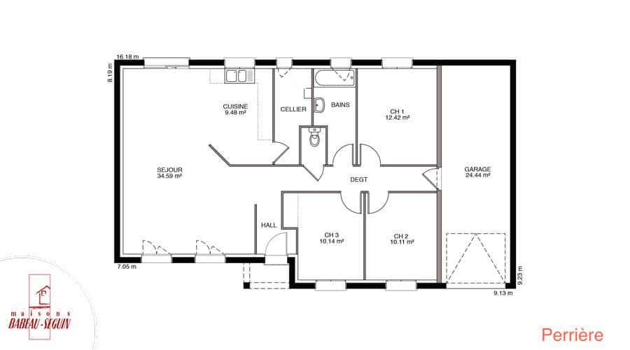
TERRAIN ET MAISONSur ce terrain, nous vous proposons cette maison neuve Perrière de 97 m². Ce modèle design de plain-pied possède deux hauteurs de toits qui cassent la monotonie de la façade, offrant ainsi une esthétique moderne et attrayante. Avec ses 3 chambres et ses 4 pièces, cette maison familiale par excellence saura vous séduire.La Perrière est une maison traditionnelle possédant une avancée de toit qui vient protéger les portes-fenêtres de la façade avant et la porte d’entrée. Ce modèle peut être agrémenté d’un garage ou d’un sous-sol disponible en option, selon vos besoins et préférences.Construite par Babeau-Seguin, constructeur offrant le meilleur rapport qualité/prix du marché, cette maison neuve est basse consommation et conforme à la RE2020, garantissant ainsi des performances énergétiques optimales et un confort de vie inégalé.Disposant d’un très bon rapport qualité/prix et de tout le savoir-faire Babeau-Seguin, la Perrière est un modèle de maison à prix réduit sans pour autant être une maison low-cost. Cerise sur le gâteau ? Le plan est personnalisable en fonction de votre mode de vie !Ne manquez pas cette opportunité unique de construire la maison de vos rêves sur ce terrain. Contactez-nous dès maintenant pour plus d’informations et pour découvrir toutes les options disponibles pour personnaliser votre future maison Perrière.

Villebougis
TERRAINGrâce à nos partenaires fonciers : Nous vous proposons ce magnifique terrain à vendre d’une surface généreuse de 2092 m², idéalement situé dans la charmante commune de Villebougis, Yonne. Ce terrain plat, ensoleillé et offrant une vue dégagée, est un véritable écrin de nature, parfait pour accueillir votre projet de construction de maison. Profitez d’un cadre champêtre propice au bien-être et à la sérénité, tout en étant à proximité de commodités essentielles. Ce terrain présente des caractéristiques uniques qui en font une opportunité à ne pas manquer. Villebougis, située dans le département de l’Yonne, bénéficie d’une localisation privilégiée alliant tranquillité et accès facile à la vie urbaine. La commune offre un cadre de vie agréable, avec des commerces à proximité, ainsi que des transports facilitant vos déplacements. Les habitants apprécient le charme des paysages environnants et la qualité de vie qu’offre cette belle région de Bourgogne. En outre, les attractions locales, telles que les promenades en pleine nature et les activités culturelles des villes voisines, ajoutent une dimension supplémentaire à ce cadre de vie. Ce terrain représente une occasion exceptionnelle pour construire la maison de vos rêves dans un environnement enchanteur. N’attendez plus pour concrétiser votre projet, contactez-nous dès aujourd’hui pour plus d’informations et ne manquez pas cette chance d’investir dans un lieu de vie privilégié !

Villebougis
TERRAIN ET MAISONSur ce terrain, nous vous proposons cette maison neuve, la Sommière, conçue par Babeau-Seguin, constructeur offrant le meilleur rapport qualité/prix du marché. Avec une surface de 107 m², cette maison moderne en L se distingue par son design élégant et ses nombreuses options de personnalisation.La Sommière dispose de 4 chambres spacieuses et de 4 pièces, offrant un espace de vie confortable et fonctionnel pour toute la famille. Vous avez la possibilité de choisir entre un toit à 2 pans ou à 4 pans, selon vos préférences esthétiques et architecturales. De plus, cette maison peut être équipée d’un garage ou d’un sous-sol, selon vos besoins spécifiques.Cette maison neuve est basse consommation et conforme à la RE2020, garantissant une performance énergétique optimale et des économies sur vos factures d’énergie. La Sommière est disponible en plus de 10 versions, allant d’une surface de 78 m² à 148 m², ce qui en fait la maison plain-pied la plus déclinée de toute notre gamme.Avec ou sans garage intégré, avec ou sans galerie, la Sommière s’adapte parfaitement aux besoins et aux attentes de chacun. Nous lui décernons sans hésitation le prix de la maison sur mesure !Ne manquez pas cette opportunité unique de faire construire une maison qui répondra à toutes vos attentes et vous offrira un cadre de vie exceptionnel. Contactez-nous dès maintenant pour plus d’informations et pour découvrir toutes les options disponibles pour personnaliser votre future maison Sommière.

Maillot
TERRAINGrâce à nos partenaires fonciers : Découvrez ce terrain exceptionnel de 772 m², idéalement situé au cœur de la charmante commune de Maillot dans l’Yonne. Ce bien rare à vendre, non viabilisé, présente un potentiel incroyable pour la construction de votre future maison. Son emplacement privilégié dans un quartier recherché, ainsi que sa surface plane, en font une opportunité unique pour tous les projets personnels ou familiaux. Laissez libre cours à votre imagination et réalisez le domicile de vos rêves dans cette belle ville. Maillot, un véritable bijou de l’Yonne, vous séduira par ses commodités à proximité, ses transports accessibles avec un arrêt de bus à quelques pas, et son ambiance conviviale. La ville allie tranquillité et proximité des services de première nécessité, tout en offrant un cadre de vie paisible. Les charmantes attractions locales, telles que les parcs et les marchés, ajoutent au charme de cette commune vivante. Une belle qualité de vie vous attend dans cette région empreinte de culture et d’histoire. Ne manquez pas cette occasion unique de devenir propriétaire d’un terrain dans une localisation de choix. Contactez-nous dès aujourd’hui pour explorer le potentiel de ce bien d’exception et donner vie à votre projet immobilier !

Maillot
TERRAIN ET MAISONSur ce terrain, nous vous proposons cette maison neuve : la Provencière Urban Serie, un modèle moderne qui s’adapte parfaitement aux terrains urbains. Avec une surface de 82 m², cette maison dispose de 3 chambres et d’une pièce de vie spacieuse. Inspirée de l’architecture typique des maisons du sud de la France, la Provencière Urban Serie conserve tout le charme et le confort de la Provencière traditionnelle, tout en étant optimisée pour les terrains urbains. Avec une longueur de façade variant de 12 à 16 mètres, elle s’adapte à tous les terrains et permet de profiter des charmes de la Provencière où que vous souhaitiez faire construire.Les caractéristiques principales de cette maison incluent un garage intégré, une dalle étage en béton et des combles aménagés, offrant ainsi un espace de vie supplémentaire. Les options les plus demandées par nos clients, telles que la charpente traditionnelle, les menuiseries en aluminium et l’enduit bi-ton, sont également disponibles pour personnaliser votre maison selon vos goûts.Cette maison neuve est basse consommation et conforme à la réglementation environnementale RE2020, garantissant ainsi une performance énergétique optimale et un confort de vie inégalé.Le constructeur Babeau-Seguin, reconnu pour offrir le meilleur rapport qualité/prix du marché, vous accompagne dans la réalisation de votre projet immobilier. Ne manquez pas cette opportunité unique de devenir propriétaire d’une maison alliant tradition et modernité, parfaitement adaptée aux terrains urbains.

Villebougis
TERRAINNous sommes ravis de vous présenter ce terrain à vendre d’une superficie de 1068 m², parfaitement adapté pour la construction de votre future maison. Situé dans la charmante commune de Villebougis, ce terrain non viabilisé offre un cadre de vie paisible et ensoleillé, idéal pour familles ou investisseurs. Avec un terrain plat et au calme, vous pourrez réaliser tous vos projets de construction en toute sérénité. Le Plan Local d’Urbanisme (PLU) non contraignant est un atout supplémentaire, vous offrant la flexibilité nécessaire pour imaginer la maison de vos rêves. Villebougis, nichée dans le département de l’Yonne en Bourgogne-Franche-Comté, est une commune qui saura vous séduire par son ambiance rurale et ses atouts. Environnement verdoyant et beauté naturelle raffinée font de cet endroit un havre de paix, tout en étant à proximité des grandes artères d’accès autoroutiers. Dans les environs, vous trouverez des écoles, des commerces de proximité et de nombreuses options de loisirs pour toute la famille. Cette localisation offre ainsi un cadre de vie agréable, conjuguant calme et accessibilité. Ne laissez pas passer cette occasion unique de construire la maison de vos rêves sur ce terrain au potentiel indéniable. Contactez-nous pour plus d’informations et pour envisager votre futur projet dans ce cadre idyllique. À noter qu’en tant que constructeur, nous ne sommes pas mandatés pour réaliser la vente de ce terrain.

Villebougis
TERRAIN ET MAISONSur ce terrain, nous vous proposons cette maison neuve : la Focus Cosy. Conçue par Babeau-Seguin, constructeur offrant le meilleur rapport qualité/prix du marché, cette maison de 79 m² est idéale pour les familles à la recherche d’un logement confortable et économique.La Focus Cosy se distingue par son design contemporain et ses finitions soignées. Avec ses 4 pièces, dont 3 chambres, cette maison de plain-pied offre un espace de vie bien pensé et harmonieux. Le vaste séjour-cuisine est un lieu convivial où il fait bon vivre, tandis que l’espace nuit garantit tranquillité et intimité.L’un des atouts majeurs de cette maison est son garage intégré, qui ajoute une touche de praticité supplémentaire. L’enduit bi-ton de la façade apporte une touche esthétique moderne et élégante.Cette maison neuve est également basse consommation et conforme à la RE2020, ce qui en fait un choix écologique et économique. Les options les plus demandées par nos clients, telles que les menuiseries en aluminium, peuvent être intégrées pour encore plus de confort et de modernité.En choisissant la Focus Cosy, vous optez pour une maison accessible à tous les budgets, sans compromis sur les équipements. Avec ses performances énergétiques et écologiques de pointe, cette maison bénéficie des dernières innovations technologiques et de toute l’expertise des Maisons Babeau-Seguin.Ne manquez pas cette opportunité de réaliser votre rêve de maison à un prix incroyablement attractif. La Focus Cosy est une maison pratique et élégante où votre famille se sentira immédiatement chez elle.
L’actualité immobilière à Nailly





