Images
Description
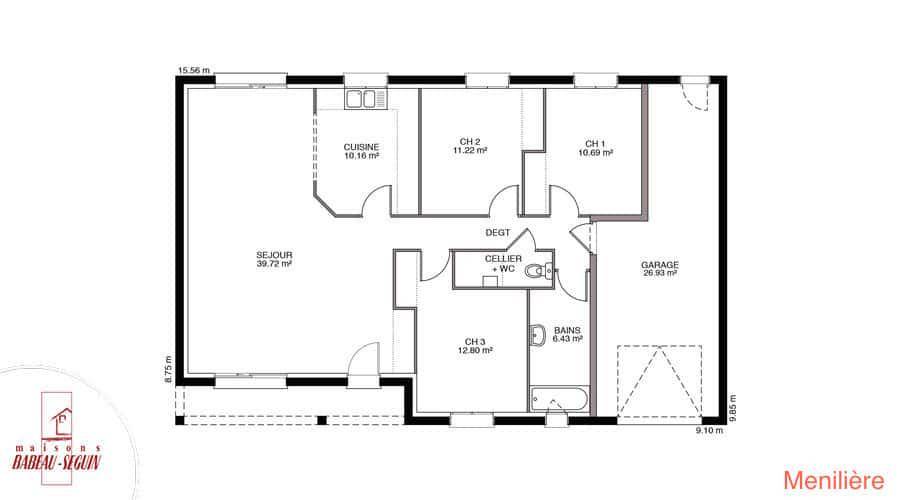
Sur ce terrain, nous vous proposons cette maison neuve, le modèle Ménilière, une maison plain-pied moderne qui intègre de base un garage et une longue galerie sur la face avant. Avec une surface de 100 m², cette maison dispose de 4 chambres et de 4 pièces, offrant ainsi un espace de vie confortable et fonctionnel pour toute la famille.
Véritable ""tout-en-un"" de la maison individuelle, ce modèle est idéal pour votre projet de construction sur-mesure. La Ménilière est disponible avec un toit à 2 pans ou 4 pans, selon vos préférences esthétiques. Le garage intégré et la galerie avant ajoutent une touche pratique et élégante à cette maison.
Les options les plus demandées par nos clients, telles que les menuiseries en aluminium et le sous-sol, sont également disponibles pour personnaliser davantage votre future maison. De plus, cette maison neuve est basse consommation et conforme à la réglementation environnementale RE2020, garantissant ainsi des performances énergétiques optimales et un impact environnemental réduit.
Le constructeur Babeau-Seguin, reconnu pour offrir le meilleur rapport qualité/prix du marché, vous accompagne dans la réalisation de votre projet immobilier. Avec un prix serré et une personnalisation facile, il n'est pas étonnant que la Ménilière soit dans le top 5 des ventes de Babeau-Seguin.
Ne manquez pas cette opportunité unique de devenir propriétaire d'une maison moderne, économe en énergie et parfaitement adaptée à vos besoins. Contactez-nous dès maintenant pour plus d'informations et pour planifier une visite de ce modèle exceptionnel.
Logement susceptibles de vous intéresser
Nous vous proposons de découvrir aussi cette sélection de logements situés à moins de 10km de Sergines et qui seraient susceptibles de vous intéresser.
Champigny
TERRAINChampigny : terrain de 1 020 m² en venteIDÉALEMENT SITUÉ – PROCHE DE SENSÀ vendre à deux pas de Sens à Champigny (89340), grand terrain. Réalisez-y votre résidence principale ou secondaire. Dans un quartier prisé, le terrain idéalement situé est proche des écoles et des commerces. L’école élémentaire École Elementaire Publique est implantée à moins de 10 minutes à pied, tout comme une crèche. Niveau transports, on trouve la gare Champigny sur Yonne dans les alentours. L’autoroute A5 est accessible à 10 km. Il y a deux boulangeries et un commerce à quelques minutes à peine.Il est à vendre pour la somme de 65 000 €. Contactez Anne DELOHEN (tél : (Numéro supprimé)) pour toute question sur ce terrain. Faites de vos projets immobiliers une réalité avec Maisons France Confort Nemours.Annonce proposée par un Agent Commercial Partenaire.
Vinneuf
TERRAINVENTE : terrain de 962 m² à VinneufEMPLACEMENT PRIVILÉGIÉ – PROCHE DE SENSGrand terrain à deux pas de Sens. De 962 m², ce terrain se situe bénéficiant d’un emplacement d’exception dans Vinneuf (89140). Dans un quartier prisé, ce terrain est proche des écoles et des commerces. Il y a l’École Primaire Jacques Prévert à moins de 10 minutes à pied. Niveau transports, on trouve trois gares (Champigny sur Yonne, Villeneuve-la-Guyard et Pont-sur-Yonne) à moins de 10 minutes en voiture. L’autoroute A5 est accessible à 9 km. Il y a un tennis et une épicerie à quelques minutes.Son prix de vente est de 56 000 €. N’hésitez pas à prendre contact avec notre agence (DELOHEN Anne : (Numéro supprimé)) pour toute question sur le terrain ou sur les modalités de vente.Annonce proposée par un Agent Commercial Partenaire.
Champigny
TERRAIN ET MAISONChampigny : maison de 5 pièces (90 m²) à vendreIDÉALEMENT SITUÉE – MAISON 5 PIÈCES NEUVEÀ vendre : à deux pas de Sens, nous vous proposons cette maison de 5 pièces de 90 m² et de 1 020 m² de terrain idéalement située dans Champigny (89340). Son intérieur se divise en trois chambres, une cuisine et une salle de bains.Cette maison compte 2 niveaux. Elle est neuve.La maison se situe dans un quartier prisé. Il y a l’école élémentaire École Elementaire Publique à moins de 10 minutes à pied et une crèche. Côté transports en commun, on trouve la gare Champigny sur Yonne dans un rayon de 1 km. Il y a un accès à l’autoroute A5 à 10 km. Il y a deux boulangeries et un commerce dans les environs.Elle est proposée à l’achat pour 242 800 €.Prenez contact avec notre agence (Anne DELOHEN : (Numéro supprimé)) pour plus d’informations sur la maison ou sur les démarches à suivre. Donnez vie à vos projets immobiliers avec Maisons France Confort Nemours.Annonce proposée par un Agent Commercial Partenaire.
Champigny
TERRAIN ET MAISONMaison T6 (109 m²) en vente à ChampignyIDÉALEMENT SITUÉE – MAISON 6 PIÈCES NEUVEEn vente à quelques kilomètres de Sens, ayez le coup de coeur pour, idéalement située dans Champigny (89340), cette maison de 6 pièces de 109 m². Elle dispose de quatre chambres, d’une cuisine et de deux salles de bains.Le terrain de la maison est de 1 020 m².Cette maison possède 2 niveaux. Elle est neuve.Cette maison est située dans un quartier recherché. On trouve l’école élémentaire École Elementaire Publique à moins de 10 minutes à pied et une crèche. Niveau transports en commun, il y a la gare Champigny sur Yonne à proximité. Il y a un accès à l’autoroute A5 à 10 km. On trouve deux boulangeries et un commerce dans les environs.Elle est à vendre pour la somme de 256 800 €.Contactez notre agence (DELOHEN Anne : (Numéro supprimé)) pour plus d’informations sur la maison, sur les modalités de vente ou sur les démarches à suivre.Annonce proposée par un Agent Commercial Partenaire.
Champigny
TERRAIN ET MAISONVENTE : maison de 5 pièces (110 m²) à ChampignyIDÉALEMENT SITUÉE – MAISON 5 PIÈCES NEUVEÀ vendre : à deux pas de Sens, votre agence Maisons France Confort Nemours est ravie de vous proposer, idéalement située dans Champigny (89340), cette maison de 5 pièces de plain-pied de 110 m² et de 1 020 m² de terrain. Elle propose quatre chambres, une cuisine et deux salles de bains.La maison est neuve.La maison est située dans un quartier prisé. On trouve l’école élémentaire École Elementaire Publique à moins de 10 minutes à pied et une structure d’accueil pour les tout-petits. Niveau transports, il y a la gare Champigny sur Yonne dans les environs. On trouve un accès à l’autoroute A5 à 10 km. On trouve deux boulangeries et un commerce à quelques minutes.Son prix de vente est de 273 600 €.Contactez Anne DELOHEN ((Numéro supprimé)) pour toute question sur la maison. Maisons France Confort Nemours vous accompagne dans tous vos projets immobiliers et à toutes les étapes de votre projet.Annonce proposée par un Agent Commercial Partenaire.
Vinneuf
TERRAIN ET MAISONMaison de 6 pièces (89 m²) à vendre à VinneufEMPLACEMENT PRIVILÉGIÉ – MAISON 6 PIÈCES NEUVEEn vente : à 21 km de Sens, nous vous proposons, bénéficiant d’un emplacement privilégié dans Vinneuf (89140), cette maison de 6 pièces de 89 m² et de 962 m² de terrain. Elle se divise en quatre chambres, une cuisine et une salle de bains.Il s’agit d’une maison de 2 niveaux. Elle est neuve.La maison se trouve dans un quartier prisé. Il y a l’École Primaire Jacques Prévert à moins de 10 minutes à pied. Niveau transports, on trouve les gares Champigny sur Yonne, Villeneuve-la-Guyard et Pont-sur-Yonne à moins de 10 minutes en voiture. L’autoroute A5 est accessible à 9 km. Il y a un tennis et une épicerie à proximité du logement.Elle est proposée à l’achat pour 215 900 €.Contactez Anne DELOHEN ((Numéro supprimé)) pour tout renseignement sur la maison. Maisons France Confort Nemours est là pour vous accompagner dans tous vos projets immobiliers.Annonce proposée par un Agent Commercial Partenaire.
Vinneuf
TERRAIN ET MAISONVENTE : maison T5 (90 m²) à VinneufEMPLACEMENT PRIVILÉGIÉ – MAISON 5 PIÈCES NEUVEÀ vendre : à deux pas de Sens, votre agence Maisons France Confort Nemours est heureuse de vous présenter cette maison de 5 pièces de plain-pied de 90 m², bénéficiant d’un emplacement privilégié dans Vinneuf (89140).Elle comporte trois chambres, une cuisine et une salle de bains. La maison est neuve.Le terrain du bien est de 962 m².La maison se trouve dans un secteur convoité. Il y a l’École Primaire Jacques Prévert à moins de 10 minutes à pied. Niveau transports, on trouve trois gares (Champigny sur Yonne, Villeneuve-la-Guyard et Pont-sur-Yonne) à moins de 10 minutes en voiture. L’autoroute A5 est accessible à 9 km. Il y a un tennis et une épicerie à proximité.Elle est proposée à l’achat pour 221 300 €.Prenez contact avec notre agence (DELOHEN Anne : (Numéro supprimé)) pour plus de renseignements sur la propriété ou sur les modalités de vente. Maisons France Confort Nemours vous accompagne dans toutes vos démarches et dans tous vos projets immobiliers.Annonce proposée par un Agent Commercial Partenaire.
Vinneuf
TERRAIN ET MAISONVinneuf : maison de 6 pièces (125 m²) en venteEMPLACEMENT PRIVILÉGIÉ – MAISON 6 PIÈCES NEUVEÀ vendre : située à quelques kilomètres de Sens, Maisons France Confort Nemours vous propose cette maison de 6 pièces de 125 m² et de 962 m² de terrain bénéficiant d’un emplacement privilégié dans Vinneuf (89140).C’est une maison de 2 niveaux. Son intérieur offre quatre chambres, une cuisine et deux salles de bains. Cette maison est neuve.Cette maison se situe dans un quartier attractif. On trouve l’École Primaire Jacques Prévert à moins de 10 minutes à pied. Niveau transports en commun, il y a les gares Champigny sur Yonne, Villeneuve-la-Guyard et Pont-sur-Yonne à moins de 10 minutes en voiture. L’autoroute A5 est accessible à 9 km. On trouve un tennis et une épicerie à proximité du logement.Son prix de vente est de 316 800 €.Contactez notre agence (Anne DELOHEN : (Numéro supprimé)) pour plus d’informations sur la maison, sur les modalités de vente ou sur les démarches à suivre. Maisons France Confort Nemours est là pour vous accompagner dans tous vos projets immobiliers.Annonce proposée par un Agent Commercial Partenaire.
Vinneuf
TERRAIN ET MAISONMaison F5 (90 m²) en vente à VinneufEMPLACEMENT PRIVILÉGIÉ – MAISON 5 PIÈCES NEUVEÀ quelques kilomètres de Sens, nous sommes ravis de vous proposer cette maison de 5 pièces de plain-pied de 90 m² et de 962 m² de terrain à vendre, bénéficiant d’un emplacement privilégié dans Vinneuf (89140). Elle compte trois chambres, une cuisine et deux salles de bains.Cette maison est neuve.La maison se trouve dans un quartier recherché. L’École Primaire Jacques Prévert est implantée à moins de 10 minutes à pied. Niveau transports, on trouve les gares Champigny sur Yonne, Villeneuve-la-Guyard et Pont-sur-Yonne à moins de 10 minutes en voiture. On trouve un accès à l’autoroute A5 à 9 km. Il y a un tennis et une épicerie à proximité de la maison.Son prix de vente est de 238 300 €.Contactez Anne DELOHEN ((Numéro supprimé)) pour obtenir de plus amples renseignements sur la maison, sur les démarches à suivre ou sur les modalités de vente. Concrétisez vos projets immobiliers avec Maisons France Confort Nemours.Annonce proposée par un Agent Commercial Partenaire.
L’actualité immobilière à Sergines
27/11/2023
02/11/2023
30/10/2023
20/10/2023
16/10/2023
16/10/2023