Maison à construire à Villeneuve-la-Guyard (89340)
Images
Description
Villeneuve-la-Guyard : maison de 5 pièces (90 m²) en vente
EMPLACEMENT PRIVILÉGIÉ - MAISON 5 PIÈCES NEUVE
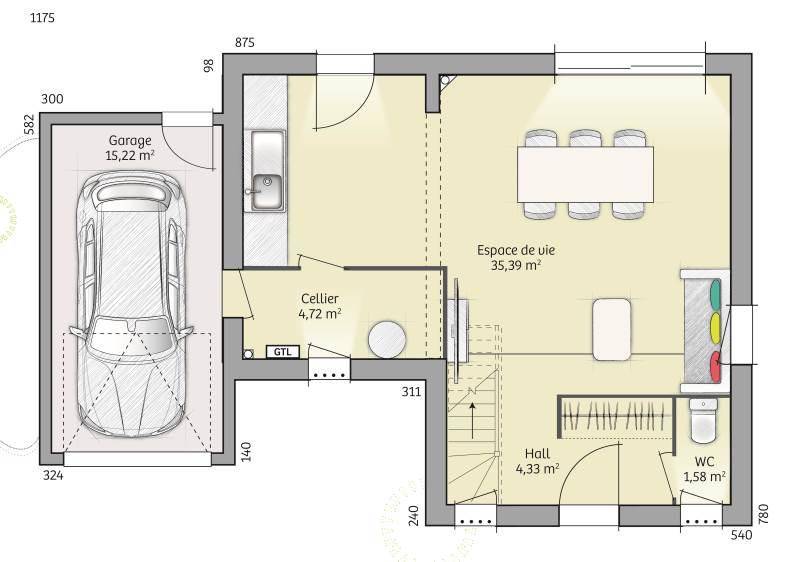
En vente : à quelques kilomètres de Sens, bénéficiant d'un emplacement privilégié dans Villeneuve-la-Guyard (89340), ayez le coup de coeur pour cette maison de 5 pièces de 90 m². Son intérieur est composé de trois chambres, d'une cuisine et d'une salle de bains.
Le terrain de la propriété s'étend sur 460 m².
Il s'agit d'une maison de 2 niveaux. Elle est neuve.
Cette maison se trouve dans un secteur attractif. On y trouve l'École Élémentaire Jean-Baptiste Chauveau, l'École Maternelle Rosa Bonheur et le Collège Claude Debussy. Niveau transports, il y a trois gares (Champigny sur Yonne, Villeneuve-la-Guyard et Pont-sur-Yonne) à moins de 10 minutes en voiture. Il y a un accès à l'autoroute A5 à 9 km. On trouve un commerce à quelques minutes du logement.
Elle est à vendre pour la somme de 221 800 €.
Contactez notre agence (DELOHEN Anne : (Numéro supprimé)) pour obtenir de plus amples renseignements sur la maison ou sur les modalités de vente. Maisons France Confort Nemours vous accompagne à toutes les étapes de votre projet et dans tous vos projets immobiliers.
Annonce proposée par un Agent Commercial Partenaire.
Logement susceptibles de vous intéresser
Nous vous proposons de découvrir aussi cette sélection de logements situés à moins de 10km de Villeneuve-la-Guyard et qui seraient susceptibles de vous intéresser.
Marolles-sur-Seine
TERRAINBeau terrain à bâtir viabilisé à Marolles-sur-Seine (77130) – 93 000 €À Marolles-sur-Seine, charmante commune de Seine-et-Marne, découvrez ce magnifique terrain à bâtir de 604 m², déjà viabilisé et idéalement situé pour concrétiser votre projet de maison individuelle. À proximité immédiate, vous trouverez l’école élémentaire Jean de La Fontaine, la boulangerie du centre, la mairie et le stade municipal, tous accessibles en quelques minutes à pied. Le supermarché Intermarché de La Grande Paroisse et la gare de Montereau-Fault-Yonne se rejoignent rapidement en voiture. Depuis cette gare, la ligne R permet de relier Paris-Gare de Lyon en environ une heure.Les grandes villes voisines telles que Montereau-Fault-Yonne ou Sens sont aisément accessibles en moins de vingt minutes, offrant un large éventail de commerces, établissements scolaires et services.Chez Maisons Balency d’Ormoy, nous concevons des habitations entièrement personnalisées ou adaptables à partir de nos modèles existants, dans le respect des dernières normes RE2020, garantissant des performances énergétiques exemplaires (DPE A ou B).Membre du Groupe Hexaôm, premier constructeur de maisons individuelles en France, notre agence d’Ormoy vous accompagne dans chaque étape de votre projet, de la recherche foncière à la remise des clés.📞 Contactez Maisons Balency d’Ormoy au (Numéro supprimé) pour donner vie à votre future maison en Île de FranceAnnonce proposée par un Agent Commercial Partenaire.
Marolles-sur-Seine
TERRAINBeau Terrain constructible viabilisé de 544 m² situé à Marolles-sur-Seine (77130) et disponible pour 87 000 € !À Marolles-sur-Seine, découvrez ce joli terrain déjà viabilisé, et idéalement situé pour concrétiser votre projet de maison individuelle. À proximité immédiate, vous trouverez l’école élémentaire Jean de La Fontaine, la boulangerie du centre, la mairie et le stade municipal, tous accessibles en quelques minutes à pied. Le supermarché Intermarché de La Grande Paroisse et la gare de Montereau-Fault-Yonne se rejoignent rapidement en voiture. Depuis cette gare, la ligne R permet de relier Paris-Gare de Lyon en environ une heure.Les grandes villes voisines telles que Montereau-Fault-Yonne ou Sens sont aisément accessibles en moins de vingt minutes, offrant un large éventail de commerces, établissements scolaires et services.Chez Maisons Balency d’Ormoy, nous concevons des habitations entièrement personnalisées ou adaptables à partir de nos modèles existants, dans le respect des dernières normes RE2020, garantissant des performances énergétiques exemplaires (DPE A ou B).Membre du Groupe Hexaôm, premier constructeur de maisons individuelles en France, notre agence d’Ormoy vous accompagne dans chaque étape de votre projet, de la recherche foncière à la remise des clés.📞 Appelez les Maisons Balency d’Ormoy au (Numéro supprimé) pour donner vie à votre future maison en Île de FranceAnnonce proposée par un Agent Commercial Partenaire.
Marolles-sur-Seine
TERRAIN ET MAISONVotre Plain-pied de 100 m² à bâtir à Marolles-sur-Seine (77130), dès 323 000 € !Découvrez ce projet de maison de 6 pièces à bâtir sur un beau terrain viabilisé de 604 m², situé dans un environnement calme et résidentiel à Marolles-sur-Seine, en Seine-et-Marne. Idéalement placé, ce futur lieu de vie se trouve à proximité immédiate des écoles, commerces de proximité et services essentiels : la boulangerie de la Place du 8 Mai, l’école élémentaire des Hirondelles ou encore le supermarché de La Grande Paroisse sont accessibles en quelques minutes. La gare de Montereau (ligne R du Transilien) permet de rejoindre Paris en environ une heure, tandis que les villes de Montereau-Fault-Yonne et Sens se trouvent à moins de vingt minutes.Chez Maisons Balency d’Ormoy, nous concevons des habitations entièrement personnalisées selon vos envies ou adaptons nos modèles existants à votre mode de vie. Toutes nos réalisations respectent les dernières normes environnementales RE2020, garantissant un excellent niveau de performance énergétique (DPE A ou B).Faites confiance à Maisons Balency, membre du Groupe Hexaôm, premier constructeur de maisons individuelles en France. Notre équipe d’Ormoy vous accompagne dans chaque étape de votre projet, de la recherche du terrain à la livraison de votre maison.📞 Contactez-nous dès aujourd’hui au (Numéro supprimé) pour concrétiser votre projet de vie à Marolles-sur-Seine.Annonce proposée par un Agent Commercial Partenaire.
Marolles-sur-Seine
TERRAIN ET MAISONBelle Demeure Familiale de 136 m² à bâtir sur un terrain VIABILISÉ de 604 m² à Marolles-sur-Seine (77130) !Au sein d’un environnement paisible et recherché, faites confiance aux Maisons Balency d’Ormoy pour vous réaliser une maison de 4 chambres et de 2 salles-de-bains à partir de 363 000 € (terrain viabilisé + maison hors finitions). Idéalement située en Seine-et-Marne, Marolles-sur-Seine offre une qualité de vie agréable à proximité de toutes commodités : écoles, commerces, pharmacie et boulangerie accessibles en quelques minutes seulement. Le supermarché Intermarché local et le centre sportif se trouvent à moins de dix minutes.Les grandes villes voisines, comme Montereau-Fault-Yonne et Sens, sont accessibles en une vingtaine de minutes, tandis que Melun se rejoint en environ trente-cinq minutes. La gare de Montereau (ligne R du Transilien et TER Bourgogne-Franche-Comté) permet de rejoindre Paris-Gare de Lyon en un peu plus d’une heure, facilitant les déplacements quotidiens.Chez Maisons Balency d’Ormoy, constructeur membre du Groupe Hexaôm, 1er constructeur de maisons individuelles en France, nous réalisons des habitations totalement sur mesure ou personnalisons nos modèles existants selon vos envies. Toutes nos constructions respectent la norme RE2020, garantissant des performances énergétiques optimales avec un DPE A ou B.Notre équipe vous accompagne de la recherche du terrain jusqu’à la remise des clés, pour un projet maîtrisé et unique.Contactez dès maintenant l’agence Maisons Balency d’Ormoy au (Numéro supprimé) pour concrétiser votre projet de vie à Marolles-sur-Seine.Annonce proposée par un Agent Commercial Partenaire.
Marolles-sur-Seine
TERRAIN ET MAISON🏡 Maison bois « Canopée » haut de gamme à bâtir – Marolles-sur-Seine (77130)À Marolles-sur-Seine, charmante commune de Seine-et-Marne, découvrez cette superbe maison bois « Canopée » de 120 m² à construire sur un terrain viabilisé de 604 m², proposée à partir de 406 000 €. Située dans un environnement calme et verdoyant, cette construction haut-de-gamme conjugue élégance contemporaine et performance environnementale.Conçue par Les Maisons Balency d’Ormoy, cette habitation en ossature bois va bien au-delà des standards actuels. Grâce à une conception optimisée et une isolation renforcée, elle offre un confort de vie exceptionnel tout en garantissant un habitat à la fois écologique et économique. Le bois, issu de forêts éco-gérées, présente un bilan carbone positif et permet de réduire de 65 % les déchets sur le chantier par rapport à une construction traditionnelle. Son impact environnemental est 60 % moins important qu’une maison en béton ou en brique, et son isolation thermique, deux fois supérieure, assure un confort optimal été comme hiver.La résistance thermique des murs, proche de R = 6,56 m²·°C/W, élimine tout pont thermique et garantit une efficacité énergétique remarquable. Le chantier, beaucoup plus rapide qu’une construction classique, permet de limiter les frais intercalaires et d’accéder plus vite à votre nouveau logement. La consommation d’eau est, elle aussi, réduite de près de 80 % dès la phase de conception.La maison « Canopée » illustre parfaitement l’expertise de fabrication française des Maisons Balency, avec une conception et un assemblage industrialisés pour un montage rapide et une qualité certifiée. L’équipe d’Ormoy vous accompagne à chaque étape : étude personnalisée, aide à la recherche du terrain, et gestion complète des démarches administratives.Idéalement situé, le terrain profite de la tranquillité du secteur du Chemin de la Vigne tout en restant proche des commodités : école maternelle et primaire, boulangerie-pât
Marolles-sur-Seine
TERRAIN ET MAISONMarolles-sur-Seine (77130), à partir de 220 000 € !Charmant Plain-pied de 70 m² à bâtir sur un terrain viabilisé de 544 m².Découvrez ce projet de maison à réaliser à un prix abordable au sein d’un environnement calme et résidentiel, au coeur de la Seine-et-Marne. Idéalement placé, ce futur lieu de vie se trouve à proximité immédiate des écoles, commerces de proximité et services essentiels : la boulangerie de la Place du 8 Mai, l’école élémentaire des Hirondelles ou encore le supermarché de La Grande Paroisse sont accessibles en quelques minutes. La gare de Montereau (ligne R du Transilien) permet de rejoindre Paris en environ une heure, tandis que les villes de Montereau-Fault-Yonne et Sens se trouvent à moins de vingt minutes.Chez Maisons Balency d’Ormoy, nous concevons des habitations entièrement personnalisées selon vos envies ou adaptons nos modèles existants à votre mode de vie. Toutes nos réalisations respectent les dernières normes environnementales RE2020, garantissant un excellent niveau de performance énergétique (DPE A ou B).Faites confiance à Maisons Balency, membre du Groupe Hexaôm, premier constructeur de maisons individuelles en France. Notre équipe d’Ormoy vous accompagne dans chaque étape de votre projet, de la recherche du terrain à la livraison de votre maison.📞 Contactez-nous dès aujourd’hui au (Numéro supprimé) pour concrétiser votre projet de vie à Marolles-sur-Seine.Annonce proposée par un Agent Commercial Partenaire.
Marolles-sur-Seine
TERRAIN ET MAISONMarolles-sur-Seine (77130), au coeur de la Seine et Marne, à partir de 312 000 € !Belle Maison Design en R+Combles de 100 m² à bâtir sur un terrain viabilisé de 544 m².Découvrez ce projet de maison de 4 chambres et de 2 salles-de-bains, à réaliser à un prix abordable au sein d’un environnement calme et résidentiel, au coeur de la Seine-et-Marne. Idéalement placé, ce futur lieu de vie se trouve à proximité immédiate des écoles, commerces de proximité et services essentiels : la boulangerie de la Place du 8 Mai, l’école élémentaire des Hirondelles ou encore le supermarché de La Grande Paroisse sont accessibles en quelques minutes. La gare de Montereau (ligne R) permet de rejoindre Paris en environ une heure, tandis que les villes de Montereau-Fault-Yonne et Sens (Yonne) se trouvent à moins de vingt minutes.Chez les Maisons Balency d’Ormoy, nous concevons des habitations entièrement personnalisées selon vos envies ou adaptons nos modèles existants à votre mode de vie. Toutes nos réalisations respectent les dernières normes environnementales RE2020, garantissant un excellent niveau de performance énergétique (DPE A ou B).Faites confiance à Maisons Balency, membre du Groupe Hexaôm, premier constructeur de maisons individuelles en France. Notre équipe d’Ormoy vous accompagne dans chaque étape de votre projet, de la recherche du terrain à la livraison de votre maison.Appelez-nous dès à présent au (Numéro supprimé) pour concrétiser votre projet de vie en île de France !Annonce proposée par un Agent Commercial Partenaire.
Barbey
TERRAINTerrain de 1 417 m² à vendre à BarbeyEMPLACEMENT PRIVILÉGIÉ – PROCHE DE SENSÀ Barbey (77130) à proximité de la gare de Montereau (Paris à 60 min avec le Transilien R), donnez vie à votre projet immobilier sur ce terrain de 1 417 m². Il se situe dans un quartier attractif. Il y a des établissements scolaires (de la maternelle au lycée) à moins de 10 minutes en voiture, tout comme quatre crèches à moins de 10 minutes à pied. Côté transports, on trouve trois gares (Villeneuve-la-Guyard, Champigny sur Yonne et Montereau) à moins de 10 minutes en voiture. On trouve des tennis, des bibliothèques, un bowling, un bassin de natation, des commerces, des boulangeries, des supermarchés, des boucheries-charcuteries et des bureaux de poste à quelques minutes du bien.Il est proposé à l’achat pour 88 000 €. Prenez contact avec Anne DELOHEN (tél : (Numéro supprimé)) pour plus d’informations sur ce terrain, sur les modalités de vente ou sur les démarches à suivre. Maisons France Confort Nemours est là pour vous accompagner dans tous vos projets immobiliers.Annonce proposée par un Agent Commercial Partenaire.
La Brosse-Montceaux
TERRAINLa Brosse-Montceaux : terrain de 555 m² à vendreEMPLACEMENT PRIVILÉGIÉ – VUE DÉGAGÉEÀ La Brosse-Montceaux (77940) au pied de la gare de Montereau (Paris à 60 min avec le Transilien R), donnez vie à votre projet immobilier sur ce terrain de 555 m². Il profite d’une vue dégagée. Il est situé dans un secteur prisé. Une école élémentaire y est implantée. Niveau transports, on trouve quatre gares à moins de 10 minutes en voiture. Il y a un tennis, une bibliothèque, un commerce et une épicerie à quelques minutes.Ce terrain est proposé à l’achat pour 49 000 €. Prenez contact avec notre agence (DELOHEN Anne : (Numéro supprimé)) pour tout renseignement sur ce terrain, sur les modalités de vente ou sur les démarches à suivre.Annonce proposée par un Agent Commercial Partenaire.
L’actualité immobilière à Villeneuve-la-Guyard
27/11/2023
02/11/2023
30/10/2023
20/10/2023
16/10/2023
16/10/2023