Maison à construire à Ablis (78660)
Images
Description
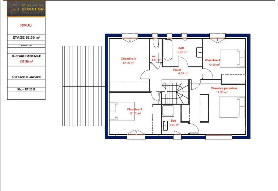
Maisons Evolution vous présente le modèle Rivoli d'une surface habitable de 137,59 m².
Retrouvez au rez-de-chaussée une entrée, un séjour/cuisine de plus de 43 m², un cellier, des WC indépendants, un bureau pouvant également servir de chambre sans oublier le garage attenant au cellier.
A l'étage, cette maison vous offre 3 chambres, une salle de bain, des toilettes indépendantes ainsi qu'une suite parentale ayant dressing et salle d'eau.
Annonce proposée par un Agent Commercial Partenaire.
Logement susceptibles de vous intéresser
Nous vous proposons de découvrir aussi cette sélection de logements situés à moins de 10km de Ablis et qui seraient susceptibles de vous intéresser.
Auneau-Bleury-Saint-Symphorien
TERRAINSitué dans un petit village au calme à seulement 5 minutes de Sainville, 12 minutes d’Auneau et d’Angerville, 20 minutes de Dourdan et 30 minutes de Chartres, Rambouillet et Etampes.Ce terrain à bâtir non viabilisé est déjà clôturéD’une surface totale de 1414m², il dispose d’une façade sur rue d’environ 9 mètres linéaires.En forme de drapeau vous trouverez tout d’abord le chemin de 9 mètres de large sur 64 mètres de long qui vous donnera ensuite accès à un rectangle d’une surface de 32 mètres de long sur 26 mètres de large soit une belle surface de 832m² pour implanter votre projet.Ce bien n’étant pas en lotissement et situé sur une petite commune sans PLU, il n’y à pas de constructeur imposé vous pouvez donc choisir librement votre constructeur, il suffit simplement de respecter le RNU.Si vous souhaitez de plus amples informations sur ce bien, n’hésitez pas à me contacter ! Les honoraires sont à la charge du vendeur.Les informations sur les risques auxquels ce bien est exposé sont disponibles sur le site Géorisques : www. georisques. gouv. fr.Contactez Laurent KNAPIK Entrepreneur Individuel, Agent commercial OptimHome (RSAC N(Numéro supprimé) Greffe de CHARTRES) (Numéro supprimé) (réf. 595337 )
Auneau-Bleury-Saint-Symphorien
TERRAINIdéalement situé dans un petit village au calme à seulement 15 minutes d’Auneau et d’Angerville, 20 minutes de Chartres.Ce terrain à bâtir viabilisé est déjà clôturé pour une surface totale d’environ 587m².Ce bien n’étant pas en lotissement et situé sur une petite commune il n’y à pas de constructeur imposé vous pouvez donc choisir librement votre constructeur.Concernant la construction il vous suffit de respecter les règles du PLUI en vigueur sur le secteur.Si vous souhaitez de plus amples informations sur ce bien, n’hésitez pas à me contacter ! Les honoraires sont à la charge du vendeur.Les informations sur les risques auxquels ce bien est exposé sont disponibles sur le site Géorisques : www. georisques. gouv. fr.Contactez Maeva KNAPIK Entrepreneur Individuel, Agent commercial OptimHome (RSAC N(Numéro supprimé) Greffe de CHARTRES) (Numéro supprimé) (réf. 596045 )
Auneau-Bleury-Saint-Symphorien
TERRAINTerrain de 1 126 m² à vendre à Saint-Symphorien-le-ChâteauPROCHE DE CHARTRESEn vente à deux pas de Chartres à Saint-Symphorien-le-Château (28700), grand terrain. Il est prêt à accueillir votre résidence principale ou secondaire pour toute la famille. On trouve des établissements scolaires primaires à moins de 10 minutes à pied,, comme l’École Maternelle Saint Symphorien le Chateau et une structure d’accueil pour la petite enfance. Niveau transports, il y a la gare Auneau à moins de 10 minutes en voiture. L’autoroute A11 et les nationales N10 et N191 sont accessibles à moins de 6 km. On trouve un commerce dans les environs.Son prix de vente est de 99 000 €. Contactez Orlando PINTO BARRETO ((Numéro supprimé)) pour plus de renseignements sur ce terrain, sur les modalités de vente et sur les démarches à suivre. Concrétisez vos projets immobiliers avec Maisons France Confort Nogent-le-Phaye.Annonce proposée par un Agent Commercial Partenaire.
Ablis
TERRAIN🌳 NOUVEAU LOTISSEMENT À BOINVILLE-LE-GAILLARD (78) 🌳Proche d’Ablis – Un cadre de vie paisible au coeur des Yvelines !Découvrez ce petit lotissement à taille humaine idéalement situé à Boinville-le-Gaillard, charmante commune des Yvelines, à seulement quelques minutes d’Ablis et de ses commerces, écoles et commodités.👉 Parcelles viabilisées prêtes à construire👉 Maisons de plain-pied ou R+1 possibles (selon règlement du lotissement)👉 Environnement calme et verdoyant👉 Accès rapide à la N10 et A11 pour rejoindre Rambouillet, Dourdan ou ParisProfitez d’un cadre de vie privilégié, alliant tranquillité, nature et proximité des services essentiels. Parfait pour votre projet de résidence principale ou familiale !📞 Renseignements et réservations dès maintenant – nombre de lots limité !Annonce proposée par un Agent Commercial Partenaire.
Ablis
TERRAIN ET MAISONMaisons Evolution vous présente le modèle Rivoli d’une surface habitable de 137,59 m². Retrouvez au rez-de-chaussée une entrée, un séjour/cuisine de plus de 43 m², un cellier, des WC indépendants, un bureau pouvant également servir de chambre sans oublier le garage attenant au cellier. A l’étage, cette maison vous offre 3 chambres, une salle de bain, des toilettes indépendantes ainsi qu’une suite parentale ayant dressing et salle d’eau.Annonce proposée par un Agent Commercial Partenaire.
Ablis
TERRAIN ET MAISONLe modèle Cluny est une maison en R+1 au toit 2 pans. Ses baies vitrées dans la pièce de vie donnant sur jardin en font une maison lumineuse et agréable à vivre. Sa surface habitable est de 162 m².Le vaste rez-de-chaussée de 92 m² se compose d’un dégagement menant à un séjour/cuisine confortable de 58 m², une première chambre, une salle d’eau et un WC indépendant. L’accès au garage se fait par le cellier attenant au séjour. L’étage est consacré à l’espace nuit, puisqu’il est composé de 3 chambres et d’une suite parentale. Toutes les chambres ont accès à une salle de bains, une salle d’eau et un WC indépendant.Annonce proposée par un Agent Commercial Partenaire.
Ablis
TERRAIN ET MAISONUn mixte parfait entre classique et contemporain. Le modèle ALESIA offre un design original avec son toit 2 pans, ses grandes lucarnes et sa verrière centrale qui apportent une belle luminosité dans toute la maison. La façade arrière, plus sobre s’ouvre généreusement sur la terrasse et les espaces verts. ALESIA propose 104m² habitables (hors garage accolé) à aménager selon ses envies avec : au RDC une pièce à vivre de 41m², idéale pour se retrouver en famille ou entre amis et une suite parentale. Et à l’étage baigné de lumière grâce à la verrière, 3 chambres séparées qui permettent à chacun de disposer de son espace personnel. Le modèle d’inspiration ALESIA est totalement adaptable à vos envies et besoins. Nous consulter.Annonce proposée par un Agent Commercial Partenaire.
Ablis
TERRAIN ET MAISONPlain-pied GI 3 ch est l’un des modèles phares de la nouvelle gamme Open. Cette maison plain-pied est si bien pensée qu’elle concentre toutes vos attentes en 85 m² ! Le plan a été imaginé avec de grandes ouvertures sur le jardin pour profiter pleinement de l’extérieur. La pièce de vie de presque 40 m² est baignée de lumière, les 3 chambres de plus de 9 m² possèdent chacune un dressing et la salle de bains dispose d’une baignoire. Un WC séparé et un cellier viennent compléter ce plan. De nombreux rangements astucieux permettent de profiter pleinement de tous les espaces dans un environnement épuré, laissant s’exprimer une décoration soignée.Annonce proposée par un Agent Commercial Partenaire.
Ablis
TERRAIN ET MAISONCe plan représente une maison de plain-pied compacte et bien agencée, offrant une surface optimisée pour une vie pratique et confortable. La maison comprend deux chambres lumineuses, respectivement de 10,04 m² et 10,12 m², idéales pour un couple ou une petite famille. Une salle d’eau de 4,56 m², équipée d’une douche, d’un lavabo et d’un WC, se trouve à proximité des chambres pour un accès pratique.L’espace de vie principal, d’une superficie de 23,91 m², combine un salon et une salle à manger, avec une cuisine ouverte intégrée, favorisant la convivialité. Ce séjour spacieux donne un accès direct à l’extérieur. Un dégagement de 0,75 m² relie les différentes parties de la maison, tout en intégrant discrètement des éléments techniques.Un garage de 18,09 m² est attenant à la maison, accessible depuis l’espace de vie, offrant une solution de rangement supplémentaire ou un emplacement pour un véhicule. Les ouvertures ont été pensées pour offrir luminosité et aération, avec des fenêtres bien réparties.Ce plan de maison a été pensé pour évoluer en fonction des besoins de ses occupants. Grâce à son agencement astucieux, il est possible d’envisager une extension vers l’arrière ou sur le côté, que ce soit pour ajouter une chambre supplémentaire, créer un espace bureau ou agrandir l’espace de vie principal. Cette modularité garantit que la maison reste adaptée à chaque étape de la vie, offrant à la fois confort et flexibilité pour accompagner les projets futurs des propriétaires.Annonce proposée par un Agent Commercial Partenaire.
L’actualité immobilière à Ablis
27/11/2023
02/11/2023
30/10/2023
20/10/2023
16/10/2023
16/10/2023