Maison à construire à Bazemont (78580)
Images
Description
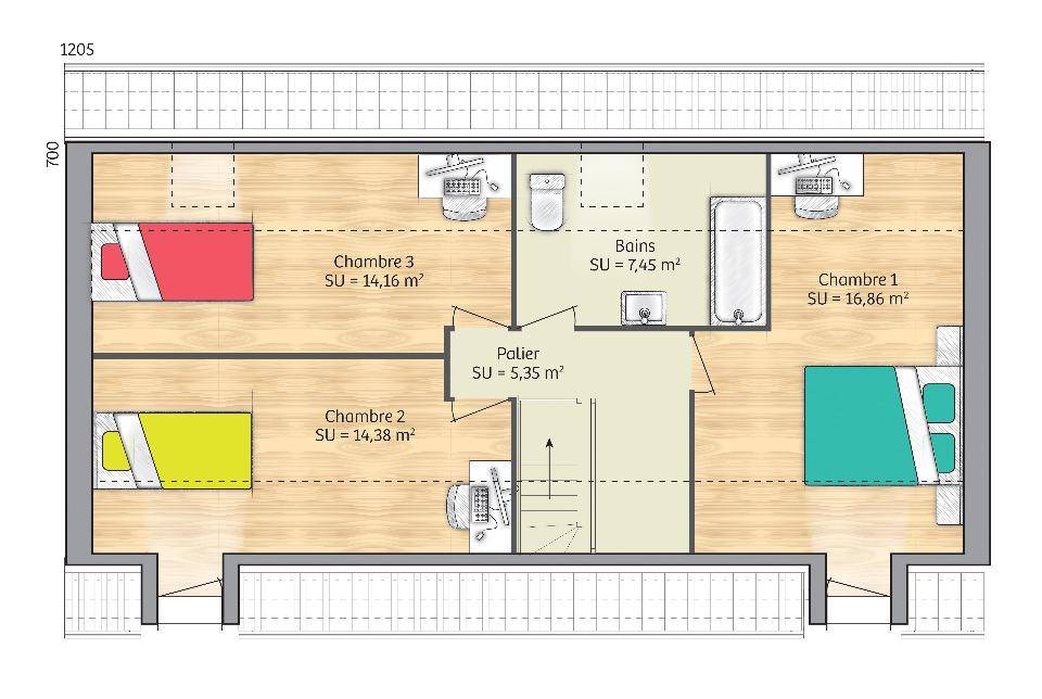
🏡 BAZEMONT - MAISON 5 PIÈCES (90 m²) SUR TERRAIN DE 800 m²
Projet sur-mesure idéal primo-accédant avec Maisons Évolution
À Bazemont (78580), à proximité de la gare de Maule (Transilien N), saisissez l'opportunité de réaliser votre première maison familiale de 5 pièces, 90 m², sur un terrain de 800 m², offrant suffisamment d'espace pour un jardin et vos aménagements extérieurs.
Une maison pratique et fonctionnelle
3 chambres,
Cuisine ouverte et fonctionnelle,
Salle de bains,
2 niveaux lumineux,
Possibilité de personnaliser l'agencement et les finitions avec Maisons Évolution.
Un emplacement pratique
Quartier calme et attractif,
École primaire à proximité pour les familles,
Commerces et services accessibles à quelques minutes : tennis, bibliothèque, commerces,
Votre projet clé en main
Avec Maisons Évolution, bénéficiez :
D'une conception personnalisée adaptée à vos besoins et à votre budget,
D'un suivi complet du chantier jusqu'à la remise des clés,
D'une maison neuve pratique, fonctionnelle et prête à accueillir votre famille.
Prix du projet : 335 400 €
(Terrain + maison, hors frais annexes)
📞 Contact : Caroline BETHERY - (Numéro supprimé)
📍 Maisons Évolution - Agence de Cormeilles-en-Parisis
Un terrain idéal de 800 m² à Bazemont pour construire votre première maison familiale sur-mesure, pratique et accessible.
Logement susceptibles de vous intéresser
Nous vous proposons de découvrir aussi cette sélection de logements situés à moins de 10km de Bazemont et qui seraient susceptibles de vous intéresser.
Goussonville
TERRAINGoussonville : terrain de 1 000 m² à vendreIDÉALEMENT SITUÉ – PROCHE DE VERSAILLESÀ Goussonville (78930) à deux pas de la gare d’Épône-Mézières (Paris à 40 min avec le Transilien J), imaginez la maison de vos rêves sur ce terrain de 1 000 m². Il donne sur un espace vert. Dans un secteur convoité, le terrain idéalement situé est proche des écoles et des commerces. Des établissements scolaires maternelles et élémentaires sont implantés à moins de 10 minutes à pied, tout comme dont l’École Élémentaire Privée Notre-Dame de la Sablonnière. Niveau transports, il y a 10 gares à moins de 10 minutes en voiture. On trouve un tennis dans les environs.Son prix de vente est de 106 000 €. Prenez contact avec notre agence (KUD Morgane : (Numéro supprimé)) pour toute information sur le terrain.
Thoiry
TERRAIN ET MAISONThoiry : maison F4 (74 m²) à vendreMAISON 4 PIÈCES NEUVE – En vente : au pied du Transilien N (gare de Beynes, 50 min de Paris), à Thoiry (78770), laissez vous charmer par cette maison de 4 pièces de plain-pied de 74 m² et de 1 095 m² de terrain.Elle est composée de trois chambres, d’une cuisine ouverte sur le séjour, d’une salle de bains, d’un cellier et d’un garage. Cette maison est neuve.Des écoles maternelles et élémentaires sont implantées dans le quartier. Niveau transports en commun, il y a huit gares à moins de 10 minutes en voiture. On trouve un tennis, une bibliothèque, un commerce, une boulangerie, un supermarché, une boucherie-charcuterie et un bureau de poste à quelques minutes du bien.Elle est proposée à l’achat pour 309 000 €.Contactez Aurélie KTARI ((Numéro supprimé)) pour toute information sur cette maison ou sur les démarches à suivre.
Thoiry
TERRAIN ET MAISONThoiry : maison F5 (100 m²) en venteMAISON 5 PIÈCES NEUVE – À quelques minutes du Transilien N (gare de Beynes, 50 min de Paris), en vente à Thoiry (78770), notre agence Les Maisons Extraco Chambourcy est ravie de vous présenter cette maison de 5 pièces de 100 m².C’est une maison de 2 niveaux. Son intérieur comporte quatre chambres, une cuisine ouverte sur le séjour, une salle de bains, un cellier et un garage. La maison est neuve.Le terrain de la propriété s’étend sur 1 095 m².Des écoles maternelles et élémentaires sont implantées dans le quartier. Niveau transports en commun, on trouve huit gares à moins de 10 minutes en voiture. Il y a un tennis, une bibliothèque, un commerce, une boulangerie, un supermarché, un bureau de poste et une boucherie-charcuterie à proximité.Il est proposé à l’achat pour 339 000 €.Prenez contact avec Aurélie KTARI (tél : (Numéro supprimé)) pour toute question sur cette maison. Les Maisons Extraco Chambourcy vous accompagne dans tous vos projets immobiliers et à toutes les étapes de votre projet.
Thoiry
TERRAIN ET MAISONGAMME BOISVENTE : maison T4 (94 m²) à ThoiryMAISON 4 PIÈCES NEUVE -En vente : à côté de la gare de Beynes (Paris à 50 min par le Transilien N), à Thoiry (78770), nous sommes ravis de vous présenter cette maison de 4 pièces de plain-pied de 94 m². Conçue de plain-pied, elle compte trois chambres, une cuisine ouverte sur le séjour, deux salles de bains, un cellier et un garage.Le terrain du bien est de 1 095 m².Cette maison est neuve.Il y a des établissements scolaires primaires dans le quartier. Niveau transports en commun, on trouve huit gares à moins de 10 minutes en voiture. On trouve un tennis, une bibliothèque, un commerce, une boulangerie, un supermarché, une boucherie-charcuterie et un bureau de poste à proximité.Elle est proposée à l’achat pour 369 000 €.Prenez contact avec Aurélie KTARI ((Numéro supprimé)) pour obtenir de plus amples renseignements sur la maison. Faites de vos projets immobiliers une réalité avec Les Maisons Extraco Chambourcy.
Thoiry
TERRAIN ET MAISONVENTE : maison de 4 pièces (137 m²) à ThoiryPROCHE DE NANTERRE – MAISON 4 PIÈCES NEUVEÀ vendre : au pied du Transilien N (gare de Beynes, 50 min de Paris), nous sommes ravis de vous présenter cette maison de 4 pièces de plain-pied de 137 m² à Thoiry (78770). Son intérieur compte trois chambres, une cuisine ouverte sur le séjour, deux salles de bains, un cellier et un garage.Le terrain du bien s’étend sur 1 095 m².Cette maison est neuve.Des écoles primaires sont implantées dans le quartier. Niveau transports, on trouve huit gares à moins de 10 minutes en voiture. Il y a un tennis, une bibliothèque, un commerce, une boulangerie, un supermarché, une boucherie-charcuterie et un bureau de poste dans les environs.Son prix de vente est de 449 000 €.Prenez contact avec Aurélie KTARI ((Numéro supprimé)) pour plus de renseignements sur cette maison. Les Maisons Extraco Chambourcy est là pour vous accompagner à toutes les étapes de votre projet.
Orgeval
TERRAINVENTE d’un terrain de 730 m² à OrgevalPROCHE DE PARISÀ Orgeval (78630) proche de la gare de Villennes-sur-Seine (Paris à 20 min avec le Transilien J), imaginez la maison de vos rêves sur ce terrain de 730 m². Il y a l’École Élémentaire Privée Sainte Jeanne d’Arc et l’École Élémentaire Louis Pasteur à moins de 10 minutes à pied. Niveau transports en commun, on trouve la ligne de RER A (Poissy) ainsi que 24 gares à moins de 10 minutes en voiture. On trouve une bibliothèque, des commerces, deux boulangeries, deux supermarchés, une boucherie-charcuterie et un bureau de poste à proximité du bien.Son prix de vente est de 240 000 €. Contactez Denis DUCOS ((Numéro supprimé)) pour plus de renseignements sur le terrain ou sur les démarches à suivre. Maisons Balency Pontoise est là pour vous accompagner à toutes les étapes de l’achat.Annonce proposée par un Agent Commercial Partenaire.
Orgeval
TERRAIN ET MAISONVENTE d’une maison de 6 pièces (98 m²) à OrgevalPROCHE DE PARIS – MAISON 6 PIÈCES NEUVEÀ vendre : à côté du Transilien J (gare de Villennes-sur-Seine, 20 min de Paris), Maisons Balency Pontoise vous propose à Orgeval (78630), cette maison de 6 pièces de 98 m².C’est une maison de 2 niveaux. Son intérieur se divise en quatre chambres, une cuisine et une salle de bains. La maison est neuve.Le terrain du bien est de 730 m².L’École Élémentaire Privée Sainte Jeanne d’Arc et l’École Élémentaire Louis Pasteur sont implantées à moins de 10 minutes à pied. Niveau transports, on trouve la ligne de RER A (Poissy) ainsi que 24 gares à moins de 10 minutes en voiture. Il y a une bibliothèque, des commerces, deux boulangeries, deux supermarchés, un bureau de poste et une boucherie-charcuterie à proximité.Son prix de vente est de 504 000 €.Prenez contact avec Denis DUCOS (tél : (Numéro supprimé)) pour tout renseignement sur cette maison, sur les démarches à suivre ou sur les modalités de vente.Annonce proposée par un Agent Commercial Partenaire.
Bazemont
TERRAINPrix : 197000 €.Sur ce terrain de 484 m² à BAZEMONT, Maisons Clairval vous propose de réaliser votre projet de construction de maison individuelle.Maisons Clairval propose de construire votre maison neuve avec toutes les prestations suivantes :- Plan sur-mesure et personnalisé de 2 à 6 chambres- Mode de chauffage au choix- Grands choix d'équipements et de prestations- Matériaux de qualité selon les normes en vigueur- Accompagnement dans le choix et l’acquisition du terrain- Construction conforme à la nouvelle RE 2020Demandez une étude gratuite et personnalisée de votre projet de construction sur ce terrain !Contactez Nicolas REBOUL au (Numéro supprimé) ou au (Numéro supprimé) (Maisons Clairval – Agence de Villemoisson).Prix hors frais de notaire. Terrain sélectionné et vu pour vous sous réserve de disponibilité et au prix indiqué par notre partenaire foncier. Conditions et visuels non contractuels.Cette annonce a été créée et diffusée avec le logiciel VITAHOME.
Jumeauville
TERRAINBeau terrain viabilise de 400m² avec permis de construire R+1 accordé (pouvant être modifié) dans village des Yvelines AU CALME, gare et toutes commodités, à 4kms environ de MAULE et EPONE.Nous réalisons des maisons sur mesure et nous pourrons ensemble modifier les plans selon vos envies, vos besoins et votre budget.Contactez-nous pour en savoir plus et en vue de concrétiser votre rêve.Annonce proposée en partenariat avec un vendeur privé.Garanties et assurances obligatoires comprises. Hors raccordements & branchements. Hors frais de notaire. Photo(s) non contractuelle(s).Prix : 110000 €.Sur ce terrain de 400 m² à JUMEAUVILLE, Les Maisons Belles Demeures vous propose de réaliser votre projet de construction de maison individuelle.Les Maisons Belles Demeures propose de construire votre maison neuve avec toutes les prestations suivantes :- Plan sur-mesure et personnalisé de 2 à 6 chambres- Mode de chauffage au choix- Grands choix d'équipements et de prestations- Matériaux de qualité selon les normes en vigueur- Accompagnement dans le choix et l’acquisition du terrain- Construction conforme à la nouvelle RE 2020Demandez une étude gratuite et personnalisée de votre projet de construction sur ce terrain !Contactez Patryk MAGNIER au (Numéro supprimé) ou au (Numéro supprimé) (Les Maisons Belles Demeures – Agence de Jouars-Pontchartrain).Prix hors frais de notaire. Terrain sélectionné et vu pour vous sous réserve de disponibilité et au prix indiqué par notre partenaire foncier. Conditions et visuels non contractuels.Cette annonce a été créée et diffusée avec le logiciel VITAHOME.
L’actualité immobilière à Bazemont
27/11/2023
02/11/2023
30/10/2023
20/10/2023
16/10/2023
16/10/2023