Maison à construire à Bazoches-sur-Guyonne (78490)
Images
Description
Bazoches-sur-Guyonne : maison de 6 pièces (133 m²) en vente
MAISON 6 PIÈCES NEUVE - PROCHE DE BOULOGNE-BILLANCOURT
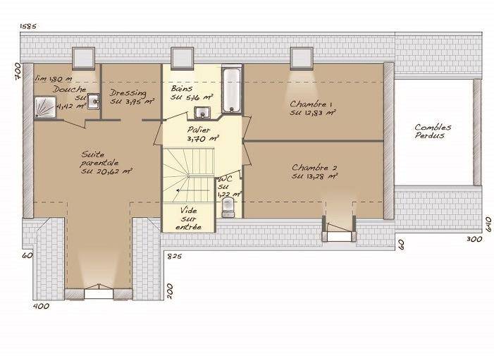
À vendre : à côté de la gare de Montfort-l'Amaury-Méré (Paris à 35 min par le Transilien N), Maisons Balency Coignières vous présente à Bazoches-sur-Guyonne (78490), cette maison de 6 pièces de 133 m² et de 690 m² de terrain.
Cette maison compte 2 niveaux. Son intérieur propose trois chambres, une cuisine et deux salles de bains. La maison est neuve.
Une école élémentaire est implantée dans le quartier. Niveau transports en commun, il y a 2 gares à moins de 10 minutes en voiture. On trouve une bibliothèque à proximité.
Son prix de vente est de 536 400 €.
N'hésitez pas à prendre contact avec notre agence (Arnaud DUTEURTRE : (Numéro supprimé)) pour plus de renseignements sur ce bien ou sur les démarches à suivre. Maisons Balency Coignières vous accompagne dans tous vos projets immobiliers et dans toutes vos démarches.
Annonce proposée par un Agent Commercial Partenaire.
Logement susceptibles de vous intéresser
Nous vous proposons de découvrir aussi cette sélection de logements situés à moins de 10km de Bazoches-sur-Guyonne et qui seraient susceptibles de vous intéresser.
Neauphle-le-Château
TERRAIN ET MAISONMaison de 4 pièces (112 m²) en vente à Neauphle-le-ChâteauEMPLACEMENT PRIVILÉGIÉ – MAISON 4 PIÈCES NEUVEEn vente : à côté de la gare de Plaisir-Grignon (Paris à 25 min par le Transilien N), Les Maisons Extraco Chambourcy vous propose cette maison de 4 pièces de 112 m² et de 350 m² de terrain bénéficiant d’un emplacement privilégié dans Neauphle-le-Château (78640).C’est une maison de 2 niveaux. Son intérieur est composé de quatre chambres, d’une cuisine et de deux salles de bains. Cette maison est neuve.Cette maison se trouve dans un quartier prisé. L’École Élémentaire Emile Serre et l’École Maternelle les Petites Friches sont implantées à moins de 10 minutes à pied. Niveau transports, il y a 11 gares à moins de 10 minutes en voiture. On trouve une bibliothèque, un tennis, une boulangerie, quatre commerces, une boucherie-charcuterie, une épicerie et un bureau de poste à proximité du logement.Son prix de vente est de 414 133 €.Contactez Morgane KUD (tél : (Numéro supprimé)) pour toute information sur la maison ou sur les démarches à suivre.
Neauphle-le-Château
TERRAIN ET MAISONVENTE d’une maison T5 (92 m²) à Neauphle-le-ChâteauEMPLACEMENT PRIVILÉGIÉ – MAISON 5 PIÈCES NEUVEÀ vendre : au pied du Transilien N (gare de Plaisir-Grignon, 25 min de Paris), nous sommes heureux de vous proposer cette maison de 5 pièces de plain-pied de 92 m² bénéficiant d’un emplacement d’exception dans Neauphle-le-Château (78640).Elle est composée de quatre chambres, d’une cuisine et d’une salle de bains. Cette maison est neuve.Le terrain du bien est de 350 m².La maison se situe dans un secteur prisé. On trouve l’École Élémentaire Emile Serre et l’École Maternelle les Petites Friches à moins de 10 minutes à pied. Niveau transports, il y a 11 gares à moins de 10 minutes en voiture. Il y a une bibliothèque, un tennis, une boulangerie, quatre commerces, une épicerie, une boucherie-charcuterie et un bureau de poste dans les environs.Elle est à vendre pour la somme de 339 123 €.N’hésitez pas à prendre contact avec notre agence (Morgane KUD : (Numéro supprimé)) pour plus d’informations sur la maison ou sur les modalités de vente. Donnez vie à vos projets immobiliers avec Les Maisons Extraco Chambourcy.
Neauphle-le-Château
TERRAIN ET MAISONVENTE d’une maison F3 (132 m²) à Neauphle-le-ChâteauEMPLACEMENT PRIVILÉGIÉ – MAISON 3 PIÈCES NEUVEÀ vendre : à deux pas du Transilien N (gare de Plaisir-Grignon, 25 min de Paris), nous vous proposons cette maison de 3 pièces de 132 m² et de 350 m² de terrain bénéficiant d’un emplacement privilégié dans Neauphle-le-Château (78640). Son intérieur dispose d’une chambre, d’une cuisine et d’une salle de bains.Cette maison comporte 2 niveaux. Elle est neuve.Cette maison se trouve dans un quartier recherché. Il y a l’École Élémentaire Emile Serre et l’École Maternelle les Petites Friches à moins de 10 minutes à pied. Côté transports, on trouve 11 gares à moins de 10 minutes en voiture. On trouve une bibliothèque, un tennis, une boulangerie, quatre commerces, une boucherie-charcuterie, une épicerie et un bureau de poste à quelques minutes.Elle est proposée à l’achat pour 464 000 €.Prenez contact avec Morgane KUD (tél : (Numéro supprimé)) pour obtenir de plus amples renseignements sur la maison, sur les démarches à suivre ou sur les modalités de vente. Les Maisons Extraco Chambourcy vous accompagne à toutes les étapes de votre projet et dans tous vos projets immobiliers.
Neauphle-le-Château
TERRAIN ET MAISONMaison T5 (95 m²) à vendre à Neauphle-le-ChâteauEMPLACEMENT PRIVILÉGIÉ – MAISON 5 PIÈCES NEUVEProche du Transilien N (gare de Plaisir-Grignon, 25 min de Paris), nous vous proposons cette maison de 5 pièces de plain-pied de 95 m² bénéficiant d’un emplacement d’exception dans Neauphle-le-Château (78640).Son intérieur inclut quatre chambres, une cuisine et une salle de bains. La maison est neuve.Le terrain du bien est de 350 m².Cette maison se situe dans un secteur convoité. L’École Élémentaire Emile Serre et l’École Maternelle les Petites Friches sont implantées à moins de 10 minutes à pied. Côté transports en commun, il y a 11 gares à moins de 10 minutes en voiture. On trouve une bibliothèque, un tennis, une boulangerie, quatre commerces, un bureau de poste, une épicerie et une boucherie-charcuterie à proximité.Son prix de vente est de 343 783 €.Prenez contact avec Morgane KUD (tél : (Numéro supprimé)) pour toute question sur la propriété ou sur les démarches à suivre. Les Maisons Extraco Chambourcy vous accompagne dans tous vos projets immobiliers et à toutes les étapes de l’achat.
Neauphle-le-Château
TERRAIN ET MAISONMaison de 8 pièces (146 m²) en vente à Neauphle-le-ChâteauEMPLACEMENT PRIVILÉGIÉ – MAISON 8 PIÈCES NEUVEProche du Transilien N (gare de Plaisir-Grignon, 25 min de Paris), ayez le coup de coeur pour cette maison de 8 pièces de 146 m² et de 350 m² de terrain bénéficiant d’un emplacement d’exception dans Neauphle-le-Château (78640).C’est une maison de 2 niveaux. Elle compte six chambres, une cuisine et deux salles de bains. La maison est neuve.Cette propriété se situe dans un secteur prisé. L’École Élémentaire Emile Serre et l’École Maternelle les Petites Friches sont implantées à moins de 10 minutes à pied. Côté transports, il y a 11 gares à moins de 10 minutes en voiture. On trouve une bibliothèque, un tennis, une boulangerie, quatre commerces, une épicerie, un bureau de poste et une boucherie-charcuterie à quelques minutes à peine.Elle est proposée à l’achat pour 469 300 €.Contactez notre agence (KUD Morgane : (Numéro supprimé)) pour tout renseignement sur la maison, sur les modalités de vente ou sur les démarches à suivre. Les Maisons Extraco Chambourcy vous accompagne à toutes les étapes de l’achat et dans tous vos projets immobiliers.
Lévis-Saint-Nom
TERRAIN ET MAISONLévis-Saint-Nom : maison de 6 pièces (114 m²) en venteIDÉALEMENT SITUÉE – MAISON 6 PIÈCES NEUVEÀ côté du Transilien N (gare de La Verrière, 35 min de Paris), nous sommes heureux de vous présenter en vente, idéalement située dans Lévis-Saint-Nom (78320), cette maison de 6 pièces de 114 m² et de 860 m² de terrain.Cette maison possède 2 niveaux. Son intérieur se divise en cinq chambres, une cuisine et deux salles de bains. Cette maison est neuve.Le bien se trouve dans un secteur convoité. Il y a quatre établissements scolaires à moins de 10 minutes à pied et deux crèches. Niveau transports, on trouve les stations de RER Saint-Quentin-En-Yvelines (ligne C) et Saint-Rémy-Lès-Chevreuse (ligne B) ainsi que six gares à moins de 10 minutes en voiture. On trouve un bassin de natation, un tennis, un supermarché, des commerces, trois boulangeries, deux boucheries-charcuteries et une épicerie à quelques minutes de la maison.Il est à vendre pour la somme de 370 000 €.N’hésitez pas à prendre contact avec Morgane KUD ((Numéro supprimé)) pour obtenir de plus amples renseignements sur la maison.
Lévis-Saint-Nom
TERRAIN ET MAISONLévis-Saint-Nom : maison T6 (120 m²) en venteIDÉALEMENT SITUÉE – MAISON 6 PIÈCES NEUVEÀ deux pas de la gare de La Verrière (Paris à 35 min par le Transilien N), nous vous proposons à vendre, idéalement située dans Lévis-Saint-Nom (78320), cette maison de 6 pièces de 120 m².Cette maison possède 2 niveaux. Son intérieur propose quatre chambres, une cuisine et deux salles de bains. Cette maison est neuve.Le terrain du bien s’étend sur 860 m².Cette maison se trouve dans un quartier convoité. Il y a quatre établissements scolaires à moins de 10 minutes à pied et deux crèches. Niveau transports en commun, on trouve les stations de RER Saint-Quentin-En-Yvelines (ligne C) et Saint-Rémy-Lès-Chevreuse (ligne B) ainsi que six gares à moins de 10 minutes en voiture. Il y a un bassin de natation, un tennis, un supermarché, des commerces, trois boulangeries, deux boucheries-charcuteries et une épicerie à quelques minutes à peine.Elle est à vendre pour la somme de 410 340 €.N’hésitez pas à prendre contact avec notre agence (Morgane KUD : (Numéro supprimé)) pour tout renseignement sur la maison ou sur les modalités de vente. Les Maisons Extraco Chambourcy est là pour vous accompagner dans toutes vos démarches.
Lévis-Saint-Nom
TERRAIN ET MAISONVENTE d’une maison 1 pièce (144 m²) à Lévis-Saint-NomIDÉALEMENT SITUÉE – MAISON 1 PIÈCE NEUVEÀ deux pas du Transilien N (gare de La Verrière, 35 min de Paris), venez découvrir en vente, idéalement située dans Lévis-Saint-Nom (78320), cette maison 1 pièce de 144 m². Son intérieur offre six chambres, une cuisine et trois salles de bains.Le terrain de la propriété s’étend sur 860 m².C’est une maison de 2 niveaux. Elle est neuve.La maison se situe dans un quartier convoité. Quatre établissements scolaires se trouvent à moins de 10 minutes à pied, tout comme deux structures d’accueil pour les tout-petits. Niveau transports, il y a les stations de RER Saint-Quentin-En-Yvelines (ligne C) et Saint-Rémy-Lès-Chevreuse (ligne B) ainsi que six gares à moins de 10 minutes en voiture. On trouve un bassin de natation, un tennis, un supermarché, des commerces, trois boulangeries, une épicerie et deux boucheries-charcuteries à quelques minutes à peine.Son prix de vente est de 473 000 €.N’hésitez pas à prendre contact avec Morgane KUD (tél : (Numéro supprimé)) pour tout renseignement sur la maison. Les Maisons Extraco Chambourcy est là pour vous accompagner dans tous vos projets immobiliers.
Lévis-Saint-Nom
TERRAIN ET MAISONMaison F3 (142 m²) à vendre à Lévis-Saint-NomIDÉALEMENT SITUÉE – MAISON 3 PIÈCES NEUVEAu pied de la gare de La Verrière (Paris à 35 min avec le Transilien N), nous sommes heureux de vous présenter cette maison de 3 pièces de 142 m² idéalement située dans Lévis-Saint-Nom (78320).C’est une maison de 2 niveaux. Elle offre une chambre, une cuisine et une salle de bains. Cette maison est neuve.Le terrain du bien s’étend sur 860 m².Le bien est situé dans un quartier recherché. Quatre établissements scolaires se trouvent à moins de 10 minutes à pied, tout comme deux crèches. Niveau transports en commun, il y a les stations de RER Saint-Quentin-En-Yvelines (ligne C) et Saint-Rémy-Lès-Chevreuse (ligne B) ainsi que six gares à moins de 10 minutes en voiture. On trouve un bassin de natation, un tennis, un supermarché, des commerces, trois boulangeries, deux boucheries-charcuteries et une épicerie à quelques minutes à peine.Il est proposé à l’achat pour 469 069 €.N’hésitez pas à prendre contact avec notre agence (Morgane KUD : (Numéro supprimé)) pour obtenir de plus amples informations sur la maison. Les Maisons Extraco Chambourcy est là pour vous accompagner dans toutes vos démarches.
L’actualité immobilière à Bazoches-sur-Guyonne
27/11/2023
02/11/2023
30/10/2023
20/10/2023
16/10/2023
16/10/2023