Maison à construire à Bennecourt (78270)
Images
Description
VENTE d'une maison F5 (120 m²) à Bennecourt
PROCHE DE MANTES-LA-JOLIE - MAISON 5 PIÈCES NEUVE
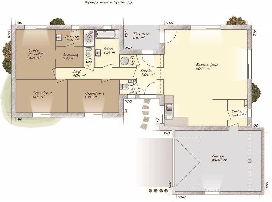
À vendre : à quelques minutes de la gare de Rosny-sur-Seine (Paris à 45 min avec le Transilien J), nous vous présentons à Bennecourt (78270), cette maison de 5 pièces de plain-pied de 120 m². Elle propose trois chambres, une cuisine et deux salles de bains.
Le terrain de la maison est de 745 m².
Cette maison est neuve.
Trois établissements scolaires sont implantés à moins de 10 minutes à pied, tout comme, parmi lesquels le Collège Privé Saint Louis. Côté transports, on trouve trois gares (Bonnières-sur-Seine, Rosny-sur-Seine et Vernon-Giverny) à moins de 10 minutes en voiture. Il y a un port de plaisance, une bibliothèque, des commerces, trois boulangeries, deux boucheries-charcuteries, une épicerie et un bureau de poste dans les environs.
Il est à vendre pour la somme de 376 410 €.
Prenez contact avec notre agence (Karen DELELIS : (Numéro supprimé)) pour obtenir de plus amples informations sur cette maison ou sur les modalités de vente. Donnez vie à vos projets immobiliers avec Maisons Balency Gravigny.
Annonce proposée par un Agent Commercial Partenaire.
Logement susceptibles de vous intéresser
Nous vous proposons de découvrir aussi cette sélection de logements situés à moins de 10km de Bennecourt et qui seraient susceptibles de vous intéresser.
Vernon
TERRAINVENTE : terrain de 1 000 m² à VernonQUARTIER RECHERCHÉGrand terrain proche de la gare de Vernon-Giverny (Paris à 1 h avec le Transilien J). De 1 000 m², ce terrain se situe situé dans un secteur recherché de Vernon (27200). Il donne sur un jardin. Dans un quartier convoité, ce terrain est proche des commerces et des écoles. Il y a des écoles (de la maternelle au lycée) à moins de 10 minutes à pied, tout comme une crèche. Niveau transports en commun, on trouve les gares Vernon-Giverny et Bonnières-sur-Seine à moins de 10 minutes en voiture. L’autoroute A13 et la nationale N13 sont accessibles à moins de 7 km. Il y a une bibliothèque, des boulangeries, quatre commerces, trois épiceries et une supérette à quelques minutes.Il est à vendre pour la somme de 135 000 €. Prenez contact avec notre agence (GOITA Carole : (Numéro supprimé)) pour tout renseignement sur le terrain ou sur les modalités de vente. Donnez vie à vos projets immobiliers avec Extraco Construction Rénovation Les Andelys.
Vernon
TERRAIN ET MAISONVENTE : maison F5 (105 m²) à VernonQUARTIER RECHERCHÉ – MAISON 5 PIÈCES NEUVEÀ vendre : proche de la gare de Vernon-Giverny (Paris à 1 h par le Transilien J), dans un quartier attractif de Vernon (27200), Les Maisons Extraco Les Andelys vous propose cette maison de 5 pièces de 105 m². Son intérieur est composé de quatre chambres, d’une cuisine et de deux salles de bains.Le terrain de la maison est de 1 000 m².Cette maison compte 2 niveaux. Elle est neuve.Cette maison se trouve dans un secteur prisé. Des établissements scolaires du primaire et du secondaire sont implantés à moins de 10 minutes à pied, tout comme une crèche. Côté transports en commun, on trouve deux gares (Vernon-Giverny et Bonnières-sur-Seine) à moins de 10 minutes en voiture. L’autoroute A13 et la nationale N13 sont accessibles à moins de 7 km. Il y a une bibliothèque, des boulangeries, quatre commerces, trois épiceries et une supérette à proximité.Elle est à vendre pour la somme de 329 000 €.Contactez notre agence (Carole GOITA : (Numéro supprimé)) pour plus d’informations sur la maison. Extraco Construction Rénovation Les Andelys vous accompagne dans tous vos projets immobiliers et dans toutes vos démarches.
Vernon
TERRAIN ET MAISONMaison F5 (92 m²) en vente à VernonQUARTIER RECHERCHÉ – MAISON 5 PIÈCES NEUVEÀ deux pas de la gare de Vernon-Giverny (Paris à 1 h par le Transilien J), nous sommes ravis de vous présenter cette maison de 5 pièces de plain-pied de 92 m² à vendre, dans un quartier attractif de Vernon (27200).Elle offre quatre chambres, une cuisine et une salle de bains. La maison est neuve.Le terrain de la propriété s’étend sur 1 000 m².La maison est située dans un secteur convoité. Il y a des établissements scolaires de tous niveaux (de la maternelle au lycée) à moins de 10 minutes à pied, tout comme une crèche. Niveau transports, on trouve les gares Vernon-Giverny et Bonnières-sur-Seine à moins de 10 minutes en voiture. L’autoroute A13 et la nationale N13 sont accessibles à moins de 7 km. Il y a une bibliothèque, des boulangeries, quatre commerces, trois épiceries et une supérette à proximité.Elle est proposée à l’achat pour 319 000 €.Contactez notre agence (GOITA Carole : (Numéro supprimé)) pour obtenir de plus amples informations sur la maison ou sur les modalités de vente. Extraco Construction Rénovation Les Andelys vous accompagne dans toutes vos démarches et dans tous vos projets immobiliers.
Vernon
TERRAIN ET MAISONVernon : maison T4 (80 m²) en venteQUARTIER RECHERCHÉ – MAISON 4 PIÈCES NEUVEProche du Transilien J (gare de Vernon-Giverny, 1 h de Paris), nous vous proposons cette maison de 4 pièces de plain-pied de 80 m² située dans un secteur prisé de Vernon (27200). Conçue de plain-pied, elle est composée de trois chambres, d’une cuisine et d’une salle de bains.Le terrain de la propriété est de 1 000 m².Cette maison est neuve.La propriété est située dans un quartier recherché. Des écoles (de la maternelle au lycée) se trouvent à moins de 10 minutes à pied, tout comme une structure d’accueil pour les tout-petits. Niveau transports en commun, il y a deux gares (Vernon-Giverny et Bonnières-sur-Seine) à moins de 10 minutes en voiture. L’autoroute A13 et la nationale N13 sont accessibles à moins de 7 km. On trouve une bibliothèque, des boulangeries, quatre commerces, trois épiceries et une supérette à proximité.Elle est à vendre pour la somme de 294 000 €.Contactez Carole GOITA ((Numéro supprimé)) pour toute information sur la maison, sur les démarches à suivre ou sur les modalités de vente. Extraco Construction Rénovation Les Andelys vous accompagne dans tous vos projets immobiliers et à toutes les étapes de l’achat.
Vernon
TERRAIN ET MAISONVENTE d’une maison de 5 pièces (86 m²) à VernonQUARTIER RECHERCHÉ – MAISON 5 PIÈCES NEUVEEn vente : au pied de la gare de Vernon-Giverny (Paris à 1 h avec le Transilien J), laissez vous charmer par, nichée dans un quartier convoité de Vernon (27200), cette maison de 5 pièces de 86 m² et de 1 000 m² de terrain. Son intérieur inclut trois chambres, une cuisine et une salle de bains.Cette maison possède 2 niveaux. Elle est neuve.La maison se trouve dans un secteur recherché. Il y a des établissements scolaires de tous types à moins de 10 minutes à pied, tout comme une crèche. Niveau transports en commun, on trouve les gares Vernon-Giverny et Bonnières-sur-Seine à moins de 10 minutes en voiture. L’autoroute A13 et la nationale N13 sont accessibles à moins de 7 km. Il y a une bibliothèque, des boulangeries, quatre commerces, trois épiceries et une supérette dans les environs.Son prix de vente est de 304 000 €.Prenez contact avec Carole GOITA ((Numéro supprimé)) pour obtenir de plus amples renseignements sur la maison.
Vernon
TERRAIN ET MAISONMaison de 4 pièces en structure bois (75 m²) à vendre à VernonQUARTIER RECHERCHÉ – MAISON 4 PIÈCES NEUVEÀ deux pas du Transilien J (gare de Vernon-Giverny, 1 h de Paris), nous sommes ravis de vous proposer cette maison de 4 pièces de plain-pied de 75 m² et de 1 000 m² de terrain construite dans un quartier prisé de Vernon (27200). Elle offre trois chambres, une cuisine et une salle de bains.Cette maison est neuve.La maison est située dans un secteur recherché. Il y a des écoles (de la maternelle au lycée) à moins de 10 minutes à pied, tout comme une crèche. Niveau transports, on trouve les gares Vernon-Giverny et Bonnières-sur-Seine à moins de 10 minutes en voiture. L’autoroute A13 et la nationale N13 sont accessibles à moins de 7 km. Il y a une bibliothèque, des boulangeries, quatre commerces, une supérette et trois épiceries à proximité.Elle est à vendre pour la somme de 309 000 €.Prenez contact avec notre agence (GOITA Carole : (Numéro supprimé)) pour tout renseignement sur le bien, sur les modalités de vente ou sur les démarches à suivre. Extraco Construction Rénovation Les Andelys est là pour vous accompagner à toutes les étapes de l’achat.
Vernon
TERRAIN ET MAISONMaison F5 (183 m²) en vente à VernonQUARTIER RECHERCHÉ – MAISON 5 PIÈCES NEUVEEn vente : à quelques minutes du Transilien J (gare de Vernon-Giverny, 1 h de Paris), dans un secteur attractif de Vernon (27200), laissez vous charmer par cette maison de 5 pièces de 183 m² et de 1 000 m² de terrain. Son intérieur propose trois chambres, une cuisine et trois salles de bains.Cette maison compte 2 niveaux. Elle est neuve.Cette maison se situe dans un quartier recherché. Des établissements scolaires (de la maternelle au lycée) sont implantés à moins de 10 minutes à pied, tout comme une crèche. Niveau transports en commun, on trouve deux gares (Vernon-Giverny et Bonnières-sur-Seine) à moins de 10 minutes en voiture. L’autoroute A13 et la nationale N13 sont accessibles à moins de 7 km. Il y a une bibliothèque, des boulangeries, quatre commerces, une supérette et trois épiceries à quelques minutes à peine.Son prix de vente est de 489 000 €.Prenez contact avec Carole GOITA (tél : (Numéro supprimé)) pour obtenir de plus amples informations sur la maison, sur les démarches à suivre ou sur les modalités de vente.
Chaufour-lès-Bonnières
TERRAINVENTE : terrain de 900 m² à Chaufour-lès-BonnièresIDÉALEMENT SITUÉ – VUE SANS VIS-À-VISÀ Chaufour-lès-Bonnières (78270) proche du Transilien J (gare de Vernon-Giverny, 1 h de Paris), donnez vie à la maison de vos rêves sur ce terrain de 900 m². Ce terrain, sans vis-à-vis, bénéficie d’une exposition sud-ouest. Dans un quartier attractif, le terrain idéalement situé est proche des écoles et des commerces. Il y a une école élémentaire dans le quartier. Niveau transports en commun, on trouve les gares Bonnières-sur-Seine, Vernon-Giverny et Bréval à moins de 10 minutes en voiture. Il y a une boulangerie dans les environs.Ce terrain est proposé à l’achat pour 95 900 €. N’hésitez pas à prendre contact avec Oumayma SONMEZ ((Numéro supprimé)) pour toute question sur le terrain ou sur les démarches à suivre. Donnez vie à vos projets immobiliers avec Les Maisons Extraco Gravigny.
Chaufour-lès-Bonnières
TERRAIN ET MAISONChaufour-lès-Bonnières : maison F4 (84 m²) à vendreIDÉALEMENT SITUÉE – MAISON 4 PIÈCES NEUVEÀ quelques minutes de la gare de Vernon-Giverny (Paris à 1 h avec le Transilien J), nous vous proposons cette maison de 4 pièces de plain-pied de 84 m² idéalement située dans Chaufour-lès-Bonnières (78270).Elle comporte trois chambres, une cuisine et une salle de bains. La maison est neuve.Le terrain de la propriété s’étend sur 900 m².Cette maison se trouve dans un quartier convoité. Une école élémentaire y est implantée. Niveau transports, il y a trois gares (Bonnières-sur-Seine, Vernon-Giverny et Bréval) à moins de 10 minutes en voiture. On trouve une boulangerie dans les environs.Elle est proposée à l’achat pour 240 900 €.Prenez contact avec Oumayma SONMEZ ((Numéro supprimé)) pour plus de renseignements sur la maison ou sur les modalités de vente.
L’actualité immobilière à Bennecourt
27/11/2023
02/11/2023
30/10/2023
20/10/2023
16/10/2023
16/10/2023