Maison à construire à Boissets (78910)
Images
Description
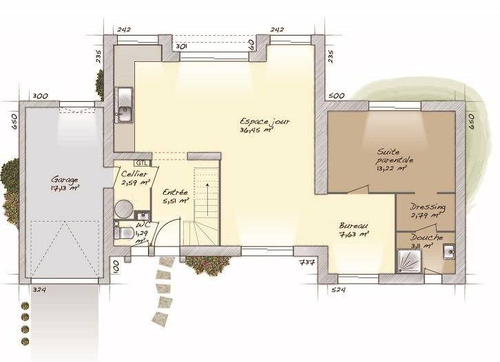
VENTE : maison de 6 pièces (90 m²) à Boissets
IDÉALEMENT SITUÉE - MAISON 6 PIÈCES NEUVE
À proximité de la gare de Tacoignières-Richebourg (Paris à 50 min par le Transilien N), en vente idéalement située dans Boissets (78910), nous sommes ravis de vous proposer cette maison de 6 pièces de 90 m². Son intérieur propose quatre chambres, une cuisine et deux salles de bains.
Le terrain de cette maison est de 974 m².
Cette maison comporte 2 niveaux. Elle est neuve.
Cette maison est située dans un quartier convoité. Une école élémentaire y est implantée. On trouve un tennis, une bibliothèque et un commerce dans les environs.
Elle est à vendre pour la somme de 463 540 €.
N'hésitez pas à prendre contact avec notre agence (DUTEURTRE Thibault : (Numéro supprimé)) pour plus d'informations sur la propriété. Maisons Balency Coignières vous accompagne à toutes les étapes de votre projet et dans toutes vos démarches.
Annonce proposée par un Agent Commercial Partenaire.
Logement susceptibles de vous intéresser
Nous vous proposons de découvrir aussi cette sélection de logements situés à moins de 10km de Boissets et qui seraient susceptibles de vous intéresser.
Boissets
TERRAINTerrain de 974 m² en vente à BoissetsIDÉALEMENT SITUÉÀ Boissets (78910) à proximité de la gare de Tacoignières-Richebourg (Paris à 50 min avec le Transilien N), donnez vie à la maison de vos rêves sur ce terrain de 974 m². Ce terrain, avec une exposition sud-est, donne sur un jardin. Dans un secteur prisé, le terrain idéalement situé est proche des commerces et des écoles. Il y a une école élémentaire dans le quartier. Niveau transports, on trouve quatre gares à moins de 10 minutes en voiture. On trouve un tennis, une bibliothèque et un commerce à quelques minutes du bien.Ce terrain est à vendre pour la somme de 145 900 €. Prenez contact avec notre agence (Thibault DUTEURTRE : (Numéro supprimé)) pour toute information sur le terrain, sur les modalités de vente ou sur les démarches à suivre. Maisons Balency Coignières est là pour vous accompagner à toutes les étapes de votre projet.Annonce proposée par un Agent Commercial Partenaire.
Richebourg
TERRAIN ET MAISONVENTE : maison T4 (81 m²) à RichebourgIDÉALEMENT SITUÉE – MAISON 4 PIÈCES NEUVEEn vente : à deux pas du Transilien N (gare de Tacoignières-Richebourg, 50 min de Paris), découvrez, idéalement située dans Richebourg (78550), cette maison de 4 pièces de plain-pied de 81 m² et de 417 m² de terrain.Son intérieur comporte trois chambres, une cuisine et une salle de bains. Cette maison est neuve.La maison est située dans un quartier prisé. Une école primaire y est implantée. Il y a une bibliothèque, une boulangerie et deux commerces à proximité.Son prix de vente est de 335 500 €.Contactez notre agence (DUTEURTRE Thibault : (Numéro supprimé)) pour toute question sur la propriété ou sur les démarches à suivre. Concrétisez vos projets immobiliers avec Maisons Balency Coignières.Annonce proposée par un Agent Commercial Partenaire.
Richebourg
TERRAINVENTE : terrain de 506 m² à RichebourgIDÉALEMENT SITUÉAu pied du Transilien N (gare de Tacoignières-Richebourg, 50 min de Paris) à Richebourg (78550), grand terrain. Il est prêt à accueillir votre projet de construction pour toute la famille. Ce terrain, avec vue sur jardin, bénéficie d’une exposition sud-est. Dans un quartier convoité, ce terrain idéalement situé est proche des écoles et des commerces. Il y a une école primaire dans le quartier. Il y a une bibliothèque, une boulangerie et deux commerces dans les environs.Son prix de vente est de 139 000 €. Contactez Thibault DUTEURTRE ((Numéro supprimé)) pour toute question sur ce terrain ou sur les démarches à suivre.Annonce proposée par un Agent Commercial Partenaire.
Richebourg
TERRAIN ET MAISONVENTE : maison de 3 pièces (71 m²) à RichebourgIDÉALEMENT SITUÉE – MAISON 3 PIÈCES NEUVEÀ quelques minutes de la gare de Tacoignières-Richebourg (Paris à 50 min avec le Transilien N), nous vous proposons cette maison de 3 pièces de plain-pied de 71 m² idéalement située dans Richebourg (78550).Elle offre deux chambres, une cuisine et une salle de bains. Cette maison est neuve.Le terrain de la propriété est de 506 m².La maison se situe dans un secteur recherché. Une école primaire y est implantée. Il y a une bibliothèque, une boulangerie et deux commerces à proximité.Elle est à vendre pour la somme de 350 500 €.Contactez notre agence (Thibault DUTEURTRE : (Numéro supprimé)) pour tout renseignement sur la propriété ou sur les modalités de vente.Annonce proposée par un Agent Commercial Partenaire.
Richebourg
TERRAIN ET MAISONRichebourg : maison de 5 pièces (90 m²) en venteIDÉALEMENT SITUÉE – MAISON 5 PIÈCES NEUVEÀ vendre : à deux pas du Transilien N (gare de Tacoignières-Richebourg, 50 min de Paris), idéalement située dans Richebourg (78550), nous sommes ravis de vous proposer cette maison de 5 pièces de 90 m² et de 506 m² de terrain avec vue sur jardin.Cette maison est de plain-pied. Elle inclut trois chambres, une cuisine et une salle de bains. Cette maison est neuve.La maison se situe dans un secteur attractif. On y trouve une école primaire. Il y a une bibliothèque, une boulangerie et deux commerces dans les environs.Elle est proposée à l’achat pour 385 500 €.Prenez contact avec notre agence (Thibault DUTEURTRE : (Numéro supprimé)) pour plus de renseignements sur la propriété, sur les démarches à suivre ou sur les modalités de vente. Maisons Balency Coignières vous accompagne à toutes les étapes de l’achat et dans tous vos projets immobiliers.Annonce proposée par un Agent Commercial Partenaire.
Boissets
TERRAINBoissets : terrain de 902 m² à vendreIDÉALEMENT SITUÉÀ Boissets (78910) au pied du Transilien N (gare de Tacoignières-Richebourg, 50 min de Paris), projetez la maison de vos rêves sur ce terrain de 902 m². Il donne sur un jardin et est orienté au sud-est. Dans un secteur attractif, ce terrain idéalement situé est proche des écoles et des commerces. Une école élémentaire est implantée dans le quartier. Niveau transports en commun, il y a quatre gares à moins de 10 minutes en voiture. On trouve un tennis, une bibliothèque et un commerce dans les environs.Ce terrain est à vendre pour la somme de 149 900 €. Contactez Thibault DUTEURTRE (tél : (Numéro supprimé)) pour plus de renseignements sur le terrain, sur les modalités de vente ou sur les démarches à suivre. Maisons Balency Coignières vous accompagne à toutes les étapes de votre projet et dans tous vos projets immobiliers.Annonce proposée par un Agent Commercial Partenaire.
Boissets
TERRAIN ET MAISONVENTE : maison T4 (81 m²) à BoissetsIDÉALEMENT SITUÉE – MAISON 4 PIÈCES NEUVEEn vente : à côté du Transilien N (gare de Tacoignières-Richebourg, 50 min de Paris), nous vous présentons cette maison de 4 pièces de plain-pied de 81 m², idéalement située dans Boissets (78910). Elle est composée de trois chambres, d’une cuisine et d’une salle de bains.Le terrain de cette maison s’étend sur 974 m².La maison est neuve.Cette maison se situe dans un quartier convoité. Une école élémentaire y est implantée. Niveau transports en commun, on trouve quatre gares à moins de 10 minutes en voiture. Il y a un tennis, une bibliothèque et un commerce dans les environs.Son prix de vente est de 360 540 €.Contactez Thibault DUTEURTRE (tél : (Numéro supprimé)) pour plus de renseignements sur la maison.Annonce proposée par un Agent Commercial Partenaire.
Richebourg
TERRAIN ET MAISONVENTE : maison T3 (71 m²) à RichebourgIDÉALEMENT SITUÉE – MAISON 3 PIÈCES NEUVEProche de la gare de Tacoignières-Richebourg (Paris à 50 min par le Transilien N), nous sommes ravis de vous proposer cette maison de 3 pièces de 71 m² et de 425 m² de terrain avec vue sur jardin idéalement située dans Richebourg (78550). Son intérieur dispose de deux chambres, d’une cuisine et d’une salle de bains.Cette maison est de plain-pied. Elle est neuve.La maison se situe dans un quartier recherché. Une école primaire y est implantée. On trouve une bibliothèque, une boulangerie et deux commerces à proximité de la maison.Son prix de vente est de 330 500 €.Prenez contact avec Thibault DUTEURTRE ((Numéro supprimé)) pour tout renseignement sur la maison ou sur les démarches à suivre. Concrétisez vos projets immobiliers avec Maisons Balency Coignières.Annonce proposée par un Agent Commercial Partenaire.
Houdan
TERRAINVENTE d’un terrain de 480 m² à HoudanIDÉALEMENT SITUÉÀ quelques minutes du Transilien N (50 min de Paris) à Houdan (78550), terrain de 480 m². Réalisez-y votre projet de construction. Ce terrain, avec vue sur jardin, est exposé au sud-est. Dans un quartier attractif, le terrain idéalement situé est proche des commerces et des écoles. Il y a quatre établissements scolaires à moins de 10 minutes à pied et, comme l’École Élémentaire Privée Sainte Jeanne d’Arc, l’École Maternelle Arc En Ciel ou le Collège François Mauriac. Niveau transports en commun, on trouve quatre gares à moins de 10 minutes en voiture. On trouve un tennis, un bassin de natation, des commerces, des boulangeries, un supermarché, une supérette et deux épiceries à proximité. Le marché Rue d’Epernon a lieu tous les vendredis matin.Ce terrain est proposé à l’achat pour 179 000 €. Contactez notre agence (DUTEURTRE Thibault : (Numéro supprimé)) pour plus d’informations sur le terrain ou sur les modalités de vente. Maisons Balency Coignières est là pour vous accompagner dans toutes vos démarches.Annonce proposée par un Agent Commercial Partenaire.
L’actualité immobilière à Boissets
27/11/2023
02/11/2023
30/10/2023
20/10/2023
16/10/2023
16/10/2023