Maison à construire à Bréval (78980)
Images
Description
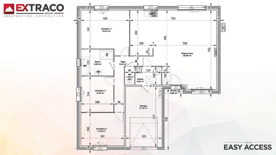
VENTE d'une maison de 4 pièces (98 m²) à Bréval
PROCHE GARE - MAISON 4 PIÈCES NEUVE
En vente : localisée à quelques kilomètres d'Évreux, proche de la gare de Bréval (78980), découvrez cette maison de 4 pièces de plain-pied de 98 m² et de 433 m² de terrain. Elle est composée de trois chambres, d'une cuisine et d'une salle de bains.
La maison est neuve.
Le Collège les Nénuphars, l'École Élémentaire les Mille Couleurs et l'École Maternelle la Ribambelle sont implantés à moins de 10 minutes à pied. Niveau transports en commun, il y a la gare Bréval dans un rayon de 1 km. On trouve un tennis, des commerces, une boulangerie, un supermarché, un bureau de poste et deux boucheries-charcuteries dans les environs.
Elle est à vendre pour la somme de 228 300 €.
Contactez Oumayma SONMEZ ((Numéro supprimé)) pour plus d'informations sur la maison ou sur les démarches à suivre. Faites de vos projets immobiliers une réalité avec Les Maisons Extraco Gravigny.
Logement susceptibles de vous intéresser
Nous vous proposons de découvrir aussi cette sélection de logements situés à moins de 10km de Bréval et qui seraient susceptibles de vous intéresser.
La Chaussée-d'Ivry
TERRAINVENTE : terrain de 1 023 m² à La Chaussée-d’IvryIDÉALEMENT SITUÉ – PROCHE D’ÉVREUXÀ vendre à quelques kilomètres d’Évreux à La Chaussée-d’Ivry (28260), grand terrain. Il est prêt à accueillir votre projet de construction pour toute la famille. Il bénéficie d’une exposition sud. Dans un quartier attractif, ce terrain idéalement situé est proche des commerces et des écoles. L’École Élémentaire François Coolen est implantée à moins de 10 minutes à pied. Côté transports en commun, on trouve deux gares (Bueil et Bréval) à moins de 10 minutes en voiture. L’autoroute A13 et les nationales N12, N13 et N154 sont accessibles à moins de 17 km. Il y a un tennis et une boulangerie à proximité.Son prix de vente est de 90 000 €. Contactez notre agence (Benjamin GRZESKOWIAK : (Numéro supprimé)) pour tout renseignement sur ce terrain ou sur les démarches à suivre. Donnez vie à vos projets immobiliers avec Les Maisons Extraco Gravigny.
La Chaussée-d'Ivry
TERRAIN ET MAISONLa Chaussée-d’Ivry : maison de 6 pièces (118 m²) à vendreIDÉALEMENT SITUÉE – MAISON 6 PIÈCES NEUVEÀ 29 km d’Évreux, à vendre idéalement située dans La Chaussée-d’Ivry (28260), nous vous proposons cette maison de 6 pièces de 118 m² et de 1 023 m² de terrain. Elle comporte quatre chambres, une cuisine et deux salles de bains.Il s’agit d’une maison de 2 niveaux. Elle est neuve.Cette maison se trouve dans un quartier attractif. L’École Élémentaire François Coolen est implantée à moins de 10 minutes à pied. Niveau transports, on trouve les gares Bueil et Bréval à moins de 10 minutes en voiture. L’autoroute A13 et les nationales N12, N13 et N154 sont accessibles à moins de 17 km. Il y a un tennis et une boulangerie dans les environs.Elle est à vendre pour la somme de 341 200 €.Prenez contact avec Benjamin GRZESKOWIAK (tél : (Numéro supprimé)) pour obtenir de plus amples informations sur la maison ou sur les modalités de vente. Les Maisons Extraco Gravigny est là pour vous accompagner dans tous vos projets immobiliers.
La Chaussée-d'Ivry
TERRAIN ET MAISONVENTE d’une maison de 4 pièces (91 m²) à La Chaussée-d’IvryIDÉALEMENT SITUÉE – MAISON 4 PIÈCES NEUVEÀ vendre à deux pas d’Évreux, nous vous proposons cette maison de 4 pièces de plain-pied de 91 m² et de 1 023 m² de terrain, idéalement située dans La Chaussée-d’Ivry (28260).Son intérieur dispose de trois chambres, d’une cuisine et d’une salle de bains. La maison est neuve.Cette maison est située dans un secteur attractif. L’École Élémentaire François Coolen est implantée à moins de 10 minutes à pied. Côté transports, il y a deux gares (Bueil et Bréval) à moins de 10 minutes en voiture. L’autoroute A13 et les nationales N12, N13 et N154 sont accessibles à moins de 17 km. On trouve un tennis et une boulangerie à proximité du bien.Son prix de vente est de 244 350 €.N’hésitez pas à prendre contact avec Benjamin GRZESKOWIAK ((Numéro supprimé)) pour tout renseignement sur la propriété.
La Chaussée-d'Ivry
TERRAIN ET MAISONVENTE : maison F4 (81 m²) à La Chaussée-d’IvryIDÉALEMENT SITUÉE – MAISON 4 PIÈCES NEUVEEn vente : à quelques kilomètres d’Évreux, votre agence Les Maisons Extraco Gravigny est heureuse de vous présenter cette maison de 4 pièces de 81 m² idéalement située dans La Chaussée-d’Ivry (28260). Elle compte deux chambres, une cuisine et une salle de bains.Le terrain du bien s’étend sur 1 023 m².Cette maison comporte 2 niveaux. Elle est neuve.Cette maison est située dans un secteur convoité. Il y a l’École Élémentaire François Coolen à moins de 10 minutes à pied. Niveau transports, on trouve deux gares (Bueil et Bréval) à moins de 10 minutes en voiture. L’autoroute A13 et les nationales N12, N13 et N154 sont accessibles à moins de 17 km. Il y a un tennis et une boulangerie dans les environs.Son prix de vente est de 238 663 €.N’hésitez pas à prendre contact avec Benjamin GRZESKOWIAK ((Numéro supprimé)) pour tout renseignement sur la maison.
Bréval
TERRAINVENTE : terrain de 433 m² à BrévalPROCHE GARE – VUE SANS VIS-À-VISEn vente à quelques kilomètres d’Évreux à Bréval (78980), terrain de 433 m². Il est prêt à accueillir votre projet de construction pour toute la famille. Ce terrain, avec une exposition sud, profite d’une vue sans vis-à-vis. Non loin de la gare, ce terrain proche de la gare est proche des commerces et des écoles. Il y a le Collège les Nénuphars, l’École Élémentaire les Mille Couleurs et l’École Maternelle la Ribambelle à moins de 10 minutes à pied. Niveau transports en commun, on trouve la gare Bréval juste à côté. Il y a un tennis, des commerces, une boulangerie, un supermarché, deux boucheries-charcuteries et un bureau de poste dans les environs.Il est proposé à l’achat pour 125 000 €. Contactez Oumayma SONMEZ (tél : (Numéro supprimé)) pour toute question sur ce terrain, sur les modalités de vente ou sur les démarches à suivre. Faites de vos projets immobiliers une réalité avec Les Maisons Extraco Gravigny.
Bueil
TERRAINBueil : terrain de 509 m² à vendreIDÉALEMENT SITUÉ – VUE SANS VIS-À-VISÀ deux pas d’Évreux à Bueil (27730), grand terrain. Il est prêt à accueillir votre projet de construction pour toute la famille. Il profite d’une vue sans vis-à-vis et bénéficie d’une exposition sud-ouest. Dans un quartier prisé, le terrain idéalement situé est proche des commerces et des écoles. Il y a l’École Maternelle Jérôme Bossuyt et l’École Primaire Paul Delabre à moins de 10 minutes à pied. Niveau transports en commun, on trouve la gare Bueil juste à côté. La nationale N13 est accessible à 9 km. Il y a deux commerces, une boulangerie et un supermarché dans les environs.Il est proposé à l’achat pour 44 900 €. Prenez contact avec notre agence (SONMEZ Oumayma : (Numéro supprimé)) pour toute question sur ce terrain ou sur les démarches à suivre. Les Maisons Extraco Gravigny vous accompagne à toutes les étapes de votre projet et dans tous vos projets immobiliers.
Chaufour-lès-Bonnières
TERRAINVENTE : terrain de 900 m² à Chaufour-lès-BonnièresIDÉALEMENT SITUÉ – VUE SANS VIS-À-VISÀ Chaufour-lès-Bonnières (78270) proche du Transilien J (gare de Vernon-Giverny, 1 h de Paris), donnez vie à la maison de vos rêves sur ce terrain de 900 m². Ce terrain, sans vis-à-vis, bénéficie d’une exposition sud-ouest. Dans un quartier attractif, le terrain idéalement situé est proche des écoles et des commerces. Il y a une école élémentaire dans le quartier. Niveau transports en commun, on trouve les gares Bonnières-sur-Seine, Vernon-Giverny et Bréval à moins de 10 minutes en voiture. Il y a une boulangerie dans les environs.Ce terrain est proposé à l’achat pour 95 900 €. N’hésitez pas à prendre contact avec Oumayma SONMEZ ((Numéro supprimé)) pour toute question sur le terrain ou sur les démarches à suivre. Donnez vie à vos projets immobiliers avec Les Maisons Extraco Gravigny.
Bréval
TERRAIN ET MAISONMaison de 4 pièces (84 m²) en vente à BrévalPROCHE GARE – MAISON 4 PIÈCES NEUVEÀ vendre : localisée à deux pas d’Évreux, venez découvrir cette maison de 4 pièces de plain-pied de 84 m² et de 433 m² de terrain proche de la gare de Bréval (78980).Elle est composée de trois chambres, d’une cuisine et d’une salle de bains. Cette maison est neuve.Il y a le Collège les Nénuphars, l’École Élémentaire les Mille Couleurs et l’École Maternelle la Ribambelle à moins de 10 minutes à pied. Niveau transports, on trouve la gare Bréval juste à côté. Il y a un tennis, des commerces, une boulangerie, un supermarché, deux boucheries-charcuteries et un bureau de poste à quelques minutes.Elle est à vendre pour la somme de 270 000 €.Prenez contact avec notre agence (Oumayma SONMEZ : (Numéro supprimé)) pour obtenir de plus amples informations sur la maison, sur les démarches à suivre ou sur les modalités de vente. Donnez vie à vos projets immobiliers avec Les Maisons Extraco Gravigny.
Bréval
TERRAIN ET MAISONVENTE : maison F5 (92 m²) à BrévalPROCHE GARE – MAISON 5 PIÈCES NEUVEÀ vendre : à 30 km d’Évreux, nous sommes heureux de vous proposer cette maison de 5 pièces de plain-pied de 92 m² et de 433 m² de terrain, proche de la gare de Bréval (78980).Elle compte quatre chambres, une cuisine et une salle de bains. Cette maison est neuve.Le Collège les Nénuphars, l’École Élémentaire les Mille Couleurs et l’École Maternelle la Ribambelle se trouvent à moins de 10 minutes à pied. Côté transports en commun, il y a la gare Bréval dans les alentours. On trouve un tennis, des commerces, une boulangerie, un supermarché, un bureau de poste et deux boucheries-charcuteries à quelques minutes du logement.Elle est à vendre pour la somme de 279 900 €.Contactez notre agence (SONMEZ Oumayma : (Numéro supprimé)) pour plus de renseignements sur la maison ou sur les démarches à suivre.
L’actualité immobilière à Bréval
27/11/2023
02/11/2023
30/10/2023
20/10/2023
16/10/2023
16/10/2023