Maison à construire à Clairefontaine-en-Yvelines (78120)
Images
Description
Opportunité à saisir ! Projet de construction d'une maison d'exception BALENCY sur mesure
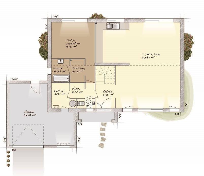
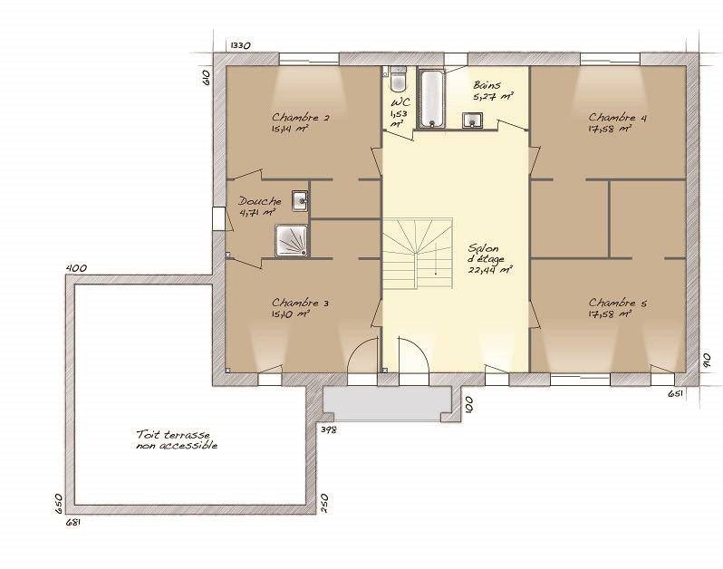
Dans un cadre privilégié, découvrez ce projet unique de construction d'une maison sur mesure, pensée pour allier élégance, confort et prestations haut de gamme. Sur un terrain de 610 m², cette future propriété offrira une surface habitable de 200 m², conçue selon vos envies et vos exigences.
Caractéristiques principales :
- Architecture contemporaine ou classique selon vos préférences
- Matériaux nobles et finitions de qualité supérieure
- Grands volumes lumineux avec baies vitrées et hauteurs sous plafond
- Cuisine équipée haut de gamme ouverte sur un vaste espace de vie
- Suites parentales avec dressing et salle de bain privative
- Espaces personnalisables : bureau, salle de sport, home cinéma...
- Système de chauffage et climatisation gainable pour un confort thermique optimal et une intégration discrète digne d'un palace
- Domotique intégrée pour un confort optimal
- Jardin paysager avec possibilité de piscine, terrasse, pool house...
Localisation idéale :
Située dans un environnement calme et résidentiel, à proximité des commodités, écoles, transports et axes principaux, cette maison incarne le parfait équilibre entre tranquillité et vie active.
Un projet clé en main :
Accompagnement complet par des professionnels reconnus : architectes, artisans, décorateurs. Vous choisissez, nous réalisons.
Pour plus d'informations, merci de nous contacter au (Numéro supprimé)
Annonce proposée par un Agent Commercial Partenaire.
Logement susceptibles de vous intéresser
Nous vous proposons de découvrir aussi cette sélection de logements situés à moins de 10km de Clairefontaine-en-Yvelines et qui seraient susceptibles de vous intéresser.
Rambouillet
TERRAINÀ seulement 10 min de Rambouillet, découvrez ce beau projet de maison neuve à construire sur un terrain plat et arboré de 1 280 m², situé dans un environnement calme et verdoyant.Cette maison moderne de 105 m² habitables offre :3 chambres à l’étage,Une belle pièce de vie lumineuse avec cuisine ouverte,Salle de bains + 2 WC,Garage acollé et cellier. Ses atouts :Construction neuve RE 2020Excellente isolation et chauffage économique (pompe à chaleur)Plan 100 % personnalisableGrand terrain de 1 280 m², idéal pour terrasse, piscine ou jardinSaint-Hilarion (78125) – cadre paisible, à proximité de Rambouillet, commerces et gare.Étude gratuite et personnalisée sur demande !Il est à vendre pour la somme de 360 900 €. Contactez Orlando PINTO BARRETO (tél : (Numéro supprimé)) pour obtenir de plus amples informations sur le ce projet.Annonce proposée par un Agent Commercial Partenaire.
Rambouillet
TERRAINSitué à Rambouillet, proche de toutes commodités, découvrez ce beau terrain constructible de 375m² en lot arrière avec une emprise au sol max. de 50% soit 187m².*Servitude de passage et de réseaux divers d’une largeur de 3m.*L’emprise au sol maximale autorisée est limitée à 50 % de la superficie du terrain à bâtir, soit 187 m2.*Le coefficient biotope surfacique minimum est de 30% soit 113 m2 dont 75m2 en pleine terre.*Zone UDa du PLU.*Réseaux existants sur rue.*Dimension du terrain à bâtir :14,5 m x 25,7 m en moyenne. Prix 225000 €. Honoraires d’agence 5.00 % TTC inclus à la charge de l’acquéreur.Prix hors honoraires 214285.71 €.Non soumis au DPE.Les informations sur les risques auxquels ce bien est exposé sont disponibles sur le site Géorisques : (Lien supprimé). Sur ce site seront également consultables une fiche d’information sur les obligations de débroussaillement et une carte des zones soumises à cette obligation.La présente annonce immobilière a été rédigée sous la responsabilité éditoriale de FONTARENSKY Karen, mandataire indépendant en immobilier (sans détention de fonds), agent commercial de la SASU THE DOOR MAN, titulaire de la carte de démarchage immobilier pour le compte de la société THE DOOR MAN SASU.
La Celle-les-Bordes
TERRAINVENTE d’un terrain de 645 m² à La Celle-les-BordesIDÉALEMENT SITUÉ – PROCHE DE VERSAILLESÀ La Celle-les-Bordes (78720) au pied de la gare de Rambouillet (Paris à 35 min avec le Transilien N), venez découvrir ce terrain de 645 m². Il se trouve dans un quartier convoité. On y trouve une école primaire. Côté transports en commun, il y a deux gares (Rambouillet et Le Perray-en-Yvelines) à moins de 10 minutes en voiture. On trouve un tennis et une bibliothèque dans les environs.Il est proposé à l’achat pour 180 000 €. Contactez notre agence (Guillaume SAVATTE : (Numéro supprimé)) pour tout renseignement sur ce terrain ou sur les démarches à suivre. Maisons France Confort Nogent-le-Phaye est là pour vous accompagner dans tous vos projets immobiliers.Annonce proposée par un Agent Commercial Partenaire.
Auffargis
TERRAINLe Perray-en-Yvelines : terrain de 1 492 m² en ventePROCHE DE VERSAILLESGrand terrain à deux pas de Versailles. De 1 492 m², ce terrain se situe dans Le Perray-en-Yvelines (78610). Il y a des établissements scolaires maternelles et élémentaires à moins de 10 minutes à pied,, comme l’École Élémentaire la Barantonnerie, l’École Élémentaire les Platanes ou l’École Élémentaire Privée les Pastoureaux et une crèche. Niveau transports en commun, on trouve la gare Le Perray-en-Yvelines à quelques pas du terrain. Il y a une bibliothèque, un tennis, des commerces, une boulangerie, une boucherie-charcuterie et un bureau de poste dans les environs.Il est à vendre pour la somme de 335 000 €. Contactez notre agence (PINTO BARRETO Orlando : (Numéro supprimé)) pour toute information sur ce terrain ou sur les démarches à suivre. Maisons France Confort Nogent-le-Phaye vous accompagne à toutes les étapes de l’achat et dans tous vos projets immobiliers.Annonce proposée par un Agent Commercial Partenaire.
Rambouillet
TERRAINVENTE : terrain de 1 492 m² au Perray-en-YvelinesPROCHE DE VERSAILLESAu Perray-en-Yvelines (78610) à 23 km de Versailles, projetez la maison de vos rêves sur ce terrain de 1 492 m². Des écoles maternelles et élémentaires sont implantées à moins de 10 minutes à pied, dont l’École Élémentaire la Barantonnerie, l’École Élémentaire les Platanes et l’École Élémentaire Privée les Pastoureaux, tout comme une crèche. Côté transports en commun, il y a la gare Le Perray-en-Yvelines à quelques pas du bien. On trouve une bibliothèque, un tennis, des commerces, une boulangerie, une boucherie-charcuterie et un bureau de poste à proximité.Il est proposé à l’achat pour 335 000 €. Prenez contact avec notre agence (PINTO BARRETO Orlando : (Numéro supprimé)) pour toute information sur ce terrain, sur les modalités de vente ou sur les démarches à suivre. Maisons France Confort Nogent-le-Phaye est là pour vous accompagner à toutes les étapes de votre projet.Annonce proposée par un Agent Commercial Partenaire.
Bullion
TERRAINVENTE d’un terrain de 650 m² à BullionPROCHE DE BOULOGNE-BILLANCOURTGrand terrain à côté du RER C (station Dourdan la Forêt, 1 h de Paris). De 650 m², ce terrain se situe dans Bullion (78830). Il y a des écoles maternelles et élémentaires dans le quartier. Niveau transports en commun, on trouve la ligne de RER C (Dourdan-La-Forêt) ainsi que les gares Dourdan La Forêt et Dourdan à moins de 10 minutes en voiture. Il y a un tennis, une boulangerie et une épicerie dans les environs.Son prix de vente est de 160 000 €. N’hésitez pas à prendre contact avec notre agence (PINTO BARRETO Orlando : (Numéro supprimé)) pour obtenir de plus amples informations sur ce terrain. Maisons France Confort Nogent-le-Phaye vous accompagne dans toutes vos démarches et à toutes les étapes de votre projet.Annonce proposée par un Agent Commercial Partenaire.
Bonnelles
TERRAINVENTE : terrain de 650 m² à BullionPROCHE DE BOULOGNE-BILLANCOURTÀ Bullion (78830) proche de la station Dourdan la Forêt (Paris à 1 h avec le RER C), découvrez ce terrain de 650 m². Des établissements scolaires maternelles et élémentaires sont implantés dans le quartier. Côté transports en commun, il y a la ligne de RER C (Dourdan-La-Forêt) ainsi que deux gares (Dourdan La Forêt et Dourdan) à moins de 10 minutes en voiture. On trouve un tennis, une boulangerie et une épicerie dans les environs.Il est proposé à l’achat pour 160 000 €. Prenez contact avec notre agence (PINTO BARRETO Orlando : (Numéro supprimé)) pour obtenir de plus amples informations sur ce terrain, sur les modalités de vente ou sur les démarches à suivre. Maisons France Confort Nogent-le-Phaye vous accompagne dans tous vos projets immobiliers et à toutes les étapes de l’achat.Annonce proposée par un Agent Commercial Partenaire.
Rochefort-en-Yvelines
TERRAINVENTE d’un terrain de 650 m² à BullionPROCHE DE BOULOGNE-BILLANCOURTÀ Bullion (78830) à deux pas de la station Dourdan la Forêt (Paris à 1 h par le RER C), imaginez la maison de vos rêves sur ce terrain de 650 m². Des écoles maternelles et élémentaires sont implantées dans le quartier. Niveau transports en commun, il y a la ligne de RER C (Dourdan-La-Forêt) ainsi que deux gares (Dourdan La Forêt et Dourdan) à moins de 10 minutes en voiture. On trouve un tennis, une boulangerie et une épicerie dans les environs.Il est à vendre pour la somme de 160 000 €. Prenez contact avec Orlando PINTO BARRETO (tél : (Numéro supprimé)) pour tout renseignement sur ce terrain ou sur les démarches à suivre. Concrétisez vos projets immobiliers avec Maisons France Confort Nogent-le-Phaye.Annonce proposée par un Agent Commercial Partenaire.
Sonchamp
TERRAINSonchamp : terrain de 480 m² en ventePROCHE DE VERSAILLESÀ proximité du Transilien N (gare de Rambouillet, 35 min de Paris) à Sonchamp (78120), terrain de 480 m². L’École Primaire la Genetière est implantée à moins de 10 minutes à pied. Niveau transports, il y a la station de RER Dourdan-La-Forêt (ligne C) ainsi que trois gares (Rambouillet, Gazeran et Dourdan La Forêt) à moins de 10 minutes en voiture. On trouve un tennis, un commerce et une épicerie à quelques minutes du bien.Il est à vendre pour la somme de 162 000 €. Prenez contact avec Orlando PINTO BARRETO (tél : (Numéro supprimé)) pour toute question sur le terrain. Faites de vos projets immobiliers une réalité avec Maisons France Confort Nogent-le-Phaye.Annonce proposée par un Agent Commercial Partenaire.
L’actualité immobilière à Clairefontaine-en-Yvelines
27/11/2023
02/11/2023
30/10/2023
20/10/2023
16/10/2023
16/10/2023