Maison à construire à Conflans-Sainte-Honorine (78700)
Images
Description
🏡 PROJET DE CONSTRUCTION - MAISON 5 PIÈCES (98 m²) À CONFLANS-SAINTE-HONORINE (78700)
Vivez dans une maison neuve à votre image, à seulement 20 minutes de Paris !
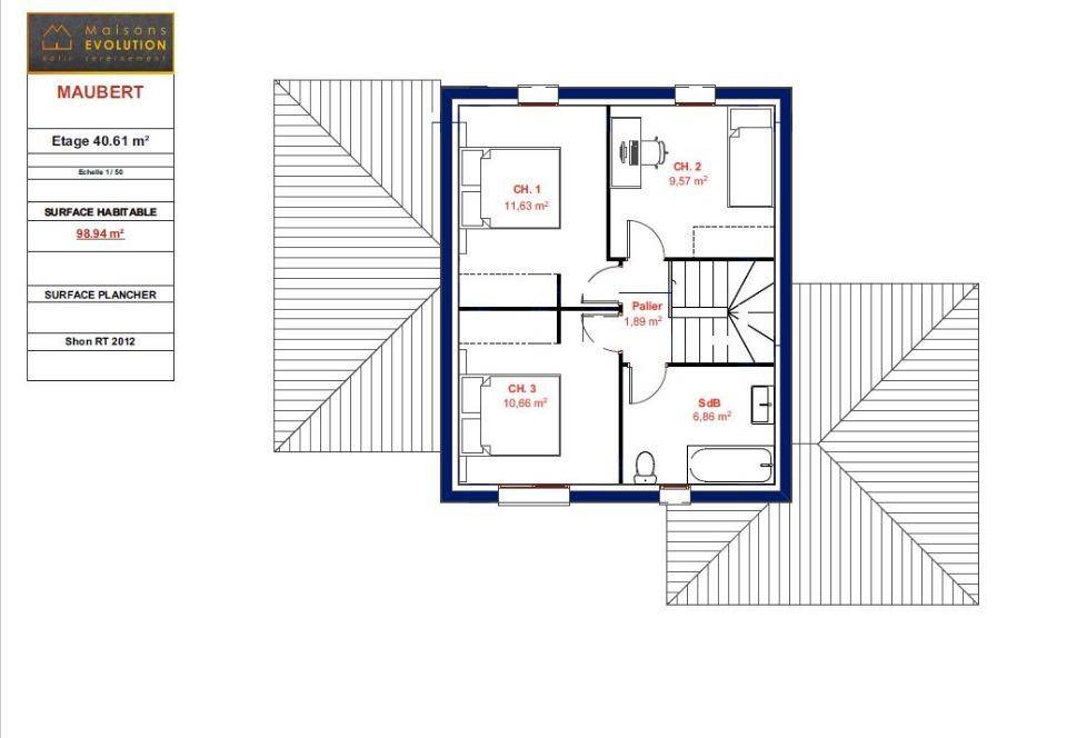
Maisons Évolution Cormeilles-en-Parisis vous propose un projet de construction sur mesure d'une maison moderne de 5 pièces (98 m²) sur un terrain de 310 m², idéalement situé au pied du Transilien J à Conflans-Sainte-Honorine.
Une maison familiale et lumineuse :
Surface habitable : 98 m² sur 2 niveaux
4 chambres spacieuses, dont possibilité de suite parentale
Belle pièce de vie ouverte sur le jardin
2 salles de bains modernes
Maison 100 % personnalisable (plans, finitions, aménagements intérieurs)
Conçue selon la réglementation environnementale RE2020, cette maison allie performance énergétique, confort et esthétique contemporaine.
Un emplacement privilégié :
À quelques pas de la gare SNCF de Conflans-Sainte-Honorine (ligne J - Paris Saint-Lazare en 20 min)
Écoles, crèches, commerces et services accessibles à pied
Quartier calme et recherché, proche de toutes les commodités : boulangeries, supermarché, tennis, bibliothèque, bureau de poste, commerces de proximité...
Prix global du projet : 374 900 € (terrain + maison, hors frais annexes)
📞 Contactez Caroline BETHERY au (Numéro supprimé) pour plus d'informations ou pour concevoir votre projet de maison personnalisée avec Maisons Évolution.
Logement susceptibles de vous intéresser
Nous vous proposons de découvrir aussi cette sélection de logements situés à moins de 10km de Conflans-Sainte-Honorine et qui seraient susceptibles de vous intéresser.
Maurecourt
TERRAINMaurecourt : terrain de 239 m² à vendreIDÉALEMENT SITUÉ – PROCHE DE PARISÀ proximité du Transilien J (25 min de Paris) à Maurecourt (78780), terrain de 239 m². Ce terrain, avec vue sur jardin, est exposé au sud. Dans un secteur recherché, le terrain idéalement situé est proche des écoles et des commerces. Il y a l’École Élémentaire Tilleuls, l’École Élémentaire la Cerisaie et l’École Maternelle Chantebelle à moins de 10 minutes à pied et trois structures d’accueil pour les tout-petits. Côté transports, on trouve le RER A et C ainsi que 33 gares à moins de 10 minutes en voiture. Il y a une bibliothèque, un tennis, des commerces, trois boulangeries, un bureau de poste, trois épiceries et une boucherie-charcuterie dans les environs.Ce terrain est à vendre pour la somme de 179 000 €. Contactez notre agence (KUD Morgane : (Numéro supprimé)) pour toute question sur le terrain ou sur les modalités de vente. Les Maisons Extraco Chambourcy est là pour vous accompagner à toutes les étapes de votre projet.
Maurecourt
TERRAIN ET MAISONMaurecourt : maison T6 (114 m²) en venteIDÉALEMENT SITUÉE – MAISON 6 PIÈCES NEUVEÀ vendre : proche du Transilien J (25 min de Paris), idéalement située dans Maurecourt (78780), découvrez cette maison de 6 pièces de 114 m² et de 239 m² de terrain.Il s’agit d’une maison de 2 niveaux. Elle est composée de cinq chambres, d’une cuisine et de deux salles de bains. Cette maison est neuve.Cette propriété se trouve dans un quartier attractif. Il y a l’École Élémentaire Tilleuls, l’École Élémentaire la Cerisaie et l’École Maternelle Chantebelle à moins de 10 minutes à pied et trois structures d’accueil pour les enfants en bas âge. Côté transports, on trouve deux lignes de RER (A et C) ainsi que 33 gares à moins de 10 minutes en voiture. On trouve une bibliothèque, un tennis, des commerces, trois boulangeries, une boucherie-charcuterie, un bureau de poste et trois épiceries dans les environs.Son prix de vente est de 370 239 €.N’hésitez pas à prendre contact avec notre agence (KUD Morgane : (Numéro supprimé)) pour tout renseignement sur la maison ou sur les modalités de vente. Les Maisons Extraco Chambourcy est là pour vous accompagner à toutes les étapes de l’achat.
Maurecourt
TERRAIN ET MAISONMaison F5 (100 m²) en vente à MaurecourtIDÉALEMENT SITUÉE – MAISON 5 PIÈCES NEUVEÀ vendre : à proximité du Transilien J (25 min de Paris), nous vous proposons cette maison de 5 pièces de 100 m² et de 239 m² de terrain idéalement située dans Maurecourt (78780).Cette maison compte 2 niveaux. Elle comporte quatre chambres, une cuisine et une salle de bains. Cette maison est neuve.Le bien se trouve dans un secteur attractif. Il y a l’École Élémentaire Tilleuls, l’École Élémentaire la Cerisaie et l’École Maternelle Chantebelle à moins de 10 minutes à pied et trois structures d’accueil pour les enfants en bas âge. Côté transports en commun, on trouve les lignes A et C du RER ainsi que 33 gares à moins de 10 minutes en voiture. On trouve une bibliothèque, un tennis, des commerces, trois boulangeries, trois épiceries, un bureau de poste et une boucherie-charcuterie à proximité.Il est à vendre pour la somme de 365 691 €.Prenez contact avec notre agence (KUD Morgane : (Numéro supprimé)) pour toute information sur la maison, sur les modalités de vente ou sur les démarches à suivre. Les Maisons Extraco Chambourcy vous accompagne à toutes les étapes de votre projet et dans tous vos projets immobiliers.
Maurecourt
TERRAIN ET MAISONMaison de 5 pièces (137 m²) à vendre à MaurecourtIDÉALEMENT SITUÉE – MAISON 5 PIÈCES NEUVEEn vente : à côté de la gare (Paris à 25 min avec le Transilien J), Les Maisons Extraco Chambourcy vous présente cette maison de 5 pièces de 137 m² et de 239 m² de terrain idéalement située dans Maurecourt (78780).Il s’agit d’une maison de 2 niveaux. Elle comporte quatre chambres, une cuisine et une salle de bains. Cette maison est neuve.La maison est située dans un quartier recherché. Il y a l’École Élémentaire Tilleuls, l’École Élémentaire la Cerisaie et l’École Maternelle Chantebelle à moins de 10 minutes à pied et trois structures d’accueil pour la petite enfance. Niveau transports, on trouve le RER A et C ainsi que 33 gares à moins de 10 minutes en voiture. Il y a une bibliothèque, un tennis, des commerces, trois boulangeries, une boucherie-charcuterie, trois épiceries et un bureau de poste dans les environs.Elle est proposée à l’achat pour 459 900 €.Contactez Morgane KUD ((Numéro supprimé)) pour toute question sur la maison ou sur les modalités de vente.
Maurecourt
TERRAIN ET MAISONMaison T5 (114 m²) en vente à MaurecourtIDÉALEMENT SITUÉE – MAISON 5 PIÈCES NEUVEEn vente : à côté du Transilien J (25 min de Paris), idéalement située dans Maurecourt (78780), notre agence Les Maisons Extraco Chambourcy est ravie de vous proposer cette maison de 5 pièces de plain-pied de 114 m². Son intérieur offre quatre chambres, une cuisine et une salle de bains.Le terrain de la propriété s’étend sur 239 m².La maison est neuve.Le bien se situe dans un quartier prisé. Il y a l’École Élémentaire Tilleuls, l’École Élémentaire la Cerisaie et l’École Maternelle Chantebelle à moins de 10 minutes à pied et trois crèches. Niveau transports en commun, on trouve les lignes A et C du RER ainsi que 33 gares à moins de 10 minutes en voiture. Il y a une bibliothèque, un tennis, des commerces, trois boulangeries, trois épiceries, une boucherie-charcuterie et un bureau de poste à quelques minutes du logement.Il est proposé à l’achat pour 355 372 €.Contactez notre constructeur (Morgane KUD : (Numéro supprimé)) pour obtenir de plus amples informations sur la maison.
Menucourt
TERRAINVENTE d’un terrain de 563 m² à MenucourtPROCHE DE BOULOGNE-BILLANCOURTGrand terrain à côté du Transilien J (gare de Vaux-sur-Seine, 35 min de Paris). De 563 m², ce terrain se situe dans Menucourt (95180). Cinq établissements scolaires sont implantés à moins de 10 minutes à pied, tout comme une crèche. Niveau transports, on trouve les lignes de RER A et C ainsi que 26 gares à moins de 10 minutes en voiture. Il y a une bibliothèque, un tennis, une boulangerie et trois commerces dans les environs. Enfin, le marché Place du marché/Square du 19 mars 1962 a lieu chaque samedi.Il est proposé à l’achat pour 211 525 €. N’hésitez pas à prendre contact avec Denis DUCOS ((Numéro supprimé)) pour plus de renseignements sur ce terrain ou sur les démarches à suivre. Donnez vie à vos projets immobiliers avec Maisons Balency Pontoise.Annonce proposée par un Agent Commercial Partenaire.
Saint-Ouen-l'Aumône
TERRAINSaint-Ouen-l’Aumône : terrain de 337 m² à vendreÀ Saint-Ouen-l’Aumône (95310) à quelques minutes du RER C (station Saint-Ouen-l’Aumône Liesse, 35 min de Paris), découvrez ce terrain de 337 m². L’École Primaire les Bourseaux, l’École Maternelle la Prairie et l’École Élémentaire la Prairie sont implantées à moins de 10 minutes à pied. Niveau transports, on trouve les lignes de RER C et A ainsi que 36 gares à moins de 10 minutes en voiture. Il y a une bibliothèque, un bassin de natation, trois boulangeries, des commerces et deux épiceries dans les environs.Il est à vendre pour la somme de 185 000 €. Prenez contact avec Denis DUCOS (tél : (Numéro supprimé)) pour toute information sur ce terrain. Faites de vos projets immobiliers une réalité avec Maisons Balency Pontoise.Annonce proposée par un Agent Commercial Partenaire.
Andrésy
TERRAINVENTE d’un terrain de 1 054 m² à AndrésyPROCHE DE PARISÀ Andrésy (78570) à 500 m du Transilien J (30 min de Paris), donnez vie à votre résidence principale ou secondaire sur ce terrain de 1 054 m². L’École Maternelle Saint-Exupéry et l’École Élémentaire Antoine de Saint-Exupéry se trouvent à moins de 10 minutes à pied. Côté transports, il y a la gare Andrésy à proximité. On trouve une bibliothèque, un tennis, quatre commerces, deux boulangeries, un bureau de poste et une épicerie dans les environs. Enfin, 2 marchés animent le quartier.Son prix de vente est de 201 000 €. Prenez contact avec Denis DUCOS ((Numéro supprimé)) pour toute question sur ce terrain.Annonce proposée par un Agent Commercial Partenaire.
Éragny
TERRAINVENTE d’un terrain de 265 m² à ÉragnyPROCHE DE PARISÀ deux pas de la gare d’Éragny-Neuville (Paris à 30 min par le Transilien J) à Éragny (95610), terrain de 265 m². Réalisez-y la maison de vos rêves. Des établissements scolaires (de la maternelle au lycée) sont implantés à moins de 10 minutes à pied. Niveau transports, il y a la gare Éragny-Neuville dans les environs. On trouve une bibliothèque, deux tennis, un bassin de natation, des commerces, des boulangeries, trois supermarchés, un bureau de poste et des boucheries-charcuteries à proximité.Il est proposé à l’achat pour 160 200 €. Contactez Denis DUCOS (tél : (Numéro supprimé)) pour tout renseignement sur ce terrain. Maisons Balency Pontoise est là pour vous accompagner dans tous vos projets immobiliers.Annonce proposée par un Agent Commercial Partenaire.
L’actualité immobilière à Conflans-Sainte-Honorine
27/11/2023
02/11/2023
30/10/2023
20/10/2023
16/10/2023
16/10/2023