Maison à construire à Dampierre-en-Yvelines (78720)
Images
Description
Dampierre-en-Yvelines : maison T6 (114 m²) en vente
IDÉALEMENT SITUÉE - MAISON 6 PIÈCES NEUVE
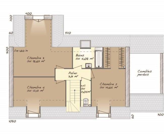
À vendre : au pied du Transilien N (gare de Coignières, 40 min de Paris), Maisons Balency Coignières vous propose, idéalement située dans Dampierre-en-Yvelines (78720), cette maison de 6 pièces de 114 m².
Cette maison possède 2 niveaux. Elle compte quatre chambres, une cuisine et deux salles de bains. La maison est neuve.
Le terrain du bien s'étend sur 609 m².
La maison est située dans un secteur prisé. On y trouve une école primaire. Niveau transports en commun, il y a la ligne de RER B (Saint-Rémy-Lès-Chevreuse) ainsi que cinq gares à moins de 10 minutes en voiture. Il y a un tennis, une boulangerie, un commerce et une épicerie à proximité de la maison.
Elle est à vendre pour la somme de 511 600 €.
Contactez notre agence (Thibault DUTEURTRE : (Numéro supprimé)) pour plus de renseignements sur la maison. Maisons Balency Coignières est là pour vous accompagner dans tous vos projets immobiliers.
Annonce proposée par un Agent Commercial Partenaire.
Logement susceptibles de vous intéresser
Nous vous proposons de découvrir aussi cette sélection de logements situés à moins de 10km de Dampierre-en-Yvelines et qui seraient susceptibles de vous intéresser.
Magny-les-Hameaux
TERRAINMagny-les-Hameaux : terrain de 315 m² en venteParis à 35 min (RER B, Saint-Rémy-lès-Chevreuse) – Terrain de 315 m² bénéficiant d’un emplacement privilégié dans Magny-les-Hameaux (78114).À proximité : RER (lignes B et C), gares, établissements scolaires, crèches, établissements d’enseignement supérieur, marchés, tennis, bibliothèques, bassins de natation, bowling, supermarchés, commerces, boulangeries, bureaux de poste et boucheries-charcuteries. Paris à 26 km.Son prix de vente est de 215 000 €. N’hésitez pas à prendre contact avec Steeve KANOR (tél : (Numéro supprimé)) pour toute information sur le terrain. Donnez vie à vos projets immobiliers avec Maisons Evolution Tigery.Annonce proposée par un Agent Commercial Partenaire.
Magny-les-Hameaux
TERRAIN ET MAISONVENTE d’une maison de 4 pièces (104 m²) à Magny-les-HameauxParis à 35 min (RER B, Saint-Rémy-lès-Chevreuse) – À découvrir bénéficiant d’un emplacement privilégié dans Magny-les-Hameaux (78114) : maison neuve 4 pièces en vente. 2 niveaux, surface de 104 m² sur 315 m² de terrain. Elle offre trois chambres, une cuisine et une salle de bains.Proche RER (lignes B et C), gares, établissements scolaires, crèches, établissements du supérieur, marchés, tennis, bibliothèques, bassins de natation, bowling, supermarchés, commerces, boulangeries, supérettes et bureaux de poste. Paris à 26 km.Cette maison de 4 pièces est à vendre pour la somme de 479 500 €.Contactez Steeve KANOR ((Numéro supprimé)) pour obtenir de plus amples renseignements sur la maison. Maisons Evolution Tigery vous accompagne dans toutes vos démarches et dans tous vos projets immobiliers.Annonce proposée par un Agent Commercial Partenaire.
Magny-les-Hameaux
TERRAIN ET MAISONVENTE : maison de 4 pièces (78 m²) à Magny-les-HameauxParis à 35 min (RER B, Saint-Rémy-lès-Chevreuse) – À découvrir bénéficiant d’un emplacement d’exception dans Magny-les-Hameaux (78114) : maison neuve 4 pièces à vendre, 2 niveaux, 78 m² sur 315 m² de terrain. Elle inclut trois chambres, une cuisine et une salle de bains.Proche RER (lignes B et C), gares, établissements scolaires, crèches, établissements du supérieur, marchés, tennis, bibliothèques, bassins de natation, bowling, supermarchés, commerces, boulangeries, poissonneries et bureaux de poste. Paris à 26 km.Cette maison de 4 pièces est à vendre pour la somme de 399 800 €.Prenez contact avec notre agence (Steeve KANOR : (Numéro supprimé)) pour toute question sur la maison ou sur les démarches à suivre. Concrétisez vos projets immobiliers avec Maisons Evolution Tigery.Annonce proposée par un Agent Commercial Partenaire.
Magny-les-Hameaux
TERRAIN ET MAISONVENTE d’une maison F7 (104 m²) à Magny-les-HameauxParis à 35 min (RER B, Saint-Rémy-lès-Chevreuse) – Bénéficiant d’un emplacement privilégié dans Magny-les-Hameaux (78114), maison neuve 7 pièces à vendre avec 2 niveaux, une surface de 104 m² sur un terrain de 315 m². Elle est composée de six chambres, d’une cuisine et de deux salles de bains.À dix minutes : RER (lignes B et C), gares, établissements scolaires, crèches, établissements du supérieur, marchés, tennis, bibliothèques, bassins de natation, bowling, supermarchés, commerces, boulangeries, boucheries-charcuteries et bureaux de poste. Paris à 26 km.Cette maison de 7 pièces est à vendre pour la somme de 509 800 €.Prenez contact avec Steeve KANOR (tél : (Numéro supprimé)) pour toute information sur la maison ou sur les démarches à suivre. Maisons Evolution Tigery est là pour vous accompagner dans tous vos projets immobiliers.Annonce proposée par un Agent Commercial Partenaire.
Lévis-Saint-Nom
TERRAIN ET MAISONLévis-Saint-Nom : maison de 6 pièces (114 m²) en venteIDÉALEMENT SITUÉE – MAISON 6 PIÈCES NEUVEÀ côté du Transilien N (gare de La Verrière, 35 min de Paris), nous sommes heureux de vous présenter en vente, idéalement située dans Lévis-Saint-Nom (78320), cette maison de 6 pièces de 114 m² et de 860 m² de terrain.Cette maison possède 2 niveaux. Son intérieur se divise en cinq chambres, une cuisine et deux salles de bains. Cette maison est neuve.Le bien se trouve dans un secteur convoité. Il y a quatre établissements scolaires à moins de 10 minutes à pied et deux crèches. Niveau transports, on trouve les stations de RER Saint-Quentin-En-Yvelines (ligne C) et Saint-Rémy-Lès-Chevreuse (ligne B) ainsi que six gares à moins de 10 minutes en voiture. On trouve un bassin de natation, un tennis, un supermarché, des commerces, trois boulangeries, deux boucheries-charcuteries et une épicerie à quelques minutes de la maison.Il est à vendre pour la somme de 370 000 €.N’hésitez pas à prendre contact avec Morgane KUD ((Numéro supprimé)) pour obtenir de plus amples renseignements sur la maison.
Lévis-Saint-Nom
TERRAIN ET MAISONLévis-Saint-Nom : maison T6 (120 m²) en venteIDÉALEMENT SITUÉE – MAISON 6 PIÈCES NEUVEÀ deux pas de la gare de La Verrière (Paris à 35 min par le Transilien N), nous vous proposons à vendre, idéalement située dans Lévis-Saint-Nom (78320), cette maison de 6 pièces de 120 m².Cette maison possède 2 niveaux. Son intérieur propose quatre chambres, une cuisine et deux salles de bains. Cette maison est neuve.Le terrain du bien s’étend sur 860 m².Cette maison se trouve dans un quartier convoité. Il y a quatre établissements scolaires à moins de 10 minutes à pied et deux crèches. Niveau transports en commun, on trouve les stations de RER Saint-Quentin-En-Yvelines (ligne C) et Saint-Rémy-Lès-Chevreuse (ligne B) ainsi que six gares à moins de 10 minutes en voiture. Il y a un bassin de natation, un tennis, un supermarché, des commerces, trois boulangeries, deux boucheries-charcuteries et une épicerie à quelques minutes à peine.Elle est à vendre pour la somme de 410 340 €.N’hésitez pas à prendre contact avec notre agence (Morgane KUD : (Numéro supprimé)) pour tout renseignement sur la maison ou sur les modalités de vente. Les Maisons Extraco Chambourcy est là pour vous accompagner dans toutes vos démarches.
Lévis-Saint-Nom
TERRAIN ET MAISONVENTE d’une maison 1 pièce (144 m²) à Lévis-Saint-NomIDÉALEMENT SITUÉE – MAISON 1 PIÈCE NEUVEÀ deux pas du Transilien N (gare de La Verrière, 35 min de Paris), venez découvrir en vente, idéalement située dans Lévis-Saint-Nom (78320), cette maison 1 pièce de 144 m². Son intérieur offre six chambres, une cuisine et trois salles de bains.Le terrain de la propriété s’étend sur 860 m².C’est une maison de 2 niveaux. Elle est neuve.La maison se situe dans un quartier convoité. Quatre établissements scolaires se trouvent à moins de 10 minutes à pied, tout comme deux structures d’accueil pour les tout-petits. Niveau transports, il y a les stations de RER Saint-Quentin-En-Yvelines (ligne C) et Saint-Rémy-Lès-Chevreuse (ligne B) ainsi que six gares à moins de 10 minutes en voiture. On trouve un bassin de natation, un tennis, un supermarché, des commerces, trois boulangeries, une épicerie et deux boucheries-charcuteries à quelques minutes à peine.Son prix de vente est de 473 000 €.N’hésitez pas à prendre contact avec Morgane KUD (tél : (Numéro supprimé)) pour tout renseignement sur la maison. Les Maisons Extraco Chambourcy est là pour vous accompagner dans tous vos projets immobiliers.
Lévis-Saint-Nom
TERRAIN ET MAISONMaison F3 (142 m²) à vendre à Lévis-Saint-NomIDÉALEMENT SITUÉE – MAISON 3 PIÈCES NEUVEAu pied de la gare de La Verrière (Paris à 35 min avec le Transilien N), nous sommes heureux de vous présenter cette maison de 3 pièces de 142 m² idéalement située dans Lévis-Saint-Nom (78320).C’est une maison de 2 niveaux. Elle offre une chambre, une cuisine et une salle de bains. Cette maison est neuve.Le terrain du bien s’étend sur 860 m².Le bien est situé dans un quartier recherché. Quatre établissements scolaires se trouvent à moins de 10 minutes à pied, tout comme deux crèches. Niveau transports en commun, il y a les stations de RER Saint-Quentin-En-Yvelines (ligne C) et Saint-Rémy-Lès-Chevreuse (ligne B) ainsi que six gares à moins de 10 minutes en voiture. On trouve un bassin de natation, un tennis, un supermarché, des commerces, trois boulangeries, deux boucheries-charcuteries et une épicerie à quelques minutes à peine.Il est proposé à l’achat pour 469 069 €.N’hésitez pas à prendre contact avec notre agence (Morgane KUD : (Numéro supprimé)) pour obtenir de plus amples informations sur la maison. Les Maisons Extraco Chambourcy est là pour vous accompagner dans toutes vos démarches.
Boullay-les-Troux
TERRAINSituée au cœur de la Vallée de Chevreuse à seulement 35 km de ParisA proximité de la gare RER B de Saint-Rémy-lès-Chevreuse, permettant ainsi de rejoindre Paris en 40min environ.Accès rapide à la nationale N118Prix : 185000 €.Sur ce terrain de 576 m² à BOULLAY-LES-TROUX, Maisons Clairval vous propose de réaliser votre projet de construction de maison individuelle.Maisons Clairval propose de construire votre maison neuve avec toutes les prestations suivantes :- Plan sur-mesure et personnalisé de 2 à 6 chambres- Mode de chauffage au choix- Grands choix d'équipements et de prestations- Matériaux de qualité selon les normes en vigueur- Accompagnement dans le choix et l’acquisition du terrain- Construction conforme à la nouvelle RE 2020Demandez une étude gratuite et personnalisée de votre projet de construction sur ce terrain !Contactez Nicolas REBOUL au (Numéro supprimé) ou au (Numéro supprimé) (Maisons Clairval – Agence de Villemoisson).Prix hors frais de notaire. Terrain sélectionné et vu pour vous sous réserve de disponibilité et au prix indiqué par notre partenaire foncier. Conditions et visuels non contractuels.Cette annonce a été créée et diffusée avec le logiciel VITAHOME.
L’actualité immobilière à Dampierre-en-Yvelines
27/11/2023
02/11/2023
30/10/2023
20/10/2023
16/10/2023
16/10/2023