Maison à construire à Élancourt (78990)
Images
Description
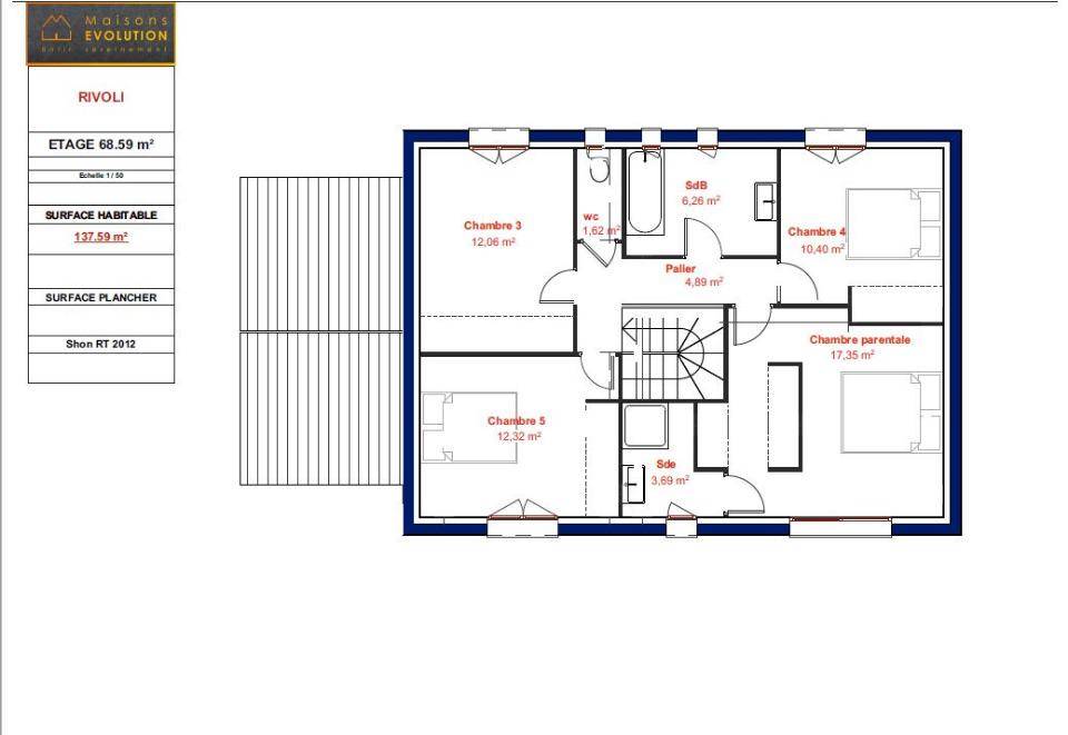
Maisons Evolution vous présente le modèle Rivoli d'une surface habitable de 137,59 m².
Retrouvez au rez-de-chaussée une entrée, un séjour/cuisine de plus de 43 m², un cellier, des WC indépendants, un bureau pouvant également servir de chambre sans oublier le garage attenant au cellier.
A l'étage, cette maison vous offre 3 chambres, une salle de bain, des toilettes indépendantes ainsi qu'une suite parentale ayant dressing et salle d'eau.
Annonce proposée par un Agent Commercial Partenaire.
Logement susceptibles de vous intéresser
Nous vous proposons de découvrir aussi cette sélection de logements situés à moins de 10km de Élancourt et qui seraient susceptibles de vous intéresser.
Magny-les-Hameaux
TERRAINMagny-les-Hameaux : terrain de 315 m² en venteParis à 35 min (RER B, Saint-Rémy-lès-Chevreuse) – Terrain de 315 m² bénéficiant d’un emplacement privilégié dans Magny-les-Hameaux (78114).À proximité : RER (lignes B et C), gares, établissements scolaires, crèches, établissements d’enseignement supérieur, marchés, tennis, bibliothèques, bassins de natation, bowling, supermarchés, commerces, boulangeries, bureaux de poste et boucheries-charcuteries. Paris à 26 km.Son prix de vente est de 215 000 €. N’hésitez pas à prendre contact avec Steeve KANOR (tél : (Numéro supprimé)) pour toute information sur le terrain. Donnez vie à vos projets immobiliers avec Maisons Evolution Tigery.Annonce proposée par un Agent Commercial Partenaire.
Magny-les-Hameaux
TERRAIN ET MAISONVENTE d’une maison de 4 pièces (104 m²) à Magny-les-HameauxParis à 35 min (RER B, Saint-Rémy-lès-Chevreuse) – À découvrir bénéficiant d’un emplacement privilégié dans Magny-les-Hameaux (78114) : maison neuve 4 pièces en vente. 2 niveaux, surface de 104 m² sur 315 m² de terrain. Elle offre trois chambres, une cuisine et une salle de bains.Proche RER (lignes B et C), gares, établissements scolaires, crèches, établissements du supérieur, marchés, tennis, bibliothèques, bassins de natation, bowling, supermarchés, commerces, boulangeries, supérettes et bureaux de poste. Paris à 26 km.Cette maison de 4 pièces est à vendre pour la somme de 479 500 €.Contactez Steeve KANOR ((Numéro supprimé)) pour obtenir de plus amples renseignements sur la maison. Maisons Evolution Tigery vous accompagne dans toutes vos démarches et dans tous vos projets immobiliers.Annonce proposée par un Agent Commercial Partenaire.
Magny-les-Hameaux
TERRAIN ET MAISONVENTE : maison de 4 pièces (78 m²) à Magny-les-HameauxParis à 35 min (RER B, Saint-Rémy-lès-Chevreuse) – À découvrir bénéficiant d’un emplacement d’exception dans Magny-les-Hameaux (78114) : maison neuve 4 pièces à vendre, 2 niveaux, 78 m² sur 315 m² de terrain. Elle inclut trois chambres, une cuisine et une salle de bains.Proche RER (lignes B et C), gares, établissements scolaires, crèches, établissements du supérieur, marchés, tennis, bibliothèques, bassins de natation, bowling, supermarchés, commerces, boulangeries, poissonneries et bureaux de poste. Paris à 26 km.Cette maison de 4 pièces est à vendre pour la somme de 399 800 €.Prenez contact avec notre agence (Steeve KANOR : (Numéro supprimé)) pour toute question sur la maison ou sur les démarches à suivre. Concrétisez vos projets immobiliers avec Maisons Evolution Tigery.Annonce proposée par un Agent Commercial Partenaire.
Magny-les-Hameaux
TERRAIN ET MAISONVENTE d’une maison F7 (104 m²) à Magny-les-HameauxParis à 35 min (RER B, Saint-Rémy-lès-Chevreuse) – Bénéficiant d’un emplacement privilégié dans Magny-les-Hameaux (78114), maison neuve 7 pièces à vendre avec 2 niveaux, une surface de 104 m² sur un terrain de 315 m². Elle est composée de six chambres, d’une cuisine et de deux salles de bains.À dix minutes : RER (lignes B et C), gares, établissements scolaires, crèches, établissements du supérieur, marchés, tennis, bibliothèques, bassins de natation, bowling, supermarchés, commerces, boulangeries, boucheries-charcuteries et bureaux de poste. Paris à 26 km.Cette maison de 7 pièces est à vendre pour la somme de 509 800 €.Prenez contact avec Steeve KANOR (tél : (Numéro supprimé)) pour toute information sur la maison ou sur les démarches à suivre. Maisons Evolution Tigery est là pour vous accompagner dans tous vos projets immobiliers.Annonce proposée par un Agent Commercial Partenaire.
Les Clayes-sous-Bois
TERRAINVENTE d’un terrain de 409 m² aux Clayes-sous-BoisIDÉALEMENT SITUÉAux Clayes-sous-Bois (78340) à quelques minutes du Transilien N (gare de Villepreux-Les Clayes, 40 min de Paris), imaginez la maison de vos rêves sur ce terrain de 409 m². Ce terrain, avec vue sur jardin, est exposé au sud-est. Dans un quartier convoité, ce terrain idéalement situé est proche des écoles et des commerces. Plusieurs établissements scolaires (maternelle, élémentaire et collège) sont implantés à moins de 10 minutes à pied. Niveau transports, on trouve la gare Villepreux-Les Clayes juste à côté. Il y a une bibliothèque, un tennis, un bassin de natation, des boulangeries, des commerces, un supermarché, un bureau de poste et deux boucheries-charcuteries à quelques minutes à peine. Le marché Avenue Leclerc anime le quartier.Son prix de vente est de 244 000 €. N’hésitez pas à prendre contact avec Thibault DUTEURTRE (tél : (Numéro supprimé)) pour toute information sur le terrain. Maisons Balency Coignières est là pour vous accompagner dans toutes vos démarches.Annonce proposée par un Agent Commercial Partenaire.
Les Clayes-sous-Bois
TERRAIN ET MAISONVENTE d’une maison T5 (96 m²) aux Clayes-sous-BoisIDÉALEMENT SITUÉE – MAISON 5 PIÈCES NEUVEÀ quelques minutes du Transilien N (gare de Villepreux-Les Clayes, 40 min de Paris), à vendre idéalement située dans Les Clayes-sous-Bois (78340), nous sommes ravis de vous présenter cette maison de 5 pièces de 96 m² et de 409 m² de terrain avec vue sur jardin. Elle dispose de quatre chambres, d’une cuisine et d’une salle de bains.Cette maison compte 2 niveaux. Elle est neuve.La maison se situe dans un quartier recherché. Plusieurs établissements scolaires (maternelle, élémentaire et collège) sont implantés à moins de 10 minutes à pied. Côté transports en commun, on trouve la gare Villepreux-Les Clayes à quelques pas de la maison. Il y a une bibliothèque, un tennis, un bassin de natation, des boulangeries, des commerces, un supermarché, une poissonnerie et un bureau de poste à proximité. Enfin, le marché Avenue Leclerc anime les environs.Elle est à vendre pour la somme de 479 900 €.Contactez notre agence (Thibault DUTEURTRE : (Numéro supprimé)) pour obtenir de plus amples informations sur la maison ou sur les modalités de vente.Annonce proposée par un Agent Commercial Partenaire.
Neauphle-le-Château
TERRAIN ET MAISONMaison de 4 pièces (112 m²) en vente à Neauphle-le-ChâteauEMPLACEMENT PRIVILÉGIÉ – MAISON 4 PIÈCES NEUVEEn vente : à côté de la gare de Plaisir-Grignon (Paris à 25 min par le Transilien N), Les Maisons Extraco Chambourcy vous propose cette maison de 4 pièces de 112 m² et de 350 m² de terrain bénéficiant d’un emplacement privilégié dans Neauphle-le-Château (78640).C’est une maison de 2 niveaux. Son intérieur est composé de quatre chambres, d’une cuisine et de deux salles de bains. Cette maison est neuve.Cette maison se trouve dans un quartier prisé. L’École Élémentaire Emile Serre et l’École Maternelle les Petites Friches sont implantées à moins de 10 minutes à pied. Niveau transports, il y a 11 gares à moins de 10 minutes en voiture. On trouve une bibliothèque, un tennis, une boulangerie, quatre commerces, une boucherie-charcuterie, une épicerie et un bureau de poste à proximité du logement.Son prix de vente est de 414 133 €.Contactez Morgane KUD (tél : (Numéro supprimé)) pour toute information sur la maison ou sur les démarches à suivre.
Neauphle-le-Château
TERRAIN ET MAISONVENTE d’une maison T5 (92 m²) à Neauphle-le-ChâteauEMPLACEMENT PRIVILÉGIÉ – MAISON 5 PIÈCES NEUVEÀ vendre : au pied du Transilien N (gare de Plaisir-Grignon, 25 min de Paris), nous sommes heureux de vous proposer cette maison de 5 pièces de plain-pied de 92 m² bénéficiant d’un emplacement d’exception dans Neauphle-le-Château (78640).Elle est composée de quatre chambres, d’une cuisine et d’une salle de bains. Cette maison est neuve.Le terrain du bien est de 350 m².La maison se situe dans un secteur prisé. On trouve l’École Élémentaire Emile Serre et l’École Maternelle les Petites Friches à moins de 10 minutes à pied. Niveau transports, il y a 11 gares à moins de 10 minutes en voiture. Il y a une bibliothèque, un tennis, une boulangerie, quatre commerces, une épicerie, une boucherie-charcuterie et un bureau de poste dans les environs.Elle est à vendre pour la somme de 339 123 €.N’hésitez pas à prendre contact avec notre agence (Morgane KUD : (Numéro supprimé)) pour plus d’informations sur la maison ou sur les modalités de vente. Donnez vie à vos projets immobiliers avec Les Maisons Extraco Chambourcy.
Neauphle-le-Château
TERRAIN ET MAISONVENTE d’une maison F3 (132 m²) à Neauphle-le-ChâteauEMPLACEMENT PRIVILÉGIÉ – MAISON 3 PIÈCES NEUVEÀ vendre : à deux pas du Transilien N (gare de Plaisir-Grignon, 25 min de Paris), nous vous proposons cette maison de 3 pièces de 132 m² et de 350 m² de terrain bénéficiant d’un emplacement privilégié dans Neauphle-le-Château (78640). Son intérieur dispose d’une chambre, d’une cuisine et d’une salle de bains.Cette maison comporte 2 niveaux. Elle est neuve.Cette maison se trouve dans un quartier recherché. Il y a l’École Élémentaire Emile Serre et l’École Maternelle les Petites Friches à moins de 10 minutes à pied. Côté transports, on trouve 11 gares à moins de 10 minutes en voiture. On trouve une bibliothèque, un tennis, une boulangerie, quatre commerces, une boucherie-charcuterie, une épicerie et un bureau de poste à quelques minutes.Elle est proposée à l’achat pour 464 000 €.Prenez contact avec Morgane KUD (tél : (Numéro supprimé)) pour obtenir de plus amples renseignements sur la maison, sur les démarches à suivre ou sur les modalités de vente. Les Maisons Extraco Chambourcy vous accompagne à toutes les étapes de votre projet et dans tous vos projets immobiliers.
L’actualité immobilière à Élancourt
27/11/2023
02/11/2023
30/10/2023
20/10/2023
16/10/2023
16/10/2023