Maison à construire à Freneuse (78840)
Images
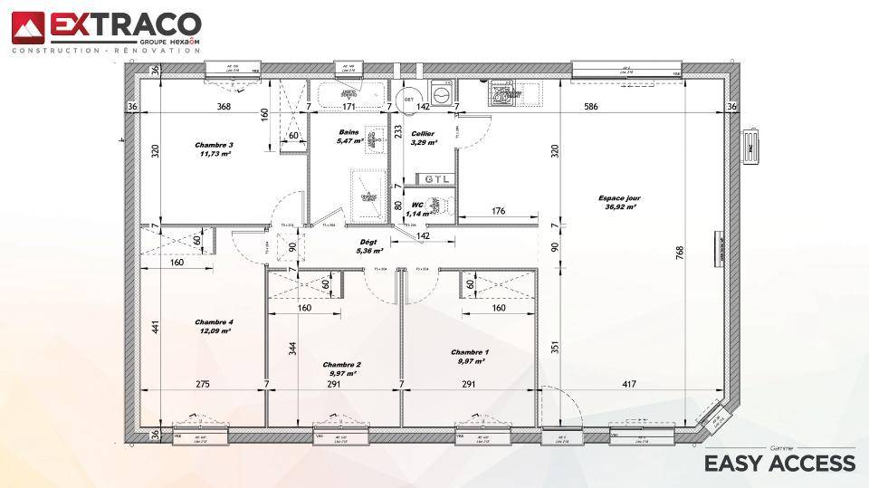
Description
VENTE d'une maison de 5 pièces (95 m²) à Freneuse
IDÉALEMENT SITUÉE - MAISON 5 PIÈCES NEUVE
À côté de la gare de Rosny-sur-Seine (Paris à 45 min avec le Transilien J), nous vous proposons cette maison de 5 pièces de plain-pied de 95 m² et de 515 m² de terrain idéalement située dans Freneuse (78840). Conçue de plain-pied, elle inclut quatre chambres, une cuisine et une salle de bains.
Cette maison est neuve.
La maison se trouve dans un quartier attractif. Il y a des écoles (de la maternelle au lycée) à moins de 10 minutes en voiture, tout comme une structure d'accueil pour la petite enfance à moins de 10 minutes à pied. Niveau transports, on trouve deux gares (Bonnières-sur-Seine et Rosny-sur-Seine) à moins de 10 minutes en voiture. Il y a des tennis, des bibliothèques, un port de plaisance, un bassin de natation, des boulangeries, des commerces, des supermarchés, des épiceries et des bureaux de poste dans les environs. Enfin, le marché Place de la Libération a lieu chaque dimanche matin.
Elle est à vendre pour la somme de 230 200 €.
Prenez contact avec Oumayma SONMEZ ((Numéro supprimé)) pour obtenir de plus amples renseignements sur la propriété.
Logement susceptibles de vous intéresser
Nous vous proposons de découvrir aussi cette sélection de logements situés à moins de 10km de Freneuse et qui seraient susceptibles de vous intéresser.
Chaufour-lès-Bonnières
TERRAINVENTE : terrain de 900 m² à Chaufour-lès-BonnièresIDÉALEMENT SITUÉ – VUE SANS VIS-À-VISÀ Chaufour-lès-Bonnières (78270) proche du Transilien J (gare de Vernon-Giverny, 1 h de Paris), donnez vie à la maison de vos rêves sur ce terrain de 900 m². Ce terrain, sans vis-à-vis, bénéficie d’une exposition sud-ouest. Dans un quartier attractif, le terrain idéalement situé est proche des écoles et des commerces. Il y a une école élémentaire dans le quartier. Niveau transports en commun, on trouve les gares Bonnières-sur-Seine, Vernon-Giverny et Bréval à moins de 10 minutes en voiture. Il y a une boulangerie dans les environs.Ce terrain est proposé à l’achat pour 95 900 €. N’hésitez pas à prendre contact avec Oumayma SONMEZ ((Numéro supprimé)) pour toute question sur le terrain ou sur les démarches à suivre. Donnez vie à vos projets immobiliers avec Les Maisons Extraco Gravigny.
Chaufour-lès-Bonnières
TERRAIN ET MAISONChaufour-lès-Bonnières : maison F4 (84 m²) à vendreIDÉALEMENT SITUÉE – MAISON 4 PIÈCES NEUVEÀ quelques minutes de la gare de Vernon-Giverny (Paris à 1 h avec le Transilien J), nous vous proposons cette maison de 4 pièces de plain-pied de 84 m² idéalement située dans Chaufour-lès-Bonnières (78270).Elle comporte trois chambres, une cuisine et une salle de bains. La maison est neuve.Le terrain de la propriété s’étend sur 900 m².Cette maison se trouve dans un quartier convoité. Une école élémentaire y est implantée. Niveau transports, il y a trois gares (Bonnières-sur-Seine, Vernon-Giverny et Bréval) à moins de 10 minutes en voiture. On trouve une boulangerie dans les environs.Elle est proposée à l’achat pour 240 900 €.Prenez contact avec Oumayma SONMEZ ((Numéro supprimé)) pour plus de renseignements sur la maison ou sur les modalités de vente.
Chaufour-lès-Bonnières
TERRAIN ET MAISONMaison F5 (114 m²) à vendre à Chaufour-lès-BonnièresIDÉALEMENT SITUÉE – MAISON 5 PIÈCES NEUVEÀ deux pas de la gare de Vernon-Giverny (Paris à 1 h par le Transilien J), nous vous proposons cette maison de 5 pièces de plain-pied de 114 m² et de 900 m² de terrain en vente, idéalement située dans Chaufour-lès-Bonnières (78270). Conçue de plain-pied, elle propose quatre chambres, une cuisine et une salle de bains.La maison est neuve.La maison se trouve dans un secteur convoité. Une école élémentaire y est implantée. Côté transports, il y a les gares Bonnières-sur-Seine, Vernon-Giverny et Bréval à moins de 10 minutes en voiture. On trouve une boulangerie à proximité de la maison.Elle est à vendre pour la somme de 257 700 €.Prenez contact avec Oumayma SONMEZ ((Numéro supprimé)) pour plus d’informations sur la maison ou sur les démarches à suivre. Les Maisons Extraco Gravigny vous accompagne à toutes les étapes de votre projet et dans tous vos projets immobiliers.
Chaufour-lès-Bonnières
TERRAIN ET MAISONVENTE d’une maison T5 (86 m²) à Chaufour-lès-BonnièresIDÉALEMENT SITUÉE – MAISON 5 PIÈCES NEUVEÀ proximité du Transilien J (gare de Vernon-Giverny, 1 h de Paris), en vente idéalement située dans Chaufour-lès-Bonnières (78270), venez découvrir cette maison de 5 pièces de 86 m².C’est une maison de 2 niveaux. Son intérieur est composé de trois chambres, d’une cuisine et d’une salle de bains. Cette maison est neuve.Le terrain de la propriété est de 900 m².Cette maison se trouve dans un secteur attractif. Une école élémentaire y est implantée. Niveau transports, il y a les gares Bonnières-sur-Seine, Vernon-Giverny et Bréval à moins de 10 minutes en voiture. On trouve une boulangerie à proximité.Son prix de vente est de 235 100 €.Prenez contact avec notre agence (Oumayma SONMEZ : (Numéro supprimé)) pour tout renseignement sur la maison, sur les modalités de vente ou sur les démarches à suivre.
Chaufour-lès-Bonnières
TERRAIN ET MAISONMaison F4 (85 m²) en vente à Chaufour-lès-BonnièresIDÉALEMENT SITUÉE – MAISON 4 PIÈCES NEUVEÀ côté de la gare de Vernon-Giverny (Paris à 1 h par le Transilien J), venez découvrir en vente, idéalement située dans Chaufour-lès-Bonnières (78270), cette maison de 4 pièces de plain-pied de 85 m². Son intérieur compte trois chambres, une cuisine et une salle de bains.Le terrain de la maison est de 900 m².Cette maison est neuve.La maison se trouve dans un quartier attractif. On y trouve une école élémentaire. Niveau transports, il y a les gares Bonnières-sur-Seine, Vernon-Giverny et Bréval à moins de 10 minutes en voiture. On trouve une boulangerie à proximité du bien.Son prix de vente est de 244 900 €.Contactez notre agence (Oumayma SONMEZ : (Numéro supprimé)) pour plus d’informations sur la maison, sur les modalités de vente ou sur les démarches à suivre. Concrétisez vos projets immobiliers avec Les Maisons Extraco Gravigny.
Bennecourt
TERRAINVENTE : terrain de 492 m² à BennecourtPROCHE DE MANTES-LA-JOLIEÀ Bennecourt (78270) au pied de la gare de Rosny-sur-Seine (Paris à 45 min par le Transilien J), découvrez ce terrain de 492 m². Il y a trois établissements scolaires à moins de 10 minutes à pied et dont le Collège Privé Saint Louis. Niveau transports en commun, on trouve les gares Bonnières-sur-Seine, Rosny-sur-Seine et Vernon-Giverny à moins de 10 minutes en voiture. On trouve un port de plaisance, une bibliothèque, des commerces, trois boulangeries, une épicerie, un bureau de poste et deux boucheries-charcuteries à proximité.Il est proposé à l’achat pour 96 000 €. Prenez contact avec Karen DELELIS (tél : (Numéro supprimé)) pour obtenir de plus amples renseignements sur ce terrain. Maisons Balency Gravigny vous accompagne dans tous vos projets immobiliers et dans toutes vos démarches.Annonce proposée par un Agent Commercial Partenaire.
Bennecourt
TERRAINVENTE : terrain de 492 m² à BennecourtPROCHE DE MANTES-LA-JOLIEÀ Bennecourt (78270) proche du Transilien J (gare de Rosny-sur-Seine, 45 min de Paris), projetez la maison de vos rêves sur ce terrain de 492 m². Il y a trois établissements scolaires à moins de 10 minutes à pied et, comme le Collège Privé Saint Louis. Niveau transports, on trouve les gares Bonnières-sur-Seine, Rosny-sur-Seine et Vernon-Giverny à moins de 10 minutes en voiture. Il y a un port de plaisance, une bibliothèque, des commerces, trois boulangeries, une épicerie, un bureau de poste et deux boucheries-charcuteries à quelques minutes à peine.Il est à vendre pour la somme de 96 000 €. Contactez Karen DELELIS (tél : (Numéro supprimé)) pour tout renseignement sur le terrain ou sur les modalités de vente. Maisons Balency Gravigny est là pour vous accompagner dans tous vos projets immobiliers.Annonce proposée par un Agent Commercial Partenaire.
Bennecourt
TERRAINTerrain de 745 m² en vente à BennecourtPROCHE DE MANTES-LA-JOLIEGrand terrain à proximité de la gare de Rosny-sur-Seine (Paris à 45 min par le Transilien J). De 745 m², ce terrain se situe dans Bennecourt (78270). On trouve trois établissements scolaires à moins de 10 minutes à pied et, parmi lesquels le Collège Privé Saint Louis. Niveau transports, il y a les gares Bonnières-sur-Seine, Rosny-sur-Seine et Vernon-Giverny à moins de 10 minutes en voiture. On trouve un port de plaisance, une bibliothèque, des commerces, trois boulangeries, deux boucheries-charcuteries, une épicerie et un bureau de poste dans les environs.Il est proposé à l’achat pour 105 000 €. Contactez Karen DELELIS (tél : (Numéro supprimé)) pour toute information sur ce terrain, sur les démarches à suivre ou sur les modalités de vente. Faites de vos projets immobiliers une réalité avec Maisons Balency Gravigny.Annonce proposée par un Agent Commercial Partenaire.
Bennecourt
TERRAINVENTE d’un terrain de 745 m² à BennecourtPROCHE DE MANTES-LA-JOLIEGrand terrain à deux pas du Transilien J (gare de Rosny-sur-Seine, 45 min de Paris). De 745 m², ce terrain se situe dans Bennecourt (78270). Trois établissements scolaires sont implantés à moins de 10 minutes à pied, tout comme dont le Collège Privé Saint Louis. Niveau transports en commun, il y a les gares Bonnières-sur-Seine, Rosny-sur-Seine et Vernon-Giverny à moins de 10 minutes en voiture. On trouve un port de plaisance, une bibliothèque, des commerces, trois boulangeries, une épicerie, deux boucheries-charcuteries et un bureau de poste à proximité.Son prix de vente est de 105 000 €. Contactez Karen DELELIS (tél : (Numéro supprimé)) pour toute information sur ce terrain. Maisons Balency Gravigny vous accompagne dans toutes vos démarches et à toutes les étapes de votre projet.Annonce proposée par un Agent Commercial Partenaire.
L’actualité immobilière à Freneuse
27/11/2023
02/11/2023
30/10/2023
20/10/2023
16/10/2023
16/10/2023