Maison à construire à Gambais (78950)
Images
Description
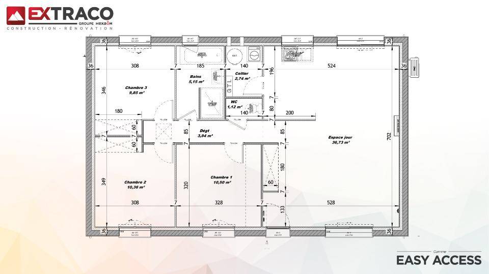
Maison de 4 pièces (80 m²) à vendre à Gambais
EMPLACEMENT PRIVILÉGIÉ - MAISON 4 PIÈCES NEUVE
À côté du Transilien N (gare d'Orgerus-Béhoust, 45 min de Paris), découvrez à vendre, bénéficiant d'un emplacement privilégié dans Gambais (78950), cette maison de 4 pièces de plain-pied de 80 m².
Conçue de plain-pied, elle est composée de trois chambres, d'une cuisine et d'une salle de bains. La maison est neuve.
Le terrain de la propriété est de 600 m².
Cette maison est située dans un secteur convoité. On y trouve une école primaire. Niveau transports, il y a quatre gares à moins de 10 minutes en voiture. On trouve un tennis, une bibliothèque, un commerce, une boulangerie et une épicerie à proximité de la maison.
Elle est à vendre pour la somme de 291 700 €.
N'hésitez pas à prendre contact avec notre agence (SONMEZ Oumayma : (Numéro supprimé)) pour obtenir de plus amples informations sur le bien.
Logement susceptibles de vous intéresser
Nous vous proposons de découvrir aussi cette sélection de logements situés à moins de 10km de Gambais et qui seraient susceptibles de vous intéresser.
Bazainville
TERRAINTERRAIN CONSTRUCTIBLE À BAZAINVILLE (78550)Terrain plat de 550 m², libre de constructeur, avec permis validé et purgé.Projet :Maison R+1 de 127 m² brut / 115 m² net, garage à créer.Façade 20 m, terrain viabilisé (eau + électricité).À 35 min de Paris, proche de tous commerces, écoles, forêt de Rambouillet.Idéal projet familial dans un cadre calme et verdoyant !Cette annonce référence 309740 vous est présentée par votre agent commercial BSK Immobilier NICOLAS VAN DE WALLE (EI) immatriculé au RSAC de VERSAILLES (78000) sous le numéro 91891645300015.Prix du bien : 127 500,00 €Les honoraires d’agence sont à la charge du vendeur.Les informations sur les risques auxquels ce bien est exposé sont disponibles sur le site Géorisques : www.georisques.gouv.fr
Prunay-le-Temple
TERRAINFlexanville : terrain de 500 m² à vendreIDÉALEMENT SITUÉ – PROCHE DE VERSAILLESProche de la gare d’Orgerus-Béhoust (Paris à 45 min avec le Transilien N) à Flexanville (78910), terrain de 500 m². Réalisez-y votre projet immobilier. Il donne sur un espace vert et est orienté plein sud. Dans un quartier prisé, ce terrain idéalement situé est proche des commerces et des écoles. Une école élémentaire est implantée dans le quartier. Niveau transports en commun, il y a quatre gares à moins de 10 minutes en voiture. On trouve un tennis et un commerce dans les environs.Ce terrain est à vendre pour la somme de 118 000 €. N’hésitez pas à prendre contact avec notre agence (Morgane KUD : (Numéro supprimé)) pour plus d’informations sur le terrain ou sur les modalités de vente. Donnez vie à vos projets immobiliers avec Les Maisons Extraco Chambourcy.
Osmoy
TERRAINVENTE : terrain de 372 m² à OsmoyIDÉALEMENT SITUÉ – PROCHE DE VERSAILLESÀ Osmoy (78910) à côté de la gare d’Orgerus-Béhoust (Paris à 45 min avec le Transilien N), donnez vie à votre projet immobilier sur ce terrain de 372 m². Ce terrain, avec vue sur espace vert, bénéficie d’une exposition sud. Dans un quartier convoité, ce terrain idéalement situé est proche des commerces et des écoles. On trouve l’École Élémentaire du Cerisier à moins de 10 minutes à pied. Niveau transports, il y a quatre gares à moins de 10 minutes en voiture.Son prix de vente est de 112 000 €. Prenez contact avec Morgane KUD ((Numéro supprimé)) pour plus d’informations sur le terrain, sur les modalités de vente ou sur les démarches à suivre. Les Maisons Extraco Chambourcy est là pour vous accompagner dans tous vos projets immobiliers.
Saint-Léger-en-Yvelines
TERRAINPrix : 145000 €.Sur ce terrain de 417 m² à SAINT-LEGER-EN-YVELINES, Maisons Clairval vous propose de réaliser votre projet de construction de maison individuelle.Maisons Clairval propose de construire votre maison neuve avec toutes les prestations suivantes :- Plan sur-mesure et personnalisé de 2 à 6 chambres- Mode de chauffage au choix- Grands choix d'équipements et de prestations- Matériaux de qualité selon les normes en vigueur- Accompagnement dans le choix et l’acquisition du terrain- Construction conforme à la nouvelle RE 2020Demandez une étude gratuite et personnalisée de votre projet de construction sur ce terrain !Contactez Nicolas REBOUL au (Numéro supprimé) ou au (Numéro supprimé) (Maisons Clairval – Agence de Villemoisson).Prix hors frais de notaire. Terrain sélectionné et vu pour vous sous réserve de disponibilité et au prix indiqué par notre partenaire foncier. Conditions et visuels non contractuels.Cette annonce a été créée et diffusée avec le logiciel VITAHOME.
Saint-Léger-en-Yvelines
TERRAINPrix : 147000 €.Sur ce terrain de 441 m² à SAINT-LEGER-EN-YVELINES, Maisons Clairval vous propose de réaliser votre projet de construction de maison individuelle.Maisons Clairval propose de construire votre maison neuve avec toutes les prestations suivantes :- Plan sur-mesure et personnalisé de 2 à 6 chambres- Mode de chauffage au choix- Grands choix d'équipements et de prestations- Matériaux de qualité selon les normes en vigueur- Accompagnement dans le choix et l’acquisition du terrain- Construction conforme à la nouvelle RE 2020Demandez une étude gratuite et personnalisée de votre projet de construction sur ce terrain !Contactez Nicolas REBOUL au (Numéro supprimé) ou au (Numéro supprimé) (Maisons Clairval – Agence de Villemoisson).Prix hors frais de notaire. Terrain sélectionné et vu pour vous sous réserve de disponibilité et au prix indiqué par notre partenaire foncier. Conditions et visuels non contractuels.Cette annonce a été créée et diffusée avec le logiciel VITAHOME.
Houdan
TERRAINVENTE d’un terrain de 635 m² à NeauphlettePROCHE HOUDANÀ vendre à deux pas d’Évreux à Neauphlette (78980), grand terrain. Réalisez-y votre projet immobilier. Il y a plusieurs écoles (maternelle, élémentaire, primaire et collège) à moins de 10 minutes en voiture, tout comme une crèche à moins de 10 minutes à pied. Côté transports en commun, on trouve deux gares (Bréval et Bueil) à moins de 10 minutes en voiture. Il y a des tennis, des bibliothèques, des commerces, quatre supermarchés, des boulangeries, des boucheries-charcuteries et une poissonnerie à proximité du bien. Le marché Boulevard de la Gare a lieu chaque samedi matin.Son prix de vente est de 105 900 €. Prenez contact avec notre agence (Aurélie KTARI : (Numéro supprimé)) pour plus de renseignements sur ce terrain, sur les modalités de vente ou sur les démarches à suivre.
Houdan
TERRAIN ET MAISONLa Queue-les-Yvelines : maison F6 (120 m²) en venteEMPLACEMENT PRIVILÉGIÉ – MAISON 6 PIÈCES NEUVEEn vente : au pied du Transilien N (gare de Garancières-La Queue, 40 min de Paris), notre agence Les Maisons Extraco Chambourcy est heureuse de vous proposer, bénéficiant d’un emplacement privilégié dans La Queue-les-Yvelines (78940), cette maison de 6 pièces de 120 m².Cette maison compte 2 niveaux. Elle offre quatre chambres, une cuisine et deux salles de bains. La maison est neuve.Le terrain du bien s’étend sur 554 m².La propriété se situe dans un secteur convoité. On y trouve trois établissements scolaires ainsi que, comme le Lycée Polyvalent Jean Monnet, Lycée des Métiers de la Vente et de la Gestion ou l’École Élémentaire Marcel Bouquet. Niveau transports, on trouve cinq gares à moins de 10 minutes en voiture. Il y a un tennis à proximité.Elle est à vendre pour la somme de 404 430 €.Prenez contact avec notre agence (Morgane KUD : (Numéro supprimé)) pour plus d’informations sur la maison, sur les modalités de vente et sur les démarches à suivre.
Houdan
TERRAIN ET MAISONVENTE : maison F5 (92 m²) à La Queue-les-YvelinesEMPLACEMENT PRIVILÉGIÉ – MAISON 5 PIÈCES NEUVEÀ quelques minutes du Transilien N (gare de Garancières-La Queue, 40 min de Paris), découvrez cette maison de 5 pièces de plain-pied de 92 m² et de 554 m² de terrain bénéficiant d’un emplacement d’exception dans La Queue-les-Yvelines (78940). Son intérieur offre quatre chambres, une cuisine et une salle de bains.Cette maison est neuve.La maison se trouve dans un secteur prisé. On y trouve trois établissements scolaires ainsi que, parmi lesquels le Lycée Polyvalent Jean Monnet, Lycée des Métiers de la Vente et de la Gestion et l’École Élémentaire Marcel Bouquet. Niveau transports, il y a cinq gares à moins de 10 minutes en voiture. On trouve un tennis à quelques minutes.Elle est proposée à l’achat pour 338 788 €.Contactez notre agence (KUD Morgane : (Numéro supprimé)) pour obtenir de plus amples informations sur la maison. Les Maisons Extraco Chambourcy vous accompagne dans tous vos projets immobiliers et dans toutes vos démarches.
Houdan
TERRAIN ET MAISONLa Queue-les-Yvelines : maison de 3 pièces (142 m²) en venteEMPLACEMENT PRIVILÉGIÉ – MAISON 3 PIÈCES NEUVEEn vente : à proximité de la gare de Garancières-La Queue (Paris à 40 min par le Transilien N), nous sommes heureux de vous proposer, bénéficiant d’un emplacement d’exception dans La Queue-les-Yvelines (78940), cette maison de 3 pièces de 142 m². Son intérieur compte une chambre, une cuisine et une salle de bains.Le terrain de la propriété est de 554 m².Il s’agit d’une maison de 2 niveaux. Elle est neuve.La maison est située dans un quartier attractif. Trois établissements scolaires y sont implantés et, comme le Lycée Polyvalent Jean Monnet, Lycée des Métiers de la Vente et de la Gestion ou l’École Élémentaire Marcel Bouquet. Côté transports, il y a cinq gares à moins de 10 minutes en voiture. Il y a un tennis dans les environs.Elle est à vendre pour la somme de 459 000 €.N’hésitez pas à prendre contact avec Morgane KUD ((Numéro supprimé)) pour plus de renseignements sur la maison, sur les modalités de vente ou sur les démarches à suivre.
L’actualité immobilière à Gambais
27/11/2023
02/11/2023
30/10/2023
20/10/2023
16/10/2023
16/10/2023