Maison à construire à Garancières (78890)
Images
Description
Garancières : maison T8 (130 m²) en vente
IDÉALEMENT SITUÉE - MAISON 8 PIÈCES NEUVE
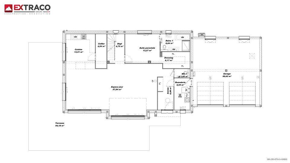
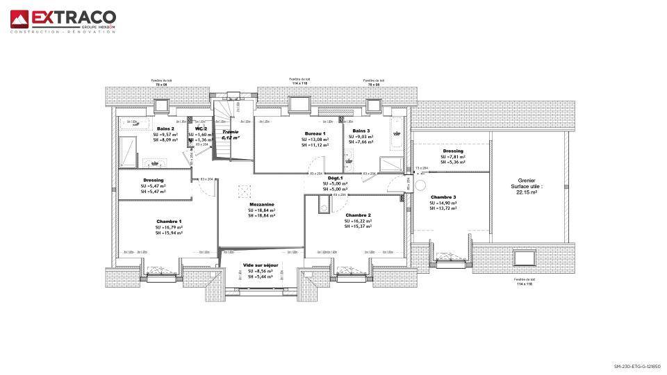
En vente : à deux pas de la gare de Garancières-La Queue (Paris à 40 min avec le Transilien N), notre agence Les Maisons Extraco Chambourcy est heureuse de vous proposer cette maison de 8 pièces de 130 m² et de 1 243 m² de terrain idéalement située dans Garancières (78890).
C'est une maison de 2 niveaux. Son intérieur est composé de quatre chambres, d'une cuisine et de trois salles de bains. La maison est neuve.
Cette maison est située dans un secteur recherché. Des établissements scolaires maternelles et élémentaires y sont implantés et une structure d'accueil pour les tout-petits. Côté transports en commun, on trouve six gares à moins de 10 minutes en voiture. Il y a une bibliothèque, une boulangerie, un commerce et une épicerie à quelques minutes du logement.
Elle est à vendre pour la somme de 458 900 €.
Contactez Morgane KUD ((Numéro supprimé)) pour plus d'informations sur la maison ou sur les modalités de vente. Les Maisons Extraco Chambourcy vous accompagne dans toutes vos démarches et dans tous vos projets immobiliers.
Logement susceptibles de vous intéresser
Nous vous proposons de découvrir aussi cette sélection de logements situés à moins de 10km de Garancières et qui seraient susceptibles de vous intéresser.
  
 
 Neauphle-le-Vieux
TERRAIN ET MAISONVENTE : maison 1 pièce (134 m²) à Neauphle-le-VieuxEMPLACEMENT PRIVILÉGIÉ – MAISON 1 PIÈCE NEUVEÀ vendre : à quelques kilomètres de Boulogne-Billancourt, nous sommes ravis de vous présenter, bénéficiant d’un emplacement d’exception dans Neauphle-le-Vieux (78640), cette maison 1 pièce de 134 m² et de 271 m² de terrain. Elle inclut trois chambres, une cuisine et trois salles de bains.Il s’agit d’une maison de 2 niveaux. Elle est neuve.La propriété se trouve dans un quartier attractif. Il y a le Lycée Polyvalent Viollet-le-le Lycée des Métiers de l’Habitat et du Développement Durable, l’École Élémentaire les Sablons et l’École Maternelle les Ramonettes à moins de 10 minutes à pied. Niveau transports en commun, on trouve la gare Villiers-Neauphle-Pontchartrain à proximité. Il y a une bibliothèque et un tennis dans les environs.Elle est proposée à l’achat pour 462 000 €.N’hésitez pas à prendre contact avec notre agence (KUD Morgane : (Numéro supprimé)) pour plus de renseignements sur la maison, sur les modalités de vente ou sur les démarches à suivre. Les Maisons Extraco Chambourcy vous accompagne à toutes les étapes de l’achat et dans tous vos projets immobiliers.
  
 
 Bazoches-sur-Guyonne
TERRAIN ET MAISONVENTE d’une maison de 5 pièces (92 m²) à Montfort-l’AmauryEMPLACEMENT PRIVILÉGIÉ – MAISON 5 PIÈCES NEUVEÀ proximité du Transilien N (gare de Montfort-l’Amaury-Méré, 35 min de Paris), nous vous proposons cette maison de 5 pièces de plain-pied de 92 m² et de 679 m² de terrain à vendre, bénéficiant d’un emplacement privilégié dans Montfort-l’Amaury (78490).Conçue de plain-pied, elle inclut quatre chambres, une cuisine et une salle de bains. La maison est neuve.Cette maison se situe dans un quartier convoité. Il y a deux établissements scolaires à moins de 10 minutes à pied et, comme le Collège Maurice Ravel. Côté transports en commun, on trouve sept gares à moins de 10 minutes en voiture. On trouve un bassin de natation, un tennis, une bibliothèque, des commerces, trois boulangeries, un bureau de poste, trois épiceries et deux boucheries-charcuteries à quelques minutes du bien.Son prix de vente est de 404 711 €.Contactez notre agence (Morgane KUD : (Numéro supprimé)) pour toute question sur la maison. Concrétisez vos projets immobiliers avec Les Maisons Extraco Chambourcy.
  
 
 Bazoches-sur-Guyonne
TERRAIN ET MAISONVENTE : maison de 6 pièces (114 m²) à Montfort-l’AmauryEMPLACEMENT PRIVILÉGIÉ – MAISON 6 PIÈCES NEUVEEn vente : à proximité du Transilien N (gare de Montfort-l’Amaury-Méré, 35 min de Paris), Les Maisons Extraco Chambourcy vous présente cette maison de 6 pièces de 114 m² bénéficiant d’un emplacement d’exception dans Montfort-l’Amaury (78490).Cette maison comporte 2 niveaux. Son intérieur inclut cinq chambres, une cuisine et deux salles de bains. La maison est neuve.Le terrain du bien est de 679 m².La maison se situe dans un secteur prisé. Deux établissements scolaires sont implantés à moins de 10 minutes à pied, tout comme, parmi lesquels le Collège Maurice Ravel. Côté transports en commun, il y a sept gares à moins de 10 minutes en voiture. Il y a un bassin de natation, un tennis, une bibliothèque, des commerces, trois boulangeries, deux boucheries-charcuteries, un bureau de poste et trois épiceries à proximité de la maison.Elle est à vendre pour la somme de 424 339 €.Contactez notre agence (Morgane KUD : (Numéro supprimé)) pour obtenir de plus amples renseignements sur la maison, sur les modalités de vente ou sur les démarches à suivre. Les Maisons Extraco Chambourcy vous accompagne à toutes les étapes de l’achat et dans tous vos projets immobiliers.
  
 
 Bazoches-sur-Guyonne
TERRAIN ET MAISONVENTE d’une maison T3 (142 m²) à Montfort-l’AmauryEMPLACEMENT PRIVILÉGIÉ – MAISON 3 PIÈCES NEUVEAu pied de la gare de Montfort-l’Amaury-Méré (Paris à 35 min par le Transilien N), Les Maisons Extraco Chambourcy vous propose cette maison de 3 pièces de 142 m² bénéficiant d’un emplacement privilégié dans Montfort-l’Amaury (78490). Son intérieur compte une chambre, une cuisine et une salle de bains.Le terrain du bien est de 679 m².Cette maison possède 2 niveaux. Elle est neuve.Cette maison se trouve dans un secteur recherché. Il y a deux établissements scolaires à moins de 10 minutes à pied et dont le Collège Maurice Ravel. Niveau transports en commun, on trouve sept gares à moins de 10 minutes en voiture. On trouve un bassin de natation, un tennis, une bibliothèque, des commerces, trois boulangeries, trois épiceries, deux boucheries-charcuteries et un bureau de poste dans les environs.Elle est à vendre pour la somme de 524 000 €.N’hésitez pas à prendre contact avec notre agence (KUD Morgane : (Numéro supprimé)) pour toute question sur la maison. Les Maisons Extraco Chambourcy vous accompagne dans tous vos projets immobiliers et à toutes les étapes de votre projet.
  
 
 Bazoches-sur-Guyonne
TERRAIN ET MAISONVENTE d’une maison de 4 pièces (112 m²) à Montfort-l’AmauryEMPLACEMENT PRIVILÉGIÉ – MAISON 4 PIÈCES NEUVEProche de la gare de Montfort-l’Amaury-Méré (Paris à 35 min par le Transilien N), ayez le coup de coeur pour cette maison de 4 pièces de 112 m² en vente bénéficiant d’un emplacement privilégié dans Montfort-l’Amaury (78490).Cette maison possède 2 niveaux. Son intérieur offre quatre chambres, une cuisine et deux salles de bains. La maison est neuve.Le terrain du bien est de 679 m².La maison est située dans un quartier convoité. Deux établissements scolaires sont implantés à moins de 10 minutes à pied, tout comme, parmi lesquels le Collège Maurice Ravel. Niveau transports en commun, on trouve sept gares à moins de 10 minutes en voiture. Il y a un bassin de natation, un tennis, une bibliothèque, des commerces, trois boulangeries, trois épiceries, deux boucheries-charcuteries et un bureau de poste à proximité.Elle est proposée à l’achat pour 447 222 €.Contactez notre agence (Morgane KUD : (Numéro supprimé)) pour tout renseignement sur la maison. Les Maisons Extraco Chambourcy est là pour vous accompagner dans tous vos projets immobiliers.
  
 
 Garancières
TERRAIN ET MAISONMaison de 5 pièces (114 m²) à vendre à GarancièresIDÉALEMENT SITUÉE – MAISON 5 PIÈCES NEUVEEn vente : à côté du Transilien N (gare de Garancières-La Queue, 40 min de Paris), idéalement située dans Garancières (78890), ayez le coup de coeur pour cette maison de 5 pièces de plain-pied de 114 m². Son intérieur offre quatre chambres, une cuisine et une salle de bains.Le terrain du bien s’étend sur 1 243 m².Cette maison est neuve.La maison se trouve dans un quartier prisé. On y trouve des écoles maternelles et élémentaires ainsi qu’une crèche. Niveau transports, il y a six gares à moins de 10 minutes en voiture. On trouve une bibliothèque, une boulangerie, un commerce et une épicerie à proximité.Elle est à vendre pour la somme de 368 472 €.Contactez notre agence (KUD Morgane : (Numéro supprimé)) pour toute information sur la maison. Faites de vos projets immobiliers une réalité avec Les Maisons Extraco Chambourcy.
  
 
 Garancières
TERRAIN ET MAISONGarancières : maison T8 (130 m²) en venteIDÉALEMENT SITUÉE – MAISON 8 PIÈCES NEUVEEn vente : à deux pas de la gare de Garancières-La Queue (Paris à 40 min avec le Transilien N), notre agence Les Maisons Extraco Chambourcy est heureuse de vous proposer cette maison de 8 pièces de 130 m² et de 1 243 m² de terrain idéalement située dans Garancières (78890).C’est une maison de 2 niveaux. Son intérieur est composé de quatre chambres, d’une cuisine et de trois salles de bains. La maison est neuve.Cette maison est située dans un secteur recherché. Des établissements scolaires maternelles et élémentaires y sont implantés et une structure d’accueil pour les tout-petits. Côté transports en commun, on trouve six gares à moins de 10 minutes en voiture. Il y a une bibliothèque, une boulangerie, un commerce et une épicerie à quelques minutes du logement.Elle est à vendre pour la somme de 458 900 €.Contactez Morgane KUD ((Numéro supprimé)) pour plus d’informations sur la maison ou sur les modalités de vente. Les Maisons Extraco Chambourcy vous accompagne dans toutes vos démarches et dans tous vos projets immobiliers.
  
 
 Garancières
TERRAIN ET MAISONMaison de 6 pièces (114 m²) en vente à GarancièresIDÉALEMENT SITUÉE – MAISON 6 PIÈCES NEUVEEn vente : à côté de la gare de Garancières-La Queue (Paris à 40 min avec le Transilien N), nous vous proposons cette maison de 6 pièces de 114 m² et de 1 243 m² de terrain idéalement située dans Garancières (78890). Elle propose cinq chambres, une cuisine et deux salles de bains.Cette maison possède 2 niveaux. Elle est neuve.La maison est située dans un secteur prisé. Des établissements scolaires primaires y sont implantés et une crèche. Niveau transports, il y a six gares à moins de 10 minutes en voiture. On trouve une bibliothèque, une boulangerie, un commerce et une épicerie à proximité du bien.Elle est proposée à l’achat pour 381 339 €.Contactez Morgane KUD ((Numéro supprimé)) pour plus de renseignements sur la maison, sur les démarches à suivre ou sur les modalités de vente. Concrétisez vos projets immobiliers avec Les Maisons Extraco Chambourcy.
  
 
 Garancières
TERRAIN ET MAISONVENTE : maison F8 (144 m²) à GarancièresIDÉALEMENT SITUÉE – MAISON 8 PIÈCES NEUVEÀ vendre : à deux pas du Transilien N (gare de Garancières-La Queue, 40 min de Paris), Les Maisons Extraco Chambourcy vous propose cette maison de 8 pièces de 144 m² et de 1 243 m² de terrain idéalement située dans Garancières (78890). Son intérieur est composé de quatre chambres, d’une cuisine et de deux salles de bains.Il s’agit d’une maison de 2 niveaux. Elle est neuve.La maison est située dans un secteur prisé. On y trouve des écoles maternelles et élémentaires ainsi qu’une structure d’accueil pour les enfants en bas âge. Côté transports en commun, on trouve six gares à moins de 10 minutes en voiture. Il y a une bibliothèque, une boulangerie, un commerce et une épicerie dans les environs.Elle est proposée à l’achat pour 487 000 €.Prenez contact avec notre agence (KUD Morgane : (Numéro supprimé)) pour obtenir de plus amples renseignements sur la maison. Les Maisons Extraco Chambourcy est là pour vous accompagner dans toutes vos démarches.
L’actualité immobilière à Garancières
 
 27/11/2023
 
 
 
 02/11/2023
 
 
 
 30/10/2023
 
 
 
 20/10/2023
 
 
 
 16/10/2023
 
 
 
 16/10/2023