Maison à construire à Hermeray (78125)
Images
Description
Maison de 6 pièces (114 m²) à vendre à Hermeray
IDÉALEMENT SITUÉE - MAISON 6 PIÈCES NEUVE
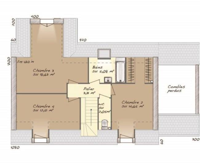
En vente : à deux pas de Chartres, notre agence Maisons Balency Coignières est ravie de vous proposer cette maison de 6 pièces de 114 m² et de 700 m² de terrain idéalement située dans Hermeray (78125).
Il s'agit d'une maison de 2 niveaux. Son intérieur se divise en quatre chambres, une cuisine et deux salles de bains. La maison est neuve.
Cette maison se situe dans un quartier prisé. Une école élémentaire y est implantée. Côté transports, il y a les gares Épernon, Gazeran et Maintenon à moins de 10 minutes en voiture. On trouve un commerce à quelques minutes à peine.
Elle est à vendre pour la somme de 420 000 €.
N'hésitez pas à prendre contact avec notre agence (DUTEURTRE Thibault : (Numéro supprimé)) pour toute information sur le bien ou sur les démarches à suivre.
Annonce proposée par un Agent Commercial Partenaire.
Logement susceptibles de vous intéresser
Nous vous proposons de découvrir aussi cette sélection de logements situés à moins de 10km de Hermeray et qui seraient susceptibles de vous intéresser.
Saint-Hilarion
TERRAINPrix : 125000 €.Sur ce terrain de 641 m² à SAINT-HILARION, Maisons Clairval vous propose de réaliser votre projet de construction de maison individuelle.Maisons Clairval propose de construire votre maison neuve avec toutes les prestations suivantes :- Plan sur-mesure et personnalisé de 2 à 6 chambres- Mode de chauffage au choix- Grands choix d'équipements et de prestations- Matériaux de qualité selon les normes en vigueur- Accompagnement dans le choix et l’acquisition du terrain- Construction conforme à la nouvelle RE 2020Demandez une étude gratuite et personnalisée de votre projet de construction sur ce terrain !Contactez Nicolas REBOUL au (Numéro supprimé) ou au (Numéro supprimé) (Maisons Clairval – Agence de Villemoisson).Prix hors frais de notaire. Terrain sélectionné et vu pour vous sous réserve de disponibilité et au prix indiqué par notre partenaire foncier. Conditions et visuels non contractuels.Cette annonce a été créée et diffusée avec le logiciel VITAHOME.
Saint-Léger-en-Yvelines
TERRAINPrix : 145000 €.Sur ce terrain de 417 m² à SAINT-LEGER-EN-YVELINES, Maisons Clairval vous propose de réaliser votre projet de construction de maison individuelle.Maisons Clairval propose de construire votre maison neuve avec toutes les prestations suivantes :- Plan sur-mesure et personnalisé de 2 à 6 chambres- Mode de chauffage au choix- Grands choix d'équipements et de prestations- Matériaux de qualité selon les normes en vigueur- Accompagnement dans le choix et l’acquisition du terrain- Construction conforme à la nouvelle RE 2020Demandez une étude gratuite et personnalisée de votre projet de construction sur ce terrain !Contactez Nicolas REBOUL au (Numéro supprimé) ou au (Numéro supprimé) (Maisons Clairval – Agence de Villemoisson).Prix hors frais de notaire. Terrain sélectionné et vu pour vous sous réserve de disponibilité et au prix indiqué par notre partenaire foncier. Conditions et visuels non contractuels.Cette annonce a été créée et diffusée avec le logiciel VITAHOME.
Saint-Hilarion
TERRAINPrix : 135000 €.Sur ce terrain de 737 m² à SAINT-HILARION, Maisons Clairval vous propose de réaliser votre projet de construction de maison individuelle.Maisons Clairval propose de construire votre maison neuve avec toutes les prestations suivantes :- Plan sur-mesure et personnalisé de 2 à 6 chambres- Mode de chauffage au choix- Grands choix d'équipements et de prestations- Matériaux de qualité selon les normes en vigueur- Accompagnement dans le choix et l’acquisition du terrain- Construction conforme à la nouvelle RE 2020Demandez une étude gratuite et personnalisée de votre projet de construction sur ce terrain !Contactez Nicolas REBOUL au (Numéro supprimé) ou au (Numéro supprimé) (Maisons Clairval – Agence de Villemoisson).Prix hors frais de notaire. Terrain sélectionné et vu pour vous sous réserve de disponibilité et au prix indiqué par notre partenaire foncier. Conditions et visuels non contractuels.Cette annonce a été créée et diffusée avec le logiciel VITAHOME.
Saint-Léger-en-Yvelines
TERRAINPrix : 147000 €.Sur ce terrain de 441 m² à SAINT-LEGER-EN-YVELINES, Maisons Clairval vous propose de réaliser votre projet de construction de maison individuelle.Maisons Clairval propose de construire votre maison neuve avec toutes les prestations suivantes :- Plan sur-mesure et personnalisé de 2 à 6 chambres- Mode de chauffage au choix- Grands choix d'équipements et de prestations- Matériaux de qualité selon les normes en vigueur- Accompagnement dans le choix et l’acquisition du terrain- Construction conforme à la nouvelle RE 2020Demandez une étude gratuite et personnalisée de votre projet de construction sur ce terrain !Contactez Nicolas REBOUL au (Numéro supprimé) ou au (Numéro supprimé) (Maisons Clairval – Agence de Villemoisson).Prix hors frais de notaire. Terrain sélectionné et vu pour vous sous réserve de disponibilité et au prix indiqué par notre partenaire foncier. Conditions et visuels non contractuels.Cette annonce a été créée et diffusée avec le logiciel VITAHOME.
Droue-sur-Drouette
TERRAIN ET MAISONVENTE : maison T7 (120 m²) à Droue-sur-DrouetteEMPLACEMENT PRIVILÉGIÉ – MAISON 7 PIÈCES NEUVEEn vente à deux pas de Chartres, Maisons France Confort Nogent-le-Phaye vous présente cette maison de 7 pièces de 120 m² bénéficiant d’un emplacement d’exception dans Droue-sur-Drouette (28230).Cette maison comporte 2 niveaux. Elle dispose de quatre chambres, d’une cuisine et de deux salles de bains. La maison est neuve.Le terrain de la propriété s’étend sur 729 m².Cette maison est située dans un secteur attractif. On y trouve l’École Maternelle la Chevalerie et l’École Élémentaire la Chevalerie. Niveau transports, il y a trois gares (Épernon, Gazeran et Maintenon) à moins de 10 minutes en voiture. La nationale N10 est accessible à 10 km. On trouve un tennis, un commerce et une boulangerie à quelques minutes du logement.Elle est à vendre pour la somme de 384 062 €.N’hésitez pas à prendre contact avec notre agence (Enzo PINTO : (Numéro supprimé)) pour obtenir de plus amples renseignements sur la maison, sur les modalités de vente ou sur les démarches à suivre.Annonce proposée par un Agent Commercial Partenaire.
Droue-sur-Drouette
TERRAIN ET MAISONMaison de 4 pièces (81 m²) à vendre à Droue-sur-DrouetteEMPLACEMENT PRIVILÉGIÉ – MAISON 4 PIÈCES NEUVEEn vente : située à deux pas de Chartres, Maisons France Confort Nogent-le-Phaye vous présente, bénéficiant d’un emplacement d’exception dans Droue-sur-Drouette (28230), cette maison de 4 pièces de plain-pied de 81 m² et de 729 m² de terrain.Son intérieur comporte trois chambres, une cuisine et une salle de bains. La maison est neuve.Cette maison se trouve dans un quartier attractif. On y trouve l’École Maternelle la Chevalerie et l’École Élémentaire la Chevalerie. Niveau transports en commun, il y a trois gares (Épernon, Gazeran et Maintenon) à moins de 10 minutes en voiture. La nationale N10 est accessible à 10 km. On trouve un tennis, un commerce et une boulangerie dans les environs.Son prix de vente est de 272 950 €.Contactez Enzo PINTO (tél : (Numéro supprimé)) pour toute question sur la maison, sur les démarches à suivre ou sur les modalités de vente. Maisons France Confort Nogent-le-Phaye est là pour vous accompagner à toutes les étapes de l’achat.Annonce proposée par un Agent Commercial Partenaire.
Droue-sur-Drouette
TERRAIN ET MAISONDroue-sur-Drouette : maison de 5 pièces (90 m²) à vendreEMPLACEMENT PRIVILÉGIÉ – MAISON 5 PIÈCES NEUVEÀ vendre : localisée à 22 km de Chartres, nous vous proposons, bénéficiant d’un emplacement d’exception dans Droue-sur-Drouette (28230), cette maison de 5 pièces de plain-pied de 90 m² et de 729 m² de terrain. Conçue de plain-pied, elle se divise en trois chambres, une cuisine et une salle de bains.Cette maison est neuve.La maison se situe dans un secteur attractif. L’École Maternelle la Chevalerie et l’École Élémentaire la Chevalerie y sont implantées. Côté transports en commun, on trouve trois gares (Épernon, Gazeran et Maintenon) à moins de 10 minutes en voiture. La nationale N10 est accessible à 10 km. Il y a un tennis, un commerce et une boulangerie à proximité.Son prix de vente est de 305 109 €.Contactez Enzo PINTO ((Numéro supprimé)) pour toute question sur la maison ou sur les modalités de vente. Maisons France Confort Nogent-le-Phaye vous accompagne dans tous vos projets immobiliers et dans toutes vos démarches.Annonce proposée par un Agent Commercial Partenaire.
Droue-sur-Drouette
TERRAIN ET MAISONDroue-sur-Drouette : maison T5 (98 m²) à vendreEMPLACEMENT PRIVILÉGIÉ – MAISON 5 PIÈCES NEUVEEn vente à 22 km de Chartres, nous vous présentons cette maison de 5 pièces de 98 m² et de 729 m² de terrain bénéficiant d’un emplacement privilégié dans Droue-sur-Drouette (28230). Son intérieur inclut quatre chambres, une cuisine et une salle de bains.Cette maison comporte 2 niveaux. Elle est neuve.Cette maison se situe dans un quartier attractif. L’École Maternelle la Chevalerie et l’École Élémentaire la Chevalerie y sont implantées. Niveau transports en commun, on trouve les gares Épernon, Gazeran et Maintenon à moins de 10 minutes en voiture. La nationale N10 est accessible à 10 km. Il y a un tennis, un commerce et une boulangerie à proximité du logement.Son prix de vente est de 300 540 €.Contactez Enzo PINTO ((Numéro supprimé)) pour plus de renseignements sur la maison. Maisons France Confort Nogent-le-Phaye vous accompagne dans tous vos projets immobiliers et dans toutes vos démarches.Annonce proposée par un Agent Commercial Partenaire.
Droue-sur-Drouette
TERRAIN ET MAISONMaison de 5 pièces (89 m²) à vendre à Droue-sur-DrouetteEMPLACEMENT PRIVILÉGIÉ – MAISON 5 PIÈCES NEUVEÀ vendre à 22 km de Chartres, nous vous présentons, bénéficiant d’un emplacement d’exception dans Droue-sur-Drouette (28230), cette maison de 5 pièces de plain-pied de 89 m². Conçue de plain-pied, elle comporte trois chambres, une cuisine et une salle de bains.Le terrain du bien s’étend sur 729 m².La maison est neuve.La maison se trouve dans un quartier recherché. L’École Maternelle la Chevalerie et l’École Élémentaire la Chevalerie y sont implantées. Niveau transports, il y a trois gares (Épernon, Gazeran et Maintenon) à moins de 10 minutes en voiture. La nationale N10 est accessible à 10 km. On trouve un tennis, un commerce et une boulangerie à proximité.Son prix de vente est de 310 388 €.N’hésitez pas à prendre contact avec Enzo PINTO ((Numéro supprimé)) pour plus de renseignements sur la propriété ou sur les démarches à suivre. Concrétisez vos projets immobiliers avec Maisons France Confort Nogent-le-Phaye.Annonce proposée par un Agent Commercial Partenaire.
L’actualité immobilière à Hermeray
27/11/2023
02/11/2023
30/10/2023
20/10/2023
16/10/2023
16/10/2023