Maison à construire à Houdan (78550)
Images
Description
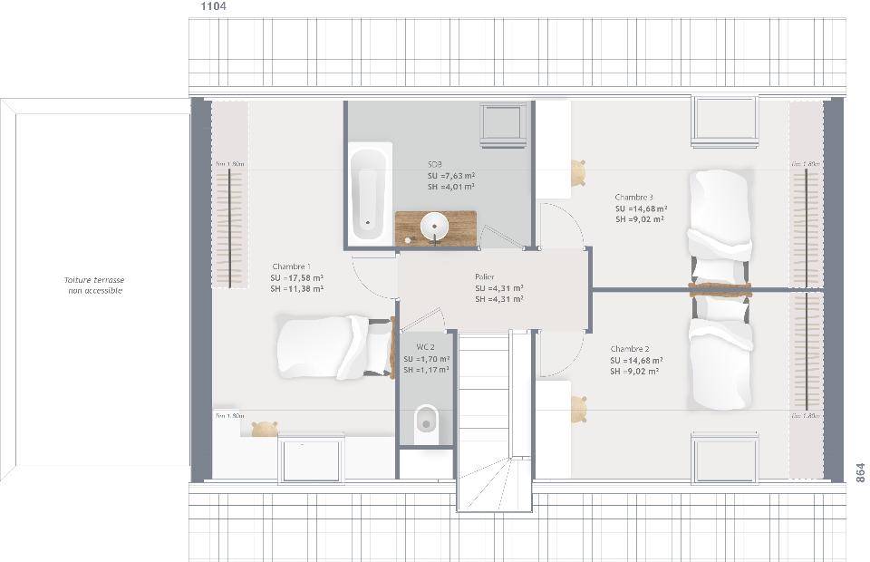
L'agence Maisons France Confort de Coignières propose ce magnifique projet, très attractif pour son lieu, ses prestations et son prix avec par exemple ce modèle R+combles aménagés (photo non contractuelle). Au rez-de-chaussée, une cuisine ouverte sur le séjour qui offre un espace de vie spacieux et harmonieux de plus de 45 m². Un cellier, un WC et une chambre avec salle d'eau complètent ce rez-de-chaussée. La distribution de l'étage optimise l'espace autour d'un palier, 3 chambres, 1 salle de bains et 1 WC indépendant. Norme RE2020, chauffage PAC, domotique sur les volets roulants... Modèle personnalisable en fonction de votre mode de vie, vos envies et budget.
Les plus Maisons France Confort : une expérience solide de presque 100 ans, la maitrise de projets sur mesure, la sécurité du premier constructeur national.
Le prix de cette annonce inclus le terrain, le modèle de maison proposé en exemple ainsi que tous les frais de viabilisation, raccordements, évacuation de terres excédentaires, accès chantier etc...pour rappel les frais de notaire sur le terrain et les taxes, les clôtures, l'ameublement et la décoration ne sont pas inclus.
Pour d'avantage de précisions et pour un devis de construction personnalisé avant visite du terrain contactez votre agence Maisons France Confort de Coignières au (Numéro supprimé)
Annonce proposée par un Agent Commercial Partenaire.
Logement susceptibles de vous intéresser
Nous vous proposons de découvrir aussi cette sélection de logements situés à moins de 10km de Houdan et qui seraient susceptibles de vous intéresser.
Houdan
TERRAIN ET MAISONVENTE : maison de 5 pièces (105 m²) à BûPROCHE DE HOUDAN – MAISON 5 PIÈCES NEUVEÀ vendre : à quelques minutes du Transilien N (gare de Marchezais-Broué, 1 h de Paris), nous vous présentons cette maison de 5 pièces de 105 m² à Bû (28410).Cette maison comporte 2 niveaux. Elle est composée de quatre chambres, d’une cuisine ouverte sur le séjour, deux salles de bains, un cellier et un garage. La maison est neuve.Le terrain du bien s’étend sur 464 m².On trouve l’École Primaire Thérézia et Roger Breton et le Collège Charles de Gaulle à moins de 10 minutes à pied. Côté transports en commun, il y a deux gares (Marchezais-Broué et Houdan) à moins de 10 minutes en voiture. Les nationales N12 et N154 sont accessibles à moins de 10 km et Mantes-la-Jolie est située à 26 km. Il y a un tennis, une bibliothèque, deux commerces, une boulangerie, une épicerie et une boucherie-charcuterie à proximité de la maison.Elle est à vendre pour la somme de 279 000 €.Contactez notre agence (KTARI Aurélie : (Numéro supprimé)) pour plus d’informations sur cette maison ou sur les modalités de vente. Les Maisons Extraco Gravigny est là pour vous accompagner dans toutes vos démarches.
Houdan
TERRAIN ET MAISONGAMME BOISMaison T3 (71 m²) en vente à BûMAISON 3 PIÈCES NEUVE – PROCHE DE HOUDANEn vente : au pied du Transilien N (gare de Marchezais-Broué, 1 h de Paris), nous vous présentons cette maison de 3 pièces de 71 m² à Bû (28410).Il s’agit d’une maison de 2 niveaux. Elle est composée de deux chambres, d’une cuisine ouverte sur le séjour et d’une salle de bains. Cette maison est neuve.Le terrain de la propriété s’étend sur 464 m².On trouve l’École Primaire Thérézia et Roger Breton et le Collège Charles de Gaulle à moins de 10 minutes à pied. Niveau transports en commun, il y a les gares Marchezais-Broué et Houdan à moins de 10 minutes en voiture. Les nationales N12 et N154 sont accessibles à moins de 10 km et Mantes-la-Jolie est située à 26 km. On trouve un tennis, une bibliothèque, deux commerces, une boulangerie, une boucherie-charcuterie et une épicerie dans les environs.Son prix de vente est de 279 000 €.Prenez contact avec Aurélie KTARI (tél : (Numéro supprimé)) pour plus de renseignements sur cette maison, sur les démarches à suivre ou sur les modalités de vente.
Houdan
TERRAIN ET MAISONVENTE d’une maison T5 (92 m²) à BûMAISON 5 PIÈCES NEUVE – PROCHE DE MANTES-LA-JOLIEÀ proximité du Transilien N (gare de Marchezais-Broué, 1 h de Paris), en vente à Bû (28410), nous vous présentons cette maison de 5 pièces de plain-pied de 92 m² et de 464 m² de terrain. Conçue de plain-pied, elle comporte quatre chambres, une cuisine ouverte sur le séjour et une salle de bains.Cette maison est neuve.Il y a l’École Primaire Thérézia et Roger Breton et le Collège Charles de Gaulle à moins de 10 minutes à pied. Côté transports, on trouve deux gares (Marchezais-Broué et Houdan) à moins de 10 minutes en voiture. Les nationales N12 et N154 sont accessibles à moins de 10 km et Mantes-la-Jolie est située à 26 km. Il y a un tennis, une bibliothèque, deux commerces, une boulangerie, une boucherie-charcuterie et une épicerie à proximité de la maison.Elle est proposée à l’achat pour 259 000 €.Contactez notre agence (KTARI Aurélie : (Numéro supprimé)) pour obtenir de plus amples informations sur la maison, sur les modalités de vente ou sur les démarches à suivre. Les Maisons Extraco Gravigny vous accompagne à toutes les étapes de votre projet et dans tous vos projets immobiliers.
Houdan
TERRAIN ET MAISONVENTE d’une maison de 6 pièces (174 m²) à BûPROCHE DE HOUDAN – MAISON 6 PIÈCES NEUVEÀ côté du Transilien N (gare de Marchezais-Broué, 1 h de Paris), ayez le coup de coeur pour cette maison de 6 pièces de 174 m² et de 464 m² de terrain à Bû (28410). Elle est composée de quatre chambres, d’une cuisine ouverte sur le séjour, deux salles de bains, un cellier et un garage.Cette maison possède 2 niveaux. Elle est neuve.Il y a l’École Primaire Thérézia et Roger Breton et le Collège Charles de Gaulle à moins de 10 minutes à pied. Niveau transports en commun, on trouve deux gares (Marchezais-Broué et Houdan) à moins de 10 minutes en voiture. Les nationales N12 et N154 sont accessibles à moins de 10 km et Mantes-la-Jolie se situe à 26 km. Il y a un tennis, une bibliothèque, deux commerces, une boulangerie, une boucherie-charcuterie et une épicerie à proximité.Elle est proposée à l’achat pour 489 000 €.Prenez contact avec notre agence (KTARI Aurélie : (Numéro supprimé)) pour toute question sur cette maison, sur les modalités de vente ou sur les démarches à suivre.
Boissets
TERRAINTerrain de 974 m² en vente à BoissetsIDÉALEMENT SITUÉÀ Boissets (78910) à proximité de la gare de Tacoignières-Richebourg (Paris à 50 min avec le Transilien N), donnez vie à la maison de vos rêves sur ce terrain de 974 m². Ce terrain, avec une exposition sud-est, donne sur un jardin. Dans un secteur prisé, le terrain idéalement situé est proche des commerces et des écoles. Il y a une école élémentaire dans le quartier. Niveau transports, on trouve quatre gares à moins de 10 minutes en voiture. On trouve un tennis, une bibliothèque et un commerce à quelques minutes du bien.Ce terrain est à vendre pour la somme de 145 900 €. Prenez contact avec notre agence (Thibault DUTEURTRE : (Numéro supprimé)) pour toute information sur le terrain, sur les modalités de vente ou sur les démarches à suivre. Maisons Balency Coignières est là pour vous accompagner à toutes les étapes de votre projet.Annonce proposée par un Agent Commercial Partenaire.
Richebourg
TERRAIN ET MAISONVENTE : maison T4 (81 m²) à RichebourgIDÉALEMENT SITUÉE – MAISON 4 PIÈCES NEUVEEn vente : à deux pas du Transilien N (gare de Tacoignières-Richebourg, 50 min de Paris), découvrez, idéalement située dans Richebourg (78550), cette maison de 4 pièces de plain-pied de 81 m² et de 417 m² de terrain.Son intérieur comporte trois chambres, une cuisine et une salle de bains. Cette maison est neuve.La maison est située dans un quartier prisé. Une école primaire y est implantée. Il y a une bibliothèque, une boulangerie et deux commerces à proximité.Son prix de vente est de 335 500 €.Contactez notre agence (DUTEURTRE Thibault : (Numéro supprimé)) pour toute question sur la propriété ou sur les démarches à suivre. Concrétisez vos projets immobiliers avec Maisons Balency Coignières.Annonce proposée par un Agent Commercial Partenaire.
Richebourg
TERRAINVENTE : terrain de 506 m² à RichebourgIDÉALEMENT SITUÉAu pied du Transilien N (gare de Tacoignières-Richebourg, 50 min de Paris) à Richebourg (78550), grand terrain. Il est prêt à accueillir votre projet de construction pour toute la famille. Ce terrain, avec vue sur jardin, bénéficie d’une exposition sud-est. Dans un quartier convoité, ce terrain idéalement situé est proche des écoles et des commerces. Il y a une école primaire dans le quartier. Il y a une bibliothèque, une boulangerie et deux commerces dans les environs.Son prix de vente est de 139 000 €. Contactez Thibault DUTEURTRE ((Numéro supprimé)) pour toute question sur ce terrain ou sur les démarches à suivre.Annonce proposée par un Agent Commercial Partenaire.
Richebourg
TERRAIN ET MAISONVENTE : maison de 3 pièces (71 m²) à RichebourgIDÉALEMENT SITUÉE – MAISON 3 PIÈCES NEUVEÀ quelques minutes de la gare de Tacoignières-Richebourg (Paris à 50 min avec le Transilien N), nous vous proposons cette maison de 3 pièces de plain-pied de 71 m² idéalement située dans Richebourg (78550).Elle offre deux chambres, une cuisine et une salle de bains. Cette maison est neuve.Le terrain de la propriété est de 506 m².La maison se situe dans un secteur recherché. Une école primaire y est implantée. Il y a une bibliothèque, une boulangerie et deux commerces à proximité.Elle est à vendre pour la somme de 350 500 €.Contactez notre agence (Thibault DUTEURTRE : (Numéro supprimé)) pour tout renseignement sur la propriété ou sur les modalités de vente.Annonce proposée par un Agent Commercial Partenaire.
Richebourg
TERRAIN ET MAISONRichebourg : maison de 5 pièces (90 m²) en venteIDÉALEMENT SITUÉE – MAISON 5 PIÈCES NEUVEÀ vendre : à deux pas du Transilien N (gare de Tacoignières-Richebourg, 50 min de Paris), idéalement située dans Richebourg (78550), nous sommes ravis de vous proposer cette maison de 5 pièces de 90 m² et de 506 m² de terrain avec vue sur jardin.Cette maison est de plain-pied. Elle inclut trois chambres, une cuisine et une salle de bains. Cette maison est neuve.La maison se situe dans un secteur attractif. On y trouve une école primaire. Il y a une bibliothèque, une boulangerie et deux commerces dans les environs.Elle est proposée à l’achat pour 385 500 €.Prenez contact avec notre agence (Thibault DUTEURTRE : (Numéro supprimé)) pour plus de renseignements sur la propriété, sur les démarches à suivre ou sur les modalités de vente. Maisons Balency Coignières vous accompagne à toutes les étapes de l’achat et dans tous vos projets immobiliers.Annonce proposée par un Agent Commercial Partenaire.
L’actualité immobilière à Houdan
27/11/2023
02/11/2023
30/10/2023
20/10/2023
16/10/2023
16/10/2023