Maison à construire à Houilles (78800)
Images
Description
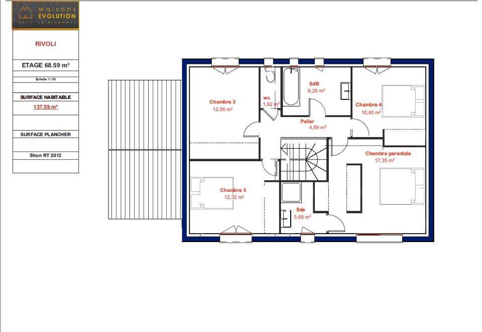
🏡 Maison neuve 4 pièces - 110 m² à Houilles (78800)
Votre projet de construction sur terrain de 270 m² avec Maisons Évolution
Découvrez cette belle maison familiale neuve de 110 m², idéalement située dans un quartier recherché et paisible de Houilles, à proximité immédiate du RER A (station Houilles-Carrières-sur-Seine, Paris à 10 minutes).
✨ Une maison moderne et confortable
Ce modèle à étage séduit par ses volumes bien pensés et son confort contemporain :
4 chambres spacieuses, dont une suite parentale possible
2 salles de bains modernes et fonctionnelles
Grande pièce de vie lumineuse avec cuisine ouverte sur le jardin
Terrain de 270 m² offrant un agréable espace extérieur pour vos moments en famille
Cette maison, entièrement personnalisable, est conçue par Maisons Évolution, constructeur reconnu pour la qualité de ses réalisations et son accompagnement à chaque étape du projet.
🌳 Un environnement idéal pour la vie de famille
Le quartier offre un cadre de vie privilégié :
Écoles maternelle, élémentaire et collège à moins de 10 minutes à pied
Gare RER et Transilien à proximité (accès direct Paris en 10 min)
Commerces, supermarchés, boulangeries, marché Rue Carnot, piscine et services à deux pas
💰 Prix global du projet : 468 000 €
(incluant terrain + maison - hors frais annexes)
📞 Contact : Caroline BETHERY - (Numéro supprimé)
👉 Maisons Évolution - Agence de Cormeilles-en-Parisis
Construisons ensemble votre maison sur-mesure à Houilles !
Logement susceptibles de vous intéresser
Nous vous proposons de découvrir aussi cette sélection de logements situés à moins de 10km de Houilles et qui seraient susceptibles de vous intéresser.
Ermont
TERRAINTerrain de 600 m² à vendre à ErmontGrand terrain au pied du Transilien H (gare d’Ermont Halte, 20 min de Paris). De 600 m², ce terrain se situe dans Ermont (95120). Ce terrain est proche des écoles et des commerces. Tous les types d’établissements scolaires se trouvent à moins de 10 minutes à pied, tout comme sept crèches. Côté transports, il y a la station de RER Cernay (ligne C) ainsi que trois gares (Ermont Halte, Cernay (Val-d’Oise) et Gros Noyer Saint-Prix) dans les environs. On trouve une bibliothèque, un bassin de natation, deux tennis, des commerces, des boulangeries, un supermarché, une supérette et un bureau de poste à quelques minutes. Le marché Place St Flaive anime le quartier.Ce terrain est proposé à l’achat pour 300 000 €. Prenez contact avec notre agence (FLIPPE Antoine : (Numéro supprimé)) pour tout renseignement sur le terrain.Annonce proposée par un Agent Commercial Partenaire.
Ermont
TERRAIN ET MAISONMaison de 5 pièces (96 m²) en vente à ErmontMAISON 5 PIÈCES NEUVEÀ vendre : à deux pas du Transilien H (gare d’Ermont Halte, 20 min de Paris), notre agence Maisons Balency Baillet-en-France est ravie de vous présenter cette maison de 5 pièces de 96 m² à Ermont (95120). Son intérieur offre quatre chambres, une cuisine et une salle de bains.Le terrain de la maison s’étend sur 600 m².Cette maison compte 2 niveaux. Elle est neuve.Des écoles (de la maternelle au lycée) sont implantées à moins de 10 minutes à pied, tout comme sept crèches. Niveau transports en commun, il y a la station de RER Cernay (ligne C) ainsi que trois gares (Ermont Halte, Cernay (Val-d’Oise) et Gros Noyer Saint-Prix) juste à côté. On trouve une bibliothèque, un bassin de natation, deux tennis, des commerces, des boulangeries, un supermarché, des épiceries et un bureau de poste à quelques minutes. Le marché Place St Flaive anime les environs.Son prix de vente est de 480 000 €.N’hésitez pas à prendre contact avec notre agence (FLIPPE Antoine : (Numéro supprimé)) pour plus de renseignements sur cette maison, sur les modalités de vente ou sur les démarches à suivre. Maisons Balency Baillet-en-France vous accompagne à toutes les étapes de l’achat et dans tous vos projets immobiliers.Annonce proposée par un Agent Commercial Partenaire.
Ermont
TERRAIN ET MAISONVENTE d’une maison de 7 pièces (102 m²) à ErmontMAISON 7 PIÈCES NEUVEÀ vendre : à côté du Transilien H (gare d’Ermont Halte, 20 min de Paris), ayez le coup de coeur pour à Ermont (95120), cette maison de 7 pièces de 102 m² et de 600 m² de terrain.Cette maison comporte 2 niveaux. Elle inclut cinq chambres, une cuisine et deux salles de bains. La maison est neuve.Des établissements scolaires de tous niveaux (de la maternelle au lycée) sont implantés à moins de 10 minutes à pied, tout comme sept crèches. Niveau transports en commun, il y a la station de RER Cernay (ligne C) ainsi que trois gares (Ermont Halte, Cernay (Val-d’Oise) et Gros Noyer Saint-Prix) dans un rayon de 1 km. On trouve une bibliothèque, un bassin de natation, deux tennis, des commerces, des boulangeries, un supermarché, un bureau de poste et trois boucheries-charcuteries à quelques minutes. Le marché Place St Flaive anime le quartier.Elle est à vendre pour la somme de 470 000 €.Prenez contact avec notre agence (FLIPPE Antoine : (Numéro supprimé)) pour obtenir de plus amples informations sur cette maison.Annonce proposée par un Agent Commercial Partenaire.
Ermont
TERRAIN ET MAISONErmont : maison de 6 pièces (109 m²) en venteMAISON 6 PIÈCES NEUVEÀ vendre : à deux pas du Transilien H (gare d’Ermont Halte, 20 min de Paris), Maisons Balency Baillet-en-France vous propose cette maison de 6 pièces de 109 m² et de 600 m² de terrain à Ermont (95120). Elle dispose de quatre chambres, d’une cuisine et de deux salles de bains.Cette maison possède 2 niveaux. Elle est neuve.Il y a tous les types d’écoles (maternelle, élémentaire et secondaire) à moins de 10 minutes à pied, tout comme sept crèches. Niveau transports en commun, on trouve la station de RER Cernay (ligne C) ainsi que trois gares (Ermont Halte, Cernay (Val-d’Oise) et Gros Noyer Saint-Prix) dans les environs. Il y a une bibliothèque, un bassin de natation, deux tennis, des commerces, des boulangeries, un supermarché, un bureau de poste et trois boucheries-charcuteries à quelques minutes à peine. Enfin, le marché Place St Flaive anime les environs.Elle est proposée à l’achat pour 485 000 €.Prenez contact avec notre agence (Antoine FLIPPE : (Numéro supprimé)) pour toute question sur cette maison, sur les démarches à suivre ou sur les modalités de vente. Faites de vos projets immobiliers une réalité avec Maisons Balency Baillet-en-France.Annonce proposée par un Agent Commercial Partenaire.
Ermont
TERRAIN ET MAISONMaison T7 (124 m²) en vente à ErmontMAISON 7 PIÈCES NEUVEÀ vendre : à quelques minutes du Transilien H (gare d’Ermont Halte, 20 min de Paris), à Ermont (95120), Maisons Balency Baillet-en-France vous propose cette maison de 7 pièces de 124 m². Son intérieur offre cinq chambres, une cuisine et trois salles de bains.Le terrain de la propriété s’étend sur 600 m².C’est une maison de 2 niveaux. Elle est neuve.Il y a des établissements scolaires de tous types à moins de 10 minutes à pied, tout comme sept structures d’accueil pour les enfants en bas âge. Côté transports, on trouve la station de RER Cernay (ligne C) ainsi que trois gares (Ermont Halte, Cernay (Val-d’Oise) et Gros Noyer Saint-Prix) dans les alentours. Il y a une bibliothèque, un bassin de natation, deux tennis, des commerces, des boulangeries, un supermarché, des épiceries et un bureau de poste à quelques minutes à peine. Enfin, le marché Place St Flaive anime le quartier.Elle est proposée à l’achat pour 495 000 €.Prenez contact avec Antoine FLIPPE (tél : (Numéro supprimé)) pour obtenir de plus amples informations sur la maison, sur les modalités de vente ou sur les démarches à suivre. Maisons Balency Baillet-en-France vous accompagne dans tous vos projets immobiliers et à toutes les étapes de votre projet.Annonce proposée par un Agent Commercial Partenaire.
Bezons
TERRAIN15 Minutes du tram T210 Minutes du centre ville à piedPrix : 240000 €.Sur ce terrain de 324 m² à BEZONS, Maisons Clairval vous propose de réaliser votre projet de construction de maison individuelle.Maisons Clairval propose de construire votre maison neuve avec toutes les prestations suivantes :- Plan sur-mesure et personnalisé de 2 à 6 chambres- Mode de chauffage au choix- Grands choix d'équipements et de prestations- Matériaux de qualité selon les normes en vigueur- Accompagnement dans le choix et l’acquisition du terrain- Construction conforme à la nouvelle RE 2020Demandez une étude gratuite et personnalisée de votre projet de construction sur ce terrain !Contactez Nicolas REBOUL au (Numéro supprimé) ou au (Numéro supprimé) (Maisons Clairval – Agence de Villemoisson).Prix hors frais de notaire. Terrain sélectionné et vu pour vous sous réserve de disponibilité et au prix indiqué par notre partenaire foncier. Conditions et visuels non contractuels.Cette annonce a été créée et diffusée avec le logiciel VITAHOME.
Bezons
TERRAINUne maison à démolir se trouve actuellement sur le terrainSitué dans un quartier calme et pavillonnairePrix : 399000 €.Sur ce terrain de 403 m² à BEZONS, Maisons Clairval vous propose de réaliser votre projet de construction de maison individuelle.Maisons Clairval propose de construire votre maison neuve avec toutes les prestations suivantes :- Plan sur-mesure et personnalisé de 2 à 6 chambres- Mode de chauffage au choix- Grands choix d'équipements et de prestations- Matériaux de qualité selon les normes en vigueur- Accompagnement dans le choix et l’acquisition du terrain- Construction conforme à la nouvelle RE 2020Demandez une étude gratuite et personnalisée de votre projet de construction sur ce terrain !Contactez Nicolas REBOUL au (Numéro supprimé) ou au (Numéro supprimé) (Maisons Clairval – Agence de Villemoisson).Prix hors frais de notaire. Terrain sélectionné et vu pour vous sous réserve de disponibilité et au prix indiqué par notre partenaire foncier. Conditions et visuels non contractuels.Cette annonce a été créée et diffusée avec le logiciel VITAHOME.
Argenteuil
TERRAINA la recherche du lieu parfait pour concrétiser votre vision ? Ne chercher plus, il est là ! Ce terrain spacieux, situé dans un quartier très rechercher, offre une belle opportunité unique pour réaliser le projet d’une vie. – Emplacement stratégique offrant un accès facile aux commodités locales et aux axes de transport. – Environnement calme et paisible, idéal pour ceux qui recherchent la tranquillité tout en restant connectés à la vie urbaine. – Proximité des écoles, commerces et autres services essentiels, garantissant une vie pratique et confortable. Ne manquez pas cette opportunité unique d’investir dans l’avenir et de réaliser vos aspirations. N’hésitez pas à me contacter dès maintenant pour plus d’informations et pour planifier une visite sur place ! Contactez Jason Guevel au (Numéro supprimé) ou par mail : (Email supprimé) . Pavillon d'Ile de France Constructeur de maison individuelle.Prix : 229000 €.Sur ce terrain, réalisez votre projet de construction de maison RE 2020 avec PAVILLONS D'ÎLE-DE-FRANCE (constructeur de maisons de gamme et sur-mesure depuis plus de 50 ans) :- Plan sur-mesure et personnalisé de 2 à 5 chambres- Mode de chauffage au choix- Grands choix d'équipements et de prestations- Matériaux de qualité selon les normes en vigueur- Accompagnement dans le choix et l’acquisition du terrainDemandez une étude gratuite et personnalisée de votre projet de construction sur ce terrain !Contactez Jason GUEVEL au (Numéro supprimé) ou au (Numéro supprimé) (Pavillons d'Île-de-France – Agence de Cauffry).Prix hors frais de notaire. Terrain sélectionné et vu pour vous sous réserve de disponibilité et au prix indiqué par notre partenaire foncier. Visuels non contractuels.Cette annonce a été créée et diffusée avec le logiciel VITAHOME.
Ermont
TERRAINTerrain à vendre : emplacement idéal pour votre prochain projet. Localisation : Ermont Description : A la recherche du lieu parfait pour concrétiser votre vision ? Ne chercher plus, il est là ! Ce terrain spacieux, situé dans un quartier très rechercher, offre une belle opportunité unique pour réaliser le projet d’une vie Caractéristiques : – Emplacement stratégique offrant un accès facile aux commodités locales et aux axes de transport. – Environnement calme et paisible, idéal pour ceux qui recherchent la tranquillité tout en restant connectés à la vie urbaine. – Proximité des écoles, commerces et autres services essentiels, garantissant une vie pratique et confortable. Ne manquez pas cette opportunité unique d’investir dans l’avenir et de réaliser vos aspirations. N’hésitez pas à me contacter dès maintenant pour plus d’informations et pour planifier une visite sur place !Prix : 299000 €.Sur ce terrain, réalisez votre projet de construction de maison RE 2020 avec PAVILLONS D'ÎLE-DE-FRANCE (constructeur de maisons de gamme et sur-mesure depuis plus de 50 ans) :- Plan sur-mesure et personnalisé de 2 à 5 chambres- Mode de chauffage au choix- Grands choix d'équipements et de prestations- Matériaux de qualité selon les normes en vigueur- Accompagnement dans le choix et l’acquisition du terrainDemandez une étude gratuite et personnalisée de votre projet de construction sur ce terrain !Contactez Jason GUEVEL au (Numéro supprimé) ou au (Numéro supprimé) (Pavillons d'Île-de-France – Agence de Cauffry).Prix hors frais de notaire. Terrain sélectionné et vu pour vous sous réserve de disponibilité et au prix indiqué par notre partenaire foncier. Visuels non contractuels.Cette annonce a été créée et diffusée avec le logiciel VITAHOME.
L’actualité immobilière à Houilles
27/11/2023
02/11/2023
30/10/2023
20/10/2023
16/10/2023
16/10/2023