Maison à construire à La Celle-Saint-Cloud (78170)
Images
Description
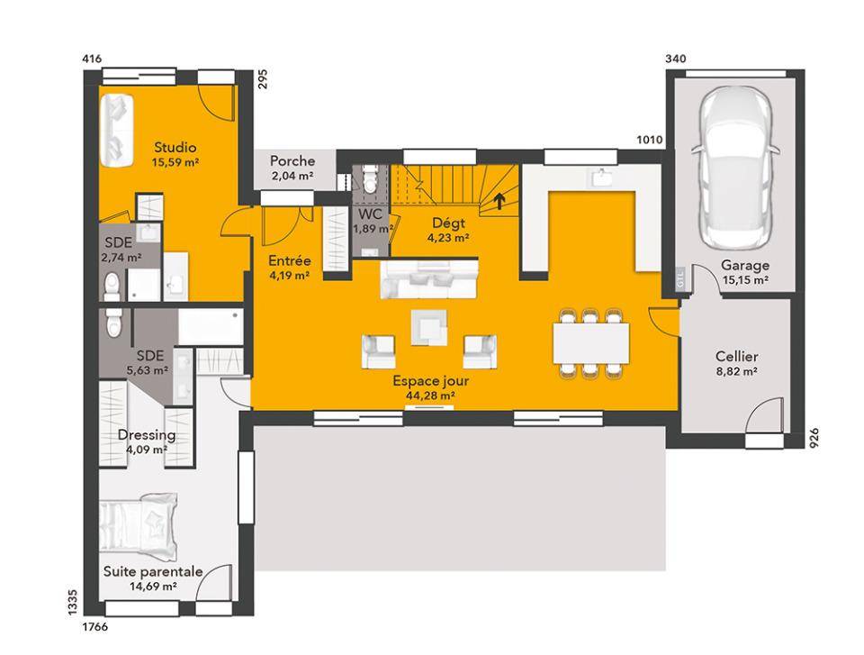
VENTE : maison de 8 pièces (120 m²) à La Celle-Saint-Cloud
QUARTIER RECHERCHÉ - MAISON 8 PIÈCES NEUVE
À vendre : à proximité du Transilien L (30 min de Paris), dans un quartier convoité de La Celle-Saint-Cloud (78170), nous sommes ravis de vous proposer cette maison de 8 pièces de 120 m² avec vue panoramique.
Cette maison compte 2 niveaux. Elle se divise en cinq chambres, une cuisine et trois salles de bains. La maison est neuve.
Un balcon la complète, un gain de confort et d'espace appréciable. Le terrain de la propriété s'étend sur 780 m².
Cette maison se trouve dans un secteur prisé. Des établissements scolaires de tous niveaux (de la maternelle au lycée) sont implantés à moins de 10 minutes à pied, tout comme deux structures d'accueil pour les enfants en bas âge. Côté transports, on trouve la gare La Celle-Saint-Cloud juste à côté. Il y a une bibliothèque, un bassin de natation, des boulangeries, deux supermarchés, des commerces, deux épiceries et trois boucheries-charcuteries à quelques minutes à peine.
Son prix de vente est de 1 688 000 €.
Contactez Dominique TCHICAYA ((Numéro supprimé)) pour obtenir de plus amples renseignements sur la maison ou sur les démarches à suivre. Maisons France Confort La Queue-en-Brie vous accompagne dans tous vos projets immobiliers et à toutes les étapes de l'achat.
Logement susceptibles de vous intéresser
Nous vous proposons de découvrir aussi cette sélection de logements situés à moins de 10km de La Celle-Saint-Cloud et qui seraient susceptibles de vous intéresser.
Bois-d'Arcy
TERRAIN ET MAISONVENTE d’une maison F7 (120 m²) à Bois-d’ArcyEMPLACEMENT PRIVILÉGIÉ – MAISON 7 PIÈCES NEUVEÀ vendre : à proximité de la gare de Fontenay-le-Fleury (Paris à 35 min avec le Transilien N), bénéficiant d’un emplacement privilégié dans Bois-d’Arcy (78390), Maisons France Confort Jouars-Pontchartrain vous présente cette maison de 7 pièces de 120 m². Elle offre cinq chambres, une cuisine et deux salles de bains.Le terrain du bien est de 308 m².C’est une maison de 2 niveaux. Elle est neuve.Cette maison est située dans un quartier prisé. Des établissements scolaires maternelles et élémentaires se trouvent à moins de 10 minutes à pied, tout comme une structure d’accueil pour les enfants en bas âge. Côté transports en commun, il y a la ligne de RER C (Saint-Quentin-En-Yvelines) ainsi que 22 gares à moins de 10 minutes en voiture. On trouve une bibliothèque, un supermarché, une boulangerie, deux commerces et une boucherie-charcuterie dans les environs.Elle est à vendre pour la somme de 520 000 €.Prenez contact avec Charles ZAGDANSKI ((Numéro supprimé)) pour obtenir de plus amples renseignements sur la maison. Maisons France Confort Jouars-Pontchartrain vous accompagne dans tous vos projets immobiliers et à toutes les étapes de votre projet.
La Celle-Saint-Cloud
TERRAINTerrain de 780 m² à vendre à La Celle-Saint-CloudQUARTIER RECHERCHÉ – VUE PANORAMIQUEÀ La Celle-Saint-Cloud (78170) au pied du Transilien L (30 min de Paris), venez découvrir ce terrain de 780 m². Il profite d’une vue panoramique et bénéficie d’une exposition sud-ouest. Dans un secteur convoité, le terrain situé dans un quartier prisé est proche des écoles et des commerces. Il y a des écoles de tous types à moins de 10 minutes à pied, tout comme deux structures d’accueil pour la petite enfance. Côté transports en commun, on trouve la gare La Celle-Saint-Cloud à quelques pas du terrain. Il y a une bibliothèque, un bassin de natation, des boulangeries, deux supermarchés, des commerces, deux épiceries et un bureau de poste dans les environs.Ce terrain est à vendre pour la somme de 890 000 €. Prenez contact avec notre agence (Dominique TCHICAYA : (Numéro supprimé)) pour obtenir de plus amples informations sur le terrain, sur les modalités de vente ou sur les démarches à suivre. Maisons France Confort La Queue-en-Brie est là pour vous accompagner à toutes les étapes de votre projet.
Chaville
TERRAIN//(Numéro supprimé) — Les maisons CLAIRVAL vous proposent ce terrain plat de 500 m² situé à Chaville, commune prisée des Hauts-de-Seine, nichée entre les forêts de Meudon et de Fausses-Reposes. Vous bénéficierez d’un cadre de vie verdoyant et résidentiel, tout en profitant de la proximité immédiate des commerces, écoles et services. Les gares RER et Transilien, ainsi que les accès rapides à Paris et Versailles, facilitent vos déplacements quotidiens. Ce terrain plat et bien orienté offre la possibilité de concevoir une maison contemporaine, lumineuse et économe en énergie, conforme à la norme RE2020, avec des prestations personnalisées : aménagements intérieurs sur mesure, solutions énergétiques performantes et domotique. 📞 Contactez-nous dès aujourd’hui pour concrétiser votre projet à Chaville.Prix : 799000 €.Sur ce terrain de 500 m² à CHAVILLE, Maisons Clairval vous propose de réaliser votre projet de construction de maison individuelle.Demandez une étude gratuite et personnalisée de votre projet de construction sur ce terrain !Contactez John BOUT au (Numéro supprimé) ou au (Numéro supprimé) (Maisons Clairval – Agence de Rouvres).Prix hors frais de notaire. Terrain sélectionné et vu pour vous sous réserve de disponibilité et au prix indiqué par notre partenaire foncier. Conditions et visuels non contractuels.Cette annonce a été créée et diffusée avec le logiciel VITAHOME.
Villepreux
TERRAIN ET MAISONMaison F7 (120 m²) à vendre à VillepreuxEMPLACEMENT PRIVILÉGIÉ – MAISON 7 PIÈCES NEUVEÀ vendre : à quelques minutes de la gare de Villepreux-Les Clayes (Paris à 40 min avec le Transilien N), nous vous présentons cette maison de 7 pièces de 120 m² et de 285 m² de terrain bénéficiant d’un emplacement privilégié dans Villepreux (78450). Elle se divise en cinq chambres, une cuisine et deux salles de bains.Il s’agit d’une maison de 2 niveaux. Elle est neuve.La maison se situe dans un secteur prisé. Des écoles du primaire et du secondaire se trouvent à moins de 10 minutes à pied. Côté transports, il y a la ligne de RER C (Saint-Quentin-En-Yvelines) ainsi que 25 gares à moins de 10 minutes en voiture. On trouve un bassin de natation, un tennis, une bibliothèque, des commerces, deux boulangeries, deux épiceries, une supérette et une boucherie-charcuterie dans les environs.Elle est proposée à l’achat pour 510 000 €.Contactez notre agence (ZAGDANSKI Charles : (Numéro supprimé)) pour toute question sur le bien ou sur les démarches à suivre. Maisons France Confort Jouars-Pontchartrain vous accompagne à toutes les étapes de l’achat et dans tous vos projets immobiliers.
Chaville
TERRAIN(Numéro supprimé) — Les Maisons Clairval vous proposent ce terrain plat viabilisé de 250 m² situé à Chaville (92), dans un secteur recherché offrant un cadre de vie paisible et verdoyant entre Versailles et Paris. Vous profiterez d’un environnement résidentiel agréable, à proximité immédiate des commerces, écoles et transports (gare RER C et ligne N), facilitant les déplacements quotidiens. Ce terrain plat et bien orienté permet d’envisager la construction d’une maison moderne, lumineuse et économe en énergie, conforme à la réglementation RE2020, selon vos envies et votre mode de vie.📞 Contactez-nous dès aujourd’hui pour découvrir ce terrain et imaginer votre futur projet à Chaville.Prix : 399000 €.Sur ce terrain de 251 m² à CHAVILLE, Maisons Clairval vous propose de réaliser votre projet de construction de maison individuelle.Demandez une étude gratuite et personnalisée de votre projet de construction sur ce terrain !Contactez John BOUT au (Numéro supprimé) ou au (Numéro supprimé) (Maisons Clairval – Agence de Rouvres).Prix hors frais de notaire. Terrain sélectionné et vu pour vous sous réserve de disponibilité et au prix indiqué par notre partenaire foncier. Conditions et visuels non contractuels.Cette annonce a été créée et diffusée avec le logiciel VITAHOME.
La Celle-Saint-Cloud
TERRAIN ET MAISONVENTE : maison de 8 pièces (120 m²) à La Celle-Saint-CloudQUARTIER RECHERCHÉ – MAISON 8 PIÈCES NEUVEÀ vendre : à proximité du Transilien L (30 min de Paris), dans un quartier convoité de La Celle-Saint-Cloud (78170), nous sommes ravis de vous proposer cette maison de 8 pièces de 120 m² avec vue panoramique.Cette maison compte 2 niveaux. Elle se divise en cinq chambres, une cuisine et trois salles de bains. La maison est neuve.Un balcon la complète, un gain de confort et d’espace appréciable. Le terrain de la propriété s’étend sur 780 m².Cette maison se trouve dans un secteur prisé. Des établissements scolaires de tous niveaux (de la maternelle au lycée) sont implantés à moins de 10 minutes à pied, tout comme deux structures d’accueil pour les enfants en bas âge. Côté transports, on trouve la gare La Celle-Saint-Cloud juste à côté. Il y a une bibliothèque, un bassin de natation, des boulangeries, deux supermarchés, des commerces, deux épiceries et trois boucheries-charcuteries à quelques minutes à peine.Son prix de vente est de 1 688 000 €.Contactez Dominique TCHICAYA ((Numéro supprimé)) pour obtenir de plus amples renseignements sur la maison ou sur les démarches à suivre. Maisons France Confort La Queue-en-Brie vous accompagne dans tous vos projets immobiliers et à toutes les étapes de l’achat.
Bois-d'Arcy
TERRAINTerrain de 308 m² en vente à Bois-d’ArcyEMPLACEMENT PRIVILÉGIÉ – VUE SANS VIS-À-VISÀ Bois-d’Arcy (78390) à proximité de la gare de Fontenay-le-Fleury (Paris à 35 min avec le Transilien N), donnez vie à la maison de vos rêves sur ce terrain de 308 m². Il profite d’une vue sans vis-à-vis et est orienté plein nord. Dans un quartier attractif, le terrain bénéficiant d’un emplacement privilégié est proche des écoles et des commerces. Des établissements scolaires maternelles et élémentaires sont implantés à moins de 10 minutes à pied, tout comme une structure d’accueil pour les enfants en bas âge. Côté transports, on trouve la ligne de RER C (Saint-Quentin-En-Yvelines) ainsi que 22 gares à moins de 10 minutes en voiture. Il y a une bibliothèque, un supermarché, une boulangerie, deux commerces et une boucherie-charcuterie à proximité du terrain.Ce terrain est à vendre pour la somme de 299 000 €. Contactez notre agence (ZAGDANSKI Charles : (Numéro supprimé)) pour tout renseignement sur le terrain, sur les démarches à suivre ou sur les modalités de vente. Maisons France Confort Jouars-Pontchartrain vous accompagne à toutes les étapes de l’achat et dans tous vos projets immobiliers.
Bois-d'Arcy
TERRAIN ET MAISONVENTE : maison T6 (100 m²) à Bois-d’ArcyEMPLACEMENT PRIVILÉGIÉ – MAISON 6 PIÈCES NEUVEÀ vendre : au pied du Transilien N (gare de Fontenay-le-Fleury, 35 min de Paris), nous vous présentons cette maison de 6 pièces de 100 m² sans vis-à-vis bénéficiant d’un emplacement privilégié dans Bois-d’Arcy (78390).Cette maison comporte 2 niveaux. Son intérieur offre quatre chambres, une cuisine et une salle de bains. La maison est neuve.Le terrain de la propriété s’étend sur 308 m².Cette maison est située dans un quartier attractif. On trouve des écoles primaires à moins de 10 minutes à pied, tout comme une structure d’accueil pour les tout-petits. Niveau transports, il y a la ligne de RER C (Saint-Quentin-En-Yvelines) ainsi que 22 gares à moins de 10 minutes en voiture. Il y a une bibliothèque, un supermarché, une boulangerie, deux commerces et une boucherie-charcuterie à quelques minutes du logement.Elle est proposée à l’achat pour 500 000 €.Contactez Charles ZAGDANSKI (tél : (Numéro supprimé)) pour toute question sur la maison, sur les démarches à suivre ou sur les modalités de vente. Maisons France Confort Jouars-Pontchartrain vous accompagne dans tous vos projets immobiliers et à toutes les étapes de votre projet.
Villepreux
TERRAIN ET MAISONVillepreux : maison F6 (105 m²) à vendreEMPLACEMENT PRIVILÉGIÉ – MAISON 6 PIÈCES NEUVEÀ vendre : au pied de la gare de Villepreux-Les Clayes (Paris à 40 min avec le Transilien N), Maisons France Confort Jouars-Pontchartrain vous présente, bénéficiant d’un emplacement d’exception dans Villepreux (78450), cette maison de 6 pièces de 105 m² et de 285 m² de terrain sans vis-à-vis. Elle offre quatre chambres, une cuisine et deux salles de bains.Il s’agit d’une maison de 2 niveaux. Elle est neuve.La maison est située dans un quartier recherché. Des écoles de tous niveaux (de la maternelle au lycée) se trouvent à moins de 10 minutes à pied. Côté transports en commun, il y a la ligne de RER C (Saint-Quentin-En-Yvelines) ainsi que 25 gares à moins de 10 minutes en voiture. On trouve un bassin de natation, un tennis, une bibliothèque, des commerces, deux boulangeries, deux épiceries, une boucherie-charcuterie et un bureau de poste dans les environs.Elle est proposée à l’achat pour 480 000 €.Prenez contact avec Charles ZAGDANSKI (tél : (Numéro supprimé)) pour toute question sur la maison. Donnez vie à vos projets immobiliers avec Maisons France Confort Jouars-Pontchartrain.
L’actualité immobilière à La Celle-Saint-Cloud
27/11/2023
02/11/2023
30/10/2023
20/10/2023
16/10/2023
16/10/2023