Maison neuve à Le Pecq (78230)
Images
Description
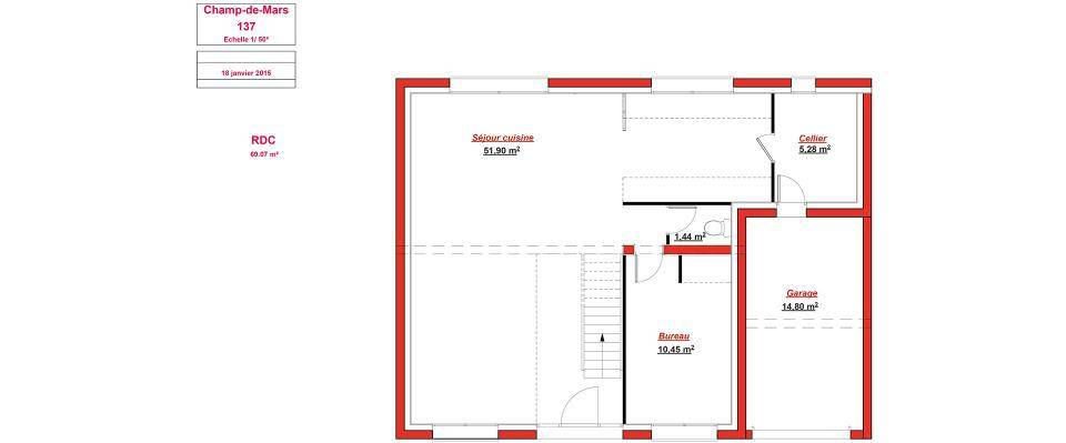
Maison T5 (137 m²) à vendre au Pecq
Paris à 20 min (RER A, Le Vésinet-Le Pecq) - Bénéficiant d'un emplacement d'exception dans Le Pecq (78230), maison neuve à vendre de 5 pièces, 2 niveaux, 137 m² de surface sur 700 m² de terrain. Elle compte trois chambres, une cuisine et deux salles de bains. Vue sur un espace vert.
À dix minutes : RER A (Le Vésinet-Le Pecq), gares, établissements scolaires, crèches, tennis, bibliothèque, bassin de natation, commerces, boulangeries, supermarchés, épiceries et bureau de poste. Marché Rd point du Pecq hebdomadaire. Paris à 18 km.
Cette maison de 5 pièces est proposée à l'achat pour 997 000 €.
Prenez contact avec notre agence (Marc LE MOEL : (Numéro supprimé)) pour obtenir de plus amples renseignements sur la maison, sur les démarches à suivre ou sur les modalités de vente.
Maisons BERVAL bénéficie d'une triple certification NF-HQE et PROPERMEA.
Annonce proposée par un Agent Commercial Partenaire.
Logement susceptibles de vous intéresser
Nous vous proposons de découvrir aussi cette sélection de logements situés à moins de 10km de Le Pecq et qui seraient susceptibles de vous intéresser.
Le Pecq
TERRAIN ET MAISONMaison 1 pièce (235 m²) en vente à Saint-Germain-en-LayePROCHE CENTRE-VILLE – MAISON 1 PIÈCE NEUVEÀ deux pas du RER A (station Achères Grand Cormier, 20 min de Paris), Les Maisons Extraco Chambourcy vous présente cette maison 1 pièce de 235 m² et de 260 m² de terrain à vendre proche du centre-ville de Saint-Germain-en-Laye (78100). Elle offre six chambres, une cuisine et trois salles de bains.Il s’agit d’une maison de 2 niveaux. Elle est neuve.Il y a des écoles du primaire et du secondaire à moins de 10 minutes en voiture, 105 crèches à moins de 10 minutes à pied, tout comme deux établissements du supérieur à moins de 10 minutes en voiture : l’École nationale supérieure du pétrole et des moteurs et l’Université Paris-X. Niveau transports en commun, on trouve la ligne de RER A (Achères-Grand-Cormier) ainsi que 31 gares dans un rayon de 10 km. Il y a des bibliothèques, des tennis, des bassins de natation, deux ports de plaisance, deux bowlings, des commerces, des boulangeries, des supermarchés, des épiceries et des boucheries-charcuteries à proximité. Enfin, 18 marchés animent le quartier.Elle est à vendre pour la somme de 922 511 €.N’hésitez pas à prendre contact avec notre agence (KUD Morgane : (Numéro supprimé)) pour tout renseignement sur la maison ou sur les démarches à suivre.
Le Pecq
TERRAIN ET MAISONSaint-Germain-en-Laye : maison de 6 pièces (177 m²) à vendrePROCHE CENTRE-VILLE – MAISON 6 PIÈCES NEUVEEn vente : à quelques minutes de la station Achères Grand Cormier (Paris à 20 min avec le RER A), proche du centre-ville de Saint-Germain-en-Laye (78100), votre agence Les Maisons Extraco Chambourcy est heureuse de vous proposer cette maison de 6 pièces de 177 m².Cette maison possède 2 niveaux. Elle comporte cinq chambres, une cuisine et deux salles de bains. La maison est neuve.Le terrain de la propriété s’étend sur 260 m².Tous les types d’établissements scolaires sont implantés à moins de 10 minutes en voiture, 105 crèches à moins de 10 minutes à pied, tout comme l’École nationale supérieure du pétrole et des moteurs et l’Université Paris-X pour le supérieur. Côté transports, il y a la ligne de RER A (Achères-Grand-Cormier) ainsi que 31 gares à moins de 10 minutes en voiture. On trouve des bibliothèques, des tennis, des bassins de natation, deux ports de plaisance, deux bowlings, des commerces, des boulangeries, des supermarchés, des épiceries et des supérettes à proximité de la maison. Enfin, 18 marchés animent le quartier.Elle est à vendre pour la somme de 800 700 €.Prenez contact avec Morgane KUD ((Numéro supprimé)) pour obtenir de plus amples renseignements sur la maison ou sur les démarches à suivre.
Le Pecq
TERRAIN ET MAISONMaison de 5 pièces (150 m²) en vente à Saint-Germain-en-LayePROCHE CENTRE-VILLE – MAISON 5 PIÈCES NEUVEAu pied du RER A (station Achères Grand Cormier, 20 min de Paris), votre agence Les Maisons Extraco Chambourcy est heureuse de vous présenter cette maison de 5 pièces de 150 m² et de 260 m² de terrain proche du centre-ville de Saint-Germain-en-Laye (78100).Cette maison possède 2 niveaux. Son intérieur dispose de quatre chambres, d’une cuisine et de trois salles de bains. La maison est neuve.Il y a tous les types d’établissements scolaires à moins de 10 minutes en voiture, 105 crèches à moins de 10 minutes à pied, tout comme l’École nationale supérieure du pétrole et des moteurs et l’Université Paris-X pour le supérieur. Côté transports en commun, on trouve la ligne de RER A (Achères-Grand-Cormier) ainsi que 31 gares à moins de 10 minutes en voiture. Il y a des bibliothèques, des tennis, des bassins de natation, deux ports de plaisance, deux bowlings, des commerces, des boulangeries, des supermarchés, des boucheries-charcuteries et des poissonneries à proximité. 18 marchés animent le quartier.Elle est proposée à l’achat pour 759 000 €.Contactez Morgane KUD (tél : (Numéro supprimé)) pour plus de renseignements sur la maison, sur les modalités de vente ou sur les démarches à suivre. Les Maisons Extraco Chambourcy vous accompagne dans tous vos projets immobiliers et dans toutes vos démarches.
Le Pecq
TERRAIN ET MAISONVENTE d’une maison T4 (112 m²) à Saint-Germain-en-LayePROCHE CENTRE-VILLE – MAISON 4 PIÈCES NEUVEEn vente : à côté du RER A (station Achères Grand Cormier, 20 min de Paris), nous sommes ravis de vous présenter, proche du centre-ville de Saint-Germain-en-Laye (78100), cette maison de 4 pièces de 112 m². Son intérieur dispose de quatre chambres, d’une cuisine et de deux salles de bains.Le terrain du bien s’étend sur 260 m².Cette maison compte 2 niveaux. Elle est neuve.Des établissements scolaires de tous niveaux sont implantés à moins de 10 minutes en voiture, 105 structures d’accueil pour les tout-petits à moins de 10 minutes à pied, tout comme deux établissements du supérieur à moins de 10 minutes en voiture : l’École nationale supérieure du pétrole et des moteurs et l’Université Paris-X. Niveau transports, on trouve la ligne de RER A (Achères-Grand-Cormier) ainsi que 31 gares dans un rayon de 10 km. Il y a des bibliothèques, des tennis, des bassins de natation, deux ports de plaisance, deux bowlings, des commerces, des boulangeries, des supermarchés, des poissonneries et des boucheries-charcuteries à proximité. 18 marchés animent les environs.Son prix de vente est de 637 711 €.N’hésitez pas à prendre contact avec Morgane KUD ((Numéro supprimé)) pour plus d’informations sur la maison ou sur les modalités de vente. Faites de vos projets immobiliers une réalité avec Les Maisons Extraco Chambourcy.
Feucherolles
TERRAINVENTE : terrain de 886 m² à FeucherollesIDÉALEMENT SITUÉ – PROCHE DE PARISÀ côté de la gare de Plaisir-Les Clayes (Paris à 45 min avec le Transilien N) à Feucherolles (78810), grand terrain. Il donne sur un jardin et est exposé au sud. Dans un secteur recherché, ce terrain idéalement situé est proche des commerces et des écoles. L’École Primaire la Trouée et l’École Primaire Bernard Deniau sont implantées à moins de 10 minutes à pied. Niveau transports en commun, on trouve la ligne de RER A (Poissy) ainsi que 21 gares à moins de 10 minutes en voiture. Il y a deux tennis, une bibliothèque, une boulangerie et deux boucheries-charcuteries dans les environs.Ce terrain est à vendre pour la somme de 380 000 €. Prenez contact avec Morgane KUD ((Numéro supprimé)) pour tout renseignement sur le terrain, sur les modalités de vente ou sur les démarches à suivre.
Saint-Germain-en-Laye
TERRAINFourqueux : terrain de 656 m² à vendreIDÉALEMENT SITUÉ – PROCHE DE PARISÀ quelques minutes du Transilien L (gare de Saint-Nom-la-Bretèche Forêt de Marly, 40 min de Paris) à Fourqueux (78112), grand terrain. Ce terrain, orienté plein ouest, donne sur un jardin. Dans un secteur prisé, le terrain idéalement situé est proche des commerces et des écoles. Niveau transports, il y a les lignes de RER A et C ainsi que 27 gares à moins de 10 minutes en voiture. Des autoroutes et les nationales N13, N186 et N12 sont accessibles à moins de 10 km et Saint-Nom-la-Bretèche est située à 0 m. On trouve une bibliothèque, deux tennis, un bassin de natation, deux commerces, une boulangerie et un supermarché à quelques minutes du terrain.Ce terrain est à vendre pour la somme de 525 000 €. Prenez contact avec Morgane KUD ((Numéro supprimé)) pour tout renseignement sur le terrain, sur les démarches à suivre ou sur les modalités de vente.
Sartrouville
TERRAINL »agence Maisons France Confort de Coignières propose en partenariat avec un aménageur foncier ce superbe terrain sur la charmante commune de Sartrouville, cette commune en bord de Seine très recherchée attire par son charme avec de nombreux parcs, son calme et ses nombreuses commodités, superbe produit !Terrain individuel, projet sur mesure à réaliser.Pour d »avantage de précisions, un devis de construction personnalisé tout compris et une visite de ce terrain contactez sans tarder votre agence Maisons France Confort de Coignières au (Numéro supprimé) ou (Numéro supprimé)Annonce proposée par un Agent Commercial Partenaire.
Sartrouville
TERRAIN ET MAISONL’agence Maisons France Confort de Coignières propose ce magnifique projet, très attractif pour son lieu, ses prestations et son prix avec par exemple ce modèle R+1 (photos non contractuelles). Au rez-de-chaussée, une cuisine ouverte sur le séjour qui offre un espace de vie spacieux et harmonieux de plus de 40 m². Un cellier, un WC et une chambre avec salle d’eau complètent ce rez-de-chaussée. La distribution de l’étage optimise l’espace autour d’un palier, une suite parentale avec dressing et salle d’eau privative, 3 chambres, 1 salle de bains et 1 WC indépendant. Norme RE2020, chauffage PAC, plancher chauffant, domotique sur les volets roulants… Modèle personnalisable en fonction de votre mode de vie, vos envies et budget.Les plus Maisons France Confort : une expérience solide de presque 100 ans, la maitrise de projets sur mesure, la sécurité du premier constructeur national.Le prix de cette annonce inclus le terrain, le modèle de maison proposé en exemple ainsi que tous les frais de viabilisation, raccordements, évacuation de terres excédentaires, accès chantier etc…pour rappel les frais de notaire sur le terrain et les taxes, les clôtures, l’ameublement et la décoration ne sont pas inclus.Pour d’avantage de précisions et pour un devis de construction personnalisé avant visite du terrain contactez votre agence Maisons France Confort de Coignières au (Numéro supprimé) ou (Numéro supprimé)Annonce proposée par un Agent Commercial Partenaire.
Sartrouville
TERRAIN ET MAISONL’agence Maisons France Confort de Coignières propose ce magnifique projet, très attractif pour son lieu, ses prestations et son prix avec par exemple ce modèle R+1 toit plat (photos non contractuelles). Au rez-de-chaussée, une cuisine ouverte sur le séjour qui offre un espace de vie spacieux et harmonieux de plus de 40 m². Un cellier, un WC et une suite parentale avec dressing et salle d’eau privative complètent ce rez-de-chaussée. La distribution de l’étage optimise l’espace autour d’un palier, 3 chambres, 1 salle de bains et 1 WC indépendant. Norme RE2020, chauffage PAC, plancher chauffant, domotique sur les volets roulants… Modèle personnalisable en fonction de votre mode de vie, vos envies et budget.Les plus Maisons France Confort : une expérience solide de presque 100 ans, la maitrise de projets sur mesure, la sécurité du premier constructeur national.Le prix de cette annonce inclus le terrain, le modèle de maison proposé en exemple ainsi que tous les frais de viabilisation, raccordements, évacuation de terres excédentaires, accès chantier etc…pour rappel les frais de notaire sur le terrain et les taxes, les clôtures, l’ameublement et la décoration ne sont pas inclus.Pour d’avantage de précisions et pour un devis de construction personnalisé avant visite du terrain contactez votre agence Maisons France Confort de Coignières au (Numéro supprimé) ou (Numéro supprimé)Annonce proposée par un Agent Commercial Partenaire.
L’actualité immobilière à Le Pecq
27/11/2023
02/11/2023
30/10/2023
20/10/2023
16/10/2023
16/10/2023