Maison à construire à Le Perray-en-Yvelines (78610)
Images
Description
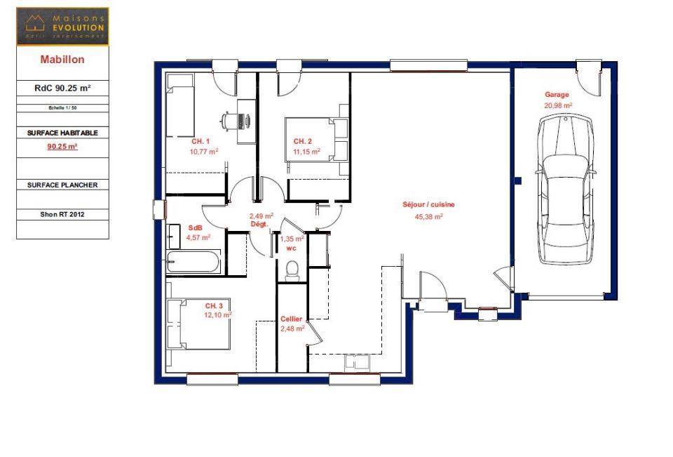
La Mabillon est un modèle plain-pied qui vous offre une surface habitable d'environ 90 m².
Vous y découvrirez un séjour/cuisine d'environ 45 m² avec son cellier. Un dégagement dessert le coin nuit composé de trois chambres, de sa salle de bains et de ses Toilettes indépendants.
Cette maison contemporaine vous séduira par sa sobre élégance.
Annonce proposée par un Agent Commercial Partenaire.
Logement susceptibles de vous intéresser
Nous vous proposons de découvrir aussi cette sélection de logements situés à moins de 10km de Le Perray-en-Yvelines et qui seraient susceptibles de vous intéresser.
 
  
 
 Rambouillet
TERRAINSitué à Rambouillet, proche de toutes commodités, découvrez ce beau terrain constructible de 375m² en lot arrière avec une emprise au sol max. de 50% soit 187m².*Servitude de passage et de réseaux divers d’une largeur de 3m.*L’emprise au sol maximale autorisée est limitée à 50 % de la superficie du terrain à bâtir, soit 187 m2.*Le coefficient biotope surfacique minimum est de 30% soit 113 m2 dont 75m2 en pleine terre.*Zone UDa du PLU.*Réseaux existants sur rue.*Dimension du terrain à bâtir :14,5 m x 25,7 m en moyenne. Prix 225000 €. Honoraires d’agence 5.00 % TTC inclus à la charge de l’acquéreur.Prix hors honoraires 214285.71 €.Non soumis au DPE.Les informations sur les risques auxquels ce bien est exposé sont disponibles sur le site Géorisques : (Lien supprimé). Sur ce site seront également consultables une fiche d’information sur les obligations de débroussaillement et une carte des zones soumises à cette obligation.La présente annonce immobilière a été rédigée sous la responsabilité éditoriale de FONTARENSKY Karen, mandataire indépendant en immobilier (sans détention de fonds), agent commercial de la SASU THE DOOR MAN, titulaire de la carte de démarchage immobilier pour le compte de la société THE DOOR MAN SASU.
 
  
 
 Saint-Léger-en-Yvelines
TERRAINL »agence Maisons France Confort de Coignières propose en partenariat avec un aménageur foncier ces superbes terrains sur la charmante commune de Saint-Léger-en-Yvelines : terrain de 301 m² EMPLACEMENT PRIVILÉGIÉ – PROCHE DE VERSAILLESÀ Saint-Léger-en-Yvelines (78610) à proximité du Transilien N (gare des Essarts-le-Roi, 40 min de Paris), projetez la maison de vos rêves sur ce terrain de 301 m². Dans un quartier convoité, ce terrain bénéficiant d »un emplacement privilégié est proche des commerces et des écoles. Une école primaire est implantée dans le quartier. Niveau transports, il y a cinq gares à moins de 10 minutes en voiture. On trouve un tennis, une bibliothèque, un commerce et deux épiceries à proximité du terrain.Son prix de vente est de 119 000 €. Pour d »avantage de précisions, un devis de construction personnalisé tout compris et une visite de ce terrain contactez sans tarder votre agence Maisons France Confort de Coignières au (Numéro supprimé) ou (Numéro supprimé)Annonce proposée par un Agent Commercial Partenaire.
 
  
 
 Saint-Léger-en-Yvelines
TERRAIN ET MAISONL’agence Maisons France Confort de Coignières propose ce magnifique projet, très attractif pour son lieu, ses prestations et son prix avec par exemple ce modèle plain-pied (photo non contractuelle).La distribution de cette maison optimise l’espace autour d’une cuisine ouverte sur le séjour qui offre un espace de vie spacieux et harmonieux de plus de 30 m², 2 chambres, 1 salle de bains, 1 WC indépendant et un cellier. Norme RE2020, chauffage PAC, domotique sur les volets roulants… Modèle personnalisable en fonction de votre mode de vie, vos envies et budget.Les plus Maisons France Confort : une expérience solide de presque 100 ans, la maîtrise de projets sur mesure, la sécurité du premier constructeur national.Le prix de cette annonce inclus le terrain, le modèle de maison proposé en exemple ainsi que tous les frais de viabilisation, raccordements, évacuation de terres excédentaires, accès chantier etc…Pour rappel les frais de notaire sur le terrain et les taxes, les clôtures, l’ameublement et la décoration ne sont pas inclus.Pour d’avantage de précisions et pour un devis de construction personnalisé avant visite du terrain contactez votre agence Maisons France Confort de Coignières au (Numéro supprimé) ou (Numéro supprimé) et (Numéro supprimé)Annonce proposée par un Agent Commercial Partenaire.
 
  
 
 Bazoches-sur-Guyonne
TERRAINMontfort-l’Amaury : terrain de 679 m² à vendreEMPLACEMENT PRIVILÉGIÉ – PROCHE DE VERSAILLESGrand terrain à proximité du Transilien N (gare de Montfort-l’Amaury-Méré, 35 min de Paris). De 679 m², ce terrain se situe bénéficiant d’un emplacement d’exception dans Montfort-l’Amaury (78490). Ce terrain, avec une exposition sud-ouest, donne sur un espace vert. Dans un quartier attractif, ce terrain est proche des commerces et des écoles. Deux établissements scolaires sont implantés à moins de 10 minutes à pied, tout comme, parmi lesquels le Collège Maurice Ravel. Niveau transports en commun, on trouve sept gares à moins de 10 minutes en voiture. Il y a un bassin de natation, un tennis, une bibliothèque, des commerces, trois boulangeries, deux boucheries-charcuteries, un bureau de poste et trois épiceries à quelques minutes du terrain.Il est à vendre pour la somme de 230 000 €. Prenez contact avec Morgane KUD ((Numéro supprimé)) pour toute information sur le terrain. Les Maisons Extraco Chambourcy est là pour vous accompagner dans tous vos projets immobiliers.
 
  
 
 Les Essarts-le-Roi
TERRAINLes Essarts-le-Roi : terrain de 655 m² en venteIDÉALEMENT SITUÉ – VUE SANS VIS-À-VISAux Essarts-le-Roi (78690) à quelques minutes du Transilien N (40 min de Paris), imaginez la maison de vos rêves sur ce terrain de 655 m². Il profite d’une vue sans vis-à-vis et est orienté à l’ouest. Dans un quartier recherché, le terrain idéalement situé est proche des écoles et des commerces. Il y a cinq établissements scolaires à moins de 10 minutes à pied. Côté transports, on trouve la gare Les Essarts-le-Roi à proximité. On trouve une bibliothèque, un bassin de natation, un tennis, quatre commerces, une boulangerie, un supermarché, une boucherie-charcuterie et un bureau de poste à quelques minutes de la propriété.Son prix de vente est de 160 000 €. N’hésitez pas à prendre contact avec notre agence (KUD Morgane : (Numéro supprimé)) pour plus de renseignements sur le terrain. Les Maisons Extraco Chambourcy est là pour vous accompagner dans toutes vos démarches.
 
  
 
 Saint-Léger-en-Yvelines
TERRAINPrix : 145000 €.Sur ce terrain de 417 m² à SAINT-LEGER-EN-YVELINES, Maisons Clairval vous propose de réaliser votre projet de construction de maison individuelle.Maisons Clairval propose de construire votre maison neuve avec toutes les prestations suivantes :- Plan sur-mesure et personnalisé de 2 à 6 chambres- Mode de chauffage au choix- Grands choix d'équipements et de prestations- Matériaux de qualité selon les normes en vigueur- Accompagnement dans le choix et l’acquisition du terrain- Construction conforme à la nouvelle RE 2020Demandez une étude gratuite et personnalisée de votre projet de construction sur ce terrain !Contactez Nicolas REBOUL au (Numéro supprimé) ou au (Numéro supprimé) (Maisons Clairval – Agence de Villemoisson).Prix hors frais de notaire. Terrain sélectionné et vu pour vous sous réserve de disponibilité et au prix indiqué par notre partenaire foncier. Conditions et visuels non contractuels.Cette annonce a été créée et diffusée avec le logiciel VITAHOME.
 
  
 
 Saint-Léger-en-Yvelines
TERRAINPrix : 147000 €.Sur ce terrain de 441 m² à SAINT-LEGER-EN-YVELINES, Maisons Clairval vous propose de réaliser votre projet de construction de maison individuelle.Maisons Clairval propose de construire votre maison neuve avec toutes les prestations suivantes :- Plan sur-mesure et personnalisé de 2 à 6 chambres- Mode de chauffage au choix- Grands choix d'équipements et de prestations- Matériaux de qualité selon les normes en vigueur- Accompagnement dans le choix et l’acquisition du terrain- Construction conforme à la nouvelle RE 2020Demandez une étude gratuite et personnalisée de votre projet de construction sur ce terrain !Contactez Nicolas REBOUL au (Numéro supprimé) ou au (Numéro supprimé) (Maisons Clairval – Agence de Villemoisson).Prix hors frais de notaire. Terrain sélectionné et vu pour vous sous réserve de disponibilité et au prix indiqué par notre partenaire foncier. Conditions et visuels non contractuels.Cette annonce a été créée et diffusée avec le logiciel VITAHOME.
 
  
 
 Le Perray-en-Yvelines
TERRAIN🏡 TERRAIN À BÂTIR AUX BRÉVIAIRES (78)Réalisez votre projet de maison avec Maisons Évolution Coignières!Situé dans le charmant village des Bréviaires, au coeur des Yvelines, découvrez ce beau terrain à bâtir idéal pour concrétiser votre projet de vie.👉 Environnement calme et verdoyant, proche de la forêt de Rambouillet👉 Écoles, commerces et commodités à proximité👉 Accès rapide à Rambouillet, Coignières et aux axes principaux (N10, N12)👉 Terrains viabilisés et bien orientésConfiez votre projet à Maisons Évolution Coignières, constructeur reconnu pour son savoir-faire, ses réalisations modernes et personnalisées.Choisissez parmi un large choix de modèles, du plain-pied au R+1, pour une maison adaptée à vos envies et à votre mode de vie.📞 Contactez dès maintenant Maisons Évolution Coignières pour étudier votre projet de construction aux Bréviaires.Annonce proposée par un Agent Commercial Partenaire.
 
  
 
 Le Perray-en-Yvelines
TERRAIN ET MAISONLa Mabillon est un modèle plain-pied qui vous offre une surface habitable d’environ 90 m².Vous y découvrirez un séjour/cuisine d’environ 45 m² avec son cellier. Un dégagement dessert le coin nuit composé de trois chambres, de sa salle de bains et de ses Toilettes indépendants.Cette maison contemporaine vous séduira par sa sobre élégance.Annonce proposée par un Agent Commercial Partenaire.
L’actualité immobilière à Le Perray-en-Yvelines
 27/11/2023
 
 27/11/2023
 
  02/11/2023
 
 02/11/2023
 
  30/10/2023
 
 30/10/2023
 
  20/10/2023
 
 20/10/2023
 
  16/10/2023
 
 16/10/2023
 
  16/10/2023
 
 16/10/2023
 
  
 
 
 
 
 
  
  
  
  
  
  
  
 