Maison à construire à Le Perray-en-Yvelines (78610)
Images
Description
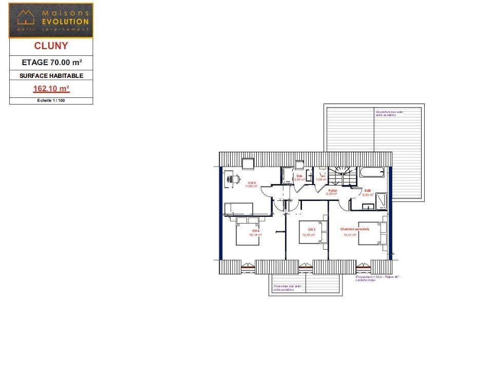
Le modèle Cluny est une maison en R+1 au toit 2 pans. Ses baies vitrées dans la pièce de vie donnant sur jardin en font une maison lumineuse et agréable à vivre. Sa surface habitable est de 162 m².
Le vaste rez-de-chaussée de 92 m² se compose d'un dégagement menant à un séjour/cuisine confortable de 58 m², une première chambre, une salle d'eau et un WC indépendant. L'accès au garage se fait par le cellier attenant au séjour.
L'étage est consacré à l'espace nuit, puisqu'il est composé de 3 chambres et d'une suite parentale. Toutes les chambres ont accès à une salle de bains, une salle d'eau et un WC indépendant.
Annonce proposée par un Agent Commercial Partenaire.
Logement susceptibles de vous intéresser
Nous vous proposons de découvrir aussi cette sélection de logements situés à moins de 10km de Le Perray-en-Yvelines et qui seraient susceptibles de vous intéresser.
Rambouillet
TERRAINÀ seulement 10 min de Rambouillet, découvrez ce beau projet de maison neuve à construire sur un terrain plat et arboré de 1 280 m², situé dans un environnement calme et verdoyant.Cette maison moderne de 105 m² habitables offre :3 chambres à l’étage,Une belle pièce de vie lumineuse avec cuisine ouverte,Salle de bains + 2 WC,Garage acollé et cellier. Ses atouts :Construction neuve RE 2020Excellente isolation et chauffage économique (pompe à chaleur)Plan 100 % personnalisableGrand terrain de 1 280 m², idéal pour terrasse, piscine ou jardinSaint-Hilarion (78125) – cadre paisible, à proximité de Rambouillet, commerces et gare.Étude gratuite et personnalisée sur demande !Il est à vendre pour la somme de 360 900 €. Contactez Orlando PINTO BARRETO (tél : (Numéro supprimé)) pour obtenir de plus amples informations sur le ce projet.Annonce proposée par un Agent Commercial Partenaire.
Montfort-l'Amaury
TERRAINVENTE : terrain de 300 m² à Montfort-l’AmauryEMPLACEMENT PRIVILÉGIÉ – VUE SANS VIS-À-VISÀ proximité du Transilien N (gare de Montfort-l’Amaury-Méré, 35 min de Paris) à Montfort-l’Amaury (78490), terrain de 300 m². Réalisez-y votre résidence principale ou secondaire. Il profite d’une vue sans vis-à-vis. Dans un secteur prisé, ce terrain bénéficiant d’un emplacement privilégié est proche des écoles et des commerces. Deux établissements scolaires sont implantés à moins de 10 minutes à pied, tout comme dont le Collège Maurice Ravel. Côté transports, on trouve sept gares à moins de 10 minutes en voiture. Il y a un bassin de natation, un tennis, une bibliothèque, des commerces, trois boulangeries, trois épiceries, deux boucheries-charcuteries et un bureau de poste à proximité du bien.Son prix de vente est de 190 000 €. Contactez notre agence (Charles ZAGDANSKI : (Numéro supprimé)) pour toute information sur le terrain, sur les démarches à suivre ou sur les modalités de vente.
Montfort-l'Amaury
TERRAIN ET MAISONVENTE d’une maison de 6 pièces (100 m²) à Montfort-l’AmauryEMPLACEMENT PRIVILÉGIÉ – MAISON 6 PIÈCES NEUVEAu pied du Transilien N (gare de Montfort-l’Amaury-Méré, 35 min de Paris), en vente bénéficiant d’un emplacement privilégié dans Montfort-l’Amaury (78490), Maisons France Confort Jouars-Pontchartrain vous présente cette maison de 6 pièces de 100 m² et de 300 m² de terrain sans vis-à-vis. Elle propose quatre chambres, une cuisine et une salle de bains.Il s’agit d’une maison de 2 niveaux. Elle est neuve.La maison se trouve dans un secteur attractif. Deux établissements scolaires sont implantés à moins de 10 minutes à pied, tout comme, parmi lesquels le Collège Maurice Ravel. Niveau transports, il y a sept gares à moins de 10 minutes en voiture. On trouve un bassin de natation, un tennis, une bibliothèque, des commerces, trois boulangeries, deux boucheries-charcuteries, un bureau de poste et trois épiceries à proximité du logement.Son prix de vente est de 370 000 €.Prenez contact avec notre agence (ZAGDANSKI Charles : (Numéro supprimé)) pour plus d’informations sur la maison ou sur les modalités de vente. Maisons France Confort Jouars-Pontchartrain vous accompagne dans toutes vos démarches et dans tous vos projets immobiliers.
Montfort-l'Amaury
TERRAIN ET MAISONMaison F7 (120 m²) à vendre à Montfort-l’AmauryEMPLACEMENT PRIVILÉGIÉ – MAISON 7 PIÈCES NEUVEÀ proximité du Transilien N (gare de Montfort-l’Amaury-Méré, 35 min de Paris), nous vous proposons cette maison de 7 pièces de 120 m² et de 300 m² de terrain bénéficiant d’un emplacement privilégié dans Montfort-l’Amaury (78490).C’est une maison de 2 niveaux. Elle inclut cinq chambres, une cuisine et deux salles de bains. Cette maison est neuve.La maison se trouve dans un secteur attractif. Il y a deux établissements scolaires à moins de 10 minutes à pied et, comme le Collège Maurice Ravel. Niveau transports, on trouve sept gares à moins de 10 minutes en voiture. On trouve un bassin de natation, un tennis, une bibliothèque, des commerces, trois boulangeries, trois épiceries, deux boucheries-charcuteries et un bureau de poste dans les environs.Elle est proposée à l’achat pour 399 000 €.Prenez contact avec notre agence (ZAGDANSKI Charles : (Numéro supprimé)) pour obtenir de plus amples informations sur le bien ou sur les démarches à suivre. Maisons France Confort Jouars-Pontchartrain vous accompagne dans tous vos projets immobiliers et à toutes les étapes de l’achat.
Bazoches-sur-Guyonne
TERRAINL »agence Maisons France Confort de Coignières propose en partenariat avec un aménageur foncier ce superbe terrain sur la charmante commune de Bazoches-sur-Guyonne , à 10 min de Jouars-Pontchartrain, cette commune très recherchée attire par son charme, son calme et sa proximité des commodités, superbe produit !Terrain plat, vendu entièrement viabilisé, projet sur mesure à réaliser.Pour d »avantage de précisions, un devis de construction personnalisé tout compris et une visite de ce terrain contactez sans tarder votre agence Maisons France Confort de Coignières au (Numéro supprimé) ou (Numéro supprimé)Annonce proposée par un Agent Commercial Partenaire.
Bazoches-sur-Guyonne
TERRAIN ET MAISONL’agence Maisons France Confort de Coignières propose ce magnifique projet, très attractif pour son lieu, ses prestations et son prix avec par exemple ce modèle R+1 (photo non contractuelle). Au rez-de-chaussée, une cuisine ouverte sur le séjour qui offre un espace de vie spacieux et harmonieux de plus de 40 m². Un cellier, un WC complètent ce rez-de-chaussée. La distribution de l’étage optimise l’espace autour d’un palier, une suite parentale avec dressing et salle d’eau privative, 4 chambres, 1 salle de bains et 1 WC indépendant. Norme RE2020, chauffage PAC, plancher chauffant, domotique sur les volets roulants… Modèle personnalisable en fonction de votre mode de vie, vos envies et budget.Les plus Maisons France Confort : une expérience solide de presque 100 ans, la maitrise de projets sur mesure, la sécurité du premier constructeur national.Le prix de cette annonce inclus le terrain, le modèle de maison proposé en exemple ainsi que tous les frais de viabilisation, raccordements, évacuation de terres excédentaires, accès chantier etc…pour rappel les frais de notaire sur le terrain et les taxes, les clôtures, l’ameublement et la décoration ne sont pas inclus.Pour d’avantage de précisions et pour un devis de construction personnalisé avant visite du terrain contactez votre agence Maisons France Confort de Coignières au (Numéro supprimé) ou (Numéro supprimé)Annonce proposée par un Agent Commercial Partenaire.
Bazoches-sur-Guyonne
TERRAIN ET MAISONL’agence Maisons France Confort de Coignières propose ce magnifique projet, très attractif pour son lieu, ses prestations et son prix avec par exemple ce modèle R+1 (photo non contractuelle). Au rez-de-chaussée, une cuisine ouverte sur le séjour qui offre un espace de vie spacieux et harmonieux de plus de 40 m². Un cellier, un WC et une chambre complètent ce rez-de-chaussée. La distribution de l’étage optimise l’espace autour d’un palier, une suite parentale avec dressing et salle d’eau privative, 3 chambres, 1 salle de bains et 1 WC indépendant. Norme RE2020, chauffage PAC, plancher chauffant, domotique sur les volets roulants… Modèle personnalisable en fonction de votre mode de vie, vos envies et budget.Les plus Maisons France Confort : une expérience solide de presque 100 ans, la maitrise de projets sur mesure, la sécurité du premier constructeur national.Le prix de cette annonce inclus le terrain, le modèle de maison proposé en exemple ainsi que tous les frais de viabilisation, raccordements, évacuation de terres excédentaires, accès chantier etc…pour rappel les frais de notaire sur le terrain et les taxes, les clôtures, l’ameublement et la décoration ne sont pas inclus.Pour d’avantage de précisions et pour un devis de construction personnalisé avant visite du terrain contactez votre agence Maisons France Confort de Coignières au (Numéro supprimé) ou (Numéro supprimé)Annonce proposée par un Agent Commercial Partenaire.
Bazoches-sur-Guyonne
TERRAINL »agence Maisons France Confort de Coignières propose en partenariat avec un aménageur foncier ce superbe terrain sur la charmante commune de Bazoches-sur-Guyonne , à 10 min de Jouars-Pontchartrain, cette commune très recherchée attire par son charme, son calme et sa proximité des commodités, superbe produit !Terrain plat, vendu entièrement viabilisé, projet sur mesure à réaliser.Pour d »avantage de précisions, un devis de construction personnalisé tout compris et une visite de ce terrain contactez sans tarder votre agence Maisons France Confort de Coignières au (Numéro supprimé) ou (Numéro supprimé)Annonce proposée par un Agent Commercial Partenaire.
Le Perray-en-Yvelines
TERRAINL »agence Maisons France Confort de Coignières propose en partenariat avec un aménageur foncier ces superbes terrains sur la charmante commune de Saint-Léger-en-Yvelines : terrain de 301 m² EMPLACEMENT PRIVILÉGIÉ – PROCHE DE VERSAILLESÀ 8 min du Perray en Yvelines, Saint-Léger-en-Yvelines (78610) à proximité du Transilien N (gare des Essarts-le-Roi, 40 min de Paris), projetez la maison de vos rêves sur ce terrain de 301 m². Dans un quartier convoité, ce terrain bénéficiant d »un emplacement privilégié est proche des commerces et des écoles. Une école primaire est implantée dans le quartier. Niveau transports, il y a cinq gares à moins de 10 minutes en voiture. On trouve un tennis, une bibliothèque, un commerce et deux épiceries à proximité du terrain.Son prix de vente est de 119 000 €. Pour d »avantage de précisions, un devis de construction personnalisé tout compris et une visite de ce terrain contactez sans tarder votre agence Maisons France Confort de Coignières au (Numéro supprimé) ou (Numéro supprimé)Annonce proposée par un Agent Commercial Partenaire.
L’actualité immobilière à Le Perray-en-Yvelines
27/11/2023
02/11/2023
30/10/2023
20/10/2023
16/10/2023
16/10/2023