Maison à construire à Le Tremblay-sur-Mauldre (78490)
Images
Description
Le Tremblay-sur-Mauldre : maison F6 (117 m²) à vendre
IDÉALEMENT SITUÉE - MAISON 6 PIÈCES NEUVE
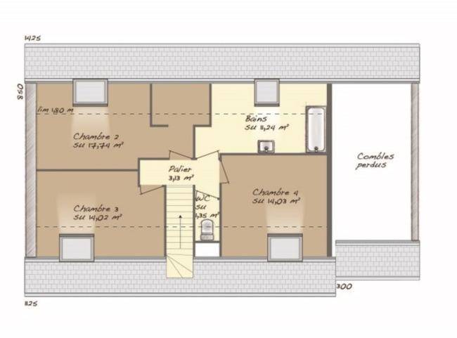
À proximité du Transilien N (gare de Coignières, 40 min de Paris), ayez le coup de coeur pour cette maison de 6 pièces de plain-pied de 117 m² et de 1 003 m² de terrain à vendre, idéalement située dans Le Tremblay-sur-Mauldre (78490). Son intérieur offre quatre chambres, une cuisine et deux salles de bains.
Cette maison est neuve.
Cette maison se trouve dans un quartier prisé. Il y a le Lycée Agricole Privé de Tremblay-Sur-Sur et l'École Élémentaire la Fermette à moins de 10 minutes à pied. On trouve une épicerie dans les environs.
Son prix de vente est de 472 000 €.
Contactez Thibault DUTEURTRE (tél : (Numéro supprimé)) pour toute information sur la propriété, sur les démarches à suivre ou sur les modalités de vente. Maisons Balency Coignières est là pour vous accompagner à toutes les étapes de votre projet.
Annonce proposée par un Agent Commercial Partenaire.
Logement susceptibles de vous intéresser
Nous vous proposons de découvrir aussi cette sélection de logements situés à moins de 10km de Le Tremblay-sur-Mauldre et qui seraient susceptibles de vous intéresser.
Les Clayes-sous-Bois
TERRAINVENTE d’un terrain de 409 m² aux Clayes-sous-BoisIDÉALEMENT SITUÉAux Clayes-sous-Bois (78340) à quelques minutes du Transilien N (gare de Villepreux-Les Clayes, 40 min de Paris), imaginez la maison de vos rêves sur ce terrain de 409 m². Ce terrain, avec vue sur jardin, est exposé au sud-est. Dans un quartier convoité, ce terrain idéalement situé est proche des écoles et des commerces. Plusieurs établissements scolaires (maternelle, élémentaire et collège) sont implantés à moins de 10 minutes à pied. Niveau transports, on trouve la gare Villepreux-Les Clayes juste à côté. Il y a une bibliothèque, un tennis, un bassin de natation, des boulangeries, des commerces, un supermarché, un bureau de poste et deux boucheries-charcuteries à quelques minutes à peine. Le marché Avenue Leclerc anime le quartier.Son prix de vente est de 244 000 €. N’hésitez pas à prendre contact avec Thibault DUTEURTRE (tél : (Numéro supprimé)) pour toute information sur le terrain. Maisons Balency Coignières est là pour vous accompagner dans toutes vos démarches.Annonce proposée par un Agent Commercial Partenaire.
Les Clayes-sous-Bois
TERRAIN ET MAISONVENTE d’une maison T5 (96 m²) aux Clayes-sous-BoisIDÉALEMENT SITUÉE – MAISON 5 PIÈCES NEUVEÀ quelques minutes du Transilien N (gare de Villepreux-Les Clayes, 40 min de Paris), à vendre idéalement située dans Les Clayes-sous-Bois (78340), nous sommes ravis de vous présenter cette maison de 5 pièces de 96 m² et de 409 m² de terrain avec vue sur jardin. Elle dispose de quatre chambres, d’une cuisine et d’une salle de bains.Cette maison compte 2 niveaux. Elle est neuve.La maison se situe dans un quartier recherché. Plusieurs établissements scolaires (maternelle, élémentaire et collège) sont implantés à moins de 10 minutes à pied. Côté transports en commun, on trouve la gare Villepreux-Les Clayes à quelques pas de la maison. Il y a une bibliothèque, un tennis, un bassin de natation, des boulangeries, des commerces, un supermarché, une poissonnerie et un bureau de poste à proximité. Enfin, le marché Avenue Leclerc anime les environs.Elle est à vendre pour la somme de 479 900 €.Contactez notre agence (Thibault DUTEURTRE : (Numéro supprimé)) pour obtenir de plus amples informations sur la maison ou sur les modalités de vente.Annonce proposée par un Agent Commercial Partenaire.
Neauphle-le-Château
TERRAIN ET MAISONMaison de 4 pièces (112 m²) en vente à Neauphle-le-ChâteauEMPLACEMENT PRIVILÉGIÉ – MAISON 4 PIÈCES NEUVEEn vente : à côté de la gare de Plaisir-Grignon (Paris à 25 min par le Transilien N), Les Maisons Extraco Chambourcy vous propose cette maison de 4 pièces de 112 m² et de 350 m² de terrain bénéficiant d’un emplacement privilégié dans Neauphle-le-Château (78640).C’est une maison de 2 niveaux. Son intérieur est composé de quatre chambres, d’une cuisine et de deux salles de bains. Cette maison est neuve.Cette maison se trouve dans un quartier prisé. L’École Élémentaire Emile Serre et l’École Maternelle les Petites Friches sont implantées à moins de 10 minutes à pied. Niveau transports, il y a 11 gares à moins de 10 minutes en voiture. On trouve une bibliothèque, un tennis, une boulangerie, quatre commerces, une boucherie-charcuterie, une épicerie et un bureau de poste à proximité du logement.Son prix de vente est de 414 133 €.Contactez Morgane KUD (tél : (Numéro supprimé)) pour toute information sur la maison ou sur les démarches à suivre.
Neauphle-le-Château
TERRAIN ET MAISONVENTE d’une maison T5 (92 m²) à Neauphle-le-ChâteauEMPLACEMENT PRIVILÉGIÉ – MAISON 5 PIÈCES NEUVEÀ vendre : au pied du Transilien N (gare de Plaisir-Grignon, 25 min de Paris), nous sommes heureux de vous proposer cette maison de 5 pièces de plain-pied de 92 m² bénéficiant d’un emplacement d’exception dans Neauphle-le-Château (78640).Elle est composée de quatre chambres, d’une cuisine et d’une salle de bains. Cette maison est neuve.Le terrain du bien est de 350 m².La maison se situe dans un secteur prisé. On trouve l’École Élémentaire Emile Serre et l’École Maternelle les Petites Friches à moins de 10 minutes à pied. Niveau transports, il y a 11 gares à moins de 10 minutes en voiture. Il y a une bibliothèque, un tennis, une boulangerie, quatre commerces, une épicerie, une boucherie-charcuterie et un bureau de poste dans les environs.Elle est à vendre pour la somme de 339 123 €.N’hésitez pas à prendre contact avec notre agence (Morgane KUD : (Numéro supprimé)) pour plus d’informations sur la maison ou sur les modalités de vente. Donnez vie à vos projets immobiliers avec Les Maisons Extraco Chambourcy.
Neauphle-le-Château
TERRAIN ET MAISONVENTE d’une maison F3 (132 m²) à Neauphle-le-ChâteauEMPLACEMENT PRIVILÉGIÉ – MAISON 3 PIÈCES NEUVEÀ vendre : à deux pas du Transilien N (gare de Plaisir-Grignon, 25 min de Paris), nous vous proposons cette maison de 3 pièces de 132 m² et de 350 m² de terrain bénéficiant d’un emplacement privilégié dans Neauphle-le-Château (78640). Son intérieur dispose d’une chambre, d’une cuisine et d’une salle de bains.Cette maison comporte 2 niveaux. Elle est neuve.Cette maison se trouve dans un quartier recherché. Il y a l’École Élémentaire Emile Serre et l’École Maternelle les Petites Friches à moins de 10 minutes à pied. Côté transports, on trouve 11 gares à moins de 10 minutes en voiture. On trouve une bibliothèque, un tennis, une boulangerie, quatre commerces, une boucherie-charcuterie, une épicerie et un bureau de poste à quelques minutes.Elle est proposée à l’achat pour 464 000 €.Prenez contact avec Morgane KUD (tél : (Numéro supprimé)) pour obtenir de plus amples renseignements sur la maison, sur les démarches à suivre ou sur les modalités de vente. Les Maisons Extraco Chambourcy vous accompagne à toutes les étapes de votre projet et dans tous vos projets immobiliers.
Neauphle-le-Château
TERRAIN ET MAISONMaison T5 (95 m²) à vendre à Neauphle-le-ChâteauEMPLACEMENT PRIVILÉGIÉ – MAISON 5 PIÈCES NEUVEProche du Transilien N (gare de Plaisir-Grignon, 25 min de Paris), nous vous proposons cette maison de 5 pièces de plain-pied de 95 m² bénéficiant d’un emplacement d’exception dans Neauphle-le-Château (78640).Son intérieur inclut quatre chambres, une cuisine et une salle de bains. La maison est neuve.Le terrain du bien est de 350 m².Cette maison se situe dans un secteur convoité. L’École Élémentaire Emile Serre et l’École Maternelle les Petites Friches sont implantées à moins de 10 minutes à pied. Côté transports en commun, il y a 11 gares à moins de 10 minutes en voiture. On trouve une bibliothèque, un tennis, une boulangerie, quatre commerces, un bureau de poste, une épicerie et une boucherie-charcuterie à proximité.Son prix de vente est de 343 783 €.Prenez contact avec Morgane KUD (tél : (Numéro supprimé)) pour toute question sur la propriété ou sur les démarches à suivre. Les Maisons Extraco Chambourcy vous accompagne dans tous vos projets immobiliers et à toutes les étapes de l’achat.
Neauphle-le-Château
TERRAIN ET MAISONMaison de 8 pièces (146 m²) en vente à Neauphle-le-ChâteauEMPLACEMENT PRIVILÉGIÉ – MAISON 8 PIÈCES NEUVEProche du Transilien N (gare de Plaisir-Grignon, 25 min de Paris), ayez le coup de coeur pour cette maison de 8 pièces de 146 m² et de 350 m² de terrain bénéficiant d’un emplacement d’exception dans Neauphle-le-Château (78640).C’est une maison de 2 niveaux. Elle compte six chambres, une cuisine et deux salles de bains. La maison est neuve.Cette propriété se situe dans un secteur prisé. L’École Élémentaire Emile Serre et l’École Maternelle les Petites Friches sont implantées à moins de 10 minutes à pied. Côté transports, il y a 11 gares à moins de 10 minutes en voiture. On trouve une bibliothèque, un tennis, une boulangerie, quatre commerces, une épicerie, un bureau de poste et une boucherie-charcuterie à quelques minutes à peine.Elle est proposée à l’achat pour 469 300 €.Contactez notre agence (KUD Morgane : (Numéro supprimé)) pour tout renseignement sur la maison, sur les modalités de vente ou sur les démarches à suivre. Les Maisons Extraco Chambourcy vous accompagne à toutes les étapes de l’achat et dans tous vos projets immobiliers.
Lévis-Saint-Nom
TERRAIN ET MAISONLévis-Saint-Nom : maison de 6 pièces (114 m²) en venteIDÉALEMENT SITUÉE – MAISON 6 PIÈCES NEUVEÀ côté du Transilien N (gare de La Verrière, 35 min de Paris), nous sommes heureux de vous présenter en vente, idéalement située dans Lévis-Saint-Nom (78320), cette maison de 6 pièces de 114 m² et de 860 m² de terrain.Cette maison possède 2 niveaux. Son intérieur se divise en cinq chambres, une cuisine et deux salles de bains. Cette maison est neuve.Le bien se trouve dans un secteur convoité. Il y a quatre établissements scolaires à moins de 10 minutes à pied et deux crèches. Niveau transports, on trouve les stations de RER Saint-Quentin-En-Yvelines (ligne C) et Saint-Rémy-Lès-Chevreuse (ligne B) ainsi que six gares à moins de 10 minutes en voiture. On trouve un bassin de natation, un tennis, un supermarché, des commerces, trois boulangeries, deux boucheries-charcuteries et une épicerie à quelques minutes de la maison.Il est à vendre pour la somme de 370 000 €.N’hésitez pas à prendre contact avec Morgane KUD ((Numéro supprimé)) pour obtenir de plus amples renseignements sur la maison.
Lévis-Saint-Nom
TERRAIN ET MAISONLévis-Saint-Nom : maison T6 (120 m²) en venteIDÉALEMENT SITUÉE – MAISON 6 PIÈCES NEUVEÀ deux pas de la gare de La Verrière (Paris à 35 min par le Transilien N), nous vous proposons à vendre, idéalement située dans Lévis-Saint-Nom (78320), cette maison de 6 pièces de 120 m².Cette maison possède 2 niveaux. Son intérieur propose quatre chambres, une cuisine et deux salles de bains. Cette maison est neuve.Le terrain du bien s’étend sur 860 m².Cette maison se trouve dans un quartier convoité. Il y a quatre établissements scolaires à moins de 10 minutes à pied et deux crèches. Niveau transports en commun, on trouve les stations de RER Saint-Quentin-En-Yvelines (ligne C) et Saint-Rémy-Lès-Chevreuse (ligne B) ainsi que six gares à moins de 10 minutes en voiture. Il y a un bassin de natation, un tennis, un supermarché, des commerces, trois boulangeries, deux boucheries-charcuteries et une épicerie à quelques minutes à peine.Elle est à vendre pour la somme de 410 340 €.N’hésitez pas à prendre contact avec notre agence (Morgane KUD : (Numéro supprimé)) pour tout renseignement sur la maison ou sur les modalités de vente. Les Maisons Extraco Chambourcy est là pour vous accompagner dans toutes vos démarches.
L’actualité immobilière à Le Tremblay-sur-Mauldre
27/11/2023
02/11/2023
30/10/2023
20/10/2023
16/10/2023
16/10/2023