Maison à construire à Les Bréviaires (78610)
Images
Description
VENTE : maison de 6 pièces (114 m²) aux Bréviaires
EMPLACEMENT PRIVILÉGIÉ - MAISON 6 PIÈCES NEUVE
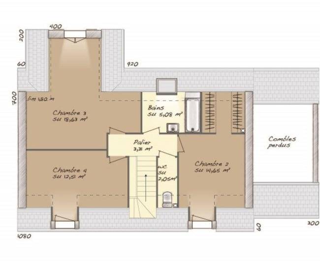
À proximité du Transilien N (gare des Essarts-le-Roi, 40 min de Paris), Maisons Balency Coignières vous présente à vendre, bénéficiant d'un emplacement privilégié dans Les Bréviaires (78610), cette maison de 6 pièces de 114 m². Son intérieur inclut quatre chambres, une cuisine et deux salles de bains.
Le terrain de cette maison s'étend sur 570 m².
C'est une maison de 2 niveaux. Elle est neuve.
La maison se situe dans un secteur recherché. Une école primaire y est implantée. Niveau transports, il y a 1 gare à moins de 10 minutes en voiture. On trouve un tennis, une boulangerie et deux épiceries à proximité.
Son prix de vente est de 468 246 €.
N'hésitez pas à prendre contact avec notre agence (DUTEURTRE Arnaud : (Numéro supprimé)) pour obtenir de plus amples renseignements sur la maison. Maisons Balency Coignières est là pour vous accompagner dans toutes vos démarches.
Annonce proposée par un Agent Commercial Partenaire.
Logement susceptibles de vous intéresser
Nous vous proposons de découvrir aussi cette sélection de logements situés à moins de 10km de Les Bréviaires et qui seraient susceptibles de vous intéresser.
Lévis-Saint-Nom
TERRAIN ET MAISONLévis-Saint-Nom : maison de 6 pièces (114 m²) en venteIDÉALEMENT SITUÉE – MAISON 6 PIÈCES NEUVEÀ côté du Transilien N (gare de La Verrière, 35 min de Paris), nous sommes heureux de vous présenter en vente, idéalement située dans Lévis-Saint-Nom (78320), cette maison de 6 pièces de 114 m² et de 860 m² de terrain.Cette maison possède 2 niveaux. Son intérieur se divise en cinq chambres, une cuisine et deux salles de bains. Cette maison est neuve.Le bien se trouve dans un secteur convoité. Il y a quatre établissements scolaires à moins de 10 minutes à pied et deux crèches. Niveau transports, on trouve les stations de RER Saint-Quentin-En-Yvelines (ligne C) et Saint-Rémy-Lès-Chevreuse (ligne B) ainsi que six gares à moins de 10 minutes en voiture. On trouve un bassin de natation, un tennis, un supermarché, des commerces, trois boulangeries, deux boucheries-charcuteries et une épicerie à quelques minutes de la maison.Il est à vendre pour la somme de 370 000 €.N’hésitez pas à prendre contact avec Morgane KUD ((Numéro supprimé)) pour obtenir de plus amples renseignements sur la maison.
Lévis-Saint-Nom
TERRAIN ET MAISONLévis-Saint-Nom : maison T6 (120 m²) en venteIDÉALEMENT SITUÉE – MAISON 6 PIÈCES NEUVEÀ deux pas de la gare de La Verrière (Paris à 35 min par le Transilien N), nous vous proposons à vendre, idéalement située dans Lévis-Saint-Nom (78320), cette maison de 6 pièces de 120 m².Cette maison possède 2 niveaux. Son intérieur propose quatre chambres, une cuisine et deux salles de bains. Cette maison est neuve.Le terrain du bien s’étend sur 860 m².Cette maison se trouve dans un quartier convoité. Il y a quatre établissements scolaires à moins de 10 minutes à pied et deux crèches. Niveau transports en commun, on trouve les stations de RER Saint-Quentin-En-Yvelines (ligne C) et Saint-Rémy-Lès-Chevreuse (ligne B) ainsi que six gares à moins de 10 minutes en voiture. Il y a un bassin de natation, un tennis, un supermarché, des commerces, trois boulangeries, deux boucheries-charcuteries et une épicerie à quelques minutes à peine.Elle est à vendre pour la somme de 410 340 €.N’hésitez pas à prendre contact avec notre agence (Morgane KUD : (Numéro supprimé)) pour tout renseignement sur la maison ou sur les modalités de vente. Les Maisons Extraco Chambourcy est là pour vous accompagner dans toutes vos démarches.
Lévis-Saint-Nom
TERRAIN ET MAISONVENTE d’une maison 1 pièce (144 m²) à Lévis-Saint-NomIDÉALEMENT SITUÉE – MAISON 1 PIÈCE NEUVEÀ deux pas du Transilien N (gare de La Verrière, 35 min de Paris), venez découvrir en vente, idéalement située dans Lévis-Saint-Nom (78320), cette maison 1 pièce de 144 m². Son intérieur offre six chambres, une cuisine et trois salles de bains.Le terrain de la propriété s’étend sur 860 m².C’est une maison de 2 niveaux. Elle est neuve.La maison se situe dans un quartier convoité. Quatre établissements scolaires se trouvent à moins de 10 minutes à pied, tout comme deux structures d’accueil pour les tout-petits. Niveau transports, il y a les stations de RER Saint-Quentin-En-Yvelines (ligne C) et Saint-Rémy-Lès-Chevreuse (ligne B) ainsi que six gares à moins de 10 minutes en voiture. On trouve un bassin de natation, un tennis, un supermarché, des commerces, trois boulangeries, une épicerie et deux boucheries-charcuteries à quelques minutes à peine.Son prix de vente est de 473 000 €.N’hésitez pas à prendre contact avec Morgane KUD (tél : (Numéro supprimé)) pour tout renseignement sur la maison. Les Maisons Extraco Chambourcy est là pour vous accompagner dans tous vos projets immobiliers.
Lévis-Saint-Nom
TERRAIN ET MAISONMaison F3 (142 m²) à vendre à Lévis-Saint-NomIDÉALEMENT SITUÉE – MAISON 3 PIÈCES NEUVEAu pied de la gare de La Verrière (Paris à 35 min avec le Transilien N), nous sommes heureux de vous présenter cette maison de 3 pièces de 142 m² idéalement située dans Lévis-Saint-Nom (78320).C’est une maison de 2 niveaux. Elle offre une chambre, une cuisine et une salle de bains. Cette maison est neuve.Le terrain du bien s’étend sur 860 m².Le bien est situé dans un quartier recherché. Quatre établissements scolaires se trouvent à moins de 10 minutes à pied, tout comme deux crèches. Niveau transports en commun, il y a les stations de RER Saint-Quentin-En-Yvelines (ligne C) et Saint-Rémy-Lès-Chevreuse (ligne B) ainsi que six gares à moins de 10 minutes en voiture. On trouve un bassin de natation, un tennis, un supermarché, des commerces, trois boulangeries, deux boucheries-charcuteries et une épicerie à quelques minutes à peine.Il est proposé à l’achat pour 469 069 €.N’hésitez pas à prendre contact avec notre agence (Morgane KUD : (Numéro supprimé)) pour obtenir de plus amples informations sur la maison. Les Maisons Extraco Chambourcy est là pour vous accompagner dans toutes vos démarches.
Saint-Léger-en-Yvelines
TERRAINPrix : 145000 €.Sur ce terrain de 417 m² à SAINT-LEGER-EN-YVELINES, Maisons Clairval vous propose de réaliser votre projet de construction de maison individuelle.Maisons Clairval propose de construire votre maison neuve avec toutes les prestations suivantes :- Plan sur-mesure et personnalisé de 2 à 6 chambres- Mode de chauffage au choix- Grands choix d'équipements et de prestations- Matériaux de qualité selon les normes en vigueur- Accompagnement dans le choix et l’acquisition du terrain- Construction conforme à la nouvelle RE 2020Demandez une étude gratuite et personnalisée de votre projet de construction sur ce terrain !Contactez Nicolas REBOUL au (Numéro supprimé) ou au (Numéro supprimé) (Maisons Clairval – Agence de Villemoisson).Prix hors frais de notaire. Terrain sélectionné et vu pour vous sous réserve de disponibilité et au prix indiqué par notre partenaire foncier. Conditions et visuels non contractuels.Cette annonce a été créée et diffusée avec le logiciel VITAHOME.
Saint-Léger-en-Yvelines
TERRAINPrix : 147000 €.Sur ce terrain de 441 m² à SAINT-LEGER-EN-YVELINES, Maisons Clairval vous propose de réaliser votre projet de construction de maison individuelle.Maisons Clairval propose de construire votre maison neuve avec toutes les prestations suivantes :- Plan sur-mesure et personnalisé de 2 à 6 chambres- Mode de chauffage au choix- Grands choix d'équipements et de prestations- Matériaux de qualité selon les normes en vigueur- Accompagnement dans le choix et l’acquisition du terrain- Construction conforme à la nouvelle RE 2020Demandez une étude gratuite et personnalisée de votre projet de construction sur ce terrain !Contactez Nicolas REBOUL au (Numéro supprimé) ou au (Numéro supprimé) (Maisons Clairval – Agence de Villemoisson).Prix hors frais de notaire. Terrain sélectionné et vu pour vous sous réserve de disponibilité et au prix indiqué par notre partenaire foncier. Conditions et visuels non contractuels.Cette annonce a été créée et diffusée avec le logiciel VITAHOME.
Méré
TERRAINBeau terrain viabilisé de 590m² dans village des Yvelines à 10min de Plaisir, gare et toutes commodités à seulement 3km.Façade de 14m. Possibilité d'emprise de 25%, hauteur maximum10m au faitage.Nous bâtissons des maisons sur mesure et nous pourrons ensemble réaliser des plans selon vos envies, vos besoins et votre budget.Contactez-nous pour en savoir plus et en vue de concrétiser votre rêve.Annonce proposée en exclusivité avec un vendeur privé.Prix : 225000 €.Sur ce terrain de 590 m² à MERE, Les Maisons Belles Demeures vous propose de réaliser votre projet de construction de maison individuelle.Les Maisons Belles Demeures propose de construire votre maison neuve avec toutes les prestations suivantes :- Plan sur-mesure et personnalisé de 2 à 6 chambres- Mode de chauffage au choix- Grands choix d'équipements et de prestations- Matériaux de qualité selon les normes en vigueur- Accompagnement dans le choix et l’acquisition du terrain- Construction conforme à la nouvelle RE 2020Demandez une étude gratuite et personnalisée de votre projet de construction sur ce terrain !Contactez Patryk MAGNIER au (Numéro supprimé) ou au (Numéro supprimé) (Les Maisons Belles Demeures – Agence de Jouars-Pontchartrain).Prix hors frais de notaire. Terrain sélectionné et vu pour vous sous réserve de disponibilité et au prix indiqué par notre partenaire foncier. Conditions et visuels non contractuels.Cette annonce a été créée et diffusée avec le logiciel VITAHOME.
Méré
TERRAINBeau terrain viabilisé de 845m² dans village des Yvelines à 10min de Plaisir, gare et toutes commodités à seulement 3km.Façade de 21.5m. Possibilité d'emprise de 25%, hauteur maximum10m au faitage.Nous bâtissons des maisons sur mesure et nous pourrons ensemble réaliser des plans selon vos envies, vos besoins et votre budget.Contactez-nous pour en savoir plus et en vue de concrétiser votre rêve.Annonce proposée en exclusivité avec un vendeur privé.Prix : 235000 €.Sur ce terrain de 845 m² à MERE, Les Maisons Belles Demeures vous propose de réaliser votre projet de construction de maison individuelle.Les Maisons Belles Demeures propose de construire votre maison neuve avec toutes les prestations suivantes :- Plan sur-mesure et personnalisé de 2 à 6 chambres- Mode de chauffage au choix- Grands choix d'équipements et de prestations- Matériaux de qualité selon les normes en vigueur- Accompagnement dans le choix et l’acquisition du terrain- Construction conforme à la nouvelle RE 2020Demandez une étude gratuite et personnalisée de votre projet de construction sur ce terrain !Contactez Patryk MAGNIER au (Numéro supprimé) ou au (Numéro supprimé) (Les Maisons Belles Demeures – Agence de Jouars-Pontchartrain).Prix hors frais de notaire. Terrain sélectionné et vu pour vous sous réserve de disponibilité et au prix indiqué par notre partenaire foncier. Conditions et visuels non contractuels.Cette annonce a été créée et diffusée avec le logiciel VITAHOME.
Lévis-Saint-Nom
TERRAINLévis-Saint-Nom : terrain de 860 m² à vendreIDÉALEMENT SITUÉ – PROCHE DE BOULOGNE-BILLANCOURTÀ Lévis-Saint-Nom (78320) à côté de la gare de La Verrière (Paris à 35 min par le Transilien N), imaginez la maison de vos rêves sur ce terrain de 860 m². Ce terrain, exposé plein sud-ouest, donne sur un espace vert. Dans un quartier attractif, ce terrain idéalement situé est proche des écoles et des commerces. Quatre établissements scolaires sont implantés à moins de 10 minutes à pied, tout comme deux structures d’accueil pour la petite enfance. Niveau transports en commun, il y a deux stations de RER (Saint-Quentin-En-Yvelines – ligne C – et Saint-Rémy-Lès-Chevreuse – ligne B) ainsi que six gares à moins de 10 minutes en voiture. On trouve un bassin de natation, un tennis, un supermarché, des commerces, trois boulangeries, deux boucheries-charcuteries et une épicerie à proximité du terrain.Son prix de vente est de 175 000 €. Contactez notre agence (Morgane KUD : (Numéro supprimé)) pour tout renseignement sur le terrain ou sur les démarches à suivre. Faites de vos projets immobiliers une réalité avec Les Maisons Extraco Chambourcy.
L’actualité immobilière à Les Bréviaires
27/11/2023
02/11/2023
30/10/2023
20/10/2023
16/10/2023
16/10/2023