Maison à construire à Les Essarts-le-Roi (78690)
Images
Description
Opportunité à saisir ! Projet de construction d'une maison d'exception BALENCY sur mesure
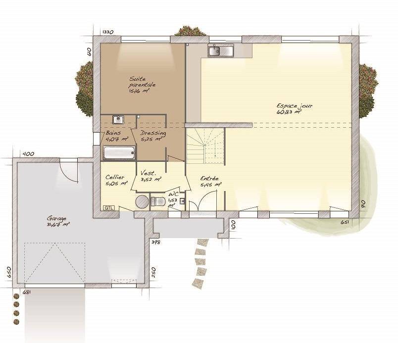
Dans un cadre privilégié, découvrez ce projet unique de construction d'une maison sur mesure, pensée pour allier élégance, confort et prestations haut de gamme. Sur un terrain de 1249 m², cette future propriété offrira une surface habitable de 200 m², conçue selon vos envies et vos exigences.
Caractéristiques principales :
- Architecture contemporaine ou classique selon vos préférences
- Matériaux nobles et finitions de qualité supérieure
- Grands volumes lumineux avec baies vitrées et hauteurs sous plafond
- Cuisine équipée haut de gamme ouverte sur un vaste espace de vie
- Suites parentales avec dressing et salle de bain privative
- Espaces personnalisables : bureau, salle de sport, home cinéma...
- Système de chauffage et climatisation gainable pour un confort thermique optimal et une intégration discrète digne d'un palace
- Domotique intégrée pour un confort optimal
- Jardin paysager avec possibilité de piscine, terrasse, pool house...
Localisation idéale :
Située dans un environnement calme et résidentiel, à proximité des commodités, écoles, transports et axes principaux, cette maison incarne le parfait équilibre entre tranquillité et vie active.
Un projet clé en main :
Accompagnement complet par des professionnels reconnus : architectes, artisans, décorateurs. Vous choisissez, nous réalisons.
Pour plus d'informations, merci de nous contacter au (Numéro supprimé)
Annonce proposée par un Agent Commercial Partenaire.
Logement susceptibles de vous intéresser
Nous vous proposons de découvrir aussi cette sélection de logements situés à moins de 10km de Les Essarts-le-Roi et qui seraient susceptibles de vous intéresser.
Lévis-Saint-Nom
TERRAIN ET MAISONLévis-Saint-Nom : maison de 6 pièces (114 m²) en venteIDÉALEMENT SITUÉE – MAISON 6 PIÈCES NEUVEÀ côté du Transilien N (gare de La Verrière, 35 min de Paris), nous sommes heureux de vous présenter en vente, idéalement située dans Lévis-Saint-Nom (78320), cette maison de 6 pièces de 114 m² et de 860 m² de terrain.Cette maison possède 2 niveaux. Son intérieur se divise en cinq chambres, une cuisine et deux salles de bains. Cette maison est neuve.Le bien se trouve dans un secteur convoité. Il y a quatre établissements scolaires à moins de 10 minutes à pied et deux crèches. Niveau transports, on trouve les stations de RER Saint-Quentin-En-Yvelines (ligne C) et Saint-Rémy-Lès-Chevreuse (ligne B) ainsi que six gares à moins de 10 minutes en voiture. On trouve un bassin de natation, un tennis, un supermarché, des commerces, trois boulangeries, deux boucheries-charcuteries et une épicerie à quelques minutes de la maison.Il est à vendre pour la somme de 370 000 €.N’hésitez pas à prendre contact avec Morgane KUD ((Numéro supprimé)) pour obtenir de plus amples renseignements sur la maison.
Lévis-Saint-Nom
TERRAIN ET MAISONLévis-Saint-Nom : maison T6 (120 m²) en venteIDÉALEMENT SITUÉE – MAISON 6 PIÈCES NEUVEÀ deux pas de la gare de La Verrière (Paris à 35 min par le Transilien N), nous vous proposons à vendre, idéalement située dans Lévis-Saint-Nom (78320), cette maison de 6 pièces de 120 m².Cette maison possède 2 niveaux. Son intérieur propose quatre chambres, une cuisine et deux salles de bains. Cette maison est neuve.Le terrain du bien s’étend sur 860 m².Cette maison se trouve dans un quartier convoité. Il y a quatre établissements scolaires à moins de 10 minutes à pied et deux crèches. Niveau transports en commun, on trouve les stations de RER Saint-Quentin-En-Yvelines (ligne C) et Saint-Rémy-Lès-Chevreuse (ligne B) ainsi que six gares à moins de 10 minutes en voiture. Il y a un bassin de natation, un tennis, un supermarché, des commerces, trois boulangeries, deux boucheries-charcuteries et une épicerie à quelques minutes à peine.Elle est à vendre pour la somme de 410 340 €.N’hésitez pas à prendre contact avec notre agence (Morgane KUD : (Numéro supprimé)) pour tout renseignement sur la maison ou sur les modalités de vente. Les Maisons Extraco Chambourcy est là pour vous accompagner dans toutes vos démarches.
Lévis-Saint-Nom
TERRAIN ET MAISONVENTE d’une maison 1 pièce (144 m²) à Lévis-Saint-NomIDÉALEMENT SITUÉE – MAISON 1 PIÈCE NEUVEÀ deux pas du Transilien N (gare de La Verrière, 35 min de Paris), venez découvrir en vente, idéalement située dans Lévis-Saint-Nom (78320), cette maison 1 pièce de 144 m². Son intérieur offre six chambres, une cuisine et trois salles de bains.Le terrain de la propriété s’étend sur 860 m².C’est une maison de 2 niveaux. Elle est neuve.La maison se situe dans un quartier convoité. Quatre établissements scolaires se trouvent à moins de 10 minutes à pied, tout comme deux structures d’accueil pour les tout-petits. Niveau transports, il y a les stations de RER Saint-Quentin-En-Yvelines (ligne C) et Saint-Rémy-Lès-Chevreuse (ligne B) ainsi que six gares à moins de 10 minutes en voiture. On trouve un bassin de natation, un tennis, un supermarché, des commerces, trois boulangeries, une épicerie et deux boucheries-charcuteries à quelques minutes à peine.Son prix de vente est de 473 000 €.N’hésitez pas à prendre contact avec Morgane KUD (tél : (Numéro supprimé)) pour tout renseignement sur la maison. Les Maisons Extraco Chambourcy est là pour vous accompagner dans tous vos projets immobiliers.
Lévis-Saint-Nom
TERRAIN ET MAISONMaison F3 (142 m²) à vendre à Lévis-Saint-NomIDÉALEMENT SITUÉE – MAISON 3 PIÈCES NEUVEAu pied de la gare de La Verrière (Paris à 35 min avec le Transilien N), nous sommes heureux de vous présenter cette maison de 3 pièces de 142 m² idéalement située dans Lévis-Saint-Nom (78320).C’est une maison de 2 niveaux. Elle offre une chambre, une cuisine et une salle de bains. Cette maison est neuve.Le terrain du bien s’étend sur 860 m².Le bien est situé dans un quartier recherché. Quatre établissements scolaires se trouvent à moins de 10 minutes à pied, tout comme deux crèches. Niveau transports en commun, il y a les stations de RER Saint-Quentin-En-Yvelines (ligne C) et Saint-Rémy-Lès-Chevreuse (ligne B) ainsi que six gares à moins de 10 minutes en voiture. On trouve un bassin de natation, un tennis, un supermarché, des commerces, trois boulangeries, deux boucheries-charcuteries et une épicerie à quelques minutes à peine.Il est proposé à l’achat pour 469 069 €.N’hésitez pas à prendre contact avec notre agence (Morgane KUD : (Numéro supprimé)) pour obtenir de plus amples informations sur la maison. Les Maisons Extraco Chambourcy est là pour vous accompagner dans toutes vos démarches.
Lévis-Saint-Nom
TERRAINLévis-Saint-Nom : terrain de 860 m² à vendreIDÉALEMENT SITUÉ – PROCHE DE BOULOGNE-BILLANCOURTÀ Lévis-Saint-Nom (78320) à côté de la gare de La Verrière (Paris à 35 min par le Transilien N), imaginez la maison de vos rêves sur ce terrain de 860 m². Ce terrain, exposé plein sud-ouest, donne sur un espace vert. Dans un quartier attractif, ce terrain idéalement situé est proche des écoles et des commerces. Quatre établissements scolaires sont implantés à moins de 10 minutes à pied, tout comme deux structures d’accueil pour la petite enfance. Niveau transports en commun, il y a deux stations de RER (Saint-Quentin-En-Yvelines – ligne C – et Saint-Rémy-Lès-Chevreuse – ligne B) ainsi que six gares à moins de 10 minutes en voiture. On trouve un bassin de natation, un tennis, un supermarché, des commerces, trois boulangeries, deux boucheries-charcuteries et une épicerie à proximité du terrain.Son prix de vente est de 175 000 €. Contactez notre agence (Morgane KUD : (Numéro supprimé)) pour tout renseignement sur le terrain ou sur les démarches à suivre. Faites de vos projets immobiliers une réalité avec Les Maisons Extraco Chambourcy.
Les Essarts-le-Roi
TERRAINVENTE d’un terrain de 652 m² aux Essarts-le-RoiIDÉALEMENT SITUÉ – PROCHE DE BOULOGNE-BILLANCOURTAux Essarts-le-Roi (78690) proche du Transilien N (40 min de Paris), imaginez la maison de vos rêves sur ce terrain de 652 m². Ce terrain, orienté au sud-ouest, donne sur un jardin. Dans un quartier convoité, ce terrain idéalement situé est proche des écoles et des commerces. Il y a cinq établissements scolaires à moins de 10 minutes à pied. Côté transports en commun, on trouve la gare Les Essarts-le-Roi à quelques pas du terrain. Il y a une bibliothèque, un bassin de natation, un tennis, quatre commerces, une boulangerie, un supermarché, une boucherie-charcuterie et un bureau de poste à proximité du bien.Ce terrain est à vendre pour la somme de 189 000 €. Contactez notre agence (KUD Morgane : (Numéro supprimé)) pour tout renseignement sur le terrain ou sur les modalités de vente. Donnez vie à vos projets immobiliers avec Les Maisons Extraco Chambourcy.
Choisel
TERRAINEric Mouthon Conseiller Commercial (Numéro supprimé) Étude gratuite et personnalisée sur rendez-vous.Située au coeur de la Vallée de Chevreuse à seulement 35 km de Paris,Choisel séduit par son cadre de vie paisible et verdoyant. Nichée au coeur du Parc naturel régional de la Haute Vallée de Chevreuse, cette commune offre un environnement naturel privilégié, entre forêts, sentiers de randonnées et espaces boisés. Idéal pour les amoureux de la nature.A proximité de la gare RER B de Saint-Rémy-lès-Chevreuse, permettant ainsi de rejoindre Paris en 40min environ. L’accès rapide à la nationale N118 facilite les déplacements en voiture vers les pôles économiques comme Paris-Saclay, Courtaboeuf ou Saint-Quentin-en-Yvelines.
Choisel
TERRAIN ET MAISONEric Mouthon Conseiller Commercial (Numéro supprimé) Étude gratuite et personnalisée sur rendez-vous.Agencement Flexible :4 chambres lumineuses et des plans entièrement personnalisables pour un espace de vie qui vous ressemble. Performance RE 2020 : Une solution thermique et acoustique de pointe, garantissant un confort d’été supérieur (idéal contre la chaleur) et des économies d’énergie. Plancher Chauffant pour une chaleur douce et uniforme, sans radiateur encombrant. Volets Roulants (VR) motorisés et centralisé. Saisissez cette opportunité de bâtir une maison intelligente, éco-performante et sur mesure, dans un environnement paisible.
Bazoches-sur-Guyonne
TERRAIN ET MAISONVENTE d’une maison de 5 pièces (92 m²) à Montfort-l’AmauryEMPLACEMENT PRIVILÉGIÉ – MAISON 5 PIÈCES NEUVEÀ proximité du Transilien N (gare de Montfort-l’Amaury-Méré, 35 min de Paris), nous vous proposons cette maison de 5 pièces de plain-pied de 92 m² et de 679 m² de terrain à vendre, bénéficiant d’un emplacement privilégié dans Montfort-l’Amaury (78490).Conçue de plain-pied, elle inclut quatre chambres, une cuisine et une salle de bains. La maison est neuve.Cette maison se situe dans un quartier convoité. Il y a deux établissements scolaires à moins de 10 minutes à pied et, comme le Collège Maurice Ravel. Côté transports en commun, on trouve sept gares à moins de 10 minutes en voiture. On trouve un bassin de natation, un tennis, une bibliothèque, des commerces, trois boulangeries, un bureau de poste, trois épiceries et deux boucheries-charcuteries à quelques minutes du bien.Son prix de vente est de 404 711 €.Contactez notre agence (Morgane KUD : (Numéro supprimé)) pour toute question sur la maison. Concrétisez vos projets immobiliers avec Les Maisons Extraco Chambourcy.
L’actualité immobilière à Les Essarts-le-Roi
27/11/2023
02/11/2023
30/10/2023
20/10/2023
16/10/2023
16/10/2023