Maison à construire à Limetz-Villez (78270)
Images
Description
VENTE d'une maison F6 (115 m²) à Limetz-Villez
IDÉALEMENT SITUÉE - MAISON 6 PIÈCES NEUVE
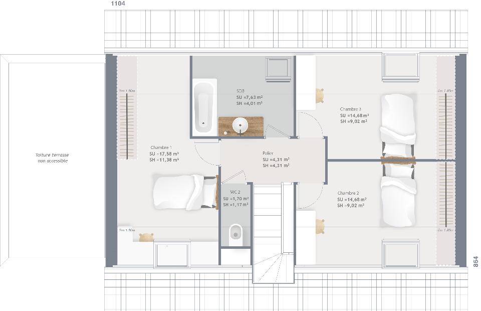
À vendre : à proximité de la gare de Vernon-Giverny (Paris à 1 h avec le Transilien J), idéalement située dans Limetz-Villez (78270), votre agence Maisons France Confort Conflans-Sainte-Honorine est heureuse de vous proposer cette maison de 6 pièces de 115 m². Son intérieur comporte quatre chambres, une cuisine et deux salles de bains.
Le terrain de la maison s'étend sur 795 m².
Il s'agit d'une maison de 2 niveaux. Elle est neuve.
Cette maison est située dans un quartier recherché. Des écoles maternelles et élémentaires y sont implantées. Niveau transports en commun, on trouve les gares Bonnières-sur-Seine, Vernon-Giverny et Rosny-sur-Seine à moins de 10 minutes en voiture. Il y a une bibliothèque, un tennis, un commerce et deux épiceries à quelques minutes à peine.
Elle est proposée à l'achat pour 304 000 €.
Contactez notre constructeur (HOUDEBINE Morgan : (Numéro supprimé)) pour toute question sur la maison, sur les démarches à suivre ou sur les modalités de vente. Maisons France Confort Conflans-Sainte-Honorine est là pour vous accompagner dans tous vos projets immobiliers.
Annonce proposée par un Agent Commercial Partenaire.
Logement susceptibles de vous intéresser
Nous vous proposons de découvrir aussi cette sélection de logements situés à moins de 10km de Limetz-Villez et qui seraient susceptibles de vous intéresser.
Rosny-sur-Seine
TERRAINRosny-sur-Seine : terrain de 630 m² en venteIDÉALEMENT SITUÉ – PROCHE DE MANTES-LA-JOLIEÀ Rosny-sur-Seine (78710) à deux pas du Transilien J (45 min de Paris), imaginez la maison de vos rêves sur ce terrain de 630 m². Dans un quartier prisé, le terrain idéalement situé est proche des écoles et des commerces. Il y a cinq établissements scolaires dans la commune. Côté transports en commun, on trouve cinq gares à moins de 10 minutes en voiture. Il y a une bibliothèque dans les environs.Son prix de vente est de 134 000 €. Prenez contact avec notre agence (Gilles BOREAU : (Numéro supprimé)) pour obtenir de plus amples informations sur ce terrain, sur les démarches à suivre ou sur les modalités de vente.
Rosny-sur-Seine
TERRAIN ET MAISONMaison F4 (86 m²) en vente à Rosny-sur-SeineIDÉALEMENT SITUÉE – MAISON 4 PIÈCES NEUVEÀ vendre : à côté de la gare (Paris à 45 min avec le Transilien J), Les Maisons Extraco Chambourcy vous présente cette maison de 4 pièces de 86 m² idéalement située dans Rosny-sur-Seine (78710).Cette maison comporte 2 niveaux. Son intérieur propose trois chambres, une cuisine et une salle de bains. La maison est neuve.Le terrain du bien s’étend sur 630 m².La maison se situe dans un quartier attractif. On y trouve cinq établissements scolaires. Niveau transports, on trouve cinq gares à moins de 10 minutes en voiture. Il y a une bibliothèque à proximité.Elle est proposée à l’achat pour 285 500 €.Contactez Gilles BOREAU ((Numéro supprimé)) pour toute information sur la propriété, sur les démarches à suivre ou sur les modalités de vente.
Rosny-sur-Seine
TERRAIN ET MAISONRosny-sur-Seine : maison T5 (100 m²) en venteIDÉALEMENT SITUÉE – MAISON 5 PIÈCES NEUVEÀ vendre : à côté du Transilien J (45 min de Paris), nous vous proposons cette maison de 5 pièces de 100 m² et de 630 m² de terrain idéalement située dans Rosny-sur-Seine (78710). Son intérieur est composé de quatre chambres, d’une cuisine et d’une salle de bains.C’est une maison de 2 niveaux. Elle est neuve.La maison se situe dans un secteur attractif. Cinq établissements scolaires y sont implantés. Niveau transports en commun, il y a cinq gares à moins de 10 minutes en voiture. On trouve une bibliothèque à proximité de la maison.Elle est proposée à l’achat pour 299 700 €.Contactez Gilles BOREAU (tél : (Numéro supprimé)) pour toute question sur la maison. Donnez vie à vos projets immobiliers avec Les Maisons Extraco Chambourcy.
Rosny-sur-Seine
TERRAIN ET MAISONMaison T6 (114 m²) en vente à Rosny-sur-SeineIDÉALEMENT SITUÉE – MAISON 6 PIÈCES NEUVEÀ proximité de la gare (Paris à 45 min avec le Transilien J), à vendre idéalement située dans Rosny-sur-Seine (78710), venez découvrir cette maison de 6 pièces de 114 m².Cette maison comporte 2 niveaux. Elle dispose de cinq chambres, d’une cuisine et de deux salles de bains. La maison est neuve.Le terrain de la propriété est de 630 m².Cette maison se trouve dans un quartier attractif. On y trouve cinq établissements scolaires. Niveau transports en commun, il y a cinq gares à moins de 10 minutes en voiture. On trouve une bibliothèque à quelques minutes du bien.Elle est proposée à l’achat pour 310 400 €.Contactez notre agence (BOREAU Gilles : (Numéro supprimé)) pour plus d’informations sur la maison. Les Maisons Extraco Chambourcy vous accompagne dans toutes vos démarches et à toutes les étapes de l’achat.
Rosny-sur-Seine
TERRAIN ET MAISONRosny-sur-Seine : maison de 7 pièces (104 m²) à vendreIDÉALEMENT SITUÉE – MAISON 7 PIÈCES NEUVEÀ deux pas de la gare (Paris à 45 min avec le Transilien J), nous vous présentons cette maison de 7 pièces de 104 m² en vente idéalement située dans Rosny-sur-Seine (78710).Cette maison compte 2 niveaux. Elle dispose de six chambres, d’une cuisine et de deux salles de bains. Cette maison est neuve.Le terrain de la propriété est de 630 m².Cette propriété est située dans un secteur recherché. On y trouve cinq établissements scolaires. Côté transports en commun, il y a cinq gares à moins de 10 minutes en voiture. On trouve une bibliothèque à quelques minutes à peine.Son prix de vente est de 336 500 €.Prenez contact avec notre agence (Gilles BOREAU : (Numéro supprimé)) pour plus de renseignements sur la maison.
Freneuse
TERRAINFreneuse : terrain de 515 m² en venteIDÉALEMENT SITUÉ – VUE DÉGAGÉEÀ Freneuse (78840) proche de la gare de Rosny-sur-Seine (Paris à 45 min avec le Transilien J), donnez vie à votre résidence principale ou secondaire sur ce terrain de 515 m². Il profite d’une vue dégagée et est orienté au sud. Dans un quartier prisé, ce terrain idéalement situé est proche des commerces et des écoles. Des établissements scolaires de tous types sont implantés à moins de 10 minutes en voiture, tout comme une crèche à moins de 10 minutes à pied. Niveau transports, on trouve deux gares (Bonnières-sur-Seine et Rosny-sur-Seine) à moins de 10 minutes en voiture. Il y a des tennis, des bibliothèques, un port de plaisance, un bassin de natation, des boulangeries, des commerces, des supermarchés, des supérettes et des bureaux de poste à quelques minutes. Le marché Place de la Libération a lieu tous les dimanches matin.Ce terrain est à vendre pour la somme de 89 000 €. Prenez contact avec notre agence (SONMEZ Oumayma : (Numéro supprimé)) pour toute question sur le terrain, sur les modalités de vente ou sur les démarches à suivre.
Freneuse
TERRAIN ET MAISONVENTE d’une maison de 4 pièces (74 m²) à FreneuseIDÉALEMENT SITUÉE – MAISON 4 PIÈCES NEUVEEn vente : à côté de la gare de Rosny-sur-Seine (Paris à 45 min avec le Transilien J), découvrez cette maison de 4 pièces de plain-pied de 74 m² et de 515 m² de terrain idéalement située dans Freneuse (78840).Conçue de plain-pied, elle se divise en trois chambres, une cuisine et une salle de bains. La maison est neuve.La maison se situe dans un secteur convoité. Des établissements scolaires de tous types sont implantés à moins de 10 minutes en voiture, tout comme une structure d’accueil pour les enfants en bas âge à moins de 10 minutes à pied. Niveau transports, on trouve deux gares (Bonnières-sur-Seine et Rosny-sur-Seine) à moins de 10 minutes en voiture. Il y a des tennis, des bibliothèques, un port de plaisance, un bassin de natation, des boulangeries, des commerces, des supermarchés, des épiceries et une poissonnerie à proximité du bien. Ne manquez pas le marché Place de la Libération chaque dimanche matin.Elle est à vendre pour la somme de 229 800 €.Contactez notre agence (SONMEZ Oumayma : (Numéro supprimé)) pour plus d’informations sur la maison, sur les démarches à suivre ou sur les modalités de vente. Les Maisons Extraco Gravigny vous accompagne à toutes les étapes de l’achat et dans tous vos projets immobiliers.
Freneuse
TERRAIN ET MAISONVENTE d’une maison de 5 pièces (86 m²) à FreneuseIDÉALEMENT SITUÉE – MAISON 5 PIÈCES NEUVEEn vente : à deux pas de la gare de Rosny-sur-Seine (Paris à 45 min par le Transilien J), Les Maisons Extraco Gravigny vous présente cette maison de 5 pièces de 86 m² idéalement située dans Freneuse (78840). Elle est composée de trois chambres, d’une cuisine et d’une salle de bains.Le terrain du bien est de 515 m².Cette maison possède 2 niveaux. Elle est neuve.Cette maison se trouve dans un secteur attractif. Il y a des écoles de tous niveaux (de la maternelle au lycée) à moins de 10 minutes en voiture, tout comme une structure d’accueil pour les enfants en bas âge à moins de 10 minutes à pied. Côté transports en commun, on trouve deux gares (Bonnières-sur-Seine et Rosny-sur-Seine) à moins de 10 minutes en voiture. On trouve des tennis, des bibliothèques, un port de plaisance, un bassin de natation, des boulangeries, des commerces, des supermarchés, des épiceries et des supérettes à quelques minutes à peine. Enfin, le marché Place de la Libération anime les environs chaque dimanche matin.Son prix de vente est de 225 600 €.Prenez contact avec notre agence (SONMEZ Oumayma : (Numéro supprimé)) pour toute information sur la maison, sur les démarches à suivre ou sur les modalités de vente.
Freneuse
TERRAIN ET MAISONVENTE : maison de 5 pièces (92 m²) à FreneuseIDÉALEMENT SITUÉE – MAISON 5 PIÈCES NEUVEÀ deux pas du Transilien J (gare de Rosny-sur-Seine, 45 min de Paris), en vente idéalement située dans Freneuse (78840), nous sommes heureux de vous proposer cette maison de 5 pièces de plain-pied de 92 m² et de 515 m² de terrain.Conçue de plain-pied, elle se divise en quatre chambres, une cuisine et une salle de bains. La maison est neuve.La maison est située dans un quartier convoité. On trouve tous les types d’écoles à moins de 10 minutes en voiture, tout comme une structure d’accueil pour les tout-petits à moins de 10 minutes à pied. Niveau transports, il y a deux gares (Bonnières-sur-Seine et Rosny-sur-Seine) à moins de 10 minutes en voiture. Il y a des tennis, des bibliothèques, un port de plaisance, un bassin de natation, des boulangeries, des commerces, des supermarchés, des supérettes et une poissonnerie dans les environs. Le marché Place de la Libération a lieu chaque dimanche matin.Son prix de vente est de 241 900 €.N’hésitez pas à prendre contact avec Oumayma SONMEZ ((Numéro supprimé)) pour plus de renseignements sur le bien, sur les démarches à suivre ou sur les modalités de vente. Donnez vie à vos projets immobiliers avec Les Maisons Extraco Gravigny.
L’actualité immobilière à Limetz-Villez
27/11/2023
02/11/2023
30/10/2023
20/10/2023
16/10/2023
16/10/2023