Maison à construire à Mantes-la-Ville (78711)
Images
Description
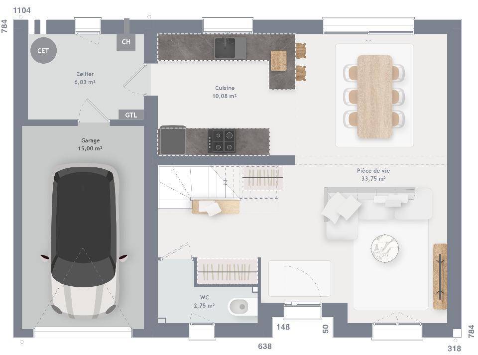
L'agence Maisons France Confort de Coignières propose ce magnifique projet, très attractif pour son lieu, ses prestations et son prix avec par exemple ce modèle R+1 (photos non contractuelles). Au rez-de-chaussée, une cuisine ouverte sur le séjour qui offre un espace de vie spacieux et harmonieux de près de 35 m². Un garage communiquant avec le cellier, un WC complètent ce rez-de-chaussée. La distribution de l'étage optimise l'espace autour d'un palier, une suite parentale avec dressing et salle d'eau privative, 2 chambres, 1 salle de bains. Norme RE2020, chauffage PAC, domotique sur les volets roulants... Modèle personnalisable en fonction de votre mode de vie, vos envies et budget.
Les plus Maisons France Confort : une expérience solide de presque 100 ans, la maitrise de projets sur mesure, la sécurité du premier constructeur national.
Le prix de cette annonce inclus le terrain, le modèle de maison proposé en exemple ainsi que tous les frais de viabilisation, raccordements, évacuation de terres excédentaires, accès chantier etc...pour rappel les frais de notaire sur le terrain et les taxes, les clôtures, l'ameublement et la décoration ne sont pas inclus.
Pour d'avantage de précisions et pour un devis de construction personnalisé avant visite du terrain contactez votre agence Maisons France Confort de Coignières au (Numéro supprimé) ou (Numéro supprimé) et (Numéro supprimé)
Annonce proposée par un Agent Commercial Partenaire.
Logement susceptibles de vous intéresser
Nous vous proposons de découvrir aussi cette sélection de logements situés à moins de 10km de Mantes-la-Ville et qui seraient susceptibles de vous intéresser.
Goussonville
TERRAINGoussonville : terrain de 1 000 m² à vendreIDÉALEMENT SITUÉ – PROCHE DE VERSAILLESÀ Goussonville (78930) à deux pas de la gare d’Épône-Mézières (Paris à 40 min avec le Transilien J), imaginez la maison de vos rêves sur ce terrain de 1 000 m². Il donne sur un espace vert. Dans un secteur convoité, le terrain idéalement situé est proche des écoles et des commerces. Des établissements scolaires maternelles et élémentaires sont implantés à moins de 10 minutes à pied, tout comme dont l’École Élémentaire Privée Notre-Dame de la Sablonnière. Niveau transports, il y a 10 gares à moins de 10 minutes en voiture. On trouve un tennis dans les environs.Son prix de vente est de 106 000 €. Prenez contact avec notre agence (KUD Morgane : (Numéro supprimé)) pour toute information sur le terrain.
Mantes-la-Ville
TERRAIN ET MAISONVENTE d’une maison T3 (50 m²) à Mantes-la-VilleMAISON 3 PIÈCES NEUVEÀ vendre : à proximité de la gare de Mantes-la-Jolie (Paris à 35 min avec le Transilien J), découvrez cette maison de 3 pièces de plain-pied de 50 m² à Mantes-la-Ville (78711). Elle dispose de deux chambres, d’une cuisine ouverte sur le séjour et d’une salle de bains.Le terrain de la maison s’étend sur 224 m².Cette maison est neuve.Il y a plusieurs écoles (maternelle, élémentaire et collège) à moins de 10 minutes à pied. Niveau transports en commun, on trouve sept gares à moins de 10 minutes en voiture. Il y a une bibliothèque, des boulangeries, des commerces, un supermarché, deux boucheries-charcuteries et un bureau de poste dans les environs. Ne manquez pas le marché Place du marché chaque jeudi matin.Son prix de vente est de 249 000 €.N’hésitez pas à prendre contact avec Aurélie KTARI (tél : (Numéro supprimé)) pour obtenir de plus amples renseignements sur cette maison. Faites de vos projets immobiliers une réalité avec Les Maisons Extraco Chambourcy.
Mantes-la-Ville
TERRAIN ET MAISONMaison de 4 pièces (88 m²) en vente à Mantes-la-VilleMAISON 4 PIÈCES NEUVEÀ vendre : au pied de la gare de Mantes-la-Jolie (Paris à 35 min avec le Transilien J), nous sommes heureux de vous présenter cette maison de 4 pièces de 88 m² à Mantes-la-Ville (78711). Elle inclut trois chambres, une cuisine ouverte sur le séjour et une salle de bains.Le terrain du bien est de 224 m².C’est une maison de 2 niveaux. Elle est neuve.Plusieurs établissements scolaires (maternelle, élémentaire et collège) sont implantés à moins de 10 minutes à pied. Niveau transports en commun, on trouve sept gares à moins de 10 minutes en voiture. Il y a une bibliothèque, des boulangeries, des commerces, un supermarché, un bureau de poste et deux boucheries-charcuteries à quelques minutes à peine. Le marché Place du marché a lieu tous les jeudis matin.Elle est proposée à l’achat pour 309 000 €.Contactez Aurélie KTARI ((Numéro supprimé)) pour toute information sur la maison.
Mantes-la-Ville
TERRAIN ET MAISONGAMME BOISVENTE d’une maison de 3 pièces (71 m²) à Mantes-la-VilleMAISON 3 PIÈCES NEUVEÀ vendre : au pied de la gare de Mantes-la-Jolie (Paris à 35 min par le Transilien J), Les Maisons Extraco Chambourcy vous présente à Mantes-la-Ville (78711), cette maison de 3 pièces de 71 m² et de 224 m² de terrain. Elle comporte deux chambres, une cuisine ouverte sur le séjour et une salle de bains.Il s’agit d’une maison de 2 niveaux. Elle est neuve.Il y a plusieurs établissements scolaires (maternelle, élémentaire et collège) à moins de 10 minutes à pied. Niveau transports en commun, on trouve sept gares à moins de 10 minutes en voiture. Il y a une bibliothèque, des boulangeries, des commerces, un supermarché, une supérette et deux boucheries-charcuteries à proximité. Ne manquez pas le marché Place du marché chaque jeudi matin.Elle est proposée à l’achat pour 309 000 €.Contactez Aurélie KTARI (tél : (Numéro supprimé)) pour obtenir de plus amples informations sur cette maison. Les Maisons Extraco Chambourcy vous accompagne à toutes les étapes de l’achat et dans tous vos projets immobiliers.
Mantes-la-Ville
TERRAIN ET MAISONVENTE d’une maison de 8 pièces (174 m²) à Mantes-la-VilleMAISON 8 PIÈCES NEUVEÀ vendre : à quelques minutes du Transilien J (gare de Mantes-la-Jolie, 35 min de Paris), nous vous proposons cette maison de 8 pièces de 174 m² et de 224 m² de terrain à Mantes-la-Ville (78711). Elle dispose de quatre chambres, d’une cuisine ouverte sur le séjour, deux salles de bains, un cellier et un garage.Il s’agit d’une maison de 2 niveaux. Elle est neuve.Il y a plusieurs écoles (maternelle, élémentaire et collège) à moins de 10 minutes à pied. Niveau transports, on trouve sept gares à moins de 10 minutes en voiture. Il y a une bibliothèque, des boulangeries, des commerces, un supermarché, une supérette et un bureau de poste à proximité du bien. Enfin, le marché Place du marché a lieu chaque jeudi matin.Son prix de vente est de 529 000 €.N’hésitez pas à prendre contact avec Aurélie KTARI (tél : (Numéro supprimé)) pour tout renseignement sur cette maison ou sur les démarches à suivre. Donnez vie à vos projets immobiliers avec Les Maisons Extraco Chambourcy.
Jumeauville
TERRAINBeau terrain viabilise de 400m² avec permis de construire R+1 accordé (pouvant être modifié) dans village des Yvelines AU CALME, gare et toutes commodités, à 4kms environ de MAULE et EPONE.Nous réalisons des maisons sur mesure et nous pourrons ensemble modifier les plans selon vos envies, vos besoins et votre budget.Contactez-nous pour en savoir plus et en vue de concrétiser votre rêve.Annonce proposée en partenariat avec un vendeur privé.Garanties et assurances obligatoires comprises. Hors raccordements & branchements. Hors frais de notaire. Photo(s) non contractuelle(s).Prix : 110000 €.Sur ce terrain de 400 m² à JUMEAUVILLE, Les Maisons Belles Demeures vous propose de réaliser votre projet de construction de maison individuelle.Les Maisons Belles Demeures propose de construire votre maison neuve avec toutes les prestations suivantes :- Plan sur-mesure et personnalisé de 2 à 6 chambres- Mode de chauffage au choix- Grands choix d'équipements et de prestations- Matériaux de qualité selon les normes en vigueur- Accompagnement dans le choix et l’acquisition du terrain- Construction conforme à la nouvelle RE 2020Demandez une étude gratuite et personnalisée de votre projet de construction sur ce terrain !Contactez Patryk MAGNIER au (Numéro supprimé) ou au (Numéro supprimé) (Les Maisons Belles Demeures – Agence de Jouars-Pontchartrain).Prix hors frais de notaire. Terrain sélectionné et vu pour vous sous réserve de disponibilité et au prix indiqué par notre partenaire foncier. Conditions et visuels non contractuels.Cette annonce a été créée et diffusée avec le logiciel VITAHOME.
Mantes-la-Ville
TERRAINMantes-la-Ville : terrain de 224 m² en venteAu pied de la gare de Mantes-la-Jolie (Paris à 35 min avec le Transilien J) à Mantes-la-Ville (78711), terrain de 224 m². Réalisez-y votre projet immobilier. Plusieurs établissements scolaires (maternelle, élémentaire et collège) se trouvent à moins de 10 minutes à pied. Côté transports, il y a sept gares à moins de 10 minutes en voiture. On trouve une bibliothèque, des boulangeries, des commerces, un supermarché, des épiceries et deux boucheries-charcuteries à quelques minutes du terrain. Le marché Place du marché a lieu chaque jeudi matin.Son prix de vente est de 139 900 €. Contactez Aurélie KTARI (tél : (Numéro supprimé)) pour plus de renseignements sur le terrain et sur les démarches à suivre. Les Maisons Extraco Chambourcy vous accompagne dans tous vos projets immobiliers et dans toutes vos démarches.
Mantes-la-Ville
TERRAINTerrain de 903 m² en vente à CraventPROCHE MANTESÀ Cravent (78270) en vente à 25 km d’Évreux, venez découvrir ce terrain de 903 m². L’École Élémentaire des Craventuriers est implantée à moins de 10 minutes à pied. Niveau transports en commun, on trouve trois gares (Bréval, Bueil et Bonnières-sur-Seine) à moins de 10 minutes en voiture. Il y a un tennis à proximité du bien.Il est proposé à l’achat pour 95 900 €. Contactez Aurélie KTARI (tél : (Numéro supprimé)) pour obtenir de plus amples informations sur ce terrain ou sur les démarches à suivre. Les Maisons Extraco Gravigny vous accompagne à toutes les étapes de votre projet et dans tous vos projets immobiliers.
Gargenville
TERRAINVous êtes à la recherche d'un terrain qui saura concrétiser vos ambitions ? Ne cherchez plus ! Ce terrain généreusement dimensionné, situé dans un quartier prisé et recherché, représente une occasion rare de bâtir le projet de vos rêves. Caractéristiques : Emplacement privilégié, offrant une accessibilité facile aux principales commodités locales ainsi qu'aux principaux axes de transport. Cadre paisible et serein, parfait pour ceux qui souhaitent allier tranquillité et proximité avec l'animation urbaine. Proximité immédiate des écoles, commerces et services essentiels, offrant ainsi confort et praticité au quotidien. C'est l'opportunité parfaite pour investir dans un avenir prometteur. Ne laissez pas passer cette chance unique de donner vie à vos projets ! Pour plus d'informations ou pour organiser une visite, contactez-moi sans tarder.Prix : 139000 €.Sur ce terrain, réalisez votre projet de construction de maison RE 2020 avec PAVILLONS D'ÎLE-DE-FRANCE (constructeur de maisons de gamme et sur-mesure depuis plus de 50 ans) :- Plan sur-mesure et personnalisé de 2 à 5 chambres- Mode de chauffage au choix- Grands choix d'équipements et de prestations- Matériaux de qualité selon les normes en vigueur- Accompagnement dans le choix et l’acquisition du terrainDemandez une étude gratuite et personnalisée de votre projet de construction sur ce terrain !Contactez Jason GUEVEL au (Numéro supprimé) ou au (Numéro supprimé) (Pavillons d'Île-de-France – Agence de Cauffry).Prix hors frais de notaire. Terrain sélectionné et vu pour vous sous réserve de disponibilité et au prix indiqué par notre partenaire foncier. Visuels non contractuels.Cette annonce a été créée et diffusée avec le logiciel VITAHOME.
L’actualité immobilière à Mantes-la-Ville
27/11/2023
02/11/2023
30/10/2023
20/10/2023
16/10/2023
16/10/2023