Maison à construire à Marly-le-Roi (78160)
Images
Description
Maison T7 (160 m²) en vente à Marly-le-Roi
MAISON 7 PIÈCES NEUVE - PROCHE DE PARIS
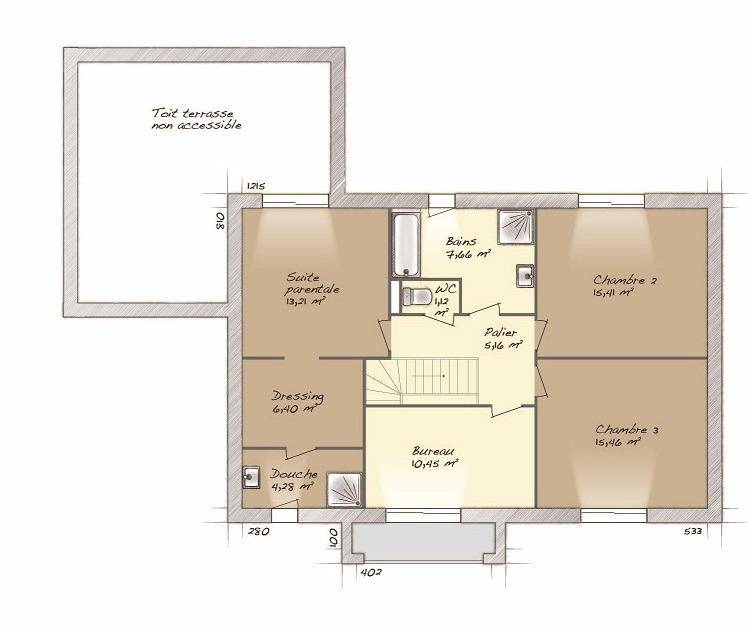
À deux pas du Transilien L (35 min de Paris), nous sommes heureux de vous présenter à vendre à Marly-le-Roi (78160), cette maison de 7 pièces de 160 m² et de 540 m² de terrain. Son intérieur compte quatre chambres, une cuisine et deux salles de bains.
Il s'agit d'une maison de 2 niveaux. Elle est neuve.
Il y a des écoles du primaire et du secondaire à moins de 10 minutes à pied, tout comme une structure d'accueil pour les tout-petits. Niveau transports en commun, on trouve la gare Marly-le-Roi dans les alentours. On trouve une bibliothèque, un bassin de natation, un tennis, des commerces, deux boulangeries et un bureau de poste à proximité de la maison.
Son prix de vente est de 830 500 €.
N'hésitez pas à prendre contact avec Arnaud DUTEURTRE (tél : (Numéro supprimé)) pour toute information sur cette maison. Donnez vie à vos projets immobiliers avec Maisons Balency Coignières.
Annonce proposée par un Agent Commercial Partenaire.
Logement susceptibles de vous intéresser
Nous vous proposons de découvrir aussi cette sélection de logements situés à moins de 10km de Marly-le-Roi et qui seraient susceptibles de vous intéresser.
Les Clayes-sous-Bois
TERRAINVENTE d’un terrain de 409 m² aux Clayes-sous-BoisIDÉALEMENT SITUÉAux Clayes-sous-Bois (78340) à quelques minutes du Transilien N (gare de Villepreux-Les Clayes, 40 min de Paris), imaginez la maison de vos rêves sur ce terrain de 409 m². Ce terrain, avec vue sur jardin, est exposé au sud-est. Dans un quartier convoité, ce terrain idéalement situé est proche des écoles et des commerces. Plusieurs établissements scolaires (maternelle, élémentaire et collège) sont implantés à moins de 10 minutes à pied. Niveau transports, on trouve la gare Villepreux-Les Clayes juste à côté. Il y a une bibliothèque, un tennis, un bassin de natation, des boulangeries, des commerces, un supermarché, un bureau de poste et deux boucheries-charcuteries à quelques minutes à peine. Le marché Avenue Leclerc anime le quartier.Son prix de vente est de 244 000 €. N’hésitez pas à prendre contact avec Thibault DUTEURTRE (tél : (Numéro supprimé)) pour toute information sur le terrain. Maisons Balency Coignières est là pour vous accompagner dans toutes vos démarches.Annonce proposée par un Agent Commercial Partenaire.
Les Clayes-sous-Bois
TERRAIN ET MAISONVENTE d’une maison T5 (96 m²) aux Clayes-sous-BoisIDÉALEMENT SITUÉE – MAISON 5 PIÈCES NEUVEÀ quelques minutes du Transilien N (gare de Villepreux-Les Clayes, 40 min de Paris), à vendre idéalement située dans Les Clayes-sous-Bois (78340), nous sommes ravis de vous présenter cette maison de 5 pièces de 96 m² et de 409 m² de terrain avec vue sur jardin. Elle dispose de quatre chambres, d’une cuisine et d’une salle de bains.Cette maison compte 2 niveaux. Elle est neuve.La maison se situe dans un quartier recherché. Plusieurs établissements scolaires (maternelle, élémentaire et collège) sont implantés à moins de 10 minutes à pied. Côté transports en commun, on trouve la gare Villepreux-Les Clayes à quelques pas de la maison. Il y a une bibliothèque, un tennis, un bassin de natation, des boulangeries, des commerces, un supermarché, une poissonnerie et un bureau de poste à proximité. Enfin, le marché Avenue Leclerc anime les environs.Elle est à vendre pour la somme de 479 900 €.Contactez notre agence (Thibault DUTEURTRE : (Numéro supprimé)) pour obtenir de plus amples informations sur la maison ou sur les modalités de vente.Annonce proposée par un Agent Commercial Partenaire.
Bois-d'Arcy
TERRAINPrix : 231000 €.Sur ce terrain de 350 m² à BOIS-D'ARCY, Maisons Clairval vous propose de réaliser votre projet de construction de maison individuelle.Maisons Clairval propose de construire votre maison neuve avec toutes les prestations suivantes :- Plan sur-mesure et personnalisé de 2 à 6 chambres- Mode de chauffage au choix- Grands choix d'équipements et de prestations- Matériaux de qualité selon les normes en vigueur- Accompagnement dans le choix et l’acquisition du terrain- Construction conforme à la nouvelle RE 2020Demandez une étude gratuite et personnalisée de votre projet de construction sur ce terrain !Contactez Nicolas REBOUL au (Numéro supprimé) ou au (Numéro supprimé) (Maisons Clairval – Agence de Villemoisson).Prix hors frais de notaire. Terrain sélectionné et vu pour vous sous réserve de disponibilité et au prix indiqué par notre partenaire foncier. Conditions et visuels non contractuels.Cette annonce a été créée et diffusée avec le logiciel VITAHOME.
Chaville
TERRAIN ET MAISON(Numéro supprimé) — Les maisons CLAIRVAL vous proposent ce terrain de 500 m², situé à Chaville, commune prisée des Hauts-de-Seine, idéalement placée entre Paris et Versailles. Vous profiterez d’un environnement résidentiel de qualité, à proximité immédiate des commerces, des écoles, des services de santé, ainsi que de plusieurs gares reliant directement Paris-Montparnasse et La Défense.Ce terrain plat et bien orienté permet d’envisager la construction d’une maison lumineuse, confortable et économe en énergie, conforme à la RE2020. Votre projet sera pensé sur mesure avec un vaste choix de prestations : finitions intérieures personnalisables, solutions énergétiques performantes, menuiseries modernes, domotique intelligente et possibilité d’isolation par l’extérieur pour maximiser confort et économies au quotidien.📞 Contactez-nous dès maintenant pour découvrir ce terrain et envisager votre futur projet à Chaville.Contactez John BOUT au (Numéro supprimé) (Maisons Clairval ).Prix avec assurance dommages-ouvrage comprise, VRD compris, terrain viabilisé, adaptation comprise, assainissement compris, frais de notaire non compris, taxes non comprises, frais divers non compris. Terrain en exclusivité. Conditions et visuels non contractuels.Cette annonce a été créée et diffusée avec le logiciel VITAHOME.
Chaville
TERRAIN(Numéro supprimé) — Les maisons CLAIRVAL vous proposent ce terrain de 500 m² situé à Chaville, commune prisée des Hauts-de-Seine, nichée entre les forêts de Meudon et de Fausses-Reposes. Vous bénéficierez d’un cadre de vie verdoyant et résidentiel, tout en profitant de la proximité immédiate des commerces, écoles et services. Les gares RER et Transilien, ainsi que les accès rapides à Paris et Versailles, facilitent vos déplacements quotidiens. Ce terrain plat et bien orienté offre la possibilité de concevoir une maison contemporaine, lumineuse et économe en énergie, conforme à la norme RE2020, avec des prestations personnalisées : aménagements intérieurs sur mesure, solutions énergétiques performantes et domotique. 📞 Contactez-nous dès aujourd’hui pour concrétiser votre projet à Chaville.Prix : 799000 €.Sur ce terrain de 500 m² à CHAVILLE, Maisons Clairval vous propose de réaliser votre projet de construction de maison individuelle.Demandez une étude gratuite et personnalisée de votre projet de construction sur ce terrain !Contactez John BOUT au (Numéro supprimé) ou au (Numéro supprimé) (Maisons Clairval – Agence de Rouvres).Prix hors frais de notaire. Terrain sélectionné et vu pour vous sous réserve de disponibilité et au prix indiqué par notre partenaire foncier. Conditions et visuels non contractuels.Cette annonce a été créée et diffusée avec le logiciel VITAHOME.
Feucherolles
TERRAINVENTE d’un terrain de 609 m² à FeucherollesIDÉALEMENT SITUÉ – PROCHE DE PARISÀ Feucherolles (78810) à côté du Transilien N (gare de Plaisir-Les Clayes, 45 min de Paris), projetez la maison de vos rêves sur ce terrain de 609 m². Il donne sur un jardin et est exposé au sud-ouest. Dans un secteur attractif, le terrain idéalement situé est proche des commerces et des écoles. Il y a l’École Primaire la Trouée et l’École Primaire Bernard Deniau à moins de 10 minutes à pied. Niveau transports, on trouve la ligne de RER A (Poissy) ainsi que 21 gares à moins de 10 minutes en voiture. Il y a deux tennis, une bibliothèque, une boulangerie et deux boucheries-charcuteries à quelques minutes du bien.Ce terrain est proposé à l’achat pour 375 000 €. Contactez notre agence (Morgane KUD : (Numéro supprimé)) pour plus de renseignements sur le terrain ou sur les modalités de vente. Les Maisons Extraco Chambourcy vous accompagne à toutes les étapes de l’achat et dans toutes vos démarches.
Feucherolles
TERRAIN ET MAISONFeucherolles : maison de 8 pièces (184 m²) en venteIDÉALEMENT SITUÉE – MAISON 8 PIÈCES NEUVEEn vente : à côté de la gare de Plaisir-Les Clayes (Paris à 45 min avec le Transilien N), nous vous proposons cette maison de 8 pièces de 184 m² et de 886 m² de terrain idéalement située dans Feucherolles (78810). Elle offre cinq chambres, une cuisine et deux salles de bains.Cette maison comporte 2 niveaux. Elle est neuve.La maison se trouve dans un quartier recherché. Il y a l’École Primaire la Trouée et l’École Primaire Bernard Deniau à moins de 10 minutes à pied. Niveau transports en commun, on trouve la ligne de RER A (Poissy) ainsi que 21 gares à moins de 10 minutes en voiture. On trouve deux tennis, une bibliothèque, une boulangerie et deux boucheries-charcuteries dans les environs.Elle est à vendre pour la somme de 774 100 €.Contactez notre agence (Morgane KUD : (Numéro supprimé)) pour obtenir de plus amples informations sur la maison, sur les modalités de vente ou sur les démarches à suivre.
Feucherolles
TERRAIN ET MAISONVENTE d’une maison T1 (235 m²) à FeucherollesIDÉALEMENT SITUÉE – MAISON 1 PIÈCE NEUVEÀ vendre : à deux pas de la gare de Plaisir-Les Clayes (Paris à 45 min avec le Transilien N), nous vous proposons, idéalement située dans Feucherolles (78810), cette maison 1 pièce de 235 m² et de 886 m² de terrain. Elle offre six chambres, une cuisine et trois salles de bains.Cette maison compte 2 niveaux. Elle est neuve.Cette maison se situe dans un quartier attractif. Il y a l’École Primaire la Trouée et l’École Primaire Bernard Deniau à moins de 10 minutes à pied. Côté transports en commun, on trouve la ligne de RER A (Poissy) ainsi que 21 gares à moins de 10 minutes en voiture. On trouve deux tennis, une bibliothèque, une boulangerie et deux boucheries-charcuteries à proximité de la maison.Elle est proposée à l’achat pour 878 650 €.Prenez contact avec Morgane KUD (tél : (Numéro supprimé)) pour toute question sur la maison ou sur les démarches à suivre.
Feucherolles
TERRAIN ET MAISONMaison T3 (182 m²) à vendre à FeucherollesIDÉALEMENT SITUÉE – MAISON 3 PIÈCES NEUVEEn vente : à quelques minutes du Transilien N (gare de Plaisir-Les Clayes, 45 min de Paris), notre agence Les Maisons Extraco Chambourcy est ravie de vous présenter cette maison de 3 pièces de 182 m² et de 886 m² de terrain idéalement située dans Feucherolles (78810).C’est une maison de 2 niveaux. Son intérieur compte une chambre, une cuisine et une salle de bains. La maison est neuve.Cette maison se trouve dans un quartier convoité. L’École Primaire la Trouée et l’École Primaire Bernard Deniau sont implantées à moins de 10 minutes à pied. Niveau transports, il y a la ligne de RER A (Poissy) ainsi que 21 gares à moins de 10 minutes en voiture. On trouve deux tennis, une bibliothèque, une boulangerie et deux boucheries-charcuteries dans les environs.Son prix de vente est de 779 100 €.Contactez Morgane KUD (tél : (Numéro supprimé)) pour plus de renseignements sur la maison.
L’actualité immobilière à Marly-le-Roi
27/11/2023
02/11/2023
30/10/2023
20/10/2023
16/10/2023
16/10/2023