Maison à construire à Maule (78580)
Images
Description
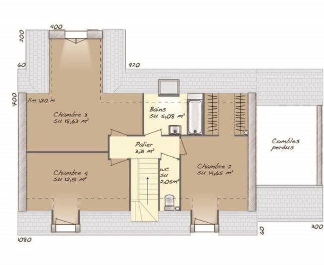
VENTE d'une maison T6 (114 m²) à Maule
IDÉALEMENT SITUÉE - MAISON 6 PIÈCES NEUVE
À 560 m du Transilien N (60 min de Paris), nous sommes ravis de vous présenter cette maison de 6 pièces de 114 m² avec vue sur jardin idéalement située dans Maule (78580).
Il s'agit d'une maison de 2 niveaux. Elle dispose de quatre chambres, d'une cuisine et de deux salles de bains. La maison est neuve.
Le terrain de la propriété est de 1 011 m².
Cette propriété est située dans un quartier convoité. Il y a des écoles de tous types à moins de 10 minutes à pied. Niveau transports en commun, on trouve la gare Maule dans les alentours. On trouve une bibliothèque, un tennis, des commerces, des boulangeries, un supermarché, trois épiceries et un bureau de poste à proximité.
Elle est proposée à l'achat pour 518 640 €.
Prenez contact avec notre agence (Thibault DUTEURTRE : (Numéro supprimé)) pour plus de renseignements sur la maison, sur les modalités de vente ou sur les démarches à suivre. Maisons Balency Coignières est là pour vous accompagner à toutes les étapes de votre projet.
Annonce proposée par un Agent Commercial Partenaire.
Logement susceptibles de vous intéresser
Nous vous proposons de découvrir aussi cette sélection de logements situés à moins de 10km de Maule et qui seraient susceptibles de vous intéresser.
Mézières-sur-Seine
TERRAIN ET MAISONVENTE d’une maison F4 (92 m²) à Mézières-sur-SeineIDÉALEMENT SITUÉE – MAISON 4 PIÈCES NEUVEÀ vendre : à quelques minutes de la gare d’Épône-Mézières (Paris à 40 min par le Transilien J), idéalement située dans Mézières-sur-Seine (78970), votre agence Les Maisons Extraco Chambourcy est heureuse de vous proposer cette maison de 4 pièces de 92 m². Elle offre trois chambres, une cuisine et une salle de bains.Le terrain de la propriété est de 330 m².Cette maison compte 2 niveaux. Elle est neuve.Cette maison se situe dans un secteur recherché. On trouve l’École Maternelle le Petit Prince et l’École Élémentaire les Tilleuls à moins de 10 minutes à pied. Niveau transports, il y a la gare Épône-Mézières dans un rayon de 1 km. Il y a deux supermarchés, quatre commerces, une boulangerie, une boucherie-charcuterie et un bureau de poste à proximité.Son prix de vente est de 313 600 €.Contactez Gilles BOREAU (tél : (Numéro supprimé)) pour tout renseignement sur la maison, sur les modalités de vente ou sur les démarches à suivre. Donnez vie à vos projets immobiliers avec Les Maisons Extraco Chambourcy.
Mézières-sur-Seine
TERRAINMézières-sur-Seine : terrain de 330 m² à vendreIDÉALEMENT SITUÉ – PROCHE DE VERSAILLESÀ Mézières-sur-Seine (78970) au pied de la gare d’Épône-Mézières (Paris à 40 min avec le Transilien J), donnez vie à la maison de vos rêves sur ce terrain de 330 m². Dans un secteur recherché, ce terrain idéalement situé est proche des écoles et des commerces. L’École Maternelle le Petit Prince et l’École Élémentaire les Tilleuls sont implantées à moins de 10 minutes à pied. Niveau transports en commun, il y a la gare Épône-Mézières à proximité. On trouve deux supermarchés, quatre commerces, une boulangerie, une boucherie-charcuterie et un bureau de poste à quelques minutes à peine.Il est à vendre pour la somme de 149 000 €. Contactez Gilles BOREAU (tél : (Numéro supprimé)) pour toute information sur ce terrain, sur les modalités de vente ou sur les démarches à suivre. Les Maisons Extraco Chambourcy vous accompagne à toutes les étapes de l’achat et dans tous vos projets immobiliers.
Mézières-sur-Seine
TERRAIN ET MAISONVENTE d’une maison de 4 pièces (81 m²) à Mézières-sur-SeineIDÉALEMENT SITUÉE – MAISON 4 PIÈCES NEUVEEn vente : au pied de la gare d’Épône-Mézières (Paris à 40 min par le Transilien J), laissez vous charmer par cette maison de 4 pièces de 81 m² et de 330 m² de terrain idéalement située dans Mézières-sur-Seine (78970). Son intérieur dispose de deux chambres, d’une cuisine et d’une salle de bains.Il s’agit d’une maison de 2 niveaux. Elle est neuve.La maison se trouve dans un quartier prisé. Il y a l’École Maternelle le Petit Prince et l’École Élémentaire les Tilleuls à moins de 10 minutes à pied. Côté transports, on trouve la gare Épône-Mézières à proximité. On trouve deux supermarchés, quatre commerces, une boulangerie, une boucherie-charcuterie et un bureau de poste à quelques minutes.Elle est proposée à l’achat pour 303 000 €.Contactez Gilles BOREAU (tél : (Numéro supprimé)) pour obtenir de plus amples renseignements sur la maison ou sur les modalités de vente. Donnez vie à vos projets immobiliers avec Les Maisons Extraco Chambourcy.
Mézières-sur-Seine
TERRAIN ET MAISONMézières-sur-Seine : maison T5 (106 m²) en venteIDÉALEMENT SITUÉE – MAISON 5 PIÈCES NEUVEÀ 570 m de la gare d’Épône-Mézières (Paris à 40 min par le Transilien J), découvrez cette maison de 5 pièces de 106 m² idéalement située dans Mézières-sur-Seine (78970). Son intérieur comporte quatre chambres, une cuisine et une salle de bains.Le terrain du bien est de 330 m².Il s’agit d’une maison de 2 niveaux. Elle est neuve.La maison se situe dans un secteur recherché. L’École Maternelle le Petit Prince et l’École Élémentaire les Tilleuls sont implantées à moins de 10 minutes à pied. Niveau transports en commun, on trouve la gare Épône-Mézières juste à côté. Il y a deux supermarchés, quatre commerces, une boulangerie, une boucherie-charcuterie et un bureau de poste dans les environs.Son prix de vente est de 338 500 €.Contactez notre agence (Gilles BOREAU : (Numéro supprimé)) pour plus d’informations sur la maison ou sur les démarches à suivre. Les Maisons Extraco Chambourcy vous accompagne dans tous vos projets immobiliers et à toutes les étapes de votre projet.
Maule
TERRAIN ET MAISONMaison F5 (105 m²) à vendre à MauleEMPLACEMENT PRIVILÉGIÉ – MAISON 5 PIÈCES NEUVEÀ deux pas de la gare (Paris à 60 min par le Transilien N), nous sommes heureux de vous présenter en vente, bénéficiant d’un emplacement privilégié dans Maule (78580), cette maison de 5 pièces de 105 m² et de 500 m² de terrain.C’est une maison de 2 niveaux. Son intérieur comporte quatre chambres, une cuisine et deux salles de bains. La maison est neuve.La maison se situe dans un quartier attractif. Il y a des établissements scolaires de tous niveaux à moins de 10 minutes à pied. Côté transports, on trouve la gare Maule dans les environs. Il y a une bibliothèque, un tennis, des commerces, des boulangeries, un supermarché, trois épiceries et un bureau de poste à quelques minutes de la maison.Elle est à vendre pour la somme de 365 500 €.Contactez notre agence (Gilles BOREAU : (Numéro supprimé)) pour plus d’informations sur la maison, sur les modalités de vente ou sur les démarches à suivre. Les Maisons Extraco Chambourcy est là pour vous accompagner à toutes les étapes de votre projet.
Porcheville
TERRAIN ET MAISONMaison T6 (114 m²) en vente à PorchevilleIDÉALEMENT SITUÉE – MAISON 6 PIÈCES NEUVEProche du Transilien J (gare d’Issou-Porcheville, 55 min de Paris), laissez vous charmer par cette maison de 6 pièces de 114 m² idéalement située dans Porcheville (78440).Il s’agit d’une maison de 2 niveaux. Elle offre cinq chambres, une cuisine et deux salles de bains. Cette maison est neuve.Le terrain du bien s’étend sur 532 m².La maison se situe dans un secteur prisé. Tous les types d’établissements scolaires (maternelle, élémentaire et secondaire) sont implantés à moins de 10 minutes à pied. Côté transports en commun, il y a la gare Issou-Porcheville dans les environs. On trouve un bassin de natation, un tennis, une bibliothèque, une boulangerie, un commerce, une épicerie et un bureau de poste à quelques minutes de la maison.Elle est à vendre pour la somme de 315 111 €.Prenez contact avec Morgane KUD ((Numéro supprimé)) pour tout renseignement sur la propriété. Les Maisons Extraco Chambourcy est là pour vous accompagner à toutes les étapes de votre projet.
Porcheville
TERRAIN ET MAISONVENTE d’une maison de 3 pièces (132 m²) à PorchevilleIDÉALEMENT SITUÉE – MAISON 3 PIÈCES NEUVEÀ vendre : au pied de la gare d’Issou-Porcheville (Paris à 55 min avec le Transilien J), nous sommes heureux de vous présenter, idéalement située dans Porcheville (78440), cette maison de 3 pièces de 132 m² et de 532 m² de terrain.C’est une maison de 2 niveaux. Elle dispose d’une chambre, d’une cuisine et d’une salle de bains. La maison est neuve.Cette maison se situe dans un quartier recherché. Des écoles de tous niveaux sont implantées à moins de 10 minutes à pied. Côté transports en commun, il y a la gare Issou-Porcheville à proximité. On trouve un bassin de natation, un tennis, une bibliothèque, une boulangerie, un commerce, un bureau de poste et une épicerie dans les environs.Elle est proposée à l’achat pour 387 200 €.Prenez contact avec Morgane KUD ((Numéro supprimé)) pour toute question sur la maison, sur les démarches à suivre ou sur les modalités de vente. Les Maisons Extraco Chambourcy vous accompagne dans tous vos projets immobiliers et à toutes les étapes de votre projet.
Vicq
TERRAIN ET MAISONVENTE : maison F6 (117 m²) à VicqIDÉALEMENT SITUÉE – MAISON 6 PIÈCES NEUVEEn vente : à proximité du Transilien N (gare de Montfort-l’Amaury-Méré, 35 min de Paris), nous sommes heureux de vous proposer cette maison de 6 pièces de 117 m² et de 1 518 m² de terrain avec vue sur jardin idéalement située dans Vicq (78490). Conçue de plain-pied, elle comporte quatre chambres, une cuisine et deux salles de bains.C’est une maison de plain-pied. Elle est neuve.Cette maison se situe dans un secteur attractif. Il y a des écoles de tous types (de la maternelle au lycée) à moins de 10 minutes en voiture, tout comme 15 structures d’accueil pour les enfants en bas âge à moins de 10 minutes à pied. Niveau transports en commun, on trouve huit gares à moins de 10 minutes en voiture. On trouve des bibliothèques, des tennis, trois bassins de natation, un bowling, des commerces, des boulangeries, des supermarchés, des boucheries-charcuteries et deux supérettes dans les environs. Enfin, 2 marchés animent le quartier.Elle est proposée à l’achat pour 515 300 €.Contactez Thibault DUTEURTRE ((Numéro supprimé)) pour toute question sur la maison, sur les démarches à suivre ou sur les modalités de vente. Donnez vie à vos projets immobiliers avec Maisons Balency Coignières.Annonce proposée par un Agent Commercial Partenaire.
Vicq
TERRAINTerrain de 506 m² à vendre à VicqIDÉALEMENT SITUÉÀ Vicq (78490) à quelques minutes de la gare de Montfort-l’Amaury-Méré (Paris à 35 min avec le Transilien N), projetez la maison de vos rêves sur ce terrain de 506 m². Ce terrain, avec vue sur jardin, bénéficie d’une exposition sud-est. Dans un secteur recherché, ce terrain idéalement situé est proche des commerces et des écoles. On trouve des écoles (de la maternelle au lycée) à moins de 10 minutes en voiture, tout comme 15 structures d’accueil pour les enfants en bas âge à moins de 10 minutes à pied. On trouve des bibliothèques, des tennis, trois bassins de natation, un bowling, des commerces, des boulangeries, des supermarchés, des boucheries-charcuteries et des épiceries à proximité. Enfin, 2 marchés animent les environs.Ce terrain est à vendre pour la somme de 160 000 €. Prenez contact avec Thibault DUTEURTRE ((Numéro supprimé)) pour toute information sur le terrain, sur les démarches à suivre ou sur les modalités de vente. Maisons Balency Coignières vous accompagne à toutes les étapes de votre projet et dans tous vos projets immobiliers.Annonce proposée par un Agent Commercial Partenaire.
L’actualité immobilière à Maule
27/11/2023
02/11/2023
30/10/2023
20/10/2023
16/10/2023
16/10/2023