Maison à construire à Maule (78580)
Images
Description
VENTE : maison de 6 pièces (115 m²) à Maule
CENTRE-VILLE - MAISON 6 PIÈCES NEUVE
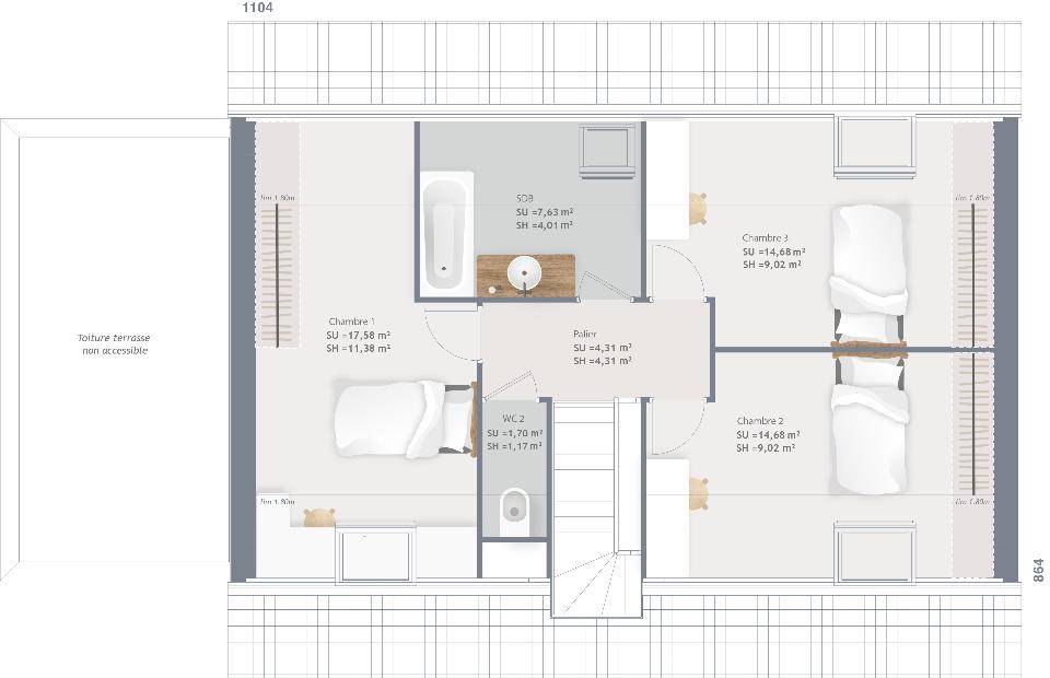
En vente : à quelques minutes de la gare (Paris à 60 min par le Transilien N), nous sommes ravis de vous proposer cette maison de 6 pièces de 115 m² avec vue sur rue à Maule (78580), en centre-ville. Elle offre quatre chambres, une cuisine et deux salles de bains.
Le terrain de cette maison est de 940 m².
C'est une maison de 2 niveaux. Elle est neuve.
Il y a des écoles de tous niveaux à moins de 10 minutes à pied. Niveau transports en commun, on trouve la gare Maule dans les alentours. Il y a une bibliothèque, un tennis, des commerces, des boulangeries, un supermarché, trois épiceries et trois boucheries-charcuteries à quelques minutes de la maison.
Elle est proposée à l'achat pour 450 000 €.
N'hésitez pas à prendre contact avec notre agence (Thomas RELAND : (Numéro supprimé)) pour toute question sur la propriété ou sur les modalités de vente.
Logement susceptibles de vous intéresser
Nous vous proposons de découvrir aussi cette sélection de logements situés à moins de 10km de Maule et qui seraient susceptibles de vous intéresser.
Maule
TERRAIN ET MAISONMaison F5 (105 m²) à vendre à MauleEMPLACEMENT PRIVILÉGIÉ – MAISON 5 PIÈCES NEUVEÀ deux pas de la gare (Paris à 60 min par le Transilien N), nous sommes heureux de vous présenter en vente, bénéficiant d’un emplacement privilégié dans Maule (78580), cette maison de 5 pièces de 105 m² et de 500 m² de terrain.C’est une maison de 2 niveaux. Son intérieur comporte quatre chambres, une cuisine et deux salles de bains. La maison est neuve.La maison se situe dans un quartier attractif. Il y a des établissements scolaires de tous niveaux à moins de 10 minutes à pied. Côté transports, on trouve la gare Maule dans les environs. Il y a une bibliothèque, un tennis, des commerces, des boulangeries, un supermarché, trois épiceries et un bureau de poste à quelques minutes de la maison.Elle est à vendre pour la somme de 365 500 €.Contactez notre agence (Gilles BOREAU : (Numéro supprimé)) pour plus d’informations sur la maison, sur les modalités de vente ou sur les démarches à suivre. Les Maisons Extraco Chambourcy est là pour vous accompagner à toutes les étapes de votre projet.
Porcheville
TERRAIN ET MAISONMaison T6 (114 m²) en vente à PorchevilleIDÉALEMENT SITUÉE – MAISON 6 PIÈCES NEUVEProche du Transilien J (gare d’Issou-Porcheville, 55 min de Paris), laissez vous charmer par cette maison de 6 pièces de 114 m² idéalement située dans Porcheville (78440).Il s’agit d’une maison de 2 niveaux. Elle offre cinq chambres, une cuisine et deux salles de bains. Cette maison est neuve.Le terrain du bien s’étend sur 532 m².La maison se situe dans un secteur prisé. Tous les types d’établissements scolaires (maternelle, élémentaire et secondaire) sont implantés à moins de 10 minutes à pied. Côté transports en commun, il y a la gare Issou-Porcheville dans les environs. On trouve un bassin de natation, un tennis, une bibliothèque, une boulangerie, un commerce, une épicerie et un bureau de poste à quelques minutes de la maison.Elle est à vendre pour la somme de 315 111 €.Prenez contact avec Morgane KUD ((Numéro supprimé)) pour tout renseignement sur la propriété. Les Maisons Extraco Chambourcy est là pour vous accompagner à toutes les étapes de votre projet.
Porcheville
TERRAIN ET MAISONVENTE d’une maison de 3 pièces (132 m²) à PorchevilleIDÉALEMENT SITUÉE – MAISON 3 PIÈCES NEUVEÀ vendre : au pied de la gare d’Issou-Porcheville (Paris à 55 min avec le Transilien J), nous sommes heureux de vous présenter, idéalement située dans Porcheville (78440), cette maison de 3 pièces de 132 m² et de 532 m² de terrain.C’est une maison de 2 niveaux. Elle dispose d’une chambre, d’une cuisine et d’une salle de bains. La maison est neuve.Cette maison se situe dans un quartier recherché. Des écoles de tous niveaux sont implantées à moins de 10 minutes à pied. Côté transports en commun, il y a la gare Issou-Porcheville à proximité. On trouve un bassin de natation, un tennis, une bibliothèque, une boulangerie, un commerce, un bureau de poste et une épicerie dans les environs.Elle est proposée à l’achat pour 387 200 €.Prenez contact avec Morgane KUD ((Numéro supprimé)) pour toute question sur la maison, sur les démarches à suivre ou sur les modalités de vente. Les Maisons Extraco Chambourcy vous accompagne dans tous vos projets immobiliers et à toutes les étapes de votre projet.
Vicq
TERRAIN ET MAISONVENTE : maison F6 (117 m²) à VicqIDÉALEMENT SITUÉE – MAISON 6 PIÈCES NEUVEEn vente : à proximité du Transilien N (gare de Montfort-l’Amaury-Méré, 35 min de Paris), nous sommes heureux de vous proposer cette maison de 6 pièces de 117 m² et de 1 518 m² de terrain avec vue sur jardin idéalement située dans Vicq (78490). Conçue de plain-pied, elle comporte quatre chambres, une cuisine et deux salles de bains.C’est une maison de plain-pied. Elle est neuve.Cette maison se situe dans un secteur attractif. Il y a des écoles de tous types (de la maternelle au lycée) à moins de 10 minutes en voiture, tout comme 15 structures d’accueil pour les enfants en bas âge à moins de 10 minutes à pied. Niveau transports en commun, on trouve huit gares à moins de 10 minutes en voiture. On trouve des bibliothèques, des tennis, trois bassins de natation, un bowling, des commerces, des boulangeries, des supermarchés, des boucheries-charcuteries et deux supérettes dans les environs. Enfin, 2 marchés animent le quartier.Elle est proposée à l’achat pour 515 300 €.Contactez Thibault DUTEURTRE ((Numéro supprimé)) pour toute question sur la maison, sur les démarches à suivre ou sur les modalités de vente. Donnez vie à vos projets immobiliers avec Maisons Balency Coignières.Annonce proposée par un Agent Commercial Partenaire.
Vicq
TERRAINTerrain de 506 m² à vendre à VicqIDÉALEMENT SITUÉÀ Vicq (78490) à quelques minutes de la gare de Montfort-l’Amaury-Méré (Paris à 35 min avec le Transilien N), projetez la maison de vos rêves sur ce terrain de 506 m². Ce terrain, avec vue sur jardin, bénéficie d’une exposition sud-est. Dans un secteur recherché, ce terrain idéalement situé est proche des commerces et des écoles. On trouve des écoles (de la maternelle au lycée) à moins de 10 minutes en voiture, tout comme 15 structures d’accueil pour les enfants en bas âge à moins de 10 minutes à pied. On trouve des bibliothèques, des tennis, trois bassins de natation, un bowling, des commerces, des boulangeries, des supermarchés, des boucheries-charcuteries et des épiceries à proximité. Enfin, 2 marchés animent les environs.Ce terrain est à vendre pour la somme de 160 000 €. Prenez contact avec Thibault DUTEURTRE ((Numéro supprimé)) pour toute information sur le terrain, sur les démarches à suivre ou sur les modalités de vente. Maisons Balency Coignières vous accompagne à toutes les étapes de votre projet et dans tous vos projets immobiliers.Annonce proposée par un Agent Commercial Partenaire.
Vicq
TERRAIN ET MAISONVENTE : maison T5 (90 m²) à VicqIDÉALEMENT SITUÉE – MAISON 5 PIÈCES NEUVEÀ deux pas de la gare de Montfort-l’Amaury-Méré (Paris à 35 min par le Transilien N), Maisons Balency Coignières vous présente cette maison de 5 pièces de plain-pied de 90 m² à vendre, idéalement située dans Vicq (78490). Elle dispose de trois chambres, d’une cuisine et d’une salle de bains.Le terrain de la maison est de 506 m².Cette maison est neuve.Cette propriété se situe dans un quartier recherché. Il y a des écoles du primaire et du secondaire à moins de 10 minutes en voiture, tout comme 15 structures d’accueil pour les tout-petits à moins de 10 minutes à pied. On trouve des bibliothèques, des tennis, trois bassins de natation, un bowling, des commerces, des boulangeries, des supermarchés, des bureaux de poste et des boucheries-charcuteries à quelques minutes du bien. Enfin, 2 marchés animent le quartier.Elle est à vendre pour la somme de 400 000 €.Prenez contact avec Thibault DUTEURTRE (tél : (Numéro supprimé)) pour plus de renseignements sur la maison ou sur les démarches à suivre. Maisons Balency Coignières est là pour vous accompagner à toutes les étapes de votre projet.Annonce proposée par un Agent Commercial Partenaire.
Épône
TERRAIN ET MAISONVENTE d’une maison F7 (117 m²) à ÉpôneIDÉALEMENT SITUÉE – MAISON 7 PIÈCES NEUVEÀ deux pas du Transilien N (gare de Nézel-Aulnay, 1 h de Paris), venez découvrir cette maison de 7 pièces de 117 m² et de 285 m² de terrain idéalement située dans Épône (78680). Elle est composée de quatre chambres, d’une cuisine et de deux salles de bains.C’est une maison de 2 niveaux. Elle est neuve.Cette maison se situe dans un secteur prisé. Plusieurs établissements scolaires (maternelle, élémentaire et collège) y sont implantés. Côté transports en commun, il y a 13 gares à moins de 10 minutes en voiture. On trouve une bibliothèque à proximité du bien.Son prix de vente est de 342 300 €.N’hésitez pas à prendre contact avec Morgane KUD ((Numéro supprimé)) pour toute question sur la maison ou sur les démarches à suivre.
Vicq
TERRAINVENTE d’un terrain de 1 518 m² à VicqIDÉALEMENT SITUÉProche de la gare de Montfort-l’Amaury-Méré (Paris à 35 min par le Transilien N) à Vicq (78490), grand terrain. Il donne sur un jardin et bénéficie d’une exposition sud-est. Dans un quartier recherché, ce terrain idéalement situé est proche des commerces et des écoles. Des établissements scolaires de tous types (de la maternelle au lycée) sont implantés à moins de 10 minutes en voiture, tout comme 15 structures d’accueil pour les tout-petits à moins de 10 minutes à pied. On trouve des bibliothèques, des tennis, trois bassins de natation, un bowling, des commerces, des boulangeries, des supermarchés, des boucheries-charcuteries et une poissonnerie dans les environs. Enfin, 2 marchés animent les environs.Ce terrain est à vendre pour la somme de 255 000 €. Contactez Thibault DUTEURTRE ((Numéro supprimé)) pour obtenir de plus amples informations sur le terrain. Maisons Balency Coignières est là pour vous accompagner à toutes les étapes de votre projet.Annonce proposée par un Agent Commercial Partenaire.
Vicq
TERRAIN ET MAISONVicq : maison de 6 pièces (114 m²) en venteIDÉALEMENT SITUÉE – MAISON 6 PIÈCES NEUVEEn vente : à deux pas du Transilien N (gare de Montfort-l’Amaury-Méré, 35 min de Paris), laissez vous charmer par cette maison de 6 pièces de 114 m² et de 506 m² de terrain avec vue sur jardin idéalement située dans Vicq (78490).Il s’agit d’une maison de 2 niveaux. Elle propose quatre chambres, une cuisine et deux salles de bains. Cette maison est neuve.La maison se situe dans un quartier convoité. On trouve des établissements scolaires du primaire et du secondaire à moins de 10 minutes en voiture, tout comme 15 crèches à moins de 10 minutes à pied. Il y a des bibliothèques, des tennis, trois bassins de natation, un bowling, des commerces, des boulangeries, des supermarchés, deux supérettes et des bureaux de poste à proximité de la maison. 2 marchés animent les environs.Elle est à vendre pour la somme de 440 000 €.Contactez Thibault DUTEURTRE (tél : (Numéro supprimé)) pour tout renseignement sur la maison ou sur les démarches à suivre.Annonce proposée par un Agent Commercial Partenaire.
L’actualité immobilière à Maule
27/11/2023
02/11/2023
30/10/2023
20/10/2023
16/10/2023
16/10/2023