Maison à construire à Médan (78670)
Images
Description
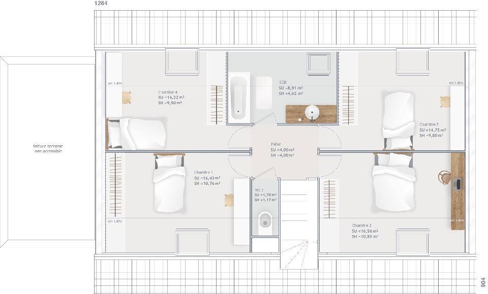
L'agence Maisons France Confort de Coignières propose ce magnifique projet, très attractif pour son lieu, ses prestations et son prix avec par exemple ce modèle R+combles aménagés (photo non contractuelle). Au rez-de-chaussée, une cuisine ouverte sur le séjour qui offre un espace de vie spacieux et harmonieux de plus de 40 m². Un cellier, un WC, un bureau et une suite parentale avec dressing et salle d'eau privative complètent ce rez-de-chaussée. La distribution de l'étage optimise l'espace autour d'un palier, 4 chambres, 1 salle de bains et 1 WC indépendant. Norme RE2020, chauffage PAC, domotique sur les volets roulants... Modèle personnalisable en fonction de votre mode de vie, vos envies et budget.
Les plus Maisons France Confort : une expérience solide de presque 100 ans, la maitrise de projets sur mesure, la sécurité du premier constructeur national.
Le prix de cette annonce inclus le terrain, le modèle de maison proposé en exemple ainsi que tous les frais de viabilisation, raccordements, évacuation de terres excédentaires, accès chantier etc...pour rappel les frais de notaire sur le terrain et les taxes, les clôtures, l'ameublement et la décoration ne sont pas inclus.
Pour d'avantage de précisions et pour un devis de construction personnalisé avant visite du terrain contactez votre agence Maisons France Confort de Coignières au (Numéro supprimé) ou (Numéro supprimé)
Annonce proposée par un Agent Commercial Partenaire.
Logement susceptibles de vous intéresser
Nous vous proposons de découvrir aussi cette sélection de logements situés à moins de 10km de Médan et qui seraient susceptibles de vous intéresser.
Médan
TERRAINL »agence Maisons France Confort de Coignières propose en partenariat avec un aménageur foncier ces superbes terrains sur la charmante commune de Médan, commune Yvelinoise proche des autoroutes A13 et A14, magnifique terrain à bâtir avec vue imprenable sur la vallée de la Seine. cette commune très recherchée attire par son charme, son calme et sa proximité des commodités, superbe produit !Terrain plat, vendu entièrement viabilisé, projet sur mesure à réaliser.Pour d »avantage de précisions, un devis de construction personnalisé tout compris et une visite de ce terrain contactez sans tarder votre agence Maisons France Confort de Coignières au (Numéro supprimé) ou (Numéro supprimé)Annonce proposée par un Agent Commercial Partenaire.
Médan
TERRAIN ET MAISONL’agence Maisons France Confort de Coignières propose ce magnifique projet, très attractif pour son lieu, ses prestations et son prix avec par exemple ce modèle plain-pied (photo non contractuelle). Découvrez nos modèles en ossature bois conçus pour aller au-delà des standards actuels et vous offrir une maison dans l’air du temps. Grace à une conception optimisée et une isolation renforcée, nos maisons garantissent un habitat à la fois écologique et économique. En limitant les perditions thermiques et en optimisant la gestion de l’énergie, votre maison Maisons France Confort vous permet de réaliser des économies durables tout en contribuant à la transition énergétique.Cette maison allie design et convivialité. La distribution de cette maison optimise l’espace autour d’une cuisine ouverte sur le séjour qui offre un espace de vie spacieux et harmonieux de plus de 45 m², une suite parentale avec dressing et salle d’eau privative, 3 chambres, 1 salle de bains, 1 WC indépendant et un cellier. Norme RE2020, chauffage PAC, domotique sur les volets roulants… Modèle personnalisable en fonction de votre mode de vie, vos envies et budget.Les plus Maisons France Confort : une expérience solide de presque 100 ans, la maîtrise de projets sur mesure, la sécurité du premier constructeur national.Le prix de cette annonce inclus le terrain, le modèle de maison proposé en exemple ainsi que tous les frais de viabilisation, raccordements, évacuation de terres excédentaires, accès chantier etc…Pour rappel les frais de notaire sur le terrain et les taxes, les clôtures, l’ameublement et la décoration ne sont pas inclus.Pour d’avantage de précisions et pour un devis de construction personnalisé avant visite du terrain contactez votre agence Maisons France Confort de Coignières au (Numéro supprimé) ou (Numéro supprimé)Annonce proposée par un Agent Commercial Partenaire.
Médan
TERRAIN ET MAISONL’agence Maisons France Confort de Coignières propose ce magnifique projet, très attractif pour son lieu, ses prestations et son prix avec par exemple ce modèle R+combles aménagés (photo non contractuelle). Au rez-de-chaussée, une cuisine ouverte sur le séjour qui offre un espace de vie spacieux et harmonieux de plus de 40 m². Un cellier, un WC, un bureau et une suite parentale avec dressing et salle d’eau privative complètent ce rez-de-chaussée. La distribution de l’étage optimise l’espace autour d’un palier, 4 chambres, 1 salle de bains et 1 WC indépendant. Norme RE2020, chauffage PAC, domotique sur les volets roulants… Modèle personnalisable en fonction de votre mode de vie, vos envies et budget.Les plus Maisons France Confort : une expérience solide de presque 100 ans, la maitrise de projets sur mesure, la sécurité du premier constructeur national.Le prix de cette annonce inclus le terrain, le modèle de maison proposé en exemple ainsi que tous les frais de viabilisation, raccordements, évacuation de terres excédentaires, accès chantier etc…pour rappel les frais de notaire sur le terrain et les taxes, les clôtures, l’ameublement et la décoration ne sont pas inclus.Pour d’avantage de précisions et pour un devis de construction personnalisé avant visite du terrain contactez votre agence Maisons France Confort de Coignières au (Numéro supprimé) ou (Numéro supprimé)Annonce proposée par un Agent Commercial Partenaire.
Médan
TERRAIN ET MAISONL’agence Maisons France Confort de Coignières propose ce magnifique projet, très attractif pour son lieu, ses prestations et son prix avec par exemple ce modèle R+combles aménagés (photo non contractuelle). Au rez-de-chaussée, une cuisine ouverte sur le séjour qui offre un espace de vie spacieux et harmonieux de plus de 45 m². Un cellier, un WC et un bureau complètent ce rez-de-chaussée. La distribution de l’étage optimise l’espace autour d’un palier, 3 chambres, 1 salle de bains et 1 WC indépendant. Norme RE2020, chauffage PAC, domotique sur les volets roulants… Modèle personnalisable en fonction de votre mode de vie, vos envies et budget.Les plus Maisons France Confort : une expérience solide de presque 100 ans, la maitrise de projets sur mesure, la sécurité du premier constructeur national.Le prix de cette annonce inclus le terrain, le modèle de maison proposé en exemple ainsi que tous les frais de viabilisation, raccordements, évacuation de terres excédentaires, accès chantier etc…pour rappel les frais de notaire sur le terrain et les taxes, les clôtures, l’ameublement et la décoration ne sont pas inclus.Pour d’avantage de précisions et pour un devis de construction personnalisé avant visite du terrain contactez votre agence Maisons France Confort de Coignières au (Numéro supprimé) ou (Numéro supprimé)Annonce proposée par un Agent Commercial Partenaire.
Maurecourt
TERRAINMaurecourt : terrain de 239 m² à vendreIDÉALEMENT SITUÉ – PROCHE DE PARISÀ proximité du Transilien J (25 min de Paris) à Maurecourt (78780), terrain de 239 m². Ce terrain, avec vue sur jardin, est exposé au sud. Dans un secteur recherché, le terrain idéalement situé est proche des écoles et des commerces. Il y a l’École Élémentaire Tilleuls, l’École Élémentaire la Cerisaie et l’École Maternelle Chantebelle à moins de 10 minutes à pied et trois structures d’accueil pour les tout-petits. Côté transports, on trouve le RER A et C ainsi que 33 gares à moins de 10 minutes en voiture. Il y a une bibliothèque, un tennis, des commerces, trois boulangeries, un bureau de poste, trois épiceries et une boucherie-charcuterie dans les environs.Ce terrain est à vendre pour la somme de 179 000 €. Contactez notre agence (KUD Morgane : (Numéro supprimé)) pour toute question sur le terrain ou sur les modalités de vente. Les Maisons Extraco Chambourcy est là pour vous accompagner à toutes les étapes de votre projet.
Maurecourt
TERRAIN ET MAISONMaurecourt : maison T6 (114 m²) en venteIDÉALEMENT SITUÉE – MAISON 6 PIÈCES NEUVEÀ vendre : proche du Transilien J (25 min de Paris), idéalement située dans Maurecourt (78780), découvrez cette maison de 6 pièces de 114 m² et de 239 m² de terrain.Il s’agit d’une maison de 2 niveaux. Elle est composée de cinq chambres, d’une cuisine et de deux salles de bains. Cette maison est neuve.Cette propriété se trouve dans un quartier attractif. Il y a l’École Élémentaire Tilleuls, l’École Élémentaire la Cerisaie et l’École Maternelle Chantebelle à moins de 10 minutes à pied et trois structures d’accueil pour les enfants en bas âge. Côté transports, on trouve deux lignes de RER (A et C) ainsi que 33 gares à moins de 10 minutes en voiture. On trouve une bibliothèque, un tennis, des commerces, trois boulangeries, une boucherie-charcuterie, un bureau de poste et trois épiceries dans les environs.Son prix de vente est de 370 239 €.N’hésitez pas à prendre contact avec notre agence (KUD Morgane : (Numéro supprimé)) pour tout renseignement sur la maison ou sur les modalités de vente. Les Maisons Extraco Chambourcy est là pour vous accompagner à toutes les étapes de l’achat.
Maurecourt
TERRAIN ET MAISONMaison F5 (100 m²) en vente à MaurecourtIDÉALEMENT SITUÉE – MAISON 5 PIÈCES NEUVEÀ vendre : à proximité du Transilien J (25 min de Paris), nous vous proposons cette maison de 5 pièces de 100 m² et de 239 m² de terrain idéalement située dans Maurecourt (78780).Cette maison compte 2 niveaux. Elle comporte quatre chambres, une cuisine et une salle de bains. Cette maison est neuve.Le bien se trouve dans un secteur attractif. Il y a l’École Élémentaire Tilleuls, l’École Élémentaire la Cerisaie et l’École Maternelle Chantebelle à moins de 10 minutes à pied et trois structures d’accueil pour les enfants en bas âge. Côté transports en commun, on trouve les lignes A et C du RER ainsi que 33 gares à moins de 10 minutes en voiture. On trouve une bibliothèque, un tennis, des commerces, trois boulangeries, trois épiceries, un bureau de poste et une boucherie-charcuterie à proximité.Il est à vendre pour la somme de 365 691 €.Prenez contact avec notre agence (KUD Morgane : (Numéro supprimé)) pour toute information sur la maison, sur les modalités de vente ou sur les démarches à suivre. Les Maisons Extraco Chambourcy vous accompagne à toutes les étapes de votre projet et dans tous vos projets immobiliers.
Maurecourt
TERRAIN ET MAISONMaison de 5 pièces (137 m²) à vendre à MaurecourtIDÉALEMENT SITUÉE – MAISON 5 PIÈCES NEUVEEn vente : à côté de la gare (Paris à 25 min avec le Transilien J), Les Maisons Extraco Chambourcy vous présente cette maison de 5 pièces de 137 m² et de 239 m² de terrain idéalement située dans Maurecourt (78780).Il s’agit d’une maison de 2 niveaux. Elle comporte quatre chambres, une cuisine et une salle de bains. Cette maison est neuve.La maison est située dans un quartier recherché. Il y a l’École Élémentaire Tilleuls, l’École Élémentaire la Cerisaie et l’École Maternelle Chantebelle à moins de 10 minutes à pied et trois structures d’accueil pour la petite enfance. Niveau transports, on trouve le RER A et C ainsi que 33 gares à moins de 10 minutes en voiture. Il y a une bibliothèque, un tennis, des commerces, trois boulangeries, une boucherie-charcuterie, trois épiceries et un bureau de poste dans les environs.Elle est proposée à l’achat pour 459 900 €.Contactez Morgane KUD ((Numéro supprimé)) pour toute question sur la maison ou sur les modalités de vente.
Maurecourt
TERRAIN ET MAISONMaison T5 (114 m²) en vente à MaurecourtIDÉALEMENT SITUÉE – MAISON 5 PIÈCES NEUVEEn vente : à côté du Transilien J (25 min de Paris), idéalement située dans Maurecourt (78780), notre agence Les Maisons Extraco Chambourcy est ravie de vous proposer cette maison de 5 pièces de plain-pied de 114 m². Son intérieur offre quatre chambres, une cuisine et une salle de bains.Le terrain de la propriété s’étend sur 239 m².La maison est neuve.Le bien se situe dans un quartier prisé. Il y a l’École Élémentaire Tilleuls, l’École Élémentaire la Cerisaie et l’École Maternelle Chantebelle à moins de 10 minutes à pied et trois crèches. Niveau transports en commun, on trouve les lignes A et C du RER ainsi que 33 gares à moins de 10 minutes en voiture. Il y a une bibliothèque, un tennis, des commerces, trois boulangeries, trois épiceries, une boucherie-charcuterie et un bureau de poste à quelques minutes du logement.Il est proposé à l’achat pour 355 372 €.Contactez notre constructeur (Morgane KUD : (Numéro supprimé)) pour obtenir de plus amples informations sur la maison.
L’actualité immobilière à Médan
27/11/2023
02/11/2023
30/10/2023
20/10/2023
16/10/2023
16/10/2023