Maison à construire à Mézières-sur-Seine (78970)
Images
Description
VENTE d'une maison T6 (115 m²) à Mézières-sur-Seine
MAISON 6 PIÈCES NEUVE - PROCHE DE VERSAILLES
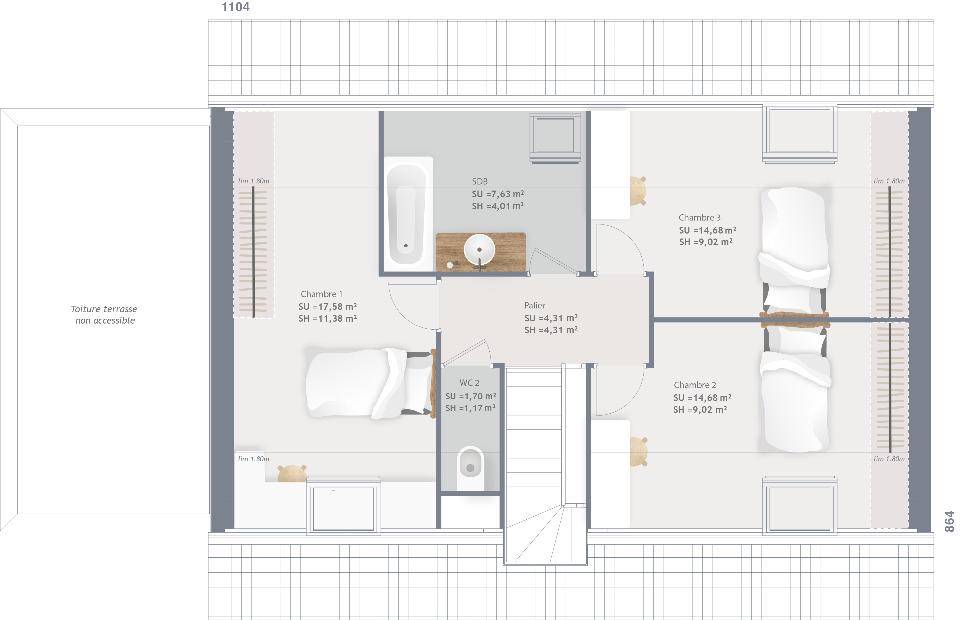
À proximité du Transilien J (gare d'Épône-Mézières, 40 min de Paris), à vendre à Mézières-sur-Seine (78970), nous sommes heureux de vous présenter cette maison de 6 pièces de 115 m². Elle offre quatre chambres, une cuisine et deux salles de bains.
Le terrain de cette maison s'étend sur 330 m².
Il s'agit d'une maison de 2 niveaux. Elle est neuve.
L'École Maternelle le Petit Prince et l'École Élémentaire les Tilleuls sont implantées à moins de 10 minutes à pied. Niveau transports, on trouve la gare Épône-Mézières dans un rayon de 1 km. Il y a deux supermarchés, quatre commerces, une boulangerie, un bureau de poste et une boucherie-charcuterie à proximité.
Elle est proposée à l'achat pour 370 000 €.
Prenez contact avec notre agence (YAHIAOUI Cedric : (Numéro supprimé)) pour obtenir de plus amples renseignements sur la maison ou sur les démarches à suivre. Maisons France Confort Magny-le-Hongre est là pour vous accompagner dans tous vos projets immobiliers.
Annonce proposée par un Agent Commercial Partenaire.
Logement susceptibles de vous intéresser
Nous vous proposons de découvrir aussi cette sélection de logements situés à moins de 10km de Mézières-sur-Seine et qui seraient susceptibles de vous intéresser.
Goussonville
TERRAINGoussonville : terrain de 1 000 m² à vendreIDÉALEMENT SITUÉ – PROCHE DE VERSAILLESÀ Goussonville (78930) à deux pas de la gare d’Épône-Mézières (Paris à 40 min avec le Transilien J), imaginez la maison de vos rêves sur ce terrain de 1 000 m². Il donne sur un espace vert. Dans un secteur convoité, le terrain idéalement situé est proche des écoles et des commerces. Des établissements scolaires maternelles et élémentaires sont implantés à moins de 10 minutes à pied, tout comme dont l’École Élémentaire Privée Notre-Dame de la Sablonnière. Niveau transports, il y a 10 gares à moins de 10 minutes en voiture. On trouve un tennis dans les environs.Son prix de vente est de 106 000 €. Prenez contact avec notre agence (KUD Morgane : (Numéro supprimé)) pour toute information sur le terrain.
Thoiry
TERRAIN ET MAISONThoiry : maison F4 (74 m²) à vendreMAISON 4 PIÈCES NEUVE – En vente : au pied du Transilien N (gare de Beynes, 50 min de Paris), à Thoiry (78770), laissez vous charmer par cette maison de 4 pièces de plain-pied de 74 m² et de 1 095 m² de terrain.Elle est composée de trois chambres, d’une cuisine ouverte sur le séjour, d’une salle de bains, d’un cellier et d’un garage. Cette maison est neuve.Des écoles maternelles et élémentaires sont implantées dans le quartier. Niveau transports en commun, il y a huit gares à moins de 10 minutes en voiture. On trouve un tennis, une bibliothèque, un commerce, une boulangerie, un supermarché, une boucherie-charcuterie et un bureau de poste à quelques minutes du bien.Elle est proposée à l’achat pour 309 000 €.Contactez Aurélie KTARI ((Numéro supprimé)) pour toute information sur cette maison ou sur les démarches à suivre.
Thoiry
TERRAIN ET MAISONThoiry : maison F5 (100 m²) en venteMAISON 5 PIÈCES NEUVE – À quelques minutes du Transilien N (gare de Beynes, 50 min de Paris), en vente à Thoiry (78770), notre agence Les Maisons Extraco Chambourcy est ravie de vous présenter cette maison de 5 pièces de 100 m².C’est une maison de 2 niveaux. Son intérieur comporte quatre chambres, une cuisine ouverte sur le séjour, une salle de bains, un cellier et un garage. La maison est neuve.Le terrain de la propriété s’étend sur 1 095 m².Des écoles maternelles et élémentaires sont implantées dans le quartier. Niveau transports en commun, on trouve huit gares à moins de 10 minutes en voiture. Il y a un tennis, une bibliothèque, un commerce, une boulangerie, un supermarché, un bureau de poste et une boucherie-charcuterie à proximité.Il est proposé à l’achat pour 339 000 €.Prenez contact avec Aurélie KTARI (tél : (Numéro supprimé)) pour toute question sur cette maison. Les Maisons Extraco Chambourcy vous accompagne dans tous vos projets immobiliers et à toutes les étapes de votre projet.
Thoiry
TERRAIN ET MAISONGAMME BOISVENTE : maison T4 (94 m²) à ThoiryMAISON 4 PIÈCES NEUVE -En vente : à côté de la gare de Beynes (Paris à 50 min par le Transilien N), à Thoiry (78770), nous sommes ravis de vous présenter cette maison de 4 pièces de plain-pied de 94 m². Conçue de plain-pied, elle compte trois chambres, une cuisine ouverte sur le séjour, deux salles de bains, un cellier et un garage.Le terrain du bien est de 1 095 m².Cette maison est neuve.Il y a des établissements scolaires primaires dans le quartier. Niveau transports en commun, on trouve huit gares à moins de 10 minutes en voiture. On trouve un tennis, une bibliothèque, un commerce, une boulangerie, un supermarché, une boucherie-charcuterie et un bureau de poste à proximité.Elle est proposée à l’achat pour 369 000 €.Prenez contact avec Aurélie KTARI ((Numéro supprimé)) pour obtenir de plus amples renseignements sur la maison. Faites de vos projets immobiliers une réalité avec Les Maisons Extraco Chambourcy.
Thoiry
TERRAIN ET MAISONVENTE : maison de 4 pièces (137 m²) à ThoiryPROCHE DE NANTERRE – MAISON 4 PIÈCES NEUVEÀ vendre : au pied du Transilien N (gare de Beynes, 50 min de Paris), nous sommes ravis de vous présenter cette maison de 4 pièces de plain-pied de 137 m² à Thoiry (78770). Son intérieur compte trois chambres, une cuisine ouverte sur le séjour, deux salles de bains, un cellier et un garage.Le terrain du bien s’étend sur 1 095 m².Cette maison est neuve.Des écoles primaires sont implantées dans le quartier. Niveau transports, on trouve huit gares à moins de 10 minutes en voiture. Il y a un tennis, une bibliothèque, un commerce, une boulangerie, un supermarché, une boucherie-charcuterie et un bureau de poste dans les environs.Son prix de vente est de 449 000 €.Prenez contact avec Aurélie KTARI ((Numéro supprimé)) pour plus de renseignements sur cette maison. Les Maisons Extraco Chambourcy est là pour vous accompagner à toutes les étapes de votre projet.
Mantes-la-Ville
TERRAIN ET MAISONVENTE d’une maison T3 (50 m²) à Mantes-la-VilleMAISON 3 PIÈCES NEUVEÀ vendre : à proximité de la gare de Mantes-la-Jolie (Paris à 35 min avec le Transilien J), découvrez cette maison de 3 pièces de plain-pied de 50 m² à Mantes-la-Ville (78711). Elle dispose de deux chambres, d’une cuisine ouverte sur le séjour et d’une salle de bains.Le terrain de la maison s’étend sur 224 m².Cette maison est neuve.Il y a plusieurs écoles (maternelle, élémentaire et collège) à moins de 10 minutes à pied. Niveau transports en commun, on trouve sept gares à moins de 10 minutes en voiture. Il y a une bibliothèque, des boulangeries, des commerces, un supermarché, deux boucheries-charcuteries et un bureau de poste dans les environs. Ne manquez pas le marché Place du marché chaque jeudi matin.Son prix de vente est de 249 000 €.N’hésitez pas à prendre contact avec Aurélie KTARI (tél : (Numéro supprimé)) pour obtenir de plus amples renseignements sur cette maison. Faites de vos projets immobiliers une réalité avec Les Maisons Extraco Chambourcy.
Mantes-la-Ville
TERRAIN ET MAISONMaison de 4 pièces (88 m²) en vente à Mantes-la-VilleMAISON 4 PIÈCES NEUVEÀ vendre : au pied de la gare de Mantes-la-Jolie (Paris à 35 min avec le Transilien J), nous sommes heureux de vous présenter cette maison de 4 pièces de 88 m² à Mantes-la-Ville (78711). Elle inclut trois chambres, une cuisine ouverte sur le séjour et une salle de bains.Le terrain du bien est de 224 m².C’est une maison de 2 niveaux. Elle est neuve.Plusieurs établissements scolaires (maternelle, élémentaire et collège) sont implantés à moins de 10 minutes à pied. Niveau transports en commun, on trouve sept gares à moins de 10 minutes en voiture. Il y a une bibliothèque, des boulangeries, des commerces, un supermarché, un bureau de poste et deux boucheries-charcuteries à quelques minutes à peine. Le marché Place du marché a lieu tous les jeudis matin.Elle est proposée à l’achat pour 309 000 €.Contactez Aurélie KTARI ((Numéro supprimé)) pour toute information sur la maison.
Mantes-la-Ville
TERRAIN ET MAISONGAMME BOISVENTE d’une maison de 3 pièces (71 m²) à Mantes-la-VilleMAISON 3 PIÈCES NEUVEÀ vendre : au pied de la gare de Mantes-la-Jolie (Paris à 35 min par le Transilien J), Les Maisons Extraco Chambourcy vous présente à Mantes-la-Ville (78711), cette maison de 3 pièces de 71 m² et de 224 m² de terrain. Elle comporte deux chambres, une cuisine ouverte sur le séjour et une salle de bains.Il s’agit d’une maison de 2 niveaux. Elle est neuve.Il y a plusieurs établissements scolaires (maternelle, élémentaire et collège) à moins de 10 minutes à pied. Niveau transports en commun, on trouve sept gares à moins de 10 minutes en voiture. Il y a une bibliothèque, des boulangeries, des commerces, un supermarché, une supérette et deux boucheries-charcuteries à proximité. Ne manquez pas le marché Place du marché chaque jeudi matin.Elle est proposée à l’achat pour 309 000 €.Contactez Aurélie KTARI (tél : (Numéro supprimé)) pour obtenir de plus amples informations sur cette maison. Les Maisons Extraco Chambourcy vous accompagne à toutes les étapes de l’achat et dans tous vos projets immobiliers.
Mantes-la-Ville
TERRAIN ET MAISONVENTE d’une maison de 8 pièces (174 m²) à Mantes-la-VilleMAISON 8 PIÈCES NEUVEÀ vendre : à quelques minutes du Transilien J (gare de Mantes-la-Jolie, 35 min de Paris), nous vous proposons cette maison de 8 pièces de 174 m² et de 224 m² de terrain à Mantes-la-Ville (78711). Elle dispose de quatre chambres, d’une cuisine ouverte sur le séjour, deux salles de bains, un cellier et un garage.Il s’agit d’une maison de 2 niveaux. Elle est neuve.Il y a plusieurs écoles (maternelle, élémentaire et collège) à moins de 10 minutes à pied. Niveau transports, on trouve sept gares à moins de 10 minutes en voiture. Il y a une bibliothèque, des boulangeries, des commerces, un supermarché, une supérette et un bureau de poste à proximité du bien. Enfin, le marché Place du marché a lieu chaque jeudi matin.Son prix de vente est de 529 000 €.N’hésitez pas à prendre contact avec Aurélie KTARI (tél : (Numéro supprimé)) pour tout renseignement sur cette maison ou sur les démarches à suivre. Donnez vie à vos projets immobiliers avec Les Maisons Extraco Chambourcy.
L’actualité immobilière à Mézières-sur-Seine
27/11/2023
02/11/2023
30/10/2023
20/10/2023
16/10/2023
16/10/2023