Maison à construire à Mézy-sur-Seine (78250)
Images
Description
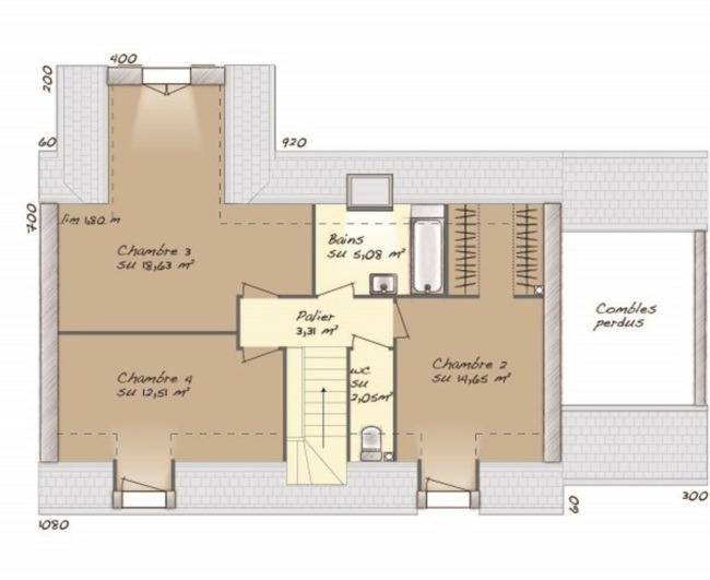
VENTE d'une maison F6 (114 m²) à Mézy-sur-Seine
IDÉALEMENT SITUÉE - MAISON 6 PIÈCES NEUVE
À côté de la gare de Meulan-Hardricourt (Paris à 45 min par le Transilien J), laissez vous charmer par à vendre, idéalement située dans Mézy-sur-Seine (78250), cette maison de 6 pièces de 114 m² et de 472 m² de terrain.
Cette maison comporte 2 niveaux. Elle dispose de quatre chambres, d'une cuisine et de deux salles de bains. La maison est neuve.
Cette maison est située dans un quartier attractif. Il y a l'École Primaire les Bergeronnettes à moins de 10 minutes à pied. Il y a un tennis, une bibliothèque et une poissonnerie dans les environs.
Elle est à vendre pour la somme de 416 040 €.
Prenez contact avec Thibault DUTEURTRE ((Numéro supprimé)) pour obtenir de plus amples renseignements sur la propriété ou sur les modalités de vente. Maisons Balency Coignières vous accompagne dans tous vos projets immobiliers et à toutes les étapes de votre projet.
Annonce proposée par un Agent Commercial Partenaire.
Logement susceptibles de vous intéresser
Nous vous proposons de découvrir aussi cette sélection de logements situés à moins de 10km de Mézy-sur-Seine et qui seraient susceptibles de vous intéresser.
Frémainville
TERRAINTerrain de 540 m² en vente à FrémainvillePROCHE D’ARGENTEUILGrand terrain à côté du Transilien J (gare de Meulan-Hardricourt, 45 min de Paris). De 540 m², ce terrain se situe dans Frémainville (95450). Le terrain est proche des écoles et des commerces. Il y a une école primaire dans le quartier. Niveau transports en commun, on trouve sept gares à moins de 10 minutes en voiture. Il y a une bibliothèque et un tennis à proximité.Son prix de vente est de 140 000 €. Prenez contact avec Antoine FLIPPE (tél : (Numéro supprimé)) pour plus de renseignements sur le terrain ou sur les démarches à suivre.Annonce proposée par un Agent Commercial Partenaire.
Frémainville
TERRAIN ET MAISONFrémainville : maison de 6 pièces (105 m²) en venteMAISON 6 PIÈCES NEUVE – PROCHE D’ARGENTEUILAu pied de la gare de Meulan-Hardricourt (Paris à 45 min avec le Transilien J), nous vous présentons en vente à Frémainville (95450), cette maison de 6 pièces de 105 m² et de 540 m² de terrain.Cette maison comporte 2 niveaux. Elle propose quatre chambres, une cuisine et deux salles de bains. Cette maison est neuve.Il y a une école primaire dans le quartier. Côté transports, on trouve sept gares à moins de 10 minutes en voiture. Il y a une bibliothèque et un tennis à quelques minutes du logement.Elle est proposée à l’achat pour 348 000 €.Contactez notre agence (FLIPPE Antoine : (Numéro supprimé)) pour obtenir de plus amples informations sur cette propriété.Annonce proposée par un Agent Commercial Partenaire.
Frémainville
TERRAIN ET MAISONFrémainville : maison de 5 pièces (90 m²) à vendrePROCHE D’ARGENTEUIL – MAISON 5 PIÈCES NEUVEEn vente : à proximité du Transilien J (gare de Meulan-Hardricourt, 45 min de Paris), Maisons Balency Baillet-en-France vous propose cette maison de 5 pièces de 90 m² à Frémainville (95450). Son intérieur est composé de trois chambres, d’une cuisine et d’une salle de bains.Le terrain de la propriété s’étend sur 540 m².Il s’agit d’une maison de 2 niveaux. Elle est neuve.Il y a une école primaire dans le quartier. Niveau transports en commun, on trouve sept gares à moins de 10 minutes en voiture. Il y a une bibliothèque et un tennis à quelques minutes.Elle est à vendre pour la somme de 340 000 €.Prenez contact avec Antoine FLIPPE (tél : (Numéro supprimé)) pour obtenir de plus amples informations sur cette maison.Annonce proposée par un Agent Commercial Partenaire.
Frémainville
TERRAIN ET MAISONFrémainville : maison F6 (80 m²) à vendreMAISON 6 PIÈCES NEUVE – PROCHE D’ARGENTEUILAu pied de la gare de Meulan-Hardricourt (Paris à 45 min par le Transilien J), Maisons Balency Baillet-en-France vous présente en vente à Frémainville (95450), cette maison de 6 pièces de 80 m² et de 540 m² de terrain. Son intérieur inclut quatre chambres, une cuisine et deux salles de bains.Cette maison compte 2 niveaux. Elle est neuve.Il y a une école primaire dans le quartier. Niveau transports en commun, on trouve sept gares à moins de 10 minutes en voiture. On trouve une bibliothèque et un tennis à proximité.Son prix de vente est de 334 000 €.N’hésitez pas à prendre contact avec notre agence (FLIPPE Antoine : (Numéro supprimé)) pour plus d’informations sur la maison. Concrétisez vos projets immobiliers avec Maisons Balency Baillet-en-France.Annonce proposée par un Agent Commercial Partenaire.
Menucourt
TERRAINVENTE d’un terrain de 563 m² à MenucourtPROCHE DE BOULOGNE-BILLANCOURTGrand terrain à côté du Transilien J (gare de Vaux-sur-Seine, 35 min de Paris). De 563 m², ce terrain se situe dans Menucourt (95180). Cinq établissements scolaires sont implantés à moins de 10 minutes à pied, tout comme une crèche. Niveau transports, on trouve les lignes de RER A et C ainsi que 26 gares à moins de 10 minutes en voiture. Il y a une bibliothèque, un tennis, une boulangerie et trois commerces dans les environs. Enfin, le marché Place du marché/Square du 19 mars 1962 a lieu chaque samedi.Il est proposé à l’achat pour 211 525 €. N’hésitez pas à prendre contact avec Denis DUCOS ((Numéro supprimé)) pour plus de renseignements sur ce terrain ou sur les démarches à suivre. Donnez vie à vos projets immobiliers avec Maisons Balency Pontoise.Annonce proposée par un Agent Commercial Partenaire.
Menucourt
TERRAIN ET MAISONVENTE d’une maison de 7 pièces (124 m²) à MenucourtPROCHE DE BOULOGNE-BILLANCOURT – MAISON 7 PIÈCES NEUVEÀ proximité de la gare de Vaux-sur-Seine (Paris à 35 min par le Transilien J), votre agence Maisons Balency Pontoise est ravie de vous proposer cette maison de 7 pièces de 124 m² et de 563 m² de terrain à vendre à Menucourt (95180).Il s’agit d’une maison de 2 niveaux. Son intérieur dispose de cinq chambres, d’une cuisine et de trois salles de bains. La maison est neuve.Il y a cinq établissements scolaires à moins de 10 minutes à pied, tout comme une crèche. Niveau transports en commun, on trouve les lignes de RER A et C ainsi que 26 gares à moins de 10 minutes en voiture. Il y a une bibliothèque, un tennis, une boulangerie et trois commerces dans les environs. Ne manquez pas le marché Place du marché/Square du 19 mars 1962 chaque samedi.Son prix de vente est de 438 000 €.Contactez Denis DUCOS (tél : (Numéro supprimé)) pour toute question sur la propriété, sur les démarches à suivre ou sur les modalités de vente. Faites de vos projets immobiliers une réalité avec Maisons Balency Pontoise.Annonce proposée par un Agent Commercial Partenaire.
Bazemont
TERRAINPrix : 197000 €.Sur ce terrain de 484 m² à BAZEMONT, Maisons Clairval vous propose de réaliser votre projet de construction de maison individuelle.Maisons Clairval propose de construire votre maison neuve avec toutes les prestations suivantes :- Plan sur-mesure et personnalisé de 2 à 6 chambres- Mode de chauffage au choix- Grands choix d'équipements et de prestations- Matériaux de qualité selon les normes en vigueur- Accompagnement dans le choix et l’acquisition du terrain- Construction conforme à la nouvelle RE 2020Demandez une étude gratuite et personnalisée de votre projet de construction sur ce terrain !Contactez Nicolas REBOUL au (Numéro supprimé) ou au (Numéro supprimé) (Maisons Clairval – Agence de Villemoisson).Prix hors frais de notaire. Terrain sélectionné et vu pour vous sous réserve de disponibilité et au prix indiqué par notre partenaire foncier. Conditions et visuels non contractuels.Cette annonce a été créée et diffusée avec le logiciel VITAHOME.
Vaux-sur-Seine
TERRAINVaux-sur-Seine : terrain de 719 m² à vendreIDÉALEMENT SITUÉ – PROCHE DE BOULOGNE-BILLANCOURTÀ Vaux-sur-Seine (78740) à deux pas du Transilien J (35 min de Paris), donnez vie à votre résidence principale ou secondaire sur ce terrain de 719 m². Il donne sur un jardin et est exposé à l’ouest. Dans un secteur recherché, le terrain idéalement situé est proche des écoles et des commerces. Il y a l’École Maternelle des Groux et l’École Élémentaire Marie Curie à moins de 10 minutes à pied. Niveau transports, on trouve la gare Vaux-sur-Seine à quelques pas du bien. On trouve une bibliothèque, un tennis, deux commerces, trois boulangeries, un bureau de poste et une épicerie dans les environs.Ce terrain est à vendre pour la somme de 230 000 €. Prenez contact avec notre agence (Morgane KUD : (Numéro supprimé)) pour toute question sur le terrain, sur les démarches à suivre ou sur les modalités de vente. Les Maisons Extraco Chambourcy est là pour vous accompagner dans tous vos projets immobiliers.
Gargenville
TERRAINVous êtes à la recherche d'un terrain qui saura concrétiser vos ambitions ? Ne cherchez plus ! Ce terrain généreusement dimensionné, situé dans un quartier prisé et recherché, représente une occasion rare de bâtir le projet de vos rêves. Caractéristiques : Emplacement privilégié, offrant une accessibilité facile aux principales commodités locales ainsi qu'aux principaux axes de transport. Cadre paisible et serein, parfait pour ceux qui souhaitent allier tranquillité et proximité avec l'animation urbaine. Proximité immédiate des écoles, commerces et services essentiels, offrant ainsi confort et praticité au quotidien. C'est l'opportunité parfaite pour investir dans un avenir prometteur. Ne laissez pas passer cette chance unique de donner vie à vos projets ! Pour plus d'informations ou pour organiser une visite, contactez-moi sans tarder.Prix : 139000 €.Sur ce terrain, réalisez votre projet de construction de maison RE 2020 avec PAVILLONS D'ÎLE-DE-FRANCE (constructeur de maisons de gamme et sur-mesure depuis plus de 50 ans) :- Plan sur-mesure et personnalisé de 2 à 5 chambres- Mode de chauffage au choix- Grands choix d'équipements et de prestations- Matériaux de qualité selon les normes en vigueur- Accompagnement dans le choix et l’acquisition du terrainDemandez une étude gratuite et personnalisée de votre projet de construction sur ce terrain !Contactez Jason GUEVEL au (Numéro supprimé) ou au (Numéro supprimé) (Pavillons d'Île-de-France – Agence de Cauffry).Prix hors frais de notaire. Terrain sélectionné et vu pour vous sous réserve de disponibilité et au prix indiqué par notre partenaire foncier. Visuels non contractuels.Cette annonce a été créée et diffusée avec le logiciel VITAHOME.
L’actualité immobilière à Mézy-sur-Seine
27/11/2023
02/11/2023
30/10/2023
20/10/2023
16/10/2023
16/10/2023