Maison à construire à Mézy-sur-Seine (78250)
Images
Description
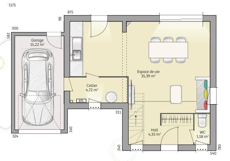
VENTE d'une maison F5 (90 m²) à Mézy-sur-Seine
PROCHE D'ARGENTEUIL - MAISON 5 PIÈCES NEUVE
À quelques minutes de la gare de Meulan-Hardricourt (Paris à 45 min par le Transilien J), à vendre à Mézy-sur-Seine (78250), venez découvrir cette maison de 5 pièces de 90 m² et de 718 m² de terrain. Elle inclut trois chambres, une cuisine et une salle de bains.
Cette maison possède 2 niveaux. Elle est neuve.
On trouve l'École Primaire les Bergeronnettes à moins de 10 minutes à pied. Côté transports en commun, il y a 14 gares à moins de 10 minutes en voiture. Il y a un tennis, une bibliothèque et une poissonnerie à proximité du logement.
Elle est à vendre pour la somme de 327 000 €.
Contactez Thomas ROUSSEL TOUATI ((Numéro supprimé)) pour plus d'informations sur la maison, sur les démarches à suivre ou sur les modalités de vente. Maisons France Confort Magny-le-Hongre est là pour vous accompagner dans tous vos projets immobiliers.
Annonce proposée par un Agent Commercial Partenaire.
Logement susceptibles de vous intéresser
Nous vous proposons de découvrir aussi cette sélection de logements situés à moins de 10km de Mézy-sur-Seine et qui seraient susceptibles de vous intéresser.
Mézy-sur-Seine
TERRAINVENTE : terrain de 718 m² à Mézy-sur-SeinePROCHE D’ARGENTEUILÀ Mézy-sur-Seine (78250) à quelques minutes de la gare de Meulan-Hardricourt (Paris à 45 min par le Transilien J), venez découvrir ce terrain de 718 m². Il bénéficie d’une exposition sud. On trouve l’École Primaire les Bergeronnettes à moins de 10 minutes à pied. Niveau transports en commun, il y a 14 gares à moins de 10 minutes en voiture. Il y a un tennis, une bibliothèque et une poissonnerie à proximité du bien.Il est proposé à l’achat pour 165 000 €. Contactez Thomas ROUSSEL TOUATI ((Numéro supprimé)) pour plus d’informations sur ce terrain ou sur les démarches à suivre. Maisons France Confort Magny-le-Hongre vous accompagne dans tous vos projets immobiliers et à toutes les étapes de l’achat.Annonce proposée par un Agent Commercial Partenaire.
Mézy-sur-Seine
TERRAIN ET MAISONMaison F6 (140 m²) en vente à Mézy-sur-SeinePROCHE D’ARGENTEUIL – MAISON 6 PIÈCES NEUVEÀ vendre : à proximité du Transilien J (gare de Meulan-Hardricourt, 45 min de Paris), nous vous présentons à Mézy-sur-Seine (78250), cette maison de 6 pièces de plain-pied de 140 m².Son intérieur compte cinq chambres, une cuisine et deux salles de bains. Cette maison est neuve.Le terrain de la propriété est de 718 m².L’École Primaire les Bergeronnettes est implantée à moins de 10 minutes à pied. Niveau transports en commun, on trouve 14 gares à moins de 10 minutes en voiture. Il y a un tennis, une bibliothèque et une poissonnerie à proximité.Elle est à vendre pour la somme de 417 000 €.Prenez contact avec Thomas ROUSSEL TOUATI ((Numéro supprimé)) pour tout renseignement sur la maison, sur les modalités de vente ou sur les démarches à suivre.Annonce proposée par un Agent Commercial Partenaire.
Mézy-sur-Seine
TERRAIN ET MAISONMézy-sur-Seine : maison de 6 pièces (110 m²) à vendreMAISON 6 PIÈCES NEUVE – PROCHE D’ARGENTEUILAu pied de la gare de Meulan-Hardricourt (Paris à 45 min avec le Transilien J), en vente à Mézy-sur-Seine (78250), Maisons France Confort Magny-le-Hongre vous propose cette maison de 6 pièces de 110 m² et de 718 m² de terrain.Il s’agit d’une maison de 2 niveaux. Elle comporte quatre chambres, une cuisine et une salle de bains. La maison est neuve.L’École Primaire les Bergeronnettes est implantée à moins de 10 minutes à pied. Côté transports, on trouve 14 gares à moins de 10 minutes en voiture. Il y a un tennis, une bibliothèque et une poissonnerie à quelques minutes du logement.Elle est à vendre pour la somme de 363 000 €.N’hésitez pas à prendre contact avec notre agence Thomas ROUSSEL TOUATI ((Numéro supprimé)) pour toute question sur cette maison ou sur les modalités de vente. Donnez vie à vos projets immobiliers avec Maisons France Confort Magny-le-Hongre.Annonce proposée par un Agent Commercial Partenaire.
Mézy-sur-Seine
TERRAIN ET MAISONVENTE d’une maison F5 (90 m²) à Mézy-sur-SeinePROCHE D’ARGENTEUIL – MAISON 5 PIÈCES NEUVEÀ quelques minutes de la gare de Meulan-Hardricourt (Paris à 45 min par le Transilien J), à vendre à Mézy-sur-Seine (78250), venez découvrir cette maison de 5 pièces de 90 m² et de 718 m² de terrain. Elle inclut trois chambres, une cuisine et une salle de bains.Cette maison possède 2 niveaux. Elle est neuve.On trouve l’École Primaire les Bergeronnettes à moins de 10 minutes à pied. Côté transports en commun, il y a 14 gares à moins de 10 minutes en voiture. Il y a un tennis, une bibliothèque et une poissonnerie à proximité du logement.Elle est à vendre pour la somme de 327 000 €.Contactez Thomas ROUSSEL TOUATI ((Numéro supprimé)) pour plus d’informations sur la maison, sur les démarches à suivre ou sur les modalités de vente. Maisons France Confort Magny-le-Hongre est là pour vous accompagner dans tous vos projets immobiliers.Annonce proposée par un Agent Commercial Partenaire.
Mézy-sur-Seine
TERRAIN ET MAISONVENTE d’une maison F6 (125 m²) à Mézy-sur-SeinePROCHE D’ARGENTEUIL – MAISON 6 PIÈCES NEUVEEn vente : à quelques minutes du Transilien J (gare de Meulan-Hardricourt, 45 min de Paris), votre agence Maisons France Confort Magny-le-Hongre est ravie de vous proposer à Mézy-sur-Seine (78250), cette maison de 6 pièces de 125 m². Elle offre quatre chambres, une cuisine et deux salles de bains.Le terrain du bien s’étend sur 718 m².C’est une maison de 2 niveaux. Elle est neuve.L’École Primaire les Bergeronnettes est implantée à moins de 10 minutes à pied. Niveau transports, on trouve 14 gares à moins de 10 minutes en voiture. Il y a un tennis, une bibliothèque et une poissonnerie à quelques minutes du logement.Elle est à vendre pour la somme de 390 000 €.Contactez notre agence Thomas ROUSSEL TOUATI ((Numéro supprimé)) pour plus d’informations sur cette maison ou sur les modalités de vente. Maisons France Confort Magny-le-Hongre vous accompagne à toutes les étapes de votre projet et dans tous vos projets immobiliers.Annonce proposée par un Agent Commercial Partenaire.
Mézy-sur-Seine
TERRAIN ET MAISONMaison de 6 pièces (115 m²) en vente à Mézy-sur-SeinePROCHE D’ARGENTEUIL – MAISON 6 PIÈCES NEUVEÀ côté de la gare de Meulan-Hardricourt (Paris à 45 min avec le Transilien J), nous sommes heureux de vous proposer cette maison de 6 pièces de plain-pied de 115 m² à vendre à Mézy-sur-Seine (78250).Son intérieur dispose de trois chambres, d’une cuisine et de trois salles de bains. La maison est neuve.Le terrain de la propriété est de 718 m².L’École Primaire les Bergeronnettes est implantée à moins de 10 minutes à pied. Niveau transports, on trouve 14 gares à moins de 10 minutes en voiture. Il y a un tennis, une bibliothèque et une poissonnerie dans les environs.Elle est proposée à l’achat pour 372 000 €.Contactez notre agence Thomas ROUSSEL TOUATI ((Numéro supprimé)) pour tout renseignement sur cette maison, sur les modalités de vente ou sur les démarches à suivre.Annonce proposée par un Agent Commercial Partenaire.
Fontenay-Saint-Père
TERRAINFontenay-Saint-Père : terrain de 1 000 m² à vendreIDÉALEMENT SITUÉÀ Fontenay-Saint-Père (78440) à deux pas de la gare de Limay (Paris à 55 min avec le Transilien J), donnez vie à votre résidence principale ou secondaire sur ce terrain de 1 000 m². Il donne sur un jardin et bénéficie d’une exposition sud-est. Dans un secteur convoité, ce terrain idéalement situé est proche des écoles et des commerces. Il y a une école primaire dans le quartier. Il y a un tennis à quelques minutes.Ce terrain est proposé à l’achat pour 127 500 €. Prenez contact avec notre agence (DUTEURTRE Thibault : (Numéro supprimé)) pour toute information sur le terrain ou sur les modalités de vente. Maisons Balency Coignières est là pour vous accompagner dans tous vos projets immobiliers.Annonce proposée par un Agent Commercial Partenaire.
Fontenay-Saint-Père
TERRAIN ET MAISONMaison de 5 pièces (98 m²) en vente à Fontenay-Saint-PèreIDÉALEMENT SITUÉE – MAISON 5 PIÈCES NEUVEEn vente : proche du Transilien J (gare de Limay, 55 min de Paris), idéalement située dans Fontenay-Saint-Père (78440), venez découvrir cette maison de 5 pièces de 98 m² et de 1 000 m² de terrain avec vue sur jardin. Son intérieur est composé de quatre chambres, d’une cuisine et d’une salle de bains.Cette maison compte 2 niveaux. Elle est neuve.Cette maison se trouve dans un quartier convoité. On y trouve une école primaire. On trouve un tennis à proximité.Elle est proposée à l’achat pour 351 700 €.Contactez Thibault DUTEURTRE (tél : (Numéro supprimé)) pour plus de renseignements sur la maison ou sur les démarches à suivre.Annonce proposée par un Agent Commercial Partenaire.
Fontenay-Saint-Père
TERRAIN ET MAISONFontenay-Saint-Père : maison T4 (78 m²) en venteIDÉALEMENT SITUÉE – MAISON 4 PIÈCES NEUVEÀ proximité de la gare de Limay (Paris à 55 min par le Transilien J), Maisons Balency Coignières vous propose cette maison de 4 pièces de 78 m² idéalement située dans Fontenay-Saint-Père (78440). Elle est composée de trois chambres, d’une cuisine et d’une salle de bains.Le terrain de cette maison s’étend sur 1 000 m².C’est une maison de 2 niveaux. Elle est neuve.Ce bien se situe dans un quartier attractif. On y trouve une école primaire. Il y a un tennis dans les environs.Son prix de vente est de 331 700 €.Prenez contact avec Thibault DUTEURTRE ((Numéro supprimé)) pour toute question sur la maison.Annonce proposée par un Agent Commercial Partenaire.
L’actualité immobilière à Mézy-sur-Seine
27/11/2023
02/11/2023
30/10/2023
20/10/2023
16/10/2023
16/10/2023