Maison à construire à Montesson (78360)
Images
Description
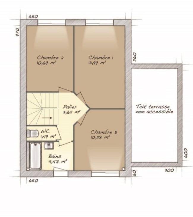
Montesson : maison F5 (90 m²) en vente
PROCHE DE PARIS - MAISON 5 PIÈCES NEUVE
Proche de la station Sartrouville du RER A (15 min de Paris), nous sommes ravis de vous proposer cette maison de 5 pièces de 90 m² à vendre à Montesson (78360). Son intérieur comporte trois chambres, une cuisine et une salle de bains.
Le terrain du bien s'étend sur 335 m².
Cette maison possède 2 niveaux. Elle est neuve.
L'École Primaire Ferdinand Buisson se trouve à moins de 10 minutes à pied. Côté transports, il y a les lignes A et C du RER ainsi que 41 gares à moins de 10 minutes en voiture. On trouve de nombreux commerces, deux boulangeries, une épicerie et une boucherie-charcuterie à quelques minutes à peine.
Son prix de vente est de 559 000 €.
Prenez contact avec notre agence (MONTANIER Christophe : (Numéro supprimé)) pour plus de renseignements sur cette maison, sur les modalités de vente ou sur les démarches à suivre. Faites de vos projets immobiliers une réalité avec Maisons Balency Saint-Maur-des-Fossés.
Annonce proposée par un Agent Commercial Partenaire.
Logement susceptibles de vous intéresser
Nous vous proposons de découvrir aussi cette sélection de logements situés à moins de 10km de Montesson et qui seraient susceptibles de vous intéresser.
Conflans-Sainte-Honorine
TERRAINDécouvrez un espace rare à aménager selon vos envies ! Niché dans un cadre idyllique, ce terrain non mitoyen de 229 m² environ vous offre un potentiel immense pour créer votre havre de paix.Bien que situé dans un environnement urbain, il est au cœur d’un quartier vibrant avec commodités tel que l’école primaire (5min à pieds), collège ( 5min en V), la gare sncf ligne J conflans et doté d’une gare de bus sur place, RER A Neuville-Université (6min en V) avec un stationnement incitatif, et services à portée de main.Idéal pour bâtir votre future résidence, profitez d’une superbe opportunité sans attente.Terrain non viabilisé, emprise au sol de 49m2 pour pouvoir construire sur 2 étages la maison de votre goût.Le plus : Portail d’entrée déjà existant. ******TERRAIN EN SUBDIVISION, EN ATTENTE DE L’ APPROBATION DE LA MAIRIE****Préparez votre projet de vie avec ANILA MANSOOR, votre spécialiste immobilier dédiée.Conseillère disponible sur rendez-vous 7/7J !!!Cette annonce référence 310461 vous est présentée par votre agent commercial BSK Immobilier ANILA MANSOOR (EI) immatriculé au RSAC de PONTOISE (95300) sous le numéro 84330064100019.Prix du bien : 149 000,00 €Les honoraires d’agence sont à la charge du vendeur.Les informations sur les risques auxquels ce bien est exposé sont disponibles sur le site Géorisques : www.georisques.gouv.fr
Conflans-Sainte-Honorine
TERRAINVotre conseiller Maisons France Confort M.AKKUS Erkan est à votre disposition pour vous accompagner dans votre projet de construction de maison personnalisée. Nouveau! Projet de construction à CONFLANS-SAINTE-HONORINE Fin d’Oise – proche du RER A secteur très prisé et résidentiel. Sur ce terrain plat de 600m2 en lot arrière. Maison contemporaine de 5 chambres 120m2 avec une belle entrée comprenant un vestiaire, grand et lumineux séjour traversant, cuisine ouverte avec un cellier, WC et une chambre. A l’étage, 4 chambres confortables dont une suite parentale avec dressing et salle d’eau, une salle de bain commune et un wc séparé. Nombreux rangement et une belle distribution. Coût total du projet 499.000€ (Frais de compteurs, de branchements, de raccordements et frais de notaire inclus) contactez votre conseiller M.AKKUS Erkan au (Numéro supprimé)Annonce proposée par un Agent Commercial Partenaire.
Conflans-Sainte-Honorine
TERRAIN ET MAISONVotre conseiller Maisons France Confort M.AKKUS Erkan est à votre disposition pour vous accompagner dans votre projet de construction de maison personnalisée. Nouveau! Projet de construction à CONFLANS-SAINTE-HONORINE Fin d’Oise – proche du RER A secteur très prisé et résidentiel. Sur ce terrain plat de 600m2 en lot arrière. Maison contemporaine de 5 chambres 120m2 avec une belle entrée comprenant un vestiaire, grand et lumineux séjour traversant, cuisine ouverte avec un cellier, WC et une chambre. A l’étage, 4 chambres confortables dont une suite parentale avec dressing et salle d’eau, une salle de bain commune et un wc séparé. Nombreux rangement et une belle distribution. Coût total du projet 499.000€ (Frais de compteurs, de branchements, de raccordements et frais de notaire inclus) contactez votre conseiller M.AKKUS Erkan au (Numéro supprimé)Annonce proposée par un Agent Commercial Partenaire.
La Celle-Saint-Cloud
TERRAINLa Celle-Saint-Cloud : terrain de 740 m² en venteÀ La Celle-Saint-Cloud (78170) à deux pas du Transilien L (30 min de Paris), donnez vie à votre résidence principale ou secondaire sur ce terrain de 740 m². Des écoles du primaire et du secondaire sont implantées à moins de 10 minutes à pied, tout comme deux crèches. Niveau transports en commun, on trouve la gare La Celle-Saint-Cloud à proximité. Il y a une bibliothèque, un bassin de natation, des boulangeries, deux supermarchés, des commerces, un bureau de poste et deux épiceries dans les environs.Il est proposé à l’achat pour 810 000 €. N’hésitez pas à prendre contact avec notre agence (MONTANIER Christophe : (Numéro supprimé)) pour tout renseignement sur ce terrain, sur les modalités de vente ou sur les démarches à suivre. Maisons Balency Saint-Maur-des-Fossés vous accompagne dans tous vos projets immobiliers et à toutes les étapes de votre projet.Annonce proposée par un Agent Commercial Partenaire.
La Celle-Saint-Cloud
TERRAIN ET MAISONMaison F8 (200 m²) en vente à La Celle-Saint-CloudMAISON 8 PIÈCES NEUVEÀ côté de la gare (Paris à 30 min avec le Transilien L), notre agence Maisons Balency Saint-Maur-des-Fossés est ravie de vous proposer en vente à La Celle-Saint-Cloud (78170), cette maison de 8 pièces de 200 m² et de 740 m² de terrain. Son intérieur se divise en cinq chambres, une cuisine et deux salles de bains.Cette maison compte 2 niveaux. Elle est neuve.On trouve des établissements scolaires du primaire et du secondaire à moins de 10 minutes à pied, tout comme deux structures d’accueil pour les enfants en bas âge. Niveau transports en commun, il y a la gare La Celle-Saint-Cloud dans les environs. On trouve une bibliothèque, un bassin de natation, des boulangeries, deux supermarchés, des commerces, deux épiceries et un bureau de poste à quelques minutes.Elle est à vendre pour la somme de 1 260 000 €.N’hésitez pas à prendre contact avec Christophe MONTANIER ((Numéro supprimé)) pour obtenir de plus amples informations sur la maison, sur les modalités de vente ou sur les démarches à suivre. Maisons Balency Saint-Maur-des-Fossés vous accompagne à toutes les étapes de l’achat et dans tous vos projets immobiliers.Annonce proposée par un Agent Commercial Partenaire.
La Celle-Saint-Cloud
TERRAIN ET MAISONVENTE : maison F5 (114 m²) à La Celle-Saint-CloudMAISON 5 PIÈCES NEUVEÀ côté du Transilien L (30 min de Paris), découvrez à vendre à La Celle-Saint-Cloud (78170), cette maison de 5 pièces de 114 m². Elle dispose de quatre chambres, d’une cuisine et d’une salle de bains.Le terrain de la propriété est de 740 m².Cette maison comporte 2 niveaux. Elle est neuve.Des écoles du primaire et du secondaire sont implantées à moins de 10 minutes à pied, tout comme deux crèches. Niveau transports en commun, il y a la gare La Celle-Saint-Cloud à proximité. On trouve une bibliothèque, un bassin de natation, des boulangeries, deux supermarchés, des commerces, trois boucheries-charcuteries et deux épiceries dans les environs.Elle est proposée à l’achat pour 1 240 000 €.Contactez Christophe MONTANIER (tél : (Numéro supprimé)) pour toute question sur la maison, sur les modalités de vente ou sur les démarches à suivre. Maisons Balency Saint-Maur-des-Fossés vous accompagne à toutes les étapes de votre projet et dans tous vos projets immobiliers.Annonce proposée par un Agent Commercial Partenaire.
Louveciennes
TERRAINTerrain de 880 m² en vente à LouveciennesPROCHE DE PARISGrand terrain proche du Transilien L (35 min de Paris). De 880 m², ce terrain se situe dans Louveciennes (78430). Des établissements scolaires maternelles et élémentaires sont implantés à moins de 10 minutes à pied, tout comme une crèche. Côté transports, on trouve la gare Louveciennes dans un rayon de 1 km. Il y a une bibliothèque, deux commerces, deux boulangeries, une boucherie-charcuterie, une épicerie et un bureau de poste à quelques minutes.Il est à vendre pour la somme de 795 000 €. N’hésitez pas à prendre contact avec Christophe MONTANIER ((Numéro supprimé)) pour tout renseignement sur ce terrain, sur les démarches à suivre ou sur les modalités de vente. Maisons Balency Saint-Maur-des-Fossés vous accompagne à toutes les étapes de votre projet et dans tous vos projets immobiliers.Annonce proposée par un Agent Commercial Partenaire.
Louveciennes
TERRAIN ET MAISONMaison de 7 pièces (160 m²) en vente à LouveciennesMAISON 7 PIÈCES NEUVE – PROCHE DE PARISÀ vendre : à proximité du Transilien L (35 min de Paris), ayez le coup de coeur pour cette maison de 7 pièces de 160 m² à Louveciennes (78430).Il s’agit d’une maison de 2 niveaux. Son intérieur est composé de quatre chambres, d’une cuisine et de deux salles de bains. La maison est neuve.Le terrain de la propriété s’étend sur 880 m².Il y a des établissements scolaires primaires à moins de 10 minutes à pied et une crèche. Niveau transports, on trouve la gare Louveciennes à proximité. On trouve une bibliothèque, deux commerces, deux boulangeries, une boucherie-charcuterie, un bureau de poste et une épicerie à quelques minutes de la maison.Son prix de vente est de 1 210 000 €.Prenez contact avec notre agence (Christophe MONTANIER : (Numéro supprimé)) pour obtenir de plus amples informations sur cette maison, sur les démarches à suivre ou sur les modalités de vente. Maisons Balency Saint-Maur-des-Fossés vous accompagne dans tous vos projets immobiliers et à toutes les étapes de votre projet.Annonce proposée par un Agent Commercial Partenaire.
Louveciennes
TERRAIN ET MAISONVENTE : maison T6 (139 m²) à LouveciennesPROCHE DE PARIS – MAISON 6 PIÈCES NEUVEÀ vendre : à côté du Transilien L (35 min de Paris), à Louveciennes (78430), nous sommes heureux de vous proposer cette maison de 6 pièces de 139 m². Son intérieur compte quatre chambres, une cuisine et deux salles de bains.Le terrain du bien s’étend sur 880 m².C’est une maison de 2 niveaux. Elle est neuve.Des écoles maternelles et élémentaires se trouvent à moins de 10 minutes à pied, tout comme une structure d’accueil pour la petite enfance. Niveau transports, il y a la gare Louveciennes dans les alentours. On trouve une bibliothèque, deux commerces, deux boulangeries, une boucherie-charcuterie, un bureau de poste et une épicerie à proximité.Elle est proposée à l’achat pour 1 160 000 €.Prenez contact avec Christophe MONTANIER ((Numéro supprimé)) pour plus d’informations sur cette maison. Maisons Balency Saint-Maur-des-Fossés vous accompagne dans toutes vos démarches et à toutes les étapes de l’achat.Annonce proposée par un Agent Commercial Partenaire.
L’actualité immobilière à Montesson
27/11/2023
02/11/2023
30/10/2023
20/10/2023
16/10/2023
16/10/2023