Maison à construire à Montfort-l'Amaury (78490)
Images
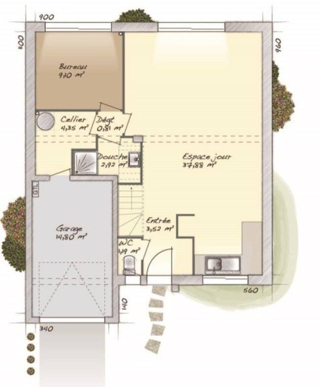
Description
Montfort-l'Amaury : maison F6 (128 m²) en vente
MAISON 6 PIÈCES NEUVE - PROCHE DE VERSAILLES
À deux pas du Transilien N (gare de Montfort-l'Amaury-Méré, 35 min de Paris), nous sommes ravis de vous proposer cette maison de 6 pièces de 128 m² et de 800 m² de terrain en vente à Montfort-l'Amaury (78490).
Cette maison possède 2 niveaux. Son intérieur dispose de quatre chambres, d'une cuisine et de deux salles de bains. La maison est neuve.
Il y a deux établissements scolaires à moins de 10 minutes à pied et, parmi lesquels le Collège Maurice Ravel. Niveau transports, on trouve sept gares à moins de 10 minutes en voiture. Il y a un bassin de natation, un tennis, une bibliothèque, des commerces, trois boulangeries, deux boucheries-charcuteries, un bureau de poste et trois épiceries à proximité du bien.
Son prix de vente est de 585 000 €.
N'hésitez pas à prendre contact avec notre agence (Christophe MONTANIER : (Numéro supprimé)) pour obtenir de plus amples informations sur cette maison. Donnez vie à vos projets immobiliers avec Maisons Balency Saint-Maur-des-Fossés.
Annonce proposée par un Agent Commercial Partenaire.
Logement susceptibles de vous intéresser
Nous vous proposons de découvrir aussi cette sélection de logements situés à moins de 10km de Montfort-l'Amaury et qui seraient susceptibles de vous intéresser.
Montfort-l'Amaury
TERRAINTerrain de 800 m² à vendre à Montfort-l’AmauryPROCHE DE VERSAILLESAu pied du Transilien N (gare de Montfort-l’Amaury-Méré, 35 min de Paris) à Montfort-l’Amaury (78490), grand terrain. Il y a deux établissements scolaires à moins de 10 minutes à pied et, comme le Collège Maurice Ravel. Côté transports en commun, on trouve sept gares à moins de 10 minutes en voiture. Il y a un bassin de natation, un tennis, une bibliothèque, des commerces, trois boulangeries, trois épiceries, deux boucheries-charcuteries et un bureau de poste dans les environs.Son prix de vente est de 288 000 €. N’hésitez pas à prendre contact avec notre agence (MONTANIER Christophe : (Numéro supprimé)) pour toute information sur ce terrain. Concrétisez vos projets immobiliers avec Maisons Balency Saint-Maur-des-Fossés.Annonce proposée par un Agent Commercial Partenaire.
Montfort-l'Amaury
TERRAIN ET MAISONVENTE d’une maison F5 (98 m²) à Montfort-l’AmauryMAISON 5 PIÈCES NEUVE – PROCHE DE VERSAILLESEn vente : à proximité du Transilien N (gare de Montfort-l’Amaury-Méré, 35 min de Paris), nous sommes heureux de vous présenter à Montfort-l’Amaury (78490), cette maison de 5 pièces de 98 m² et de 800 m² de terrain.Il s’agit d’une maison de 2 niveaux. Elle inclut quatre chambres, une cuisine et une salle de bains. Cette maison est neuve.Il y a deux établissements scolaires à moins de 10 minutes à pied et, parmi lesquels le Collège Maurice Ravel. Côté transports en commun, on trouve sept gares à moins de 10 minutes en voiture. On trouve un bassin de natation, un tennis, une bibliothèque, des commerces, trois boulangeries, trois épiceries, deux boucheries-charcuteries et un bureau de poste à quelques minutes.Elle est proposée à l’achat pour 510 000 €.Contactez notre agence (MONTANIER Christophe : (Numéro supprimé)) pour tout renseignement sur cette maison ou sur les démarches à suivre.Annonce proposée par un Agent Commercial Partenaire.
Montfort-l'Amaury
TERRAIN ET MAISONMontfort-l’Amaury : maison F6 (128 m²) en venteMAISON 6 PIÈCES NEUVE – PROCHE DE VERSAILLESÀ deux pas du Transilien N (gare de Montfort-l’Amaury-Méré, 35 min de Paris), nous sommes ravis de vous proposer cette maison de 6 pièces de 128 m² et de 800 m² de terrain en vente à Montfort-l’Amaury (78490).Cette maison possède 2 niveaux. Son intérieur dispose de quatre chambres, d’une cuisine et de deux salles de bains. La maison est neuve.Il y a deux établissements scolaires à moins de 10 minutes à pied et, parmi lesquels le Collège Maurice Ravel. Niveau transports, on trouve sept gares à moins de 10 minutes en voiture. Il y a un bassin de natation, un tennis, une bibliothèque, des commerces, trois boulangeries, deux boucheries-charcuteries, un bureau de poste et trois épiceries à proximité du bien.Son prix de vente est de 585 000 €.N’hésitez pas à prendre contact avec notre agence (Christophe MONTANIER : (Numéro supprimé)) pour obtenir de plus amples informations sur cette maison. Donnez vie à vos projets immobiliers avec Maisons Balency Saint-Maur-des-Fossés.Annonce proposée par un Agent Commercial Partenaire.
Montfort-l'Amaury
TERRAIN ET MAISONVENTE d’une maison T7 (104 m²) à Montfort-l’AmauryPROCHE DE VERSAILLES – MAISON 7 PIÈCES NEUVEProche du Transilien N (gare de Montfort-l’Amaury-Méré, 35 min de Paris), nous sommes heureux de vous présenter cette maison de 7 pièces de 104 m² et de 800 m² de terrain en vente à Montfort-l’Amaury (78490).Il s’agit d’une maison de 2 niveaux. Son intérieur est composé de six chambres, d’une cuisine et de deux salles de bains. La maison est neuve.Il y a deux établissements scolaires à moins de 10 minutes à pied et, comme le Collège Maurice Ravel. Côté transports, on trouve sept gares à moins de 10 minutes en voiture. Il y a un bassin de natation, un tennis, une bibliothèque, des commerces, trois boulangeries, un bureau de poste, trois épiceries et deux boucheries-charcuteries à proximité.Son prix de vente est de 575 000 €.Prenez contact avec notre agence (Christophe MONTANIER : (Numéro supprimé)) pour obtenir de plus amples renseignements sur cette maison ou sur les démarches à suivre.Annonce proposée par un Agent Commercial Partenaire.
Neauphle-le-Château
TERRAINTerrain de 820 m² à vendre à Neauphle-le-ChâteauPROCHE DE BOULOGNE-BILLANCOURTÀ deux pas du Transilien N (gare de Plaisir-Grignon, 25 min de Paris) à Neauphle-le-Château (78640), grand terrain. Réalisez-y la maison de vos rêves. L’École Élémentaire Emile Serre et l’École Maternelle les Petites Friches sont implantées à moins de 10 minutes à pied. Niveau transports en commun, on trouve 11 gares à moins de 10 minutes en voiture. Il y a une bibliothèque, un tennis, une boulangerie, quatre commerces, un bureau de poste, une boucherie-charcuterie et une épicerie dans les environs.Son prix de vente est de 300 000 €. N’hésitez pas à prendre contact avec notre agence (Christophe MONTANIER : (Numéro supprimé)) pour obtenir de plus amples informations sur ce terrain. Maisons Balency Saint-Maur-des-Fossés est là pour vous accompagner dans tous vos projets immobiliers.Annonce proposée par un Agent Commercial Partenaire.
Neauphle-le-Château
TERRAIN ET MAISONVENTE d’une maison de 7 pièces (104 m²) à Neauphle-le-ChâteauMAISON 7 PIÈCES NEUVE – PROCHE DE BOULOGNE-BILLANCOURTÀ vendre : à côté du Transilien N (gare de Plaisir-Grignon, 25 min de Paris), à Neauphle-le-Château (78640), nous vous proposons cette maison de 7 pièces de 104 m².Il s’agit d’une maison de 2 niveaux. Elle dispose de six chambres, d’une cuisine et de deux salles de bains. Cette maison est neuve.Le terrain de la propriété s’étend sur 820 m².L’École Élémentaire Emile Serre et l’École Maternelle les Petites Friches sont implantées à moins de 10 minutes à pied. Niveau transports en commun, il y a 11 gares à moins de 10 minutes en voiture. On trouve une bibliothèque, un tennis, une boulangerie, quatre commerces, une épicerie, un bureau de poste et une boucherie-charcuterie dans les environs.Elle est à vendre pour la somme de 585 000 €.Contactez notre agence (MONTANIER Christophe : (Numéro supprimé)) pour toute question sur cette maison ou sur les démarches à suivre. Maisons Balency Saint-Maur-des-Fossés vous accompagne dans tous vos projets immobiliers et à toutes les étapes de votre projet.Annonce proposée par un Agent Commercial Partenaire.
Neauphle-le-Château
TERRAIN ET MAISONNeauphle-le-Château : maison de 6 pièces (128 m²) à vendrePROCHE DE BOULOGNE-BILLANCOURT – MAISON 6 PIÈCES NEUVEÀ côté de la gare de Plaisir-Grignon (Paris à 25 min par le Transilien N), Maisons Balency Saint-Maur-des-Fossés vous propose en vente à Neauphle-le-Château (78640), cette maison de 6 pièces de 128 m². Elle est composée de quatre chambres, d’une cuisine et de deux salles de bains.Le terrain du bien est de 820 m².Cette maison comporte 2 niveaux. Elle est neuve.L’École Élémentaire Emile Serre et l’École Maternelle les Petites Friches se trouvent à moins de 10 minutes à pied. Niveau transports en commun, il y a 11 gares à moins de 10 minutes en voiture. On trouve une bibliothèque, un tennis, une boulangerie, quatre commerces, un bureau de poste, une épicerie et une boucherie-charcuterie à proximité.Elle est à vendre pour la somme de 599 000 €.Prenez contact avec Christophe MONTANIER ((Numéro supprimé)) pour tout renseignement sur la maison. Maisons Balency Saint-Maur-des-Fossés vous accompagne dans tous vos projets immobiliers et dans toutes vos démarches.Annonce proposée par un Agent Commercial Partenaire.
Bazoches-sur-Guyonne
TERRAIN ET MAISONA BAZOCHES-SUR-GUYONNE sur un terrain de 690 m², Les Maisons Belles Demeures vous propose de réaliser cette maison neuve d'une surface de 174 m² habitables avec 4 chambres.Les Maisons Belles Demeures vous propose les prestations suivantes :- Plan sur-mesure et personnalisé de 2 à 6 chambres- Mode de chauffage au choix- Grands choix d'équipements et de prestations- Matériaux de qualité selon les normes en vigueur- Accompagnement dans le choix et l’acquisition du terrain- Construction conforme à la nouvelle RE 2020 Demandez une étude gratuite et personnalisée de votre projet de construction !Contactez Francis VILLAUME au (Numéro supprimé) ou au (Numéro supprimé) (Les Maisons Belles Demeures – Siège de Rouvres Saint Jean).Prix avec assurance dommages-ouvrage comprise, VRD non compris, terrain viabilisé, adaptation non comprise, assainissement non compris, frais de notaire non compris, taxes non comprises, frais divers non compris. Terrain sélectionné et vu pour vous sous réserve de disponibilité et au prix indiqué par notre partenaire foncier. Conditions et visuels non contractuels.Cette annonce a été créée et diffusée avec le logiciel VITAHOME.
Bazoches-sur-Guyonne
TERRAINPrix : 230000 €.Sur ce terrain de 690 m² à BAZOCHES-SUR-GUYONNE, Les Maisons Belles Demeures vous propose de réaliser votre projet de construction de maison individuelle.Les Maisons Belles Demeures propose de construire votre maison neuve avec toutes les prestations suivantes :- Plan sur-mesure et personnalisé de 2 à 6 chambres- Mode de chauffage au choix- Grands choix d'équipements et de prestations- Matériaux de qualité selon les normes en vigueur- Accompagnement dans le choix et l’acquisition du terrain- Construction conforme à la nouvelle RE 2020Demandez une étude gratuite et personnalisée de votre projet de construction sur ce terrain !Contactez Francis VILLAUME au (Numéro supprimé) ou au (Numéro supprimé) (Les Maisons Belles Demeures – Agence de Longpont).Prix hors frais de notaire. Terrain sélectionné et vu pour vous sous réserve de disponibilité et au prix indiqué par notre partenaire foncier. Conditions et visuels non contractuels.Cette annonce a été créée et diffusée avec le logiciel VITAHOME.
L’actualité immobilière à Montfort-l'Amaury
27/11/2023
02/11/2023
30/10/2023
20/10/2023
16/10/2023
16/10/2023