Maison à construire à Orgerus (78910)
Images
Description
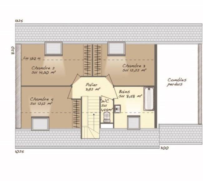
VENTE d'une maison T6 (100 m²) à Orgerus
IDÉALEMENT SITUÉE - MAISON 6 PIÈCES NEUVE
À vendre : à côté du Transilien N (gare d'Orgerus-Béhoust, 45 min de Paris), idéalement située dans Orgerus (78910), Maisons Balency Coignières vous présente cette maison de 6 pièces de 100 m² avec vue sur jardin.
C'est une maison de 2 niveaux. Elle compte quatre chambres, une cuisine et deux salles de bains. Cette maison est neuve.
Le terrain du bien est de 1 095 m².
La propriété se situe dans un secteur prisé. Il y a l'École Maternelle Champ de la Poussinière, l'École Élémentaire du Pré du Bourg et le Collège Georges Pompidou à moins de 10 minutes à pied. Il y a une bibliothèque, un tennis, deux boulangeries, deux commerces, un supermarché, une épicerie et une boucherie-charcuterie à quelques minutes du logement.
Elle est à vendre pour la somme de 445 000 €.
Prenez contact avec notre agence (Thibault DUTEURTRE : (Numéro supprimé)) pour toute information sur la maison ou sur les démarches à suivre. Maisons Balency Coignières est là pour vous accompagner dans tous vos projets immobiliers.
Annonce proposée par un Agent Commercial Partenaire.
Logement susceptibles de vous intéresser
Nous vous proposons de découvrir aussi cette sélection de logements situés à moins de 10km de Orgerus et qui seraient susceptibles de vous intéresser.
Orgerus
TERRAINBéhoust : terrain de 700 m² en venteIDÉALEMENT SITUÉ – PROCHE DE VERSAILLESÀ Béhoust (78910) à quelques minutes du Transilien N (gare d’Orgerus-Béhoust, 45 min de Paris), imaginez la maison de vos rêves sur ce terrain de 700 m². Il se situe dans un quartier attractif. Il y a l’École Élémentaire du Bois de Houx à moins de 10 minutes à pied. Niveau transports, on trouve cinq gares à moins de 10 minutes en voiture. On trouve un tennis, un commerce et un supermarché à proximité.Il est proposé à l’achat pour 155 000 €. N’hésitez pas à prendre contact avec Gilles BOREAU (tél : (Numéro supprimé)) pour tout renseignement sur ce terrain. Donnez vie à vos projets immobiliers avec Les Maisons Extraco Chambourcy.
Orgerus
TERRAIN ET MAISONVENTE d’une maison de 5 pièces (95 m²) à BéhoustIDÉALEMENT SITUÉE – MAISON 5 PIÈCES NEUVEÀ vendre : à quelques minutes de la gare d’Orgerus-Béhoust (Paris à 45 min par le Transilien N), nous vous proposons cette maison de 5 pièces de 95 m² idéalement située dans Béhoust (78910).C’est une maison de 2 niveaux. Elle inclut quatre chambres, une cuisine et deux salles de bains. Cette maison est neuve.Le terrain du bien s’étend sur 700 m².La maison se trouve dans un quartier attractif. Il y a l’École Élémentaire du Bois de Houx à moins de 10 minutes à pied. Niveau transports, on trouve cinq gares à moins de 10 minutes en voiture. On trouve un tennis, un commerce et un supermarché dans les environs.Son prix de vente est de 328 500 €.Prenez contact avec Gilles BOREAU (tél : (Numéro supprimé)) pour tout renseignement sur le bien, sur les démarches à suivre ou sur les modalités de vente. Les Maisons Extraco Chambourcy vous accompagne à toutes les étapes de l’achat et dans tous vos projets immobiliers.
Orgerus
TERRAIN ET MAISONMaison T5 (105 m²) à vendre à BéhoustIDÉALEMENT SITUÉE – MAISON 5 PIÈCES NEUVEÀ quelques minutes du Transilien N (gare d’Orgerus-Béhoust, 45 min de Paris), venez découvrir cette maison de 5 pièces de 105 m² et de 700 m² de terrain idéalement située dans Béhoust (78910).Il s’agit d’une maison de 2 niveaux. Son intérieur dispose de quatre chambres, d’une cuisine et d’une salle de bains. La maison est neuve.La propriété se situe dans un quartier recherché. Il y a l’École Élémentaire du Bois de Houx à moins de 10 minutes à pied. Niveau transports en commun, on trouve cinq gares à moins de 10 minutes en voiture. Il y a un tennis, un commerce et un supermarché dans les environs.Elle est à vendre pour la somme de 265 600 €.Contactez notre agence (Gilles BOREAU : (Numéro supprimé)) pour toute information sur la maison ou sur les modalités de vente. Les Maisons Extraco Chambourcy vous accompagne dans toutes vos démarches et à toutes les étapes de votre projet.
Orgerus
TERRAIN ET MAISONVENTE : maison F5 (113 m²) à BéhoustIDÉALEMENT SITUÉE – MAISON 5 PIÈCES NEUVEÀ vendre : à deux pas du Transilien N (gare d’Orgerus-Béhoust, 45 min de Paris), Les Maisons Extraco Chambourcy vous présente cette maison de 5 pièces de 113 m² et de 700 m² de terrain idéalement située dans Béhoust (78910).Cette maison compte 2 niveaux. Elle se divise en trois chambres, une cuisine et deux salles de bains. Cette maison est neuve.Cette maison se trouve dans un secteur convoité. Il y a l’École Élémentaire du Bois de Houx à moins de 10 minutes à pied. Côté transports en commun, on trouve cinq gares à moins de 10 minutes en voiture. On trouve un tennis, un commerce et un supermarché à quelques minutes du bien.Son prix de vente est de 368 900 €.N’hésitez pas à prendre contact avec Gilles BOREAU (tél : (Numéro supprimé)) pour toute information sur la maison, sur les démarches à suivre ou sur les modalités de vente. Donnez vie à vos projets immobiliers avec Les Maisons Extraco Chambourcy.
Villiers-le-Mahieu
TERRAIN ET MAISONA VILLIERS-LE-MAHIEU sur un terrain de 255 m², Les Maisons Belles Demeures vous propose de réaliser cette maison neuve d'une surface de 121 m² habitables avec 3 chambres.Les Maisons Belles Demeures vous propose les prestations suivantes :- Plan sur-mesure et personnalisé de 2 à 6 chambres- Mode de chauffage au choix- Grands choix d'équipements et de prestations- Matériaux de qualité selon les normes en vigueur- Accompagnement dans le choix et l’acquisition du terrain- Construction conforme à la nouvelle RE 2020 Demandez une étude gratuite et personnalisée de votre projet de construction !Contactez Francis VILLAUME au (Numéro supprimé) ou au (Numéro supprimé) (Les Maisons Belles Demeures – Siège de Rouvres Saint Jean).Prix avec assurance dommages-ouvrage comprise, VRD non compris, terrain viabilisé, adaptation non comprise, assainissement non compris, frais de notaire non compris, taxes non comprises, frais divers non compris. Terrain sélectionné et vu pour vous sous réserve de disponibilité et au prix indiqué par notre partenaire foncier. Conditions et visuels non contractuels.Cette annonce a été créée et diffusée avec le logiciel VITAHOME.
Villiers-le-Mahieu
TERRAINPrix : 89899 €.Sur ce terrain de 255 m² à VILLIERS-LE-MAHIEU, Les Maisons Belles Demeures vous propose de réaliser votre projet de construction de maison individuelle.Les Maisons Belles Demeures propose de construire votre maison neuve avec toutes les prestations suivantes :- Plan sur-mesure et personnalisé de 2 à 6 chambres- Mode de chauffage au choix- Grands choix d'équipements et de prestations- Matériaux de qualité selon les normes en vigueur- Accompagnement dans le choix et l’acquisition du terrain- Construction conforme à la nouvelle RE 2020Demandez une étude gratuite et personnalisée de votre projet de construction sur ce terrain !Contactez Francis VILLAUME au (Numéro supprimé) ou au (Numéro supprimé) (Les Maisons Belles Demeures – Agence de Longpont).Prix hors frais de notaire. Terrain sélectionné et vu pour vous sous réserve de disponibilité et au prix indiqué par notre partenaire foncier. Conditions et visuels non contractuels.Cette annonce a été créée et diffusée avec le logiciel VITAHOME.
Orgerus
TERRAINVENTE d’un terrain de 500 m² à OrgerusEMPLACEMENT PRIVILÉGIÉ – PROCHE DE MANTES-LA-JOLIEÀ Orgerus (78910) à proximité du Transilien N (gare d’Orgerus-Béhoust, 45 min de Paris), imaginez la maison de vos rêves sur ce terrain de 500 m². Dans un quartier convoité, ce terrain bénéficiant d’un emplacement privilégié est proche des écoles et des commerces. L’École Maternelle Champ de la Poussinière, l’École Élémentaire du Pré du Bourg et le Collège Georges Pompidou sont implantés à moins de 10 minutes à pied. Côté transports en commun, il y a cinq gares à moins de 10 minutes en voiture. On trouve une bibliothèque, un tennis, deux boulangeries, deux commerces, un supermarché, une épicerie et une boucherie-charcuterie à quelques minutes du bien.Il est à vendre pour la somme de 130 000 €. Prenez contact avec Charles ZAGDANSKI ((Numéro supprimé)) pour toute question sur ce terrain, sur les modalités de vente ou sur les démarches à suivre.
Orgerus
TERRAIN ET MAISONMaison F6 (100 m²) à vendre à OrgerusEMPLACEMENT PRIVILÉGIÉ – MAISON 6 PIÈCES NEUVEÀ deux pas du Transilien N (gare d’Orgerus-Béhoust, 45 min de Paris), Maisons France Confort Jouars-Pontchartrain vous présente cette maison de 6 pièces de 100 m² sans vis-à-vis en vente bénéficiant d’un emplacement d’exception dans Orgerus (78910).Cette maison comporte 2 niveaux. Elle compte quatre chambres, une cuisine et une salle de bains. La maison est neuve.Le terrain de la propriété est de 500 m².Cette maison se trouve dans un quartier attractif. L’École Maternelle Champ de la Poussinière, l’École Élémentaire du Pré du Bourg et le Collège Georges Pompidou sont implantés à moins de 10 minutes à pied. Niveau transports en commun, il y a cinq gares à moins de 10 minutes en voiture. On trouve une bibliothèque, un tennis, deux boulangeries, deux commerces, un supermarché, une épicerie et une boucherie-charcuterie à quelques minutes à peine.Elle est à vendre pour la somme de 310 000 €.Contactez notre agence (ZAGDANSKI Charles : (Numéro supprimé)) pour obtenir de plus amples informations sur la maison, sur les modalités de vente ou sur les démarches à suivre. Donnez vie à vos projets immobiliers avec Maisons France Confort Jouars-Pontchartrain.
Orgerus
TERRAIN ET MAISONVENTE d’une maison T7 (120 m²) à OrgerusEMPLACEMENT PRIVILÉGIÉ – MAISON 7 PIÈCES NEUVEÀ proximité de la gare d’Orgerus-Béhoust (Paris à 45 min avec le Transilien N), venez découvrir à vendre, bénéficiant d’un emplacement privilégié dans Orgerus (78910), cette maison de 7 pièces de 120 m².Cette maison compte 2 niveaux. Elle est composée de cinq chambres, d’une cuisine et de deux salles de bains. Cette maison est neuve.Le terrain de la propriété s’étend sur 500 m².La propriété se trouve dans un secteur convoité. L’École Maternelle Champ de la Poussinière, l’École Élémentaire du Pré du Bourg et le Collège Georges Pompidou sont implantés à moins de 10 minutes à pied. Niveau transports, il y a cinq gares à moins de 10 minutes en voiture. On trouve une bibliothèque, un tennis, deux boulangeries, deux commerces, un supermarché, une boucherie-charcuterie et une épicerie à quelques minutes à peine.Elle est à vendre pour la somme de 340 000 €.Contactez notre agence (Charles ZAGDANSKI : (Numéro supprimé)) pour toute information sur la maison ou sur les modalités de vente.
L’actualité immobilière à Orgerus
27/11/2023
02/11/2023
30/10/2023
20/10/2023
16/10/2023
16/10/2023