Maison à construire à Sartrouville (78500)
Images
Description
🏡 Maison familiale sur-mesure de 122 m² à Sartrouville (78500) - Terrain de 300 m²
IDÉALEMENT SITUÉE - MAISON NEUVE 6 PIÈCES AVEC JARDIN ET GARAGE
À deux pas du Transilien J (Paris en 15 min), Maisons Évolution vous propose de concevoir et construire votre maison familiale sur-mesure dans un secteur très recherché de Sartrouville (78500).
🌟 Votre future maison R+Combles personnalisée :
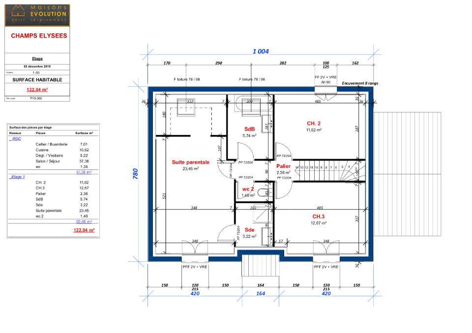
Surface habitable : 122 m² sur un terrain de 300 m²
4 grandes chambres, double séjour lumineux, 2 salles de bains, cuisine ouverte
Garage intégré et possibilité de sous-sol total
Plans 100 % personnalisables selon vos envies, votre mode de vie et votre budget
Prestations modernes : chauffage performant, matériaux de qualité, finitions soignées
Accompagnement complet par Maisons Évolution Cormeilles-en-Parisis, constructeur reconnu pour son expertise et sa fiabilité
📍 Un cadre de vie idéal :
Quartier calme, résidentiel et recherché
Écoles, collèges et lycées à moins de 10 minutes à pied
Commerces, supermarchés, boulangeries, tennis et bureau de poste à proximité
Transports pratiques : Transilien J, RER A et C accessibles en quelques minutes
💰 Prix global indicatif : 455 000 €
(Terrain + maison - hors frais de notaire et frais annexes, visuel non contractuel)
📞 Contactez Caroline BETHERY au (Numéro supprimé) pour une étude gratuite et personnalisée de votre projet.
Maisons Évolution Cormeilles-en-Parisis vous accompagne de la conception à la remise des clés de votre future maison.
Maisons Évolution - Votre maison, votre style, votre projet.
Logement susceptibles de vous intéresser
Nous vous proposons de découvrir aussi cette sélection de logements situés à moins de 10km de Sartrouville et qui seraient susceptibles de vous intéresser.
Ermont
TERRAINTerrain de 600 m² à vendre à ErmontGrand terrain au pied du Transilien H (gare d’Ermont Halte, 20 min de Paris). De 600 m², ce terrain se situe dans Ermont (95120). Ce terrain est proche des écoles et des commerces. Tous les types d’établissements scolaires se trouvent à moins de 10 minutes à pied, tout comme sept crèches. Côté transports, il y a la station de RER Cernay (ligne C) ainsi que trois gares (Ermont Halte, Cernay (Val-d’Oise) et Gros Noyer Saint-Prix) dans les environs. On trouve une bibliothèque, un bassin de natation, deux tennis, des commerces, des boulangeries, un supermarché, une supérette et un bureau de poste à quelques minutes. Le marché Place St Flaive anime le quartier.Ce terrain est proposé à l’achat pour 300 000 €. Prenez contact avec notre agence (FLIPPE Antoine : (Numéro supprimé)) pour tout renseignement sur le terrain.Annonce proposée par un Agent Commercial Partenaire.
Ermont
TERRAIN ET MAISONMaison de 5 pièces (96 m²) en vente à ErmontMAISON 5 PIÈCES NEUVEÀ vendre : à deux pas du Transilien H (gare d’Ermont Halte, 20 min de Paris), notre agence Maisons Balency Baillet-en-France est ravie de vous présenter cette maison de 5 pièces de 96 m² à Ermont (95120). Son intérieur offre quatre chambres, une cuisine et une salle de bains.Le terrain de la maison s’étend sur 600 m².Cette maison compte 2 niveaux. Elle est neuve.Des écoles (de la maternelle au lycée) sont implantées à moins de 10 minutes à pied, tout comme sept crèches. Niveau transports en commun, il y a la station de RER Cernay (ligne C) ainsi que trois gares (Ermont Halte, Cernay (Val-d’Oise) et Gros Noyer Saint-Prix) juste à côté. On trouve une bibliothèque, un bassin de natation, deux tennis, des commerces, des boulangeries, un supermarché, des épiceries et un bureau de poste à quelques minutes. Le marché Place St Flaive anime les environs.Son prix de vente est de 480 000 €.N’hésitez pas à prendre contact avec notre agence (FLIPPE Antoine : (Numéro supprimé)) pour plus de renseignements sur cette maison, sur les modalités de vente ou sur les démarches à suivre. Maisons Balency Baillet-en-France vous accompagne à toutes les étapes de l’achat et dans tous vos projets immobiliers.Annonce proposée par un Agent Commercial Partenaire.
Ermont
TERRAIN ET MAISONVENTE d’une maison de 7 pièces (102 m²) à ErmontMAISON 7 PIÈCES NEUVEÀ vendre : à côté du Transilien H (gare d’Ermont Halte, 20 min de Paris), ayez le coup de coeur pour à Ermont (95120), cette maison de 7 pièces de 102 m² et de 600 m² de terrain.Cette maison comporte 2 niveaux. Elle inclut cinq chambres, une cuisine et deux salles de bains. La maison est neuve.Des établissements scolaires de tous niveaux (de la maternelle au lycée) sont implantés à moins de 10 minutes à pied, tout comme sept crèches. Niveau transports en commun, il y a la station de RER Cernay (ligne C) ainsi que trois gares (Ermont Halte, Cernay (Val-d’Oise) et Gros Noyer Saint-Prix) dans un rayon de 1 km. On trouve une bibliothèque, un bassin de natation, deux tennis, des commerces, des boulangeries, un supermarché, un bureau de poste et trois boucheries-charcuteries à quelques minutes. Le marché Place St Flaive anime le quartier.Elle est à vendre pour la somme de 470 000 €.Prenez contact avec notre agence (FLIPPE Antoine : (Numéro supprimé)) pour obtenir de plus amples informations sur cette maison.Annonce proposée par un Agent Commercial Partenaire.
Ermont
TERRAIN ET MAISONErmont : maison de 6 pièces (109 m²) en venteMAISON 6 PIÈCES NEUVEÀ vendre : à deux pas du Transilien H (gare d’Ermont Halte, 20 min de Paris), Maisons Balency Baillet-en-France vous propose cette maison de 6 pièces de 109 m² et de 600 m² de terrain à Ermont (95120). Elle dispose de quatre chambres, d’une cuisine et de deux salles de bains.Cette maison possède 2 niveaux. Elle est neuve.Il y a tous les types d’écoles (maternelle, élémentaire et secondaire) à moins de 10 minutes à pied, tout comme sept crèches. Niveau transports en commun, on trouve la station de RER Cernay (ligne C) ainsi que trois gares (Ermont Halte, Cernay (Val-d’Oise) et Gros Noyer Saint-Prix) dans les environs. Il y a une bibliothèque, un bassin de natation, deux tennis, des commerces, des boulangeries, un supermarché, un bureau de poste et trois boucheries-charcuteries à quelques minutes à peine. Enfin, le marché Place St Flaive anime les environs.Elle est proposée à l’achat pour 485 000 €.Prenez contact avec notre agence (Antoine FLIPPE : (Numéro supprimé)) pour toute question sur cette maison, sur les démarches à suivre ou sur les modalités de vente. Faites de vos projets immobiliers une réalité avec Maisons Balency Baillet-en-France.Annonce proposée par un Agent Commercial Partenaire.
Ermont
TERRAIN ET MAISONMaison T7 (124 m²) en vente à ErmontMAISON 7 PIÈCES NEUVEÀ vendre : à quelques minutes du Transilien H (gare d’Ermont Halte, 20 min de Paris), à Ermont (95120), Maisons Balency Baillet-en-France vous propose cette maison de 7 pièces de 124 m². Son intérieur offre cinq chambres, une cuisine et trois salles de bains.Le terrain de la propriété s’étend sur 600 m².C’est une maison de 2 niveaux. Elle est neuve.Il y a des établissements scolaires de tous types à moins de 10 minutes à pied, tout comme sept structures d’accueil pour les enfants en bas âge. Côté transports, on trouve la station de RER Cernay (ligne C) ainsi que trois gares (Ermont Halte, Cernay (Val-d’Oise) et Gros Noyer Saint-Prix) dans les alentours. Il y a une bibliothèque, un bassin de natation, deux tennis, des commerces, des boulangeries, un supermarché, des épiceries et un bureau de poste à quelques minutes à peine. Enfin, le marché Place St Flaive anime le quartier.Elle est proposée à l’achat pour 495 000 €.Prenez contact avec Antoine FLIPPE (tél : (Numéro supprimé)) pour obtenir de plus amples informations sur la maison, sur les modalités de vente ou sur les démarches à suivre. Maisons Balency Baillet-en-France vous accompagne dans tous vos projets immobiliers et à toutes les étapes de votre projet.Annonce proposée par un Agent Commercial Partenaire.
Bezons
TERRAIN15 Minutes du tram T210 Minutes du centre ville à piedPrix : 240000 €.Sur ce terrain de 324 m² à BEZONS, Maisons Clairval vous propose de réaliser votre projet de construction de maison individuelle.Maisons Clairval propose de construire votre maison neuve avec toutes les prestations suivantes :- Plan sur-mesure et personnalisé de 2 à 6 chambres- Mode de chauffage au choix- Grands choix d'équipements et de prestations- Matériaux de qualité selon les normes en vigueur- Accompagnement dans le choix et l’acquisition du terrain- Construction conforme à la nouvelle RE 2020Demandez une étude gratuite et personnalisée de votre projet de construction sur ce terrain !Contactez Nicolas REBOUL au (Numéro supprimé) ou au (Numéro supprimé) (Maisons Clairval – Agence de Villemoisson).Prix hors frais de notaire. Terrain sélectionné et vu pour vous sous réserve de disponibilité et au prix indiqué par notre partenaire foncier. Conditions et visuels non contractuels.Cette annonce a été créée et diffusée avec le logiciel VITAHOME.
Bezons
TERRAINUne maison à démolir se trouve actuellement sur le terrainSitué dans un quartier calme et pavillonnairePrix : 399000 €.Sur ce terrain de 403 m² à BEZONS, Maisons Clairval vous propose de réaliser votre projet de construction de maison individuelle.Maisons Clairval propose de construire votre maison neuve avec toutes les prestations suivantes :- Plan sur-mesure et personnalisé de 2 à 6 chambres- Mode de chauffage au choix- Grands choix d'équipements et de prestations- Matériaux de qualité selon les normes en vigueur- Accompagnement dans le choix et l’acquisition du terrain- Construction conforme à la nouvelle RE 2020Demandez une étude gratuite et personnalisée de votre projet de construction sur ce terrain !Contactez Nicolas REBOUL au (Numéro supprimé) ou au (Numéro supprimé) (Maisons Clairval – Agence de Villemoisson).Prix hors frais de notaire. Terrain sélectionné et vu pour vous sous réserve de disponibilité et au prix indiqué par notre partenaire foncier. Conditions et visuels non contractuels.Cette annonce a été créée et diffusée avec le logiciel VITAHOME.
Conflans-Sainte-Honorine
TERRAINVENTE d’un terrain de 311 m² à Conflans-Sainte-HonorinePROCHE CENTRE-VILLETerrain de 311 m² à deux pas de la gare (Paris à 20 min avec le Transilien J). Ce terrain se situe proche du centre-ville de Conflans-Sainte-Honorine (78700). Ce terrain, avec vue sur jardin, bénéficie d’une exposition sud-ouest. Ce terrain est proche des commerces et des écoles. Plusieurs établissements scolaires (maternelle, élémentaire et lycée) sont implantés à moins de 10 minutes à pied, tout comme deux structures d’accueil pour les tout-petits. Niveau transports, on trouve la gare Conflans-Sainte-Honorine juste à côté. Il y a un tennis, une bibliothèque, des commerces, des boulangeries, un supermarché, un bureau de poste et des épiceries à quelques minutes.Son prix de vente est de 154 900 €. Contactez notre agence (KUD Morgane : (Numéro supprimé)) pour toute question sur le terrain, sur les modalités de vente ou sur les démarches à suivre. Donnez vie à vos projets immobiliers avec Les Maisons Extraco Chambourcy.
Conflans-Sainte-Honorine
TERRAINTerrain de 311 m² en vente à Conflans-Sainte-HonorineAu pied de la gare (Paris à 20 min avec le Transilien J) à Conflans-Sainte-Honorine (78700), terrain de 311 m². Il est prêt à accueillir votre projet immobilier pour toute la famille. Plusieurs écoles (maternelle, élémentaire et lycée) sont implantées à moins de 10 minutes à pied, tout comme deux crèches. Côté transports en commun, on trouve la gare Conflans-Sainte-Honorine à quelques pas du bien. Il y a un tennis, une bibliothèque, des commerces, des boulangeries, un supermarché, quatre supérettes et des boucheries-charcuteries dans les environs.Son prix de vente est de 157 000 €. Contactez notre agence (DUCOS Denis : (Numéro supprimé)) pour tout renseignement sur ce terrain ou sur les modalités de vente.Annonce proposée par un Agent Commercial Partenaire.
L’actualité immobilière à Sartrouville
27/11/2023
02/11/2023
30/10/2023
20/10/2023
16/10/2023
16/10/2023