Maison à construire à Saint-Léger-en-Yvelines (78610)
Images
Description
Saint-Léger-en-Yvelines : maison F6 (114 m²) à vendre
IDÉALEMENT SITUÉE - MAISON 6 PIÈCES NEUVE
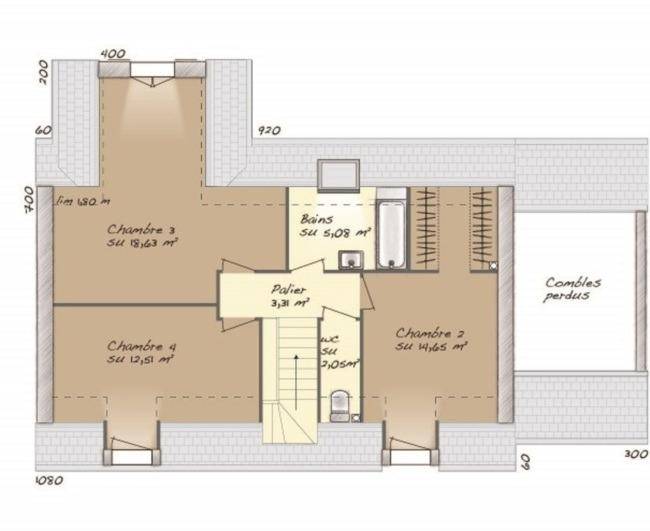
Au pied du Transilien N (gare des Essarts-le-Roi, 40 min de Paris), en vente idéalement située dans Saint-Léger-en-Yvelines (78610), laissez vous charmer par cette maison de 6 pièces de 114 m² avec vue sur jardin.
Il s'agit d'une maison de 2 niveaux. Son intérieur inclut quatre chambres, une cuisine et deux salles de bains. La maison est neuve.
Le terrain du bien est de 441 m².
La maison se situe dans un quartier recherché. On y trouve une école primaire. Il y a un tennis, une bibliothèque, un commerce et deux épiceries à quelques minutes.
Son prix de vente est de 446 730 €.
Prenez contact avec notre agence (DUTEURTRE Thibault : (Numéro supprimé)) pour obtenir de plus amples informations sur la maison ou sur les modalités de vente. Concrétisez vos projets immobiliers avec Maisons Balency Coignières.
Annonce proposée par un Agent Commercial Partenaire.
Logement susceptibles de vous intéresser
Nous vous proposons de découvrir aussi cette sélection de logements situés à moins de 10km de Saint-Léger-en-Yvelines et qui seraient susceptibles de vous intéresser.
Rambouillet
TERRAINSitué à Rambouillet, proche de toutes commodités, découvrez ce beau terrain constructible de 375m² en lot arrière avec une emprise au sol max. de 50% soit 187m².*Servitude de passage et de réseaux divers d’une largeur de 3m.*L’emprise au sol maximale autorisée est limitée à 50 % de la superficie du terrain à bâtir, soit 187 m2.*Le coefficient biotope surfacique minimum est de 30% soit 113 m2 dont 75m2 en pleine terre.*Zone UDa du PLU.*Réseaux existants sur rue.*Dimension du terrain à bâtir :14,5 m x 25,7 m en moyenne. Prix 225000 €. Honoraires d’agence 5.00 % TTC inclus à la charge de l’acquéreur.Prix hors honoraires 214285.71 €.Non soumis au DPE.Les informations sur les risques auxquels ce bien est exposé sont disponibles sur le site Géorisques : (Lien supprimé). Sur ce site seront également consultables une fiche d’information sur les obligations de débroussaillement et une carte des zones soumises à cette obligation.La présente annonce immobilière a été rédigée sous la responsabilité éditoriale de FONTARENSKY Karen, mandataire indépendant en immobilier (sans détention de fonds), agent commercial de la SASU THE DOOR MAN, titulaire de la carte de démarchage immobilier pour le compte de la société THE DOOR MAN SASU.
Saint-Léger-en-Yvelines
TERRAINL »agence Maisons France Confort de Coignières propose en partenariat avec un aménageur foncier ces superbes terrains sur la charmante commune de Saint-Léger-en-Yvelines : terrain de 301 m² EMPLACEMENT PRIVILÉGIÉ – PROCHE DE VERSAILLESÀ Saint-Léger-en-Yvelines (78610) à proximité du Transilien N (gare des Essarts-le-Roi, 40 min de Paris), projetez la maison de vos rêves sur ce terrain de 301 m². Dans un quartier convoité, ce terrain bénéficiant d »un emplacement privilégié est proche des commerces et des écoles. Une école primaire est implantée dans le quartier. Niveau transports, il y a cinq gares à moins de 10 minutes en voiture. On trouve un tennis, une bibliothèque, un commerce et deux épiceries à proximité du terrain.Son prix de vente est de 119 000 €. Pour d »avantage de précisions, un devis de construction personnalisé tout compris et une visite de ce terrain contactez sans tarder votre agence Maisons France Confort de Coignières au (Numéro supprimé) ou (Numéro supprimé)Annonce proposée par un Agent Commercial Partenaire.
Saint-Léger-en-Yvelines
TERRAIN ET MAISONL’agence Maisons France Confort de Coignières propose ce magnifique projet, très attractif pour son lieu, ses prestations et son prix avec par exemple ce modèle plain-pied (photo non contractuelle).La distribution de cette maison optimise l’espace autour d’une cuisine ouverte sur le séjour qui offre un espace de vie spacieux et harmonieux de plus de 30 m², 2 chambres, 1 salle de bains, 1 WC indépendant et un cellier. Norme RE2020, chauffage PAC, domotique sur les volets roulants… Modèle personnalisable en fonction de votre mode de vie, vos envies et budget.Les plus Maisons France Confort : une expérience solide de presque 100 ans, la maîtrise de projets sur mesure, la sécurité du premier constructeur national.Le prix de cette annonce inclus le terrain, le modèle de maison proposé en exemple ainsi que tous les frais de viabilisation, raccordements, évacuation de terres excédentaires, accès chantier etc…Pour rappel les frais de notaire sur le terrain et les taxes, les clôtures, l’ameublement et la décoration ne sont pas inclus.Pour d’avantage de précisions et pour un devis de construction personnalisé avant visite du terrain contactez votre agence Maisons France Confort de Coignières au (Numéro supprimé) ou (Numéro supprimé) et (Numéro supprimé)Annonce proposée par un Agent Commercial Partenaire.
Bazoches-sur-Guyonne
TERRAINMontfort-l’Amaury : terrain de 679 m² à vendreEMPLACEMENT PRIVILÉGIÉ – PROCHE DE VERSAILLESGrand terrain à proximité du Transilien N (gare de Montfort-l’Amaury-Méré, 35 min de Paris). De 679 m², ce terrain se situe bénéficiant d’un emplacement d’exception dans Montfort-l’Amaury (78490). Ce terrain, avec une exposition sud-ouest, donne sur un espace vert. Dans un quartier attractif, ce terrain est proche des commerces et des écoles. Deux établissements scolaires sont implantés à moins de 10 minutes à pied, tout comme, parmi lesquels le Collège Maurice Ravel. Niveau transports en commun, on trouve sept gares à moins de 10 minutes en voiture. Il y a un bassin de natation, un tennis, une bibliothèque, des commerces, trois boulangeries, deux boucheries-charcuteries, un bureau de poste et trois épiceries à quelques minutes du terrain.Il est à vendre pour la somme de 230 000 €. Prenez contact avec Morgane KUD ((Numéro supprimé)) pour toute information sur le terrain. Les Maisons Extraco Chambourcy est là pour vous accompagner dans tous vos projets immobiliers.
Saint-Léger-en-Yvelines
TERRAINPrix : 145000 €.Sur ce terrain de 417 m² à SAINT-LEGER-EN-YVELINES, Maisons Clairval vous propose de réaliser votre projet de construction de maison individuelle.Maisons Clairval propose de construire votre maison neuve avec toutes les prestations suivantes :- Plan sur-mesure et personnalisé de 2 à 6 chambres- Mode de chauffage au choix- Grands choix d'équipements et de prestations- Matériaux de qualité selon les normes en vigueur- Accompagnement dans le choix et l’acquisition du terrain- Construction conforme à la nouvelle RE 2020Demandez une étude gratuite et personnalisée de votre projet de construction sur ce terrain !Contactez Nicolas REBOUL au (Numéro supprimé) ou au (Numéro supprimé) (Maisons Clairval – Agence de Villemoisson).Prix hors frais de notaire. Terrain sélectionné et vu pour vous sous réserve de disponibilité et au prix indiqué par notre partenaire foncier. Conditions et visuels non contractuels.Cette annonce a été créée et diffusée avec le logiciel VITAHOME.
Saint-Léger-en-Yvelines
TERRAINPrix : 147000 €.Sur ce terrain de 441 m² à SAINT-LEGER-EN-YVELINES, Maisons Clairval vous propose de réaliser votre projet de construction de maison individuelle.Maisons Clairval propose de construire votre maison neuve avec toutes les prestations suivantes :- Plan sur-mesure et personnalisé de 2 à 6 chambres- Mode de chauffage au choix- Grands choix d'équipements et de prestations- Matériaux de qualité selon les normes en vigueur- Accompagnement dans le choix et l’acquisition du terrain- Construction conforme à la nouvelle RE 2020Demandez une étude gratuite et personnalisée de votre projet de construction sur ce terrain !Contactez Nicolas REBOUL au (Numéro supprimé) ou au (Numéro supprimé) (Maisons Clairval – Agence de Villemoisson).Prix hors frais de notaire. Terrain sélectionné et vu pour vous sous réserve de disponibilité et au prix indiqué par notre partenaire foncier. Conditions et visuels non contractuels.Cette annonce a été créée et diffusée avec le logiciel VITAHOME.
Méré
TERRAINBeau terrain viabilisé de 590m² dans village des Yvelines à 10min de Plaisir, gare et toutes commodités à seulement 3km.Façade de 14m. Possibilité d'emprise de 25%, hauteur maximum10m au faitage.Nous bâtissons des maisons sur mesure et nous pourrons ensemble réaliser des plans selon vos envies, vos besoins et votre budget.Contactez-nous pour en savoir plus et en vue de concrétiser votre rêve.Annonce proposée en exclusivité avec un vendeur privé.Prix : 225000 €.Sur ce terrain de 590 m² à MERE, Les Maisons Belles Demeures vous propose de réaliser votre projet de construction de maison individuelle.Les Maisons Belles Demeures propose de construire votre maison neuve avec toutes les prestations suivantes :- Plan sur-mesure et personnalisé de 2 à 6 chambres- Mode de chauffage au choix- Grands choix d'équipements et de prestations- Matériaux de qualité selon les normes en vigueur- Accompagnement dans le choix et l’acquisition du terrain- Construction conforme à la nouvelle RE 2020Demandez une étude gratuite et personnalisée de votre projet de construction sur ce terrain !Contactez Patryk MAGNIER au (Numéro supprimé) ou au (Numéro supprimé) (Les Maisons Belles Demeures – Agence de Jouars-Pontchartrain).Prix hors frais de notaire. Terrain sélectionné et vu pour vous sous réserve de disponibilité et au prix indiqué par notre partenaire foncier. Conditions et visuels non contractuels.Cette annonce a été créée et diffusée avec le logiciel VITAHOME.
Méré
TERRAINBeau terrain viabilisé de 845m² dans village des Yvelines à 10min de Plaisir, gare et toutes commodités à seulement 3km.Façade de 21.5m. Possibilité d'emprise de 25%, hauteur maximum10m au faitage.Nous bâtissons des maisons sur mesure et nous pourrons ensemble réaliser des plans selon vos envies, vos besoins et votre budget.Contactez-nous pour en savoir plus et en vue de concrétiser votre rêve.Annonce proposée en exclusivité avec un vendeur privé.Prix : 235000 €.Sur ce terrain de 845 m² à MERE, Les Maisons Belles Demeures vous propose de réaliser votre projet de construction de maison individuelle.Les Maisons Belles Demeures propose de construire votre maison neuve avec toutes les prestations suivantes :- Plan sur-mesure et personnalisé de 2 à 6 chambres- Mode de chauffage au choix- Grands choix d'équipements et de prestations- Matériaux de qualité selon les normes en vigueur- Accompagnement dans le choix et l’acquisition du terrain- Construction conforme à la nouvelle RE 2020Demandez une étude gratuite et personnalisée de votre projet de construction sur ce terrain !Contactez Patryk MAGNIER au (Numéro supprimé) ou au (Numéro supprimé) (Les Maisons Belles Demeures – Agence de Jouars-Pontchartrain).Prix hors frais de notaire. Terrain sélectionné et vu pour vous sous réserve de disponibilité et au prix indiqué par notre partenaire foncier. Conditions et visuels non contractuels.Cette annonce a été créée et diffusée avec le logiciel VITAHOME.
Mareil-le-Guyon
TERRAINÀ seulement cinq minutes de Montfort-l’Amaury, découvrez ce terrain à bâtir idéalement situé sur la charmante commune de Mareil-le-Guyon, dans un environnement paisible et recherché.D’une superficie d’environ 320 m², il bénéficie d’une exposition plein sud qui offre une belle luminosité tout au long de la journée.Sa façade de 18 mètres permet une grande liberté d’implantation pour votre future maison, selon le projet qui vous correspond.Le terrain est libre de constructeur, ce qui vous laisse la possibilité de concevoir et de réaliser votre habitation en toute autonomie. Vous profiterez d’un cadre calme et verdoyant, à proximité immédiate de Montfort-l’Amaury et de la gare de Méré. Les écoles et commerces sont accessibles en quelques minutes seulement, dans un environnement résidentiel de qualité.Une opportunité rare sur le secteur, contactez Margot au (Numéro supprimé) pour une visite !Il est situé en zone UA du PLU actuellement en vigueur dans la Commune.Implantation à l’alignement ou retrait si un mur maçonné est créé (le portail devra être implanté à 5m de l’alignement).Construction en limites séparatives ou à 4m minimum.60% emprise au sol.R+1+CUn ERRIAL (Etat des Risques Réglementés pour l’Information des Acquéreurs et des Locataires) et les informations sur les risques auxquels ce bien est exposé sont disponibles sur le site Géorisques : www. georisques. gouv. fr
L’actualité immobilière à Saint-Léger-en-Yvelines
27/11/2023
02/11/2023
30/10/2023
20/10/2023
16/10/2023
16/10/2023