Maison à construire à Thoiry (78770)
Images
Description
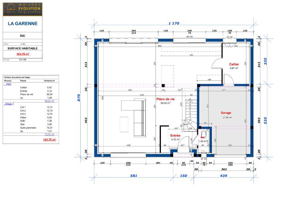
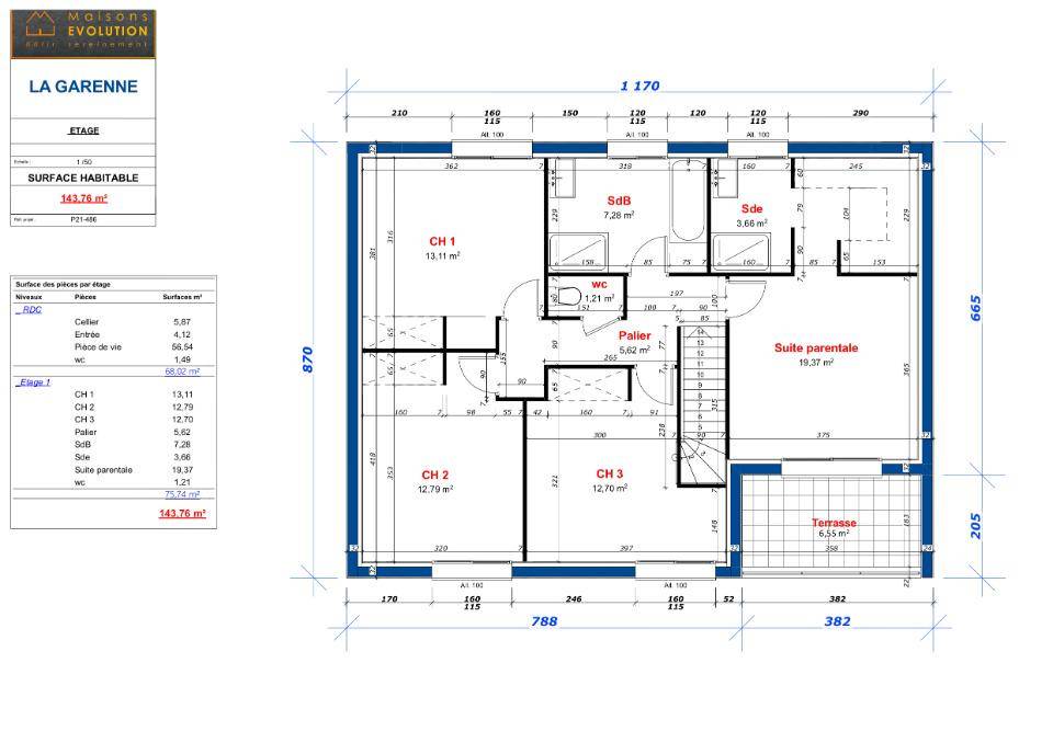
Maisons Evolution vous présente le modèle La Garenne d'une surface habitable de 143 m².
Cette maison vous offre de grands et beaux espaces avec son atout majeur, sa magnifique suite parentale donnant accès sur une terrasse couverte.
Retrouvez au rez-de-chaussée une entrée, un séjour/cuisine de plus de 60 m², un cellier, des WC indépendants et un garage intégré.
A l'étage, cette maison vous offre 3 chambres et une suite parentale avec salle d'eau et dressing, une salle de bain indépendante et des WC.MAISONS EVOLUTION AU (Numéro supprimé)
Annonce proposée par un Agent Commercial Partenaire.
Logement susceptibles de vous intéresser
Nous vous proposons de découvrir aussi cette sélection de logements situés à moins de 10km de Thoiry et qui seraient susceptibles de vous intéresser.
Prunay-le-Temple
TERRAINFlexanville : terrain de 500 m² à vendreIDÉALEMENT SITUÉ – PROCHE DE VERSAILLESProche de la gare d’Orgerus-Béhoust (Paris à 45 min avec le Transilien N) à Flexanville (78910), terrain de 500 m². Réalisez-y votre projet immobilier. Il donne sur un espace vert et est orienté plein sud. Dans un quartier prisé, ce terrain idéalement situé est proche des commerces et des écoles. Une école élémentaire est implantée dans le quartier. Niveau transports en commun, il y a quatre gares à moins de 10 minutes en voiture. On trouve un tennis et un commerce dans les environs.Ce terrain est à vendre pour la somme de 118 000 €. N’hésitez pas à prendre contact avec notre agence (Morgane KUD : (Numéro supprimé)) pour plus d’informations sur le terrain ou sur les modalités de vente. Donnez vie à vos projets immobiliers avec Les Maisons Extraco Chambourcy.
Goussonville
TERRAINGoussonville : terrain de 1 000 m² à vendreIDÉALEMENT SITUÉ – PROCHE DE VERSAILLESÀ Goussonville (78930) à deux pas de la gare d’Épône-Mézières (Paris à 40 min avec le Transilien J), imaginez la maison de vos rêves sur ce terrain de 1 000 m². Il donne sur un espace vert. Dans un secteur convoité, le terrain idéalement situé est proche des écoles et des commerces. Des établissements scolaires maternelles et élémentaires sont implantés à moins de 10 minutes à pied, tout comme dont l’École Élémentaire Privée Notre-Dame de la Sablonnière. Niveau transports, il y a 10 gares à moins de 10 minutes en voiture. On trouve un tennis dans les environs.Son prix de vente est de 106 000 €. Prenez contact avec notre agence (KUD Morgane : (Numéro supprimé)) pour toute information sur le terrain.
Osmoy
TERRAINVENTE : terrain de 372 m² à OsmoyIDÉALEMENT SITUÉ – PROCHE DE VERSAILLESÀ Osmoy (78910) à côté de la gare d’Orgerus-Béhoust (Paris à 45 min avec le Transilien N), donnez vie à votre projet immobilier sur ce terrain de 372 m². Ce terrain, avec vue sur espace vert, bénéficie d’une exposition sud. Dans un quartier convoité, ce terrain idéalement situé est proche des commerces et des écoles. On trouve l’École Élémentaire du Cerisier à moins de 10 minutes à pied. Niveau transports, il y a quatre gares à moins de 10 minutes en voiture.Son prix de vente est de 112 000 €. Prenez contact avec Morgane KUD ((Numéro supprimé)) pour plus d’informations sur le terrain, sur les modalités de vente ou sur les démarches à suivre. Les Maisons Extraco Chambourcy est là pour vous accompagner dans tous vos projets immobiliers.
Thoiry
TERRAIN ET MAISONThoiry : maison F4 (74 m²) à vendreMAISON 4 PIÈCES NEUVE – En vente : au pied du Transilien N (gare de Beynes, 50 min de Paris), à Thoiry (78770), laissez vous charmer par cette maison de 4 pièces de plain-pied de 74 m² et de 1 095 m² de terrain.Elle est composée de trois chambres, d’une cuisine ouverte sur le séjour, d’une salle de bains, d’un cellier et d’un garage. Cette maison est neuve.Des écoles maternelles et élémentaires sont implantées dans le quartier. Niveau transports en commun, il y a huit gares à moins de 10 minutes en voiture. On trouve un tennis, une bibliothèque, un commerce, une boulangerie, un supermarché, une boucherie-charcuterie et un bureau de poste à quelques minutes du bien.Elle est proposée à l’achat pour 309 000 €.Contactez Aurélie KTARI ((Numéro supprimé)) pour toute information sur cette maison ou sur les démarches à suivre.
Thoiry
TERRAIN ET MAISONThoiry : maison F5 (100 m²) en venteMAISON 5 PIÈCES NEUVE – À quelques minutes du Transilien N (gare de Beynes, 50 min de Paris), en vente à Thoiry (78770), notre agence Les Maisons Extraco Chambourcy est ravie de vous présenter cette maison de 5 pièces de 100 m².C’est une maison de 2 niveaux. Son intérieur comporte quatre chambres, une cuisine ouverte sur le séjour, une salle de bains, un cellier et un garage. La maison est neuve.Le terrain de la propriété s’étend sur 1 095 m².Des écoles maternelles et élémentaires sont implantées dans le quartier. Niveau transports en commun, on trouve huit gares à moins de 10 minutes en voiture. Il y a un tennis, une bibliothèque, un commerce, une boulangerie, un supermarché, un bureau de poste et une boucherie-charcuterie à proximité.Il est proposé à l’achat pour 339 000 €.Prenez contact avec Aurélie KTARI (tél : (Numéro supprimé)) pour toute question sur cette maison. Les Maisons Extraco Chambourcy vous accompagne dans tous vos projets immobiliers et à toutes les étapes de votre projet.
Thoiry
TERRAIN ET MAISONGAMME BOISVENTE : maison T4 (94 m²) à ThoiryMAISON 4 PIÈCES NEUVE -En vente : à côté de la gare de Beynes (Paris à 50 min par le Transilien N), à Thoiry (78770), nous sommes ravis de vous présenter cette maison de 4 pièces de plain-pied de 94 m². Conçue de plain-pied, elle compte trois chambres, une cuisine ouverte sur le séjour, deux salles de bains, un cellier et un garage.Le terrain du bien est de 1 095 m².Cette maison est neuve.Il y a des établissements scolaires primaires dans le quartier. Niveau transports en commun, on trouve huit gares à moins de 10 minutes en voiture. On trouve un tennis, une bibliothèque, un commerce, une boulangerie, un supermarché, une boucherie-charcuterie et un bureau de poste à proximité.Elle est proposée à l’achat pour 369 000 €.Prenez contact avec Aurélie KTARI ((Numéro supprimé)) pour obtenir de plus amples renseignements sur la maison. Faites de vos projets immobiliers une réalité avec Les Maisons Extraco Chambourcy.
Thoiry
TERRAIN ET MAISONVENTE : maison de 4 pièces (137 m²) à ThoiryPROCHE DE NANTERRE – MAISON 4 PIÈCES NEUVEÀ vendre : au pied du Transilien N (gare de Beynes, 50 min de Paris), nous sommes ravis de vous présenter cette maison de 4 pièces de plain-pied de 137 m² à Thoiry (78770). Son intérieur compte trois chambres, une cuisine ouverte sur le séjour, deux salles de bains, un cellier et un garage.Le terrain du bien s’étend sur 1 095 m².Cette maison est neuve.Des écoles primaires sont implantées dans le quartier. Niveau transports, on trouve huit gares à moins de 10 minutes en voiture. Il y a un tennis, une bibliothèque, un commerce, une boulangerie, un supermarché, une boucherie-charcuterie et un bureau de poste dans les environs.Son prix de vente est de 449 000 €.Prenez contact avec Aurélie KTARI ((Numéro supprimé)) pour plus de renseignements sur cette maison. Les Maisons Extraco Chambourcy est là pour vous accompagner à toutes les étapes de votre projet.
Bazemont
TERRAINPrix : 197000 €.Sur ce terrain de 484 m² à BAZEMONT, Maisons Clairval vous propose de réaliser votre projet de construction de maison individuelle.Maisons Clairval propose de construire votre maison neuve avec toutes les prestations suivantes :- Plan sur-mesure et personnalisé de 2 à 6 chambres- Mode de chauffage au choix- Grands choix d'équipements et de prestations- Matériaux de qualité selon les normes en vigueur- Accompagnement dans le choix et l’acquisition du terrain- Construction conforme à la nouvelle RE 2020Demandez une étude gratuite et personnalisée de votre projet de construction sur ce terrain !Contactez Nicolas REBOUL au (Numéro supprimé) ou au (Numéro supprimé) (Maisons Clairval – Agence de Villemoisson).Prix hors frais de notaire. Terrain sélectionné et vu pour vous sous réserve de disponibilité et au prix indiqué par notre partenaire foncier. Conditions et visuels non contractuels.Cette annonce a été créée et diffusée avec le logiciel VITAHOME.
Méré
TERRAINBeau terrain viabilisé de 590m² dans village des Yvelines à 10min de Plaisir, gare et toutes commodités à seulement 3km.Façade de 14m. Possibilité d'emprise de 25%, hauteur maximum10m au faitage.Nous bâtissons des maisons sur mesure et nous pourrons ensemble réaliser des plans selon vos envies, vos besoins et votre budget.Contactez-nous pour en savoir plus et en vue de concrétiser votre rêve.Annonce proposée en exclusivité avec un vendeur privé.Prix : 225000 €.Sur ce terrain de 590 m² à MERE, Les Maisons Belles Demeures vous propose de réaliser votre projet de construction de maison individuelle.Les Maisons Belles Demeures propose de construire votre maison neuve avec toutes les prestations suivantes :- Plan sur-mesure et personnalisé de 2 à 6 chambres- Mode de chauffage au choix- Grands choix d'équipements et de prestations- Matériaux de qualité selon les normes en vigueur- Accompagnement dans le choix et l’acquisition du terrain- Construction conforme à la nouvelle RE 2020Demandez une étude gratuite et personnalisée de votre projet de construction sur ce terrain !Contactez Patryk MAGNIER au (Numéro supprimé) ou au (Numéro supprimé) (Les Maisons Belles Demeures – Agence de Jouars-Pontchartrain).Prix hors frais de notaire. Terrain sélectionné et vu pour vous sous réserve de disponibilité et au prix indiqué par notre partenaire foncier. Conditions et visuels non contractuels.Cette annonce a été créée et diffusée avec le logiciel VITAHOME.
L’actualité immobilière à Thoiry
27/11/2023
02/11/2023
30/10/2023
20/10/2023
16/10/2023
16/10/2023