Maison à construire à Verneuil-sur-Seine (78480)
Images
Description
Opportunité à saisir ! Projet de construction d'une maison d'exception BALENCY sur mesure
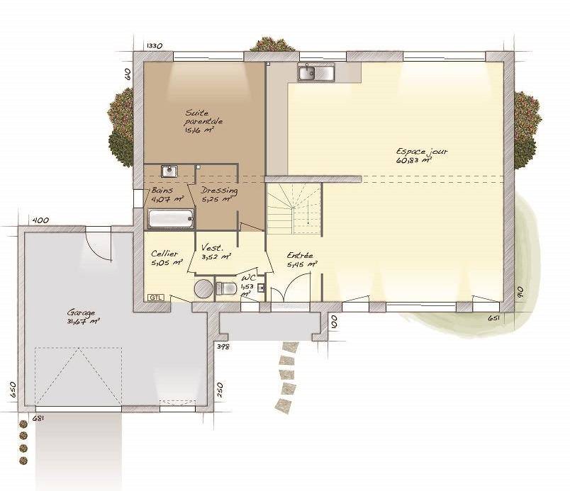
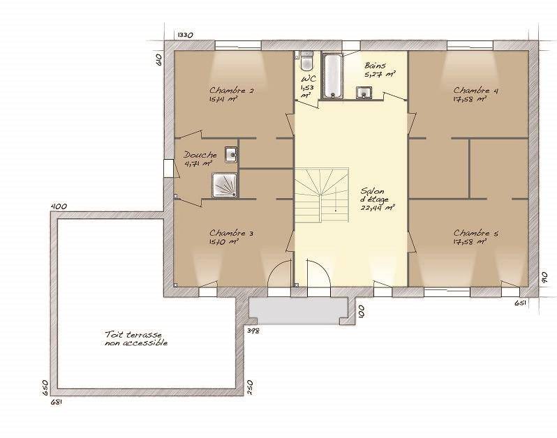
Dans un cadre privilégié, découvrez ce projet unique de construction d'une maison sur mesure, pensée pour allier élégance, confort et prestations haut de gamme. Sur un terrain de 1568 m², cette future propriété offrira une surface habitable de 200 m², conçue selon vos envies et vos exigences.
Caractéristiques principales :
- Architecture contemporaine ou classique selon vos préférences
- Matériaux nobles et finitions de qualité supérieure
- Grands volumes lumineux avec baies vitrées et hauteurs sous plafond
- Cuisine équipée haut de gamme ouverte sur un vaste espace de vie
- Suites parentales avec dressing et salle de bain privative
- Espaces personnalisables : bureau, salle de sport, home cinéma...
- Système de chauffage et climatisation gainable pour un confort thermique optimal et une intégration discrète digne d'un palace
- Domotique intégrée pour un confort optimal
- Jardin paysager avec possibilité de piscine, terrasse, pool house...
Localisation idéale :
Située dans un environnement calme et résidentiel, à proximité des commodités, écoles, transports et axes principaux, cette maison incarne le parfait équilibre entre tranquillité et vie active.
Un projet clé en main :
Accompagnement complet par des professionnels reconnus : architectes, artisans, décorateurs. Vous choisissez, nous réalisons.
Pour plus d'informations, merci de nous contacter au (Numéro supprimé)
Annonce proposée par un Agent Commercial Partenaire.
Logement susceptibles de vous intéresser
Nous vous proposons de découvrir aussi cette sélection de logements situés à moins de 10km de Verneuil-sur-Seine et qui seraient susceptibles de vous intéresser.
Condécourt
TERRAIN ET MAISONVENTE d’une maison de 4 pièces (112 m²) à CondécourtIDÉALEMENT SITUÉE – MAISON 4 PIÈCES NEUVEÀ quelques minutes du Transilien J (gare de Vaux-sur-Seine, 35 min de Paris), à vendre idéalement située dans Condécourt (95450), notre agence Les Maisons Extraco Chambourcy est heureuse de vous présenter cette maison de 4 pièces de 112 m². Elle comporte quatre chambres, une cuisine et deux salles de bains.Le terrain du bien s’étend sur 323 m².Cette maison compte 2 niveaux. Elle est neuve.Cette maison est située dans un quartier prisé. Une école primaire y est implantée. Niveau transports, il y a la ligne de RER A (Cergy Le Haut) ainsi que 16 gares à moins de 10 minutes en voiture. On trouve un tennis dans les environs.Son prix de vente est de 364 111 €.Contactez Morgane KUD ((Numéro supprimé)) pour toute information sur la maison ou sur les démarches à suivre. Les Maisons Extraco Chambourcy vous accompagne à toutes les étapes de l’achat et dans tous vos projets immobiliers.
Condécourt
TERRAIN ET MAISONMaison F7 (134 m²) en vente à CondécourtIDÉALEMENT SITUÉE – MAISON 7 PIÈCES NEUVEÀ vendre : proche de la gare de Vaux-sur-Seine (Paris à 35 min par le Transilien J), nous vous proposons cette maison de 7 pièces de 134 m² idéalement située dans Condécourt (95450).Il s’agit d’une maison de 2 niveaux. Son intérieur inclut quatre chambres, une cuisine et deux salles de bains. La maison est neuve.Le terrain de la propriété est de 323 m².Cette maison se situe dans un secteur prisé. Une école primaire y est implantée. Côté transports, il y a la ligne de RER A (Cergy Le Haut) ainsi que 16 gares à moins de 10 minutes en voiture. Il y a un tennis dans les environs.Son prix de vente est de 436 800 €.Prenez contact avec Morgane KUD ((Numéro supprimé)) pour toute information sur la maison.
Les Alluets-le-Roi
TERRAINTerrain de 536 m² en vente aux Alluets-le-RoiIDÉALEMENT SITUÉ – PROCHE DE BOULOGNE-BILLANCOURTÀ quelques minutes du Transilien N (gare de Mareil-sur-Mauldre, 55 min de Paris) aux Alluets-le-Roi (78580), grand terrain. Ce terrain, avec une exposition est, donne sur un jardin. Dans un secteur recherché, ce terrain idéalement situé est proche des commerces et des écoles. Il y a l’École Primaire Roger Gousseau à moins de 10 minutes à pied et une structure d’accueil pour la petite enfance. Niveau transports en commun, on trouve la station de RER Poissy (ligne A) ainsi que 15 gares à moins de 10 minutes en voiture. On trouve une bibliothèque, un tennis, trois commerces et deux boucheries-charcuteries à quelques minutes.Ce terrain est à vendre pour la somme de 268 000 €. N’hésitez pas à prendre contact avec Morgane KUD ((Numéro supprimé)) pour plus d’informations sur le terrain, sur les démarches à suivre ou sur les modalités de vente. Les Maisons Extraco Chambourcy est là pour vous accompagner dans tous vos projets immobiliers.
Courdimanche
TERRAINCourdimanche : terrain de 860 m² en venteIDÉALEMENT SITUÉ – PROCHE DE BOULOGNE-BILLANCOURTÀ Courdimanche (95800) au pied de la station Cergy le Haut du RER A (40 min de Paris), donnez vie à votre résidence principale ou secondaire sur ce terrain de 860 m². Il donne sur un jardin et bénéficie d’une exposition ouest. Dans un quartier attractif, le terrain idéalement situé est proche des écoles et des commerces. Il y a l’École Primaire Publique André Parrain et l’École Primaire la Louvière à moins de 10 minutes à pied. Niveau transports, on trouve les lignes A et C du RER ainsi que 28 gares à moins de 10 minutes en voiture. Il y a trois tennis, une bibliothèque, une boulangerie, deux commerces et deux supermarchés à proximité.Ce terrain est proposé à l’achat pour 215 000 €. Contactez notre agence (KUD Morgane : (Numéro supprimé)) pour obtenir de plus amples informations sur le terrain. Les Maisons Extraco Chambourcy est là pour vous accompagner à toutes les étapes de votre projet.
Triel-sur-Seine
TERRAINVENTE : terrain de 446 m² à Triel-sur-SeineQUARTIER RECHERCHÉ – PROCHE DE PARISProche de la gare (Paris à 35 min par le Transilien J) à Triel-sur-Seine (78510), terrain de 446 m². Il est prêt à accueillir votre projet de construction pour toute la famille. Ce terrain, avec vue sur jardin, bénéficie d’une exposition ouest. Dans un quartier convoité, le terrain niché dans un quartier prisé est proche des écoles et des commerces. Plusieurs établissements scolaires (maternelle, élémentaire et collège) sont implantés à moins de 10 minutes à pied. Niveau transports en commun, on trouve la gare Triel-sur-Seine à proximité. Il y a une bibliothèque, un tennis, des commerces, trois boulangeries, un supermarché, deux boucheries-charcuteries et quatre épiceries dans les environs.Il est à vendre pour la somme de 99 000 €. N’hésitez pas à prendre contact avec notre agence (Morgane KUD : (Numéro supprimé)) pour plus d’informations sur ce terrain. Concrétisez vos projets immobiliers avec Les Maisons Extraco Chambourcy.
Les Alluets-le-Roi
TERRAIN ET MAISONMaison de 5 pièces (105 m²) à vendre aux Alluets-le-RoiEMPLACEMENT PRIVILÉGIÉ – MAISON 5 PIÈCES NEUVEÀ deux pas du Transilien N (gare de Mareil-sur-Mauldre, 55 min de Paris), votre agence Les Maisons Extraco Chambourcy est heureuse de vous proposer à vendre, bénéficiant d’un emplacement privilégié dans Les Alluets-le-Roi (78580), cette maison de 5 pièces de 105 m² et de 536 m² de terrain.Cette maison possède 2 niveaux. Son intérieur se divise en quatre chambres, une cuisine et deux salles de bains. La maison est neuve.Cette propriété est située dans un quartier attractif. Il y a l’École Primaire Roger Gousseau à moins de 10 minutes à pied et une crèche. Côté transports, on trouve la station de RER Poissy (ligne A) ainsi que 15 gares à moins de 10 minutes en voiture. On trouve une bibliothèque, un tennis, trois commerces et deux boucheries-charcuteries dans les environs.Elle est à vendre pour la somme de 462 259 €.Prenez contact avec Morgane KUD ((Numéro supprimé)) pour toute question sur la maison ou sur les démarches à suivre. Les Maisons Extraco Chambourcy vous accompagne dans tous vos projets immobiliers et dans toutes vos démarches.
Les Alluets-le-Roi
TERRAIN ET MAISONVENTE : maison de 6 pièces (118 m²) aux Alluets-le-RoiEMPLACEMENT PRIVILÉGIÉ – MAISON 6 PIÈCES NEUVEEn vente : au pied de la gare de Mareil-sur-Mauldre (Paris à 55 min par le Transilien N), nous vous présentons cette maison de 6 pièces de 118 m² bénéficiant d’un emplacement privilégié dans Les Alluets-le-Roi (78580). Elle propose quatre chambres, une cuisine et deux salles de bains.Le terrain du bien est de 536 m².Cette maison possède 2 niveaux. Elle est neuve.Cette maison se trouve dans un quartier recherché. L’École Primaire Roger Gousseau est implantée à moins de 10 minutes à pied, tout comme une crèche. Niveau transports, il y a la station de RER Poissy (ligne A) ainsi que 15 gares à moins de 10 minutes en voiture. On trouve une bibliothèque, un tennis, trois commerces et deux boucheries-charcuteries dans les environs.Elle est à vendre pour la somme de 525 800 €.Prenez contact avec Morgane KUD ((Numéro supprimé)) pour obtenir de plus amples informations sur la maison.
Les Alluets-le-Roi
TERRAIN ET MAISONMaison F7 (142 m²) à vendre aux Alluets-le-RoiEMPLACEMENT PRIVILÉGIÉ – MAISON 7 PIÈCES NEUVEÀ côté de la gare de Mareil-sur-Mauldre (Paris à 55 min par le Transilien N), laissez vous charmer par cette maison de 7 pièces de 142 m² et de 536 m² de terrain à vendre bénéficiant d’un emplacement privilégié dans Les Alluets-le-Roi (78580). Son intérieur est composé de cinq chambres, d’une cuisine et de trois salles de bains.Cette maison comporte 2 niveaux. Elle est neuve.La maison se trouve dans un quartier attractif. Il y a l’École Primaire Roger Gousseau à moins de 10 minutes à pied et une structure d’accueil pour les enfants en bas âge. Niveau transports, on trouve la station de RER Poissy (ligne A) ainsi que 15 gares à moins de 10 minutes en voiture. On trouve une bibliothèque, un tennis, trois commerces et deux boucheries-charcuteries à proximité de la maison.Elle est à vendre pour la somme de 569 100 €.Contactez Morgane KUD ((Numéro supprimé)) pour plus d’informations sur la maison, sur les démarches à suivre ou sur les modalités de vente. Les Maisons Extraco Chambourcy vous accompagne dans tous vos projets immobiliers et à toutes les étapes de votre projet.
Les Alluets-le-Roi
TERRAIN ET MAISONVENTE d’une maison de 5 pièces (114 m²) aux Alluets-le-RoiEMPLACEMENT PRIVILÉGIÉ – MAISON 5 PIÈCES NEUVEÀ vendre : au pied de la gare de Mareil-sur-Mauldre (Paris à 55 min avec le Transilien N), bénéficiant d’un emplacement d’exception dans Les Alluets-le-Roi (78580), Les Maisons Extraco Chambourcy vous présente cette maison de 5 pièces de plain-pied de 114 m². Elle compte quatre chambres, une cuisine et une salle de bains.Le terrain de la propriété s’étend sur 536 m².La maison est neuve.Cette maison se situe dans un secteur convoité. On trouve l’École Primaire Roger Gousseau à moins de 10 minutes à pied et une crèche. Côté transports, il y a la station de RER Poissy (ligne A) ainsi que 15 gares à moins de 10 minutes en voiture. On trouve une bibliothèque, un tennis, trois commerces et deux boucheries-charcuteries dans les environs.Elle est proposée à l’achat pour 449 111 €.Prenez contact avec notre agence (KUD Morgane : (Numéro supprimé)) pour plus de renseignements sur la maison, sur les modalités de vente ou sur les démarches à suivre. Les Maisons Extraco Chambourcy est là pour vous accompagner dans tous vos projets immobiliers.
L’actualité immobilière à Verneuil-sur-Seine
27/11/2023
02/11/2023
30/10/2023
20/10/2023
16/10/2023
16/10/2023