Terrain
Images
Description
INSTALLEZ VOTRE ENTREPRISE A DOUVRES-LA-DELIVRANDE
Un positionnement stratégique,
Proche des grands axes,
Aménagement paysager qualitatif,
Parc labélisé RSE Normandie ReSponsablE
Parcelles viabilisées de 1 773 m² à 5 100 m²
Prix de 76 800 à 229 500 euros HT
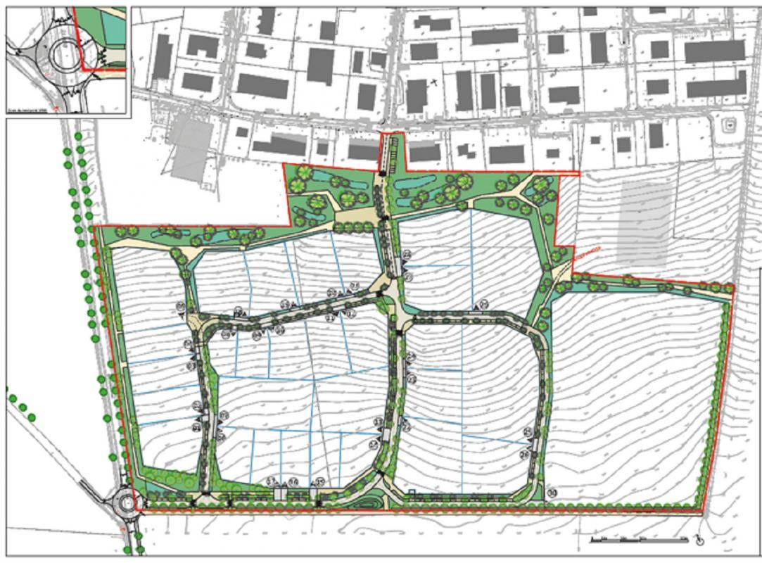
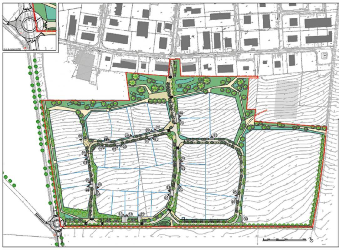
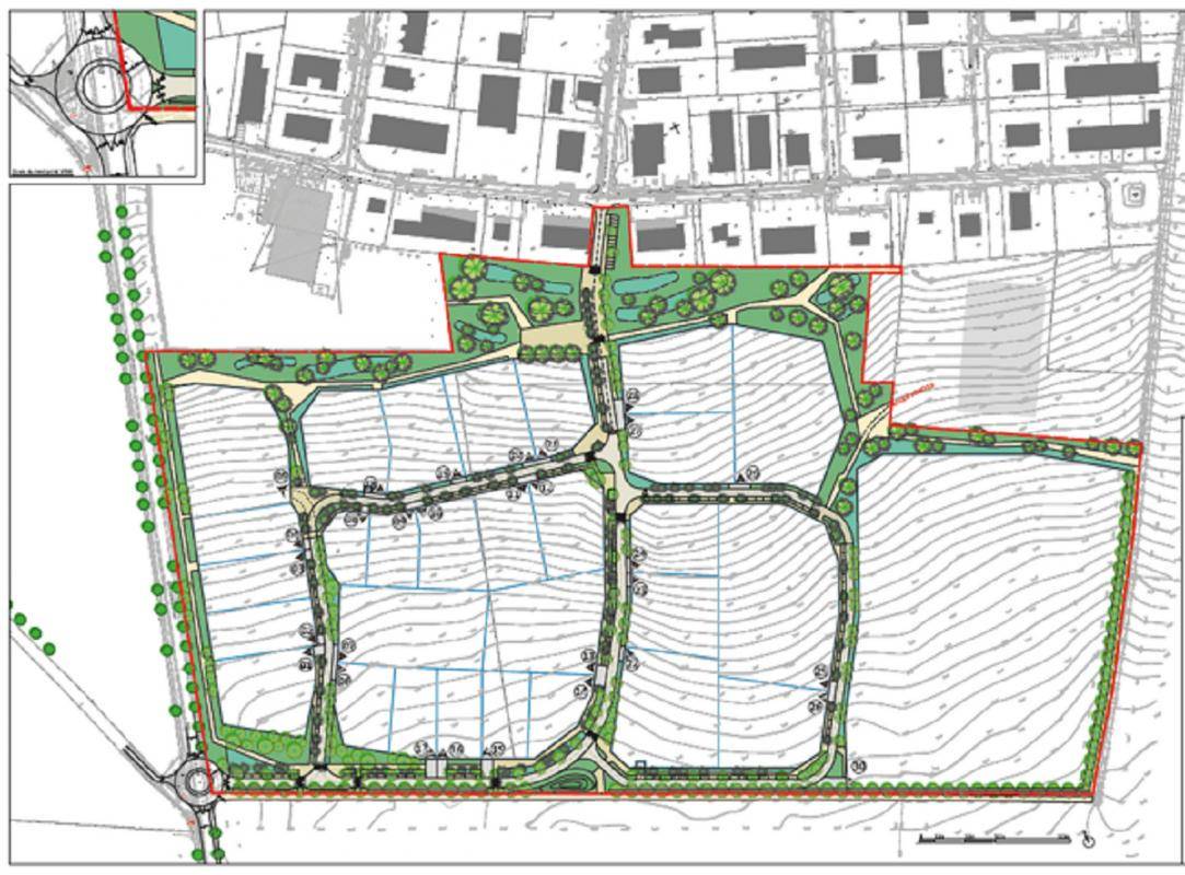
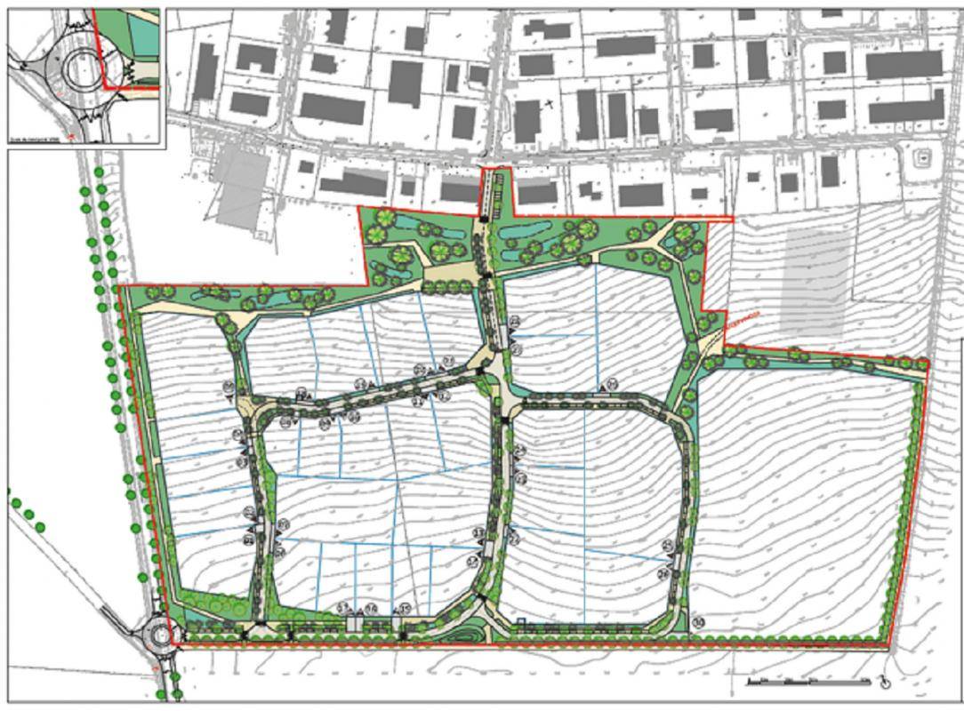
A l'initiative de la Communauté de communes Cœur de Nacre, Normandie Aménagement développe le Parc d'activités Cœur de Nacre, Zone d'Aménagement Concerté, extension de la Zone d'Activités Économiques de la Fossette, située à Douvres-la-Délivrande.
Positionnée au sud de la zone d'activités de la Fossette existante, l'extension « Parc d'activités Cœur de Nacre » s'étend sur 21 hectares.
Elle vise à développer l'activité économique et à encourager la création d'emplois sur le territoire de la Communauté de communes.
UNE OFFRE FONCIERE DIVERSIFIEE avec au total, 32 parcelles proposées à la vente :
LOT 19 : 2 502 m²
Prix de vente : 96 575 euros HT
"Les informations sur les risques auxquels ce bien est exposé sont disponibles sur le site Géorisques : www.georisques.gouv.fr".
Logement susceptibles de vous intéresser
Nous vous proposons de découvrir aussi cette sélection de logements situés à moins de 10km de Douvres-la-Délivrande et qui seraient susceptibles de vous intéresser.
Thaon
TERRAINCaen NORDVENTE d’un terrain de 314 m² 517m² à ThaonEMPLACEMENT PRIVILÉGIÉ – PROCHE DE CAEN et LA MERA Thaon (14610), terrain de 314 m² à 517 m². Chaque terrain a été pensé par rapport à l’orientation. Ce petit lotissement se situe dans un secteur recherché. L’École Primaire Yvonne Guégan se trouve à moins de 10 minutes à pied. Nous vous proposons des terrains allant de 73 500 € jusqu’à 115000€. Reste encore quelques opportunités, venez vite pour choisir votre terrain. Contactez Séverine CHATARD ((Numéro supprimé)) pour toute question sur ce terrain, sur les modalités de vente ou sur les démarches à suivre.
Thaon
TERRAINThaon : terrain de 433 m² à vendreEMPLACEMENT PRIVILÉGIÉ – PROCHE DE CAENÀ Thaon (14610) en vente à 10 km de la Mer et à quelques kilomètres de Caen, découvrez ce terrain de 433 m². Il profite d’une vue sur rue. Dans un quartier recherché, le terrain bénéficiant d’un emplacement privilégié est proche des écoles et des commerces. Il y a l’École Primaire Yvonne Guégan à moins de 10 minutes à pied. Il y a un tennis, une boulangerie et une épicerie à quelques minutes.Ce terrain est proposé à l’achat pour 102 000 €. Contactez Séverine CHATARD (tél : (Numéro supprimé)) pour toute question sur le terrain ou sur les démarches à suivre.
Thaon
TERRAIN ET MAISONA THAONEMPLACEMENT PRIVILÉGIÉ – PROCHE DE CAEN et LA MER – 10 min de Caen et 10 min de la mer A Thaon (14610), dans un petit lotissement se situant dans un secteur recherché, proche de toutes commodités.Nous vous proposons une Maison de plain pied de 80m² – 3 chambres et un garage entièrement sur mesure, avec un espace de vie de 40m².Vous recherchez une maison de plain de pied, fonctionnelle, avec toutes les nouvelles normes, contactez Séverine CHATARD au (Numéro supprimé), Séverine saura vous conseiller et vous proposer la maison idéale pour vous.
Thaon
TERRAIN ET MAISONA THAONEMPLACEMENT PRIVILÉGIÉ – PROCHE DE CAEN et LA MER – 10 min de Caen et 10 min de la mer A Thaon (14610), dans un petit lotissement se situant dans un secteur recherché, proche de toutes commodités.Nous vous proposons une Maison de plain pied de 93m² – 3 chambres et un garage entièrement sur mesure, avec un espace de vie de 45m², chambre parentale avec dressing et SDE, une salle de bain indépendante, 2 autres chambres, un cellier et un garage.Vous recherchez une maison de plain de pied, fonctionnelle, avec toutes les nouvelles normes, contactez Séverine CHATARD au (Numéro supprimé), Séverine saura vous conseiller et vous proposer la maison idéale pour vous.
Thaon
TERRAIN ET MAISONVENTE d’une maison de 5 pièces (80 m²) à ThaonEMPLACEMENT PRIVILÉGIÉ – MAISON 5 PIÈCES NEUVEÀ 10 km de la Mer et à 10 km de Caen, venez découvrir à vendre, bénéficiant d’un emplacement d’exception dans Thaon (14610), cette maison de 5 pièces de 80 m² et de 314 m² de terrain. Son intérieur comporte trois chambres, une cuisine et une salle de bains.Cette maison compte 2 niveaux. Elle est neuve.Cette maison est située dans un secteur convoité. On trouve l’École Primaire Yvonne Guégan à moins de 10 minutes à pied. un supermarché, une boulangerie et une épicerie à proximité de la maison.Elle est proposée à l’achat pour 236 500 €.Contactez notre agence (CHATARD Séverine : (Numéro supprimé)) pour toute question sur la maison ou sur les démarches à suivre.
Thaon
TERRAIN ET MAISONThaon : maison T6 (105 m²) en venteEMPLACEMENT PRIVILÉGIÉ – MAISON 6 PIÈCES NEUVEÀ vendre à 10 km de la Mer et à deux pas de Caen, Maisons France Confort Caen vous propose cette maison de 6 pièces de 105 m² bénéficiant d’un emplacement d’exception dans Thaon (14610). Elle compte quatre chambres, une cuisine et deux salles de bains.Le terrain du bien est de 314 m².Il s’agit d’une maison de 2 niveaux. Elle est neuve.Cette maison se trouve dans un quartier prisé. L’École Primaire Yvonne Guégan est implantée à moins de 10 minutes à pied. On trouve un tennis, une boulangerie et un supermarché, des services de restauration, etc, dans les environs.Son prix de vente est de 290 500 €.Contactez notre agence (CHATARD Séverine : (Numéro supprimé)) pour toute information sur la maison, sur les modalités de vente ou sur les démarches à suivre. Concrétisez vos projets immobiliers avec Maisons France Confort Caen.
Thaon
TERRAIN ET MAISONVENTE d’une maison de 7 pièces (120 m²) à ThaonEMPLACEMENT PRIVILÉGIÉ – MAISON 7 PIÈCES NEUVEÀ vendre à 10 km de la Mer et à deux pas de Caen, bénéficiant d’un emplacement privilégié dans Thaon (14610), ayez le coup de coeur pour cette maison de 7 pièces de 120 m².Cette maison possède 2 niveaux. Elle inclut quatre chambres, une cuisine et deux salles de bains. Cette maison est neuve.Le terrain du bien s’étend sur 433 m².La maison se trouve dans un quartier attractif. Il y a l’École Primaire Yvonne Guégan à moins de 10 minutes à pied. Niveau transports, les bus. Il y a un tennis, une boulangerie et une épicerie à proximité.Son prix de vente est de 367 000 €.Prenez contact avec Séverine CHATARD (tél : (Numéro supprimé)) pour plus de renseignements sur la maison. Maisons France Confort Caen est là pour vous accompagner à toutes les étapes de l’achat.
Thaon
TERRAIN ET MAISONThaon : maison de 6 pièces (125 m²) à vendreEMPLACEMENT PRIVILÉGIÉ – MAISON 6 PIÈCES NEUVEÀ 10 km de la Mer et à deux pas de Caen, Maisons France Confort Caen vous propose à vendre, bénéficiant d’un emplacement privilégié dans Thaon (14610), cette maison de 6 pièces de 125 m². Son intérieur compte quatre chambres, une cuisine et deux salles de bains.Le terrain du bien est de 433 m².Cette maison possède 2 niveaux. Elle est neuve.Cette maison est située dans un secteur convoité. L’École Primaire Yvonne Guégan se trouve à moins de 10 minutes à pied. Côté transports en commun, il y a les bus. On trouve un tennis, une boulangerie et une épicerie à quelques minutes de la maison.Elle est à vendre pour la somme de 340 000 €.Contactez Séverine CHATARD (tél : (Numéro supprimé)) pour obtenir de plus amples renseignements sur le bien, sur les démarches à suivre et sur les modalités de vente.
Thaon
TERRAIN ET MAISONVENTE d’une maison de 8 pièces (140 m²) à ThaonEMPLACEMENT PRIVILÉGIÉ – MAISON 8 PIÈCES NEUVEÀ vendre : située à 10 km de la Mer et à deux pas de Caen, bénéficiant d’un emplacement d’exception dans Thaon (14610), nous sommes ravis de vous présenter cette maison de 8 pièces de 140 m² et de 433 m² de terrain. Son intérieur inclut cinq chambres, une cuisine et deux salles de bains.Il s’agit d’une maison de 2 niveaux. Elle est neuve.Cette maison se situe dans un quartier convoité. On trouve l’École Primaire Yvonne Guégan à moins de 10 minutes à pied. Niveau transports, il y a bus. On trouve un tennis, une boulangerie et une épicerie dans les environs.Elle est à vendre pour la somme de 382 000 €.N’hésitez pas à prendre contact avec Séverine CHATARD (tél : (Numéro supprimé)) pour obtenir de plus amples renseignements sur la maison, sur les modalités de vente ou sur les démarches à suivre. Faites de vos projets immobiliers une réalité avec Maisons France Confort Caen.
L’actualité immobilière à Douvres-la-Délivrande
27/11/2023
02/11/2023
30/10/2023
20/10/2023
16/10/2023
16/10/2023